Wohnzimmerdurchbruch
Hey ihr Houzzer! Ich stelle mir in letzter Zeit vermehrt die Frage, ob ein Durchbruch zwischen unserem Wohnzimmer und der anschließenden Garage optisch ansprechend sein könnte. Leider bietet sich an der (ehemaligen) Außenwand des Hauses zur (nachträglich) angesetzten Garage keine andere, offensichtliche Möglichkeit, einen Durchbruch vorzunehmen, um trockenen Fußes aus der Garage ins Haus zu kommen. Im Hauswirtschaftsraum befindet sich die Heizungstechnik (samt Fußbodenheizung) an besagter Wand und im Flur die Treppe zum Obergeschoss. Mein Gedanke war nun, den hinteren Teil der Garage zum "Flurbereich" 2.0 zu machen und den Zugang so zu ermöglichen. Meine Sorge daran: wie kann das doch recht schmale Wohnzimmer dann noch ordentlich eingerichtet werden, ohne zu unruhig/gequetscht/ungemütlich zu wirken? Ich hoffe, dass es funktioniert und hänge mal den Grundriss vom aktuellen Zustand und meiner Idee an. Für Hilfe und Anregungen oder auch Gegenvorschläge wäre ich sehr dankbar. Liebe Grüße, Kira PS: Bitte nicht wundern, dass die Wand im unteren Teil der Küche fehlt. Da bastel ich parallel auch dran rum. Bzw versuche es. :-(


Kommentare (37)
- vor 10 Jahren
Hallo Kira,
schön, es geht weiter ;-).
Zwei Fragen hätte ich da vorab:
1. Wieso willst du einen Flurbereich schaffen und nicht direkt von der Garage ins Wohnzimmer gehen? Wohlfühlfaktor? Schmutzschleuse? Soll er noch eine weitere Funktion außer Flur haben?
2. Welche Möblierung gibt es denn im Wohnzimmer? Vielleicht kannst du sie einzeichnen, damit man sieht, wo das Problem liegen könnte.
Mal ins Blaue gesprochen: Wäre es nicht vielleicht eine Möglichkeit in diesen Flurbereich die Gästetoilette zu integrieren. Dies hätte zwei Vorteile: im Einen müsste man aus dem Garten kommend nicht durchs ganze Hause und zum anderen würde man den Platz der jetzigen Toilette für deine Küchen-, Speisekammerplanung gewinnen?
kirappunkt hat ankestueber gedankt - vor 10 Jahren
Hallo Kira,
eine Garage riecht nicht nur, sie stinkt, die Abgase, das Öl und der Benzingeruch sind immer da! oder fährst du ein Elektroauto? Ich würde dir von dieser Idee abraten, du wirst den Geruch trotz Schleuse im Wohn!!zimmer immer wahrnehmen. Wenn der untere Teil am Grundriss dran ist, könnte ich besser beurteilen wie du von der Garage trockenen Fußes ins Haus kommen kannst. Eventuell wäre eine lichte Glasüberdachung, oder ähnliches....., die wahrscheinlich preisgleich zu dem geplanten statischen Eingriff ist, auch helfen trocken zu bleiben.
mit frohem gruß
dagmar neue I neue-innenarchitektur.de
kirappunkt hat neue innenarchitektur gedankt kirappunkt
Ursprünglicher Verfasservor 10 JahrenOh, schon mehrere Antworten, vielen Dank dafür. Um vorab schon mal ein paar Antworten zu geben, da ich grad leider nicht so viel Zeit habe: in der Wand von Garage zum Garten befindet sich ein Fenster und eine Tür. Diese hätte ich gegen eine große Terrassentür ausgetauscht, um auch die Außenansicht des Hauses dem Umbau anzupassen. Mehr Bilder und Grundrisse werde ich heute Abend online stellen. Gedacht ist das ganze als Zugang / Schmutzzone. Lagerfläche brauchen wir diesbezüglich eigentlich nicht. Meine Sorge: momentan befinden sich an der zu durchbrechenden Wand der Fernseher und ein Teil der Soundanlage nebst dafür notwendigen Möbel. Ich bin nicht sicher, wie ich das dann alles unterbringen soll. Bilder aber wie gesagt leider erst später.
Liebe Grüße,
Kira- vor 10 Jahren
Hallo Kira,
1. baurechtlich ist eine Garage eine Garage und nur eine Garage.
Da Fenster an der Längsseite der Garage eingezeichnet sind, geh ich davon aus, dass die Garage nicht direkt an die Nachbargrenze gebaut worden ist. Trotz allem kann es sein, dass sie in einem Bereich gebaut worden ist, der bei einer anderen Nutzung nicht genehmigungsfähig ist. Ich will damit sagen: Garagennutzung ist ok, erdgeschossige Küche in gleichem Bauvolumen könnte nicht genehmigungsfähig sein. Wenn Du nun einen Teil der Garage abtrennst zu einem Lager- und Schleusenbereich, kann dieser Bereich plötzlich Abstandsflächen auslösen, die eventuell nicht auf eigenem Grund nachgewiesen werden können. Da der seitliche Abstand zur Grenze nicht dargestellt ist, kann man darüber jedoch nur spekulieren.2. Baurechtlich muss eine selbstschliessende Feuer-und Rauchschutztür (alte Bezeichnung T30-RS, Neue Bezeichnung EI2-30-CS200) zwischen Garage und Wohnraum/Schleuse eingebaut werden.
Jetzt bin ich auf die Bilder gespannt.
mit freundlichen GrüßenMartin Habes
kirappunkt hat habes-architektur gedankt kirappunkt
Ursprünglicher Verfasservor 10 JahrenZuletzt geändert: vor 10 JahrenSohoooo, guten Abend :-)
Wie ich das befürchtet habe(Vergleiche Diskussion zum Thema Umbau/kein Umbau), ist die ganze Idee scheinbar tatsächlich nicht so einfach, wie erhofft. Ich fange mal oben an:
zu Frage 1: die Idee, über eine Art zweiten Mini-Flur/eine Schleuse ins Wohnzimmer zu kommen, fußt tatsächlich eher auf dem Gedanken Wohlfühlfaktor. Die Wand, die ich gerade von der Couch aus anschaue, ist 4,60 m breit. Dort direkt auf eine Tür zu schauen, stelle ich mir tatsächlich nicht sehr angenehm vor. Was weitere Funktionen betrifft, wären bei einem Umbau tatsächlich keine angedacht. Ich dachte an eine kleine Garderobe, an der man die Jacke aufhängt, allerdings soll es das auch gewesen sein.
zu Frage 2: da gibt es direkt 2 Bilder:


Bitte stören Sie sich nicht an den Ikea-Regalen. Uns ist durchaus bewusst, dass die durchaus mal ausgetauscht werden könnten.
Zum Vorschlag des Gäste-WCs in dem angedachten Bereich: Ich glaube, die ganze Verlegung der Abflussrohre ist uns zu viel. Mal abgesehen davon, dass ich ein WC dort nicht so schön fände.
Weiter gehts im Text:
Ich hoffe, Ihre Frage nach der Wohnzimmermöblierung ist mit den Bildern beantwortet? :D
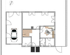
Zum Thema Lagerfläche hatte ich ja heute morgen schon erwähnt, dass diese eigentlich nicht wirklich benötigt wird. Die Garage ist (noch?) 9 Meter lang, es gibt 2 Abstell/Hauswirtschaftsräume von je knapp 6 m² und eine Gartenhütte von knapp 9 m². Was die Fenster betrifft (die ein Fenster und eine Tür sind), mein Gedanke beim Entfernen der selbigen war irgendwie, dass man beim Verlassen der Garage direkt freien Blick in den Garten hätte. Ich stelle mir das schon toll vor.
Die Befürchtung hinsichtlich Gestank hatte ich auch schon. Andererseits wären wir doch nicht die Ersten, die solche Ideen umsetzen, oder? Gut...wenn ich mir überlege, dass mein Schatz seinen Diesel (grundsätzlich) rückwärts in die Garage fährt, das Tor schließt und durch die Schleusentür das Haus betritt...hm. Es gibt mit Sicherheit schönere Gerüche. Vielleicht fällt ja tatsächlich jemandem eine andere Variante ein, hier der gesamte Linke Teil des Hauses als Grundriss:

Und zu guter Letzt: @habes-architektur- Architekt:
zu Punkt 1:
Herr Habes, auch das ist tatsächlich ein Punkt, den ich bis jetzt überhaupt nicht bedacht habe. Auf dem Gesamtgrundriss stellen die beiden äußeren "Mauern" den Verlauf der Heckenbepflanzung dar. Ihre Vermutung, dass die Garage keine Grenzbebauung ist, ist also tatsächlich korrekt. Allerdings beträgt der Abstand der Garagenaußenwand zur Grundstücksgrenze tatsächlich nur 1,5 Meter. Damit hat sich die Idee wahrscheinlich tatsächlich erledigt, oder?
zu Punkt 2:
Wissen Sie, ob es derartige Türen in einer "hübschen" Variante gäbe, vorausgesetzt, Punkt 1 hat kein klares "ja" zur Folge?
So. Ich glaube, ich hab erstmal alles beantwortet, oder? Falls nicht, bitte ein kleiner Hinweis. Und falls jemandem eine tolle Variante einfällt, das Wohnzimmer anders einzurichten....gerne her damit :-)
- vor 10 Jahren
Also ich muss sagen, ganz egal wie die Antwort von Herrn Habes ausfällt, mir ganz persönlich gefällt das mit dem Zugang durchs Wohnzimmer gar nicht und mich würde die Tür stören egal an welchem Platz und wenn es dann noch nicht mal einen Zusatznutzen gäbe, wie z.B. ein WC und sei es ein zweites evtl. mit Dusche für den Hund, ich würde es nicht auf mich nehmen.
Leider kenne ich die Bauvorschriften nicht, daher keine Ahnung über die Machbarkeit und auch ohne Wissen, was sich im HWR genau verbirgt:
Wäre es machbar die Sachen aus dem HWR (Waschmaschine, Boiler ...) in die Garage zu verlagern und dann einen Zugang in den HWR zu machen, den man dann als Cloakroom nutzen könnte?
Dem Geruch würde ich so aus dem Wege gehen, dass ich die Garage zurück versetze – also Baukörper behalten aber Garagentorfront nach hinten, so dass die Garage quasi wie eine Veranda bekommt.
kirappunkt hat ankestueber gedankt kirappunkt
Ursprünglicher Verfasservor 10 JahrenHallo Frau Stüber,
ich bin ganz ehrlich, den Ansatz verstehe ich gar nicht. Wie kommen wir dann in die Garage mit dem Auto? Da müssten wir doch dann über die Terrasse fahren?
Zu der Frage, was sich im Hauswirtschaftsraum verbirgt: An der Wand gegenüber der Tür ist linker Hand die Heizungstherme verbaut und rechts die Technik für die Fußbodenheizung. Waschmaschine und Trockner stehen an der rechten Wand, wenn man den Raum betritt. Selbst wenn ich die Geräte aus dem Raum verbannen würde, hätte ich keine Möglichkeit, einen Zugang zur Garage zu schaffen. Zumindest glaube ich das ;-)
Die Tür, von der Herr Habes sprach, sollte auch nicht in der Wohnzimmerwand untergebracht werden. In meiner Vorstellung wäre diese tatsächlich an der "neuen" Wand innerhalb der Garage untergebracht, während der Durchgang zum Wohnzimmer offen bliebe. Vielleicht helfen zwei Screenshot aus Sweethome 3D, um zu verdeutlichen, was ich meine.

- vor 10 Jahren
Dass die Feuerschutztür in der neuen Wand ist, also Garage und Schleuse verbindet, war mir schon klar. Aber ich habe in die Wohnzimmerwand in meinem Kopf einfach auch noch eine Tür gemacht, obwohl Sie die nicht eingezeichnet hatten. ;-)
Trotzdem würde ich persönlich die andere Lösung vorziehen und ja man würde über die "Terrasse" fahren. Ich habe das Wort Veranda einfach zur Beschreibung genutzt, dieser Vorbau muss natürlich einen Bodenbelag haben, der die Belastung aushält.
Was ich jetzt nicht verstehe ist, warum sollte man von der Garage bzw. dann dem Vorbau in den Hauswirtschaftsraum keine Tür machen können, wenn die Geräte dort weg wären? Oder?
kirappunkt hat ankestueber gedankt kirappunkt
Ursprünglicher Verfasservor 10 JahrenHey! Mir ging es persönlich nicht um den Begriff Veranda, sondern die Überlegung, dass ich durch den Garten in die Garage fahren müsste. Denn müsste ich ja unter anderem einen Teil der Hecke entfernen, neu pflastern usw usf.
Was den HWR betrifft...ich glaub, ein Bild sagt hier mehr als 1000 Worte:

- vor 10 JahrenZuletzt geändert: vor 10 Jahren
Also ich scheine mich sehr ungenau auszudrücken oder stehe auf dem Schlauch.
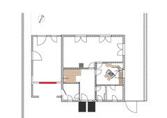
Daher anbei mal der abgeänderte Grundriss. Rot ist das neue Garagentor. Ob ihr vorne nur das Tor entfernt und links z.B. eine Bank macht oder die Öffnung vergrößert ... – erst einmal geht es nur um das grobe Wie.
Du musst keine Hecke entfernen und auch nicht neu pflastern. ;-) Was den HWR angeht war ja die Rede davon, dass die Geräte dann an einen anderen Ort müssten.

kirappunkt
Ursprünglicher Verfasservor 10 Jahren*lach* Jetzt begreife auch ich das. Ihre Aussage von vorhin ("also Baukörper behalten aber Garagentorfront nach hinten") hatte ich so verstanden, dass das Tor nach hinten im Sinne von der anderen Seite der Garage soll :D
Die Idee finde ich wenn ich ehrlich bin ganz gut, weil ich den Zugang eigentlich sowieso viel lieber über den HWR (Schmutzzone/Vorderseite des Hauses usw) hätte. Andererseits muss ich aber zugeben, dass ich überhaupt gar keine Ahnung habe, wie schwer oder leicht sich derartige Technik versetzen ließe.
- vor 10 Jahren
Puh, ich war auch schon ganz verwirrt.
Das mit der Technik kann ich leider auch nicht einschätzen. Aber beim Installateur mal anfragen, würde ich auf jeden Fall.
Sie haben auch weiter oben gesagt, es gäbe noch einen zweiten Hauswirtschaftsraum. Was ist denn da drin? Ich vermute mal, dass er in der ersten Etage genau über dem im EG ist. Dann wären Waschmaschine und Trockner vielleicht dort ganz gut aufgehoben (Wäsche fällt eh oben an und muss dort weggeräumt werden und die Anschlüsse sollte nicht so das Problem sein....?)?
kirappunkt
Ursprünglicher Verfasservor 10 JahrenZuletzt geändert: vor 10 JahrenDie Vermutung stimmt so leider nicht. Es ist eigentlich auch nicht wirklich ein Hauswirtschaftsraum, sondern eben die Speise"kammer" (den Begriff Kammer finde ich hier eher weniger angebracht bei 5,29 m²). Dieser Raum befindet sich hinter der Küche und ist für den eigentlichen Zweck auch irgendwie überdimensioniert. Vielleicht könnte auch bei der Umbauplanung in puncto Küche/Gäste-WC/Speise"kammer" ein Weg gefunden werden, Waschmaschine und Trockner dort unterzubringen, z.B. im Gäste-WC. Aber ob ich das möchte? Hmmm....
- vor 10 JahrenZuletzt geändert: vor 10 Jahren
Hallo Kira.
1. Zum Baurecht: Ihr Flur mit Regal würde nach dem Baurecht 1,50m über die Baugrenze (Musterbauordnung: Mindestabstand 3m zum Nachbarn) hinausragen und wäre somit erst einmal nicht genehmigungsfähig. Da ich nicht weiss, um welches Bundesland es sich handelt, gehe ich von den 3 m aus. Trotzdem sollten Sie mit Ihrer Idee zum zuständigen Sachbearbeiter beim Bauamt gehen und mit Ihm darüber sprechen. Da die Garage ja nicht höher als 3,20 m sein wird, könnte man die Abstandsfläche ja nachweisen. 3,20 * 0,4 = 1,28m. Der, nun zur Flurwand gewordene Wandabschnitt, würde eine Abstandsfläche von ca. 1,30 m erzeugen und wäre somit noch auf ihrem Grundstück nachgewiesen. - Befreiung von der Festsetzung zur Einhaltung des Mindestabstandes. Nachbarzustimmung notwendig.
2. Baukonstruktiv: Die Garage wird einen anderen energetischen Standard haben als das Wohnhaus. Unbeheizt, ungedämmte Wände und ungedämmte Bodenplatte...... Der Flur wäre somit eine richtig schöne Kühlrippe im Winter und Heissluftfalle im Sommer. Das ist nicht gut. Energetische Ertüchtigung des Bauteils Flur wäre notwendig. Es bleibt also nicht nur bei der Tür. Weiterhin sollten Sie prüfen, ob eine Höhenunterschied zwischen OK Fussboden Garage und OK Fussboden Wohnhaus besteht. Daraus ergibt sich die Gestaltung des Fussbodens zwischen Wohnzimmer und neuem Flur....vielleicht entsteht zwangsläifig eine Stufe?
3. Brandschutztüren gibt es auch in nicht hässlich. Aber, je schöner, umso teurer. Schauen sie z.B. bei Hörmann bei den Türen nach H3D oder WAT.
4. Variante von ankestueber: Gratulation!! Baurechtlich vollkomen unbedenklich. Funktional die viel bessere Variante, wenn der Raum ordentlich umgebaut wird. Jedoch muss hier eine Operation am offenen Herzen des Patienten ausgeführt werden. Therme und Heizkreisverteiler der Fussbodenheizung umstellen wird sehr aufwendig und teuer.kirappunkt hat habes-architektur gedankt - kirappunkt hat neue innenarchitektur gedankt
- vor 10 JahrenZuletzt geändert: vor 10 Jahren
Waschmaschine und Trockner im Gäste-WC wäre auch nicht meins. Aber in der "Speisekammer" könnte man die doch gut platzieren an der Wand zum WC, das dürfte dann mit den Anschlüssen nicht das große Problem sein und wenn da sowieso auch umgebaut wird. In der neuen Variante könnte man sie übereinander stellen.
Der Heizkreisverteiler der Fußbodenheizung könnte vielleicht mit etwas Glück, an Ort und Stelle bleiben, bliebe nur die Verlegung der Therme, notfalls im HWR, kann man optisch sicher schön lösen.
kirappunkt hat ankestueber gedankt - vor 10 Jahren
Moin,
meiner unmaßgeblichen Meinung nach würde ich auch auf keinen Fall die Variante "Zugang über´s WoZi" nehmen. Von Draußen aus dem Auto direkt in die "gute Stube"? Mit den Einkäufen durch´s Wohnzimmer?
Ich finde die Idee von ankestueber sehr gut - selbst sie mit einigen Umbauarbeiten verbunden wäre, die definitiv bessere Lösung.
kirappunkt hat hockylanetixx gedankt kirappunkt
Ursprünglicher Verfasservor 10 JahrenPuh, ich bin grad überfordert und frage mich, ob der ganze Umbau die Mühe tatsächlich wert ist. Mittlerweile ist mir zusätzlich noch das vordere Fenster aufgefallen, dass umgesetzt werden müsste, da die Wand ja nicht in selbigem enden kann. Womit ich wieder bei meiner Ursprungsfrage aus meiner Umfrage wäre. Lohnt sich so viel Aufwand für a) ein bißchen mehr Luxus und b) ein Haus, dass wir nicht ewig bewohnen werden. Langsam zweifle selbst ich daran und frage mich, ob es ein neuer Bodenbelag oder eine neue Küche nicht auch täten.kirappunkt
Ursprünglicher Verfasservor 10 JahrenVielleicht sollten wir diese Idee verwerfen und uns lieber doch eher der Gestaltung widmen, um das Haus mehr zu unserem Haus zu machen.- vor 10 Jahren
Unser Auto passt nicht in die Garage unseres 60er-Jahre-Hauses und wir haben (noch) nicht mal einen Carport - ergo steht das Auto frei vor dem Haus. Klar ist das bei Regen manchmal etwas blöd, aber soo schlimm finde ich das ehrlich gesagt auch nicht.
Bei dem zu erwartenden Aufwand würde ich mich tatsächlich anderen Projekten widmen.
kirappunkt hat hockylanetixx gedankt kirappunkt
Ursprünglicher Verfasservor 10 JahrenHey,
da wir zwei Autos besitzen, steht bei uns auch immer einer draußen. Eigentlich noch ein Grund mehr, da die Finger von zu lassen.- vor 10 Jahren
Keep calm and drink tea!
Warum an diesem Punkt aufgeben?
Der Wunsch ist ja schon länger und recht intensiv (so wie ich es verstanden habe) und wird sicher immer wieder kommen, wenn nicht komplett damit abgeschlossen wurde, sofern die Entscheidung gegen die Realisierung ausfällt.
Ich rate erst einmal noch ein bisschen weiter zu machen. Angebote von Handwerkern einholen und ein Besuch beim Bauamt, kostet nichts und man sieht schon wieder weiter. Wenn es dann nicht geht oder die Kosten unverhältnismäßig, dann ist das so. Aber man muss sich nichts vorwerfen: ach, hätte ich doch oder so ... Dann ist es klar, dann ging es eben nicht.
Für mich persönlich würde ich den Vorteil auch im Zugang durch den Cloakroom sehen und nicht unbedingt darin, trocken von der Garage ins Haus zu kommen.
Darf ich noch fragen von welchem Fenster du sprichst?
kirappunkt hat ankestueber gedankt - vor 10 JahrenZuletzt geändert: vor 10 Jahren
Ich denke sie meint das vordere Garagenfenster ganz links. Dort endet nach Ihrem Entwurf die neue Wand.
Wenn es nur um den Zugang zum Cloakroom geht koennte man vlt.Einfach aus dem dort vorhandenen Fenster eine Tuer machen (und davor vlt. noch eine kleine Überdachung zur Garage).
kirappunkt hat hockylanetixx gedankt - vor 10 JahrenZuletzt geändert: vor 10 Jahren
Ah, danke für den Hinweis!
Ich habe es als Tür angesehen (für mich sah es so aus, als ob die Türen einen größeren Radius haben als die Fenster) und mich gefragt, für was man da zwei Türen braucht und hätte sie einfach zugemauert. Selbst wenn es ein Fenster ist, fände ich es in der Garage nicht wirklich nötig, zumal es ja dann noch zwei gibt. Alternativ kann man ja die Wand weiter vorne ansetzen.
kirappunkt hat ankestueber gedankt kirappunkt
Ursprünglicher Verfasservor 10 JahrenGuten Abend,
bei den beiden Maueröffnungen in der linken Garagenwand handelt es sich tatsächlich um Fenster. Davon eins zur Tür zu machen ist praktisch nutzlos, weil sich direkt daran die Hecke zum Nachbarn anschließt( mal abgesehen von einem ziemlich schmalen Gang) Ich überlege grade, ob es nicht deutlich "einfacher" wäre, das Garagentor zu lassen, wo es ist, und die Wand zwischen Garage und HWR nach Umbau der Heizungsanlage zu durchbrechen. Vorausgesetzt, ich möchte das überhaupt noch. Auch nach erneutem drüber nachdenken bin ich immer noch unschlüssig. Unser Wunsch besteht ja primär darin, das Haus mehr zu "unserem" zu machen (also nicht nur was das Eigentum betrifft, sondern eben auch das Innenleben). Ob das wirklich zufriedener macht, einen Durchgang zwischen Garage und HWR zu haben bzw ob das Haus dann damit mehr "unseres" ist, wag ich zur Zeit wirklich zu bezweifeln. Auch, wenn ich mein Interesse momentan eher in andere Ideen lenke.....ich bin unheimlich dankbar für die zahlreichen Anmerkungen zum Thema. Sowohl aus baufachlicher Sicht, als auch aus der Sicht eines Bewohners. Immerhin brachten Sie mich alle dazu, nicht einfach nur loslegen zu wollen, sondern alles etwas weniger verträumt zu beäugen. Vielen vielen Dank.
- vor 10 Jahren
Hallo,
mit dem Fenster das ich zur Tür machen würde meinte ich das unten im HWR, nicht das in der Garage. - vor 10 JahrenZuletzt geändert: vor 10 Jahren
Nur kurz zur Klarstellung: Ich wollte die Fenster nicht zu Türen machen, sondern habe sie falsch interpretiert.
Ich würde um Kosten zu sparen, das betroffene Fenster zumauern oder aber die Wand ein Stück nach vorne versetzen.
Das Tor zu versetzen und den Eigang ins Haus nicht aus der Garage direkt zu haben, hatte den Hintergrund Geruchsbelästigungen auszuschließen.
Außerdem wäre das auch von Vorteil für alle, die ohne in der Garage geparkt zu haben, durch den HWR ins Haus wollen.
Wie auch immer die Entscheidung ausfällt, ich hoffe sehr, dass ihr einen Weg findet, das Haus mehr zu "eurem" zu machen. Das Wie könnt nur ihr entscheiden!
kirappunkt
Ursprünglicher Verfasservor 10 JahrenIch glaube, dass das Fenster des HWRs zum Eingang zu machen, nicht wirklich schön aussieht, da sich die Mitte des (neuen) Nebeneingangs dann ca. 2 Meter neben dem Hauseingang bewegen würde. Das sieht glaub ich von vorn dann nicht mehr so wirklich gut aus, bzw kann ich es mir optisch nicht ansprechend vorstellen. Wegen der Geruchsbelästigungen sind die glaub ich in der letzten erfragten Variante gar nicht so massiv störend. Der HWR hat ja ebenfalls eine Tür (zum normalen Wohnbereich), so dass der Dieselduft vom Auto meines Mannes glaub ich kaum störend wäre. Aber wie gesagt, ich zweifle grade, ob es nicht vielleicht doch bessere Wege gibt, die man wählen könnte.
kirappunkt
Ursprünglicher Verfasservor 10 JahrenZuletzt geändert: vor 10 JahrenDas sind sie teilweise auch aktuell...zumindest Schuhe.
- vor 10 Jahren
Hallo Kira,
der Wunsch trockenen Fußes von der Garage ins Haus zu kommen hat zu einer ganzen Reihe Problemen und Kompromissen geführt. Angefangen von zwei Dielen mit zwei Garderoben im Haus.
Der Ansatz von Anke ist der erste, der eine Zusammenführung der Zugänge berücksichtigt. Vielleicht liegt die Lösung aber auch außerhalb des Hauses? Ist evtl. eine Zusammenfassung von Garage und Haus in Form einer Überdachung ein Lösungsansatz?
Die ersten Überlegungen sollten nicht technischer Natur sein, sondern Beobachtungen der Lebensgewohnheiten der Bewohner: wie komme ich an, wo betrete ich das Haus, was will ich dort als erstes tun, wie erschliesse ich mir meine Räume, was sehe ich wenn ich im Sessel sitze, in der Küche bin, ich zur Treppe gehe… Einfach mal die Perspektive wechseln und nicht nur von oben auf das Haus schauen, sondern sich auf Augenhöhe im Haus bewegen.
Können wir ein Foto von der Ansicht des Hauses bekommen? ^^
kirappunkt
Ursprünglicher Verfasservor 10 JahrenHallo Raumagentur ArteFakt,
vielen Dank, dass auch Sie sich hier Mühe machen. Ich bin ganz ehrlich, diese Idee ist zumindest vorerst für mich erledigt. Ich denke, derartige Wünsche werde ich dann beim nächsten (neugebauten) Haus direkt von Beginn an mit einplanen. Die Umbauerei ist mir bzw uns ein bissl zu viel, zumindest für ein Haus, was wir nicht für die Ewigkeit besitzen wollen und werden. Ich denke, dass unsere Pläne (abgesehen vom Küchen/Gäste-WC/Speisekammer-Bereich) sich tatsächlich auf einen neuen Fußboden und neue/andere Möbel beschränken werden. Trotz dessen möchte ich Ihre Fragen natürlich auch beantworten bzw auf Ihre Anmerkungen reagieren:
Zwei Dielen finde ich grundsätzlich gar nicht so verkehrt, wenn die Platz- bzw Raum-Verhältnisse es hier einfach zu unserer Zufriedenheit bieten könnten. Allerdings muss ich auch jetzt, wenn ich wieder auf die Wohnzimmerwand schaue, die Ursprung dieser Idee war, feststellen, dass mir ein Gang dort irgendwie gar nicht so recht gefallen würde. Dafür ist der Raum einfach zu klein bzw zu schmal, um sich dort noch einzugrenzen. Die Variante, die Heiztechnik zu verlegen, wäre sicherlich die sinnvollste. Ich finde Frau Stübers Idee, das Tor nach hinten zu versetzen, gar nicht so verkehrt, muss jedoch zugeben, dass mir der zu erwartende Aufwand zu viel ist für diesen doch recht kleinen Effekt. Immerhin würde eines der Autos nach wie vor draußen parken, meist schräg zur Eingangstür. Diese zwei Meter bis zum überdachten Eingang sind sicherlich verkraftbar.
Zu unseren Lebensgewohnheiten: wir kommen mit unseren Autos an, in Ermangelung eines elektrischen Garagentores steigen wir aktuell eh aus dem Auto aus, öffnen das Tor, fahren in die Garage, steigen wieder aus und schließen das Tor von aussen. Dann geht es in den geräumigen Flur, ablegen der Sachen und meist (sorry für die folgende Offenheit) im Anscluss die Blase leeren. Sprich, das Gäste-WC ist neben dem Eingang und gegenüber der Garderobe nicht all zu verkehrt. Der zweite Grund, das Gäste-WC im hinteren Bereich abzulehnen, war die Tatsache, dass Gäste immer zuerst durch das ganze Wohnzimmer müssten, um aufs Töpfchen zu kommen. Gerade auch, wenn das Hauptbad mal besetzt sein sollte.
Bei ihren Fragen zu den Aussichten von Sessel/Küche/Treppe verstehe ich ehrlich gesagt nicht so ganz, was Ihnen diese Informationen sagen. Falls diese Fragen ernst gemeint sind, möchte ich Ihnen eine Antwort jedoch nicht verwehren. Auf der Couch sehe ich (leider) eigentlich nur den Fernseher, die Musikanlage und das entsprechende dazugehörige Mobiliar, aus dem Augenwinkel noch den Kamin. In der Küche dagegen bieten sich mehrere Aussichten....bei Betreten derselbigen über den Flur ist eigentlich alles zu sehen, die Küchenzeile samt Insel, das Fenster, der Eingang zur Speisekammer. Durch das Wohnzimmer betreten, bietet sich fast das gleiche Bild. Und aus der Speisekammer kommend sieht man wieder ebenfalls die gesamte Küchenzeile, Insel sowie den Türrahmen (ohne Tür) zum Wohnzimmer (für einen Geschmack leider zu klein geraten). Ja. Ach, genau. der Weg zur Treppe. Da die Treppe in einer Nische "versteckt" ist, ist sie bei Betreten des Flurs weder aus Richtung Wohnzimmer noch aus der Hauseingangsrichtung direkt zu sehen, was ich persönlich super finde. Was andere Ansichten des Hauses betrifft (gerade aus Augenhöhe), ist es unheimlich schön hell, hat teilweise den falschen Fußboden und teilweise ziemlich praktisch von der Raumaufteilung (gerade der Hauswirtschaftsraum ist wirklich klasse, weswegen es mir wahrscheinlich wiederstrebt, ihn umzubauen). Ich persönlich hätte einiges anders geplant, aber wie gesagt...es ist nicht für die Ewigkeit und für jetzt echt super. Bis auf....nunja. Unsere Linie eben.
Nun hab ich aber wieder viel mehr geschrieben, als für Sie wahrscheinlich interessant bzw relevant war, daher zum Abschluss nur noch die erbetene Außenansicht:

- vor 10 Jahren
Hallo Kira,
genau das war meine Absicht - einfach mal sich selbst im Umgang mit dem Haus neu sehen. Denn der erste Weg ins Haus, zur Garderobe, zum WC - all das wäre in der zweiten Diele erst möglich, wenn man durch das Haus bis vorne durchläuft... Aber das nur kurz am Rande, denn es ist ja nun sowieso obsolet. Aber dafür sind Überlegungen ja da: um zu einer Entscheidung zu kommen. Und eine Entscheidung gegen eine Veränderung gehört auch dazu.
Und ja, meine Fragen sind ernst gemeint, den allein das Haus zu kennen sollte einem Pro nicht genügen, wenn er Haus und Bewohner zusammenbringen möchte. Der Blick auf die Technik und das "leider", weil er nicht in den Garten zeigt ist da sehr aussagekräftig. Aber daß ich die Frage hier stellte war eigentlich eher für Ihre eigene Reflexion gedacht als daß ich es selbst wissen wollte, denn in diesem Beitrag ging es ja primär um die Frage einer zweiten Diele. Dennoch finde ich Ihre Antworten spannend im Hinblick auf Ihre Absicht, das Haus zu Ihren Zuhause machen zu wollen. Da steckt jetzt schon viel persönliches drin, was es nun gilt, auch in den Räumen umzusetzen. Setzten Sie also alles, was Ihnen wichtige ist in den Mittelpunkt der Planungsgedanken, und alles andere versuchen sie auch zweitrangig zu behandeln. Ein "der Fernseher kann ja eigentlich nur da stehen" ist kein Planungsansatz, denn es gibt zu viele andere Möglichkeiten. Viel wichtiger ist die frage: wie müsste der Wohnbereich angeordnet sein, um das in den Fokus zu rücken, was ich sehen will? Kamin, Garten, … Und dann schauen, wie sich alles andere einfügen liesse oder ob es überhaupt wichtig genug ist, um über Ihr Zuhause zu bestimmen. :)
Spontan würde ich das Sofa auch eher in den geschützten Bereich der dunkel gestrichenen Wand setzen und eher eine andere Lösung für die Technik im Raum finden wollen. Und am Kamin muss sich etwas ändern, daß er zur Diva im Raum wird und nicht nur ein an die Wand gestellter Kamin ist. Die große Fläche der Ebene ist toll, aber für den Menschen zu groß, so daß es nötig sein wird, einen Raum im Raum zu schaffen, um einerseits die vorhandene Weite zu behalten, andererseits aber auch die Proportionen auf uns, den Menschen anzupassen. Aber das ist ein anderes Thema und gehört in die andere Fragestellung.
Danke für die Ansicht von außen. Zwar recht kleine Fenster, aber ein stimmiges, wohlproportioniertes Haus. Fast schade für Ihre Fragestellung, denn meine Idee war, daß es vielleicht eine laubenähnliche, Lösung sein könnte, die den Weg von der Garage zum Eingang und in eine Eingangs-Definition münden könnte. Nun sehen wir aber, daß der Eingang schon ein eigenes Gesicht hat. Selbst eine rein pflanzliche Lösung aus Weidenbögen oder Rosengänge, etc. kann ich mir spontan nicht vorstellen.
Erst einmal aber meine Gratulation zu der Entscheidung, sich um das Haus wie es ist kümmern zu wollen und aus ihm Ihr Zuhause machen zu wollen. Viel Erfolg jetzt bei der "Eroberung" der Räume :) Auch wenn es nur für eine absehbare Zeit ist, so ist jeder Tag in einem "fremden" Haus ein Tag zu viel. Schauen Sie ruhig weiter etwas verträumt auf die Sache, aber so wie Sie sich und Ihre Familie in die Träume einbeziehen, beziehen Sie auch das derzeitige Haus mit ein. Dann wird es bestimmt ein wundervollen Zuhause.
LG, Steffen Ganzer
kirappunkt
Ursprünglicher Verfasservor 10 JahrenZuletzt geändert: vor 10 JahrenHerr Ganzer, vielen Dank für Ihre Fragen. Fragen, die mich tatsächlich dazu gebracht haben, den Blickwinkel zu ändern. Ihr Vorschlag, die Couch im geschützten Bereich unterzubringen, hat hier heute für eine rege Diskussion gesorgt. :D
Dazu werde ich jedoch tatsächlich nochmal eine neues Design-Dilemma posten, da die Gedanken dazu wirklich etwas themenfremd sind. Die Anregungen der Beteiligten haben hier, für den Gedanken des Durchbruchs, für Ablehnung bei mir gesorgt. Aber...es ist ja nicht so, als ob ich nicht noch genug andere Ideen hätte, um hier unsere Handschrift reinzubringen. Daher nur noch eins zum Abschluss von mir: erneut vielen lieben Dank an alle, die mit ihren teils auch kritischen Kommentaren zu dieser Entscheidung geführt haben. Es waren viele Aspekte bei, die wir nicht mal im Ansatz bedacht haben.
Auf baldiges Wiederlesen,
Kira

Laden Sie die Seite neu, um diese Anzeige nicht mehr zu sehen
midmodfan