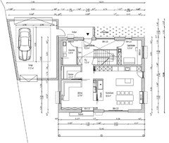
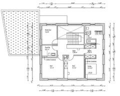
Planung EFH bitte um Rat zum Gesamtkonzept
vor 6 Jahren
zuletzt bearbeitet:vor 6 Jahren
Hervorgehobene Antwort
Sortieren nach:Älteste
Kommentare (31)
- vor 6 Jahren
- vor 6 Jahren
Ähnliche Diskussionen
Fassadenfarbe EFH - wie find ich das richtige weiß?
Kommentare (4)Lieber ziemlich große Tafeln anlegen und vor die Fassade halten. Wenn die Farbmuster nebeneinander an der Wand sind, wird ihre Wirkung von der Hintergrundfarbe und von den Musterflächen nebeneinander verfälscht. Als Tafel lässt sich ein Muster so nah an den Rand bringen (Hausecke, Fenster, Türöffnung, …), daß man sich ein reales Bild davon machen kann. Und die Tafel liesse sich auch an verschiedene Positionen bringen und damit bei Licht und im Schatten besser beurteilen. Das klassische "weiß" auch von Großgeräten wie Waschmaschinen, Kühlschränken etc., sowie von Fenstern und Haustüren ist 9010, verkehrsweiß aus der RAL-Karte. Der Hersteller "caparol" bietet sogar eine Weiß-Farton-Karte an mit enorm vielen verschiedenen Weißtönen ;)...mehrBeleuchtungshilfe/ Rat bei Einbauspots im Wohn- und Essbereich
Kommentare (10)Licht und Stille sind die Luxusgüter unserer Zeit. Wert, sich dafür ein wenig mehr Zeit zu nehmen, als nur über eine Aufteilung von Leuchten nachzudenken, ohne daran zu denken, wohin denn das Licht aus diesen Leuchten fällt und wo ich es eigentlich gerne hätte... Nicht die Lampe ist wichtig, sondern das Licht, was aus ihr herauskommt. Und Licht entsteht nur dort, wo es auftreffen kann. Nah an den Wänden positioniert (ich empfehle eher <30 cm) werfen die Downlights runde Lichtmuster an die Wände und hellen die Wandflächen unter sich auf. Je enger sie nebeneinander positioniert sind, umso eher wird aus einem einzelnen Lichtkegel eine Lichtfläche. In der Mitte des Raumes platziert wird der Boden aufgehellt, aber die Wände bleiben dunkel, so daß wir in solchen Räumen das Gefühl haben, es fehlt Licht. Im Treppenhaus kann das zB. anders sein. Da wollen wir gerade früh oder spät am Tag keine hell erleuchteten Räume, sondern nur sehen, wohin wir treten. Im Flur dagegen ist beides gewünscht. Denn wenn es mitten am hellen Sommertag in den angrenzenden Zimmern so richtig hell ist, irritiert es uns, wenn die Flure dazwischen so dunkel sind, daß wir Kunstlicht einzuschalten müssen. Andererseits ist es am Abend schön, wenn diese Flure auch nur sanft ausgeleuchtet sind, um schnell noch vom Bad ins Bett huschen zu können, ohne mit dem Zeh am Türrahmen hängenzubleiben. ***** Die Menge an benötigtem Licht kann ich entweder über eine hohe Lichtleistung der Lampen bekommen, oder aber über eine größere Anzahl an Lampen mit geringerer Lichtleistung die gleiche Menge an Licht erhalten - nur eben gleichmäßiger Verteilt. Wenn Sie jetzt auf 450 cm nur zwei Lampen unterbringen, sind diese schon so weit voneinander entfernt, daß sie eher zwei Lichtstriche an der Wand abgeben, als daß sie die Wand aufhellen. Selbst wenn außen noch die letzten Leuchten der 5-er Reihe addiert werden, haben wir einen zu großen Abstand zwischen den Leuchten um das zu erreichen, was Sie sich wünschen. ***** Abgesehen davon sprechen Sie von einem Raum mit mehreren Funktionsbereichen (Essen & Wohnen). Es wäre doch ärgerlich, wenn Sie den Wohnbereich nutzen, aber aufgrund der großflächigen Verteilung gleich ALLES in dem Raum hell erleuchtet ist, auch die Bereiche, die Sie gerade gar nicht nutzen. Schaffen Sie sich auch durch das Licht entsprechende Zonen und schaffen Sie sich über mehrere Schaltkreise zum jeweiligen Nutzungsbereich das richtige Licht zu verschiedenen Situationen. Je Raumbereich bedeutet das: gemütliches Licht, das unseren Abend begleitet, ohne grell zu sein Nutzlicht / Akzentlicht, wo wir es brauchen, ob an der Spüle, im Buch oder am Tisch Raumlicht (mal alles hell machen, wenns mal wieder um 15:00 Uhr diesig grau ist Denken Sie auch daran, daß sie im Wohnraum sitzend auch immer den Essbereich sehen, und wohlmöglich auch den Flur. Es genügt also nicht, den Wohnraum gemütlich auszuleuchten, während der Essbereich oder der Flur im beunruhigenden Schwarz daherkommen oder hell erleuchtet sind. Auch für diese Situation ist ein entsprechendes Licht vorzusehen. Denn wenn ich den Wohnraum am Abend verlasse, möchte ich ungern durch einen hell erleuchteten Flur zum Bad gehen, wo mich ein gleissendes Licht erwartet, um dann in Bett zu gehen. Lieber hätte ich ein sanftes Licht das schon da ist, mich den Weg über begleitet ohne mich wieder wach zu machen, und das sich nur hinter mir ausschalte. Ebenso wäre es doch toll, wenn ich im Schlafraum mir das sanfte Licht einschalte, das mir hilft, mich im Raum zu orientieren, ohne andere Mitschläfer im Raum zu wecken. Und wenn ich dieses Licht dann auch am Bett wieder löschen kann, ist es einfach nur großartig. Vielleicht kann ich mr auch das Leselicht auf meiner Bettseite einschalten, um es am Bett wieder auszuschalten?! Hier ist es wichtig zu wissen, wie das Bett genau ausschaut, damit die Schalter richtig positioniert werden. ***** Machen Sie eine Gedankenreise. Gehen Sie zB. in Gedanken auf das Sofa. Es ist Abend. Was sehen Sie von dort aus? Wo sollte etwas Licht sein? Wo sollte gezielt etwas Licht sein und wo sollte auf keinen Fall Licht sein? Dann schauen Sie, wie das Lciht beschaffen sein muss, um diese Wünsche zu erfüllen. Und dann erst schauen Sie, welche Leuchte das auch erfüllt. Und diese Reise machen Sie mit den anderen Räumen und den Wegen die Sie gehen. wie komme ich nach Hause und wann? welche Wege durchlaufe ich am Morgen? wo laufe ich entlang und von wo aus will ich welches Licht schalten und welche Jalousie zB? Und danach richten sich die Entscheidungen welche Lichtkreise soll es geben? welches Licht soll indirekt vorhanden sein? welches direkte Licht benötige ich? wo soll es gerichtetes Licht geben? wo soll die Lichtquelle Raumlicht abgebend sein? Es gibt hier diverse Anfragen zum Thema Licht, von denen manche bereits einige Grundlagen erarbeitet haben, die sie dann hier zur Diskussion gestellt haben, wie diese Diskussion zB. oder diese hier. Stellen Sie Ihre ersten Gedanken ruhig konkret hier im Forum zur Diskussion. Herzliche Grüße, Steffen Ganzer...mehrSanierung Badezimmer - Bitte um euren Rat!
Kommentare (3)Hallo Katharina, ich habe einen Schnitt angelegt, auf dem man gut sieht, wie viel Raum man über der Toilette hat in Bezug auf den Kniestock. Die Vorwand könnte man 400mm vor die Wand setzen, dann hat man in meinen Augen genügend Freiraum, um sich zu setzen (ohne sich den Kopf zu stoßen). Die 400mm würde ich dann direkt in der Dusche für die Sitzbank nutzen - die Gestaltung könnte man optisch fortsetzen, damit ein schönes Gesamtbild entsteht. Für die eigentlichen Aufteilung könnte ich mir Folgendes vorstellen (beginnend bei der Dusche / gegen den Uhrzeigersinn): große Dusche mit Sitzbank - hinter der Armatur könnte man auch über eine Vorwand nachdenken, die dann eine Nische für Duschutensilien aufnimmt die Vorwand der Sitzbank läuft weiter und ergibt den Bereich für das WC und die, in den Trockenbau eingelassene, Badewanne die Wanne wird eingepasst mit einem Podest, das sich über die Fensterwand bis hin zum Waschtischmöbel entwickelt vor dem Fenster entsteht so Stauraum in Sockelbereich und eine Sitzmöglichkeit direkt vor dem Fenster (so bleibt der Bereich neben der Tür frei und gibt einen schönen offenen Blick in den Raum das Waschtischmöbel beinhaltet einen raumhohen Schrank in der Ecke, zwei Waschtische und evtl noch einen weiteren Hochschrank / Unterbauschrank die Badewanne unterschneidet den Trockenbau - das ergibt eine Nische, die toll beleuchtet werden kann und gleichzeitig Platz bietet für Armaturen und Dekoration. In meinen Augen müssen moderne WC-Anlagen nicht "versteckt" werden - auch durch die geringe Höhe fallen diese nicht so sehr ins Auge, wie das im Grundriss manchmal den Anschein erweckt... Ich hoffe damit einen Anstoß gegeben zu haben - bei Fragen gerne anschreiben oder anrufen... Beste Grüße aus Hamburg und einen schönen Wochenausklang, Patrick Ostheimer...mehrGrundriss Planung Unterstützung
Kommentare (9)Hallo Dagmar, Ihr Grundriss hat eine besondere Schwierigkeit: das Bad liegt in der Mitte und trennt somit die Wohnbereiche. Bei der Entstehung das Hauses war das sinnvoll, jetzt stellt sich die Frage, ob Sie den Aufwand machen möchten und das Gäste WC an eine Stelle des EGs zu verfachten. Da das Haus unterkellert ist, halte ich das - unbesehen, wohlbemkert - für möglich. Am Ende ist es auch eine Frage des Budgets. Zu Ihren Gedanken: die Wand zwischen der Bestandsküche und dem Bestandwohnzimmer ist eine tragende. Die zu entfernen oder zu durchlöchern, wird mithilfe eines dicken Trägers möglich sein, aber ebenfalls aufwändig und muss zwingend geprüft werden. Die Nische des Bestands-Schlafzimmers wegzunehmen, wird vermutlich keine Herausforderung sein, da wird in der Decke etwas sein, dass die Wand von oben auffängt (Aber auch dies muss geprüft werden. Zeichnung und Realität liegen bei Altbauen oft lustig weit auseinander). Die Wand vom Eingang zu verlängern, halte ich für wenig sinnvoll: denn was möchten Sie mit dem Flur, der dann entsteht, anfangen? Da könnte man besser die Nische nur begradigen. Meine Überlegung geht in eine etwas andere Richtung. Vielleicht möchten Sie die Küche auf die andere Seite legen? Wasser/Abwasser durch den Keller dorthin zu legen dürfte leichter sein, als die tragende Wand zu entfernen. Wenn Sie die Nische herausnehmen, hätten Sie eine Verbindung zum Esszimmer und mit vergrößerten Türöffnungen bekommen Sie auch den "Flow" zum Wohnzimmer. Das Fenster im neuen Esszimmer zu verbeitern, wäre schick - aber auch hier ist es wieder eine Kosten-Nutzenfragen. Das das Fenster darüber optisch durch den Balkon zurücktritt, könnte man hier die optische Ungleichheit der Fassde verschmerzen. Ich habe das Büro zugunsten einer Garderobe etwas kleiner gemacht. Dieser Bereich wird so gerne vergessen und das führt nachher zu optischer Unruhe, besonders bei einem offenen GR. Welchen Stellenwert hat das Büro bei Ihnen? Zu den Stufen: wenn die Höhen nicht passen, ist es ein Problem, das nur sehr schwer zu beheben ist, wenn überhaupt. Hierzu wären Schnittzeichnungen notwendig. Wennn es um eine optische Verbesserung geht - ich habe mal aus dieser Treppe: diese hier gemacht: Ja, es war ein Aufwand. Der Terrazzo hat sich gewehrt, aber am Ende aufgegeben. Auf der Grundlage konnte der Treppenbauer diese tollen Stufen anbringen und das hat den Gesamtlook des Hauses um 200% verbessert und war jeden Cent wert. (Auch, dass es jetzt eine ordentliche Garderobe gibt.) Was meinem Sie? Können Sie mit diesen Anregungen etewas anfangen? Herzliche Grüße NIC...mehr- vor 6 JahrenZuletzt geändert: vor 6 JahrenChristoph L. hat habes-architektur gedankt
- vor 6 JahrenZuletzt geändert: vor 6 Jahren
- vor 6 JahrenChristoph L. hat Julia Mittmann Innenarchitektur gedankt
- vor 6 Jahren
- vor 6 Jahren
- vor 6 Jahren
- vor 6 Jahren
- vor 6 Jahren
- vor 6 Jahren
- vor 6 JahrenZuletzt geändert: vor 6 Jahren
- vor 6 JahrenZuletzt geändert: vor 6 Jahren
- vor 6 Jahren
- vor 6 Jahren
- vor 6 Jahren
- vor 6 JahrenZuletzt geändert: vor 6 Jahren
- vor 6 Jahren
- vor 6 Jahren
- vor 6 Jahren
- vor 6 Jahren
- vor 6 JahrenChristoph L. hat Julia Mittmann Innenarchitektur gedankt

Gesponsert
Laden Sie die Seite neu, um diese Anzeige nicht mehr zu sehen


























FINDHUS