Ideen und Anregungen für Grundriss im Neubau 11x10
vor 6 Jahren

Gesponsert
Laden Sie die Seite neu, um diese Anzeige nicht mehr zu sehen
Hallo liebe Community,
als stille Mitleser sind wir von den vielen Vorschlägen und kreativen Ideen die hier gemacht werden so was von beeindruckt und begeistert,
dass auch wir uns bei unserer Hausplanung noch etwas Input erhoffen.
Vielleicht vorweg etwas zum Vorhaben:
Wir haben ein Grundstück mit ca. 23x30m (BxT)
Die Ausrichtung ist nicht superoptimal, da der Großteil des Garten Richtung O-SO zeigt, aber man kann es sich nicht immer aussuchen :)

Gebaut werden soll eigentlich ohne Keller
Für das Baugebiet gibt es recht strenge Vorgaben die den für uns perfekten Grundriss nicht gerade einfachen machen.
- Baufenster 11x10m (+ 3,5m für Garage/Carport)
- 2 Vollgeschosse mit Flachdach
- die Geschossfläche des OG darf max 85% des EG betragen <- das ist für uns eine riesige Herausforderung einen vernünftigen Grundriss (mit WOW Effekt) zu erstellen
Vielleicht noch ein paar Informationen zu den Sachen die wir gerne haben möchten
- offener Wohn/Ess/Kochbereich
- in der Küche eine Kochinsel <- wäre superschön, ist aber kein Muss
- am liebsten eine gerade Treppe <- gefällt uns optisch einfach am besten -> aber kein Muss
- die im OG nicht bebaute Fläche, soll als Balkon nutzbar sein
- wünschenswert wäre auch ein Zugang vom Schlafzimmer zur Ankleide und weiterführend zum Badezimmer
- 2 Kinderzimmer <- sollen später auch umgenutzt werden (Büro/Gästezimmer)
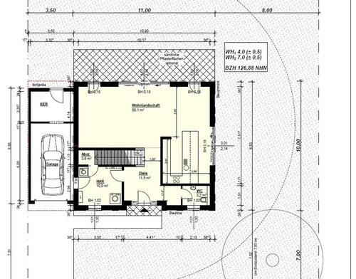
Anbei schon ein paar Grundriss Ideen vom Architekten, welche aber noch keine Jubelsprünge in uns ausgelöst haben.


Und hier ein Grundriss den wir uns überlegt haben, den wir uns überlegt haben.


Wir würden uns sehr über ein paar Ideen, Anregungen und vor Allem Verbesserungsvorschläge freuen
Viele Grüße David & Denise

Laden Sie die Seite neu, um diese Anzeige nicht mehr zu sehen
stsabrina
David & DeniseUrsprünglicher Verfasser
Ähnliche Diskussionen
Tipps und Ideen für unsere Küchenplanung (Neubau)??
Q
Neubau-Einfamilienhaus - Anregungen, Ideen aber auch Kritik
Q
Brauchen Anregungen und Tipps beim Grundriss von unserem Umbau
Q
Feintuning Grundriss Neubau - Tipps und Tricks
Q
David & DeniseUrsprünglicher Verfasser
stsabrina
Ch.
stsabrina
Ch.
David & DeniseUrsprünglicher Verfasser
Katharina John
stsabrina
David & DeniseUrsprünglicher Verfasser
stsabrina
Katharina John
David & DeniseUrsprünglicher Verfasser
David & DeniseUrsprünglicher Verfasser
David & DeniseUrsprünglicher Verfasser
Katharina John
Katharina John
Alexander Lange
Ru Va
Ru Va
Alexander Lange
KK-HausBau
lalelu21