Hallo Community,
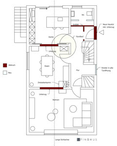
Wir haben ein Haus gekauft (Baujahr 1955) und möchten nun an den Umbau gehen. Grundrisse haben wir schon viele entworfen, aber irgendwie fehlt das gewisse "Etwas". Nun hoffe ich auf eure zündenden Ideen, wie unser Erdgeschoss zukünftig aussehen könnte.
Leider ist unser Sanierungsbudget sehr klein
Nun aber für eure Ideen ein paar Informationen. Wir sind 3 Personen (2 Erw., 1 Kind - 6 J.). Es muss nur das EG geplant werden. Eingang Bereich muss auch verändert werden(zu klein) Dazu sollen gehören: Wohnzimmer, Küche/Esszimmer, Gästetoilette u. Küche und Esszimmer müssen nicht zwangsläufig in einen Raum; wir sind aber für beide Räume in einer offenen Bauweise
abgeneigt
.
Hm, mir fällt momentan nichts weiter ein; falls noch Fragen sind, immer her damit.
Freu mich schon auf eure Vorschläge und danke euch schon mal im Voraus.
FINDHUS
Ähnliche Diskussionen
Idee für neuen Grundriss in Wohnung
Q
Grundriss, neue Aufteilung für 3. Kinderzimmer
Q
Grundriss Möbel stellen - bin dankbar für jeden Vorschlag
Q
Welche Lösungen gibt es für diesen Grundriss?
Q