EG und Keller Wohnung - das unloesbare Desing Dilemma
vor 4 Jahren
Hervorgehobene Antwort
Sortieren nach:Älteste
Kommentare (15)
- vor 4 JahrenAndreas hat Nicola Bushuven Interior Consulting gedankt
Ähnliche Diskussionen
Ratlos nach 1 Jahr Planung
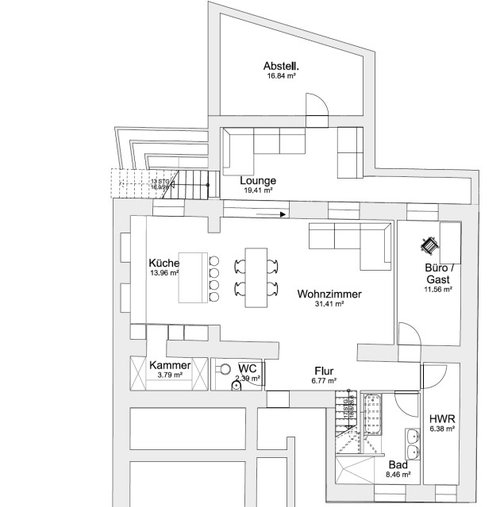
Kommentare (10)Mir sticht einiges ins Auge. Im EG: • Sehr schöner, großzügiger Eingangsbereich (aber: Schrankbreite ungünstiges Maß) • Wohnzimmer liegt sehr ungeschützt mitten in allen Laufwegen mit Kellerabgang im Rücken (wenn man das soo offen mag, ist es natürlich ok) • Wand für den Fernseher liegt direkt neben dem Ausgang, also ziemlich im Fokus • Sehr wenig Wandfläche für Bücher etc. (u.a. durch Lage der Eingangstür direkt an der Wand) • Funktion der Bar müsste man kennen, aber: ist dort auch noch ein Wasseranschluss etc.? Sonst recht weit von der Küche entfernt + Innenmaß 2.99 reicht gerade nicht für übliche Küchenmöblierung • Treppenraum ist relativ funktionslos für relativ großen Flächenverbrauch • geradläufige Treppe passt vermutlich nicht, da der Raum für den Antritt fehlt • Zugang zur Speisekammer durch die Küchenzeile? Wenn ja: dran denken, dass dies auch der Abstellraum für Staubsauger etc. sein wird. bzw. evl. weiteren schnell zugänglichen Stauraum vorsehen Im OG: • Die Versprünge in der Flurwand und vor allem das WC werfen das schöne offene und geradlinige Konzept komplett über den Haufen • Kinder-WC funktioniert an der Stelle m.E. nicht (Kopfhöhe bei halber Treppenhöhe= halbe Raumhöhe= zuwenig) + WC ohne Waschbecken ist Mist •Außenwände ELW sollten aus Schallschutzgründen, evl. Brandschutzgründen und zur sinnvollen Positionierung der Treppe an einer Innenwand möglichst übereinanderliegen • Größe ELW nach Abzug Geschosstreppe evl. zu klein im OG für Bad und Schlafzimmer mit Stauraum? (17,4 qm - mind. 3 qm = 14,4 qm) • Badewanne am Schlafzimmer ist schön, aber praktisch? (Überschneidung der Nutzerzeiten, unterschiedliche Raumtemperaturen) • Badewanne sichtbar für Kinder und deren Besucher könnte ab einem gewissen Alter unangenehm sein - bei geschlossenem Vorhang/Sichtschutz ist aber das Konzept wieder hinüber • doppelter Flur im Schlafzimmer hinter dem Kopfende + auf der anderen Seite der Weg an der Ankleide vorbei - zuviel/unnötiger Verlust für Verkehrsfläche • L-förmige Räume (Gast und Büro) ungünstiger Schnitt, schwer möblierbar bzw. schmale Raumteile kaum nutzbar, die Räume werden selbst bei maßgerfertigter Möblierung recht eng wirken • WC im Büro liegt ungünstig und räumlich störend, nimmt den dahinterliegenden Räumen das Tageslicht • Büro als Teil der Raumfolge Ankleide, Bad, Schlafen eher ungünstig, wirkt eher wie ein Hauswirtschaftsraum Um es zusammen zu fassen: Ich würde auch denken, dass ein Architekt Ihnen helfen könnte, Ihr konkretes Raumprogramm und Ihre ästhetischen Vorstellungen in einen adäquaten Entwurf umzuwandeln. Schade, dass Sie bisher so schlechte Erfahrungen gemacht haben......mehrWintergarten wird eine Küche - Hilfe
Kommentare (62)die groben Preise dazu schrieb ich doch schon: Garagenzugang und WC sind für das, was man danach bekommt sicher nicht teuer. Zumal die Sanitärarbeiten im Keller eh schon in die Hand genommen werden (Verziehen der Küchenleitungen). Da fällt eine Modifikation der WC-Leitung in der ehemaligen Küche nicht ins Gewicht. Und die Tür zur Garage müsste auch erneuert werden, so daß man eigentlich nur die neue Öffnung als Mehrpreis rechnen müsste. Derzeit gibt es nur einen extrem schlanken Flur, und wenn man nach oben will, hat man das Gefühl, die Wohnung zu verlassen, weil man in diesen Flur geht, um die Treppe zu nutzen. Eine geringe Investition für einen Wunschzugang und einen großen Eingangsbereich, dazu die Möglichkeit, die Eingänge mit Garderobe akustisch und optisch zu trennen, und dafür dann die Treppe nach oben gestalterisch mit in die Wohnebene (EG) einzubeziehen. ***** Eva, stellen Sie doch erst einmal fest, welchen Plan Sie verfolgen wollen, dazu wird dann eine Anforderung erstellt, deren kosten zu ermitteln sind. Anders macht das überhaupt keinen Sinn. Das sieht dann im Groben ungefähr so aus: - Türöffnung von Garage in Vorflur erstellen - Haustür liefern und montieren (Garagenzugang) - Öffnung für Zimmertür von Vorflur zu Treppenhaus herstellen - Zimmertür liefern und montieren (Tanzglastür, gefrostet?) - Durchgang von Wohnraum zu Treppenhaus Zangenfrei (deckenhoch?) herstellen - Trennwand in vorm. Küche nach Plan erstellen (GK) - neuen Durchgang (ohne Zarge) zu Garderobe herstellen - Tür zum WC inkl. Durchgang herstellen - Anschlüsse für neues WC verziehen / herstellen - Anschlüsse für vorm. WC rückbauen - neues WC nach Plan mit raumhoher Vorwand hinter WC herstellen. - Wintergarten zum Wohnraum umbauen (Mauerwerk, gedämmt, Decke als Fensterelement gem. Bestand, ...) - Schiebe-Hebtüranlage vom Anbau zum Garten liefern und montieren - Öffnung der Wände vom Haupthaus und Anbau zum Wintergarten gem. Plan (inkl. Statik) - Bodenbelag in Vorflur und Garderobe nach Anforderung herstellen - Bodenbelag im übrigen EG nach Anforderung herstellen - ... ...etc......mehrGrundriss: Position der Küche ?
Kommentare (28)und ein Wort zu Charlie's Einrichtung: Sie haben einen so schönen großen Raum, warum parzellieren Sie ihn so sehr, daß Sie an allen virtuellen Grenzen von Funktionsraum zu Funktionstraum etwas genau auf diese Linie stellen? Betonen Sie lieber die einzelnen Funktionsgruppen, legen sie Inseln an, zB. durch einen Teppich unter der Sitzgruppe, die Beleuchtung, eine Pflanzengruppe, etc... Aber bauen Sie lieber keine Grenzen aus Möbeln, wenn Sie die gefühlte Großzügigkeit und Weite erhalten wollen. Ansonsten auch hier meine Empfehlung: "D" - und aus nahezu den gleichen Gründen, wie ganz am Anfang geschrieben ;)...mehrPlan für Traumhaus
Kommentare (145)Gegen das Bett am Fenster spricht gar nichts, es ist der Raum dahinter, der von zwei Seiten offen ist und zudem ein Medienraum beinhaltet. Für einen Raum der Ruhe und des Rückzuges ist er dadurch zu wenig vor Überraschungen geschützt und auch einfach zu laut. Ich kann mir vorstellen, daß Sie einige Anforderungen nicht in einem Raum zusammenfassen sollten. Machen Sie sich ein Zuhause für die Woche, mit weniger Menschen und einer Architektur die genau dazu passt. Wenn dazu eine offene Küche für das tägliche Essen gehört und eine abgeschiedene "Chaos-Küche" für Backorgien, dann ist das so. Ich rate nur dazu, ein Medienzimmer auch so anzulegen, daß es ein reines Medienzimmer ist, ein kleiner Egoisten-Rückzug in der man die Welt kurz hinter sich lassen kann. Nicht in einem Durchgang der zu Ankleide und Bett führt. Ebenso würde ich dazu raten, die Ankleide zu überdenken. Sie haben die Fläche einer Boutique, machen daraus aber einen Schrankraum = einen Raum voller Schränke. Kleidung kann so viel anders präsentiert werden, und so viele Bekleidungsgeschäfte und Boutiquen können uns da tolle Beispiele sein. Und wenn diese Boutique einmal entstanden ist, ist die Frage, ob man jedesmal auf dem Weg zum Bett oder zum Bad dort durchgehen will, oder soagar in dieser Boutique in einer Wanne liegen will? Sollte der Wannenblick nicht ebenso erholsam und schön sein wie der Blick vom Bett aus? Ich durfte mal einen Bungalow betreten, der zwischen der "öffentlichen Zone" und der "Privaten Zone" des Hauses einen kleinen "Durchgang" hatte, der sich wie eine kleine Raumblase weitete und dort einen kleinen feinen Medienbereich ergab. Das war phantastisch. Und erst, wenn Ihr Zuhause der Woche Formen angenommen hat, sollte es Räume oder Raummodifikationen geben, die auf das Wochenend-Wohnen ausgelegt sind. Sie schreiben ja selbst: ein kleiner Runder Tisch, wo man sich zu zweit nicht verloren fühlt, und ein 12-Personen-Tisch, wenn mal wieder alle gleichzeitig da sind, das wäre toll. Das erfordert aber auch zwei unterschiedliche Räume, oder zumindest Raumbereiche. Sonst wäre es ja kein empirisches Hindernis nur den großen Tisch zu nehmen, auch wenn man allein daran sitzt. Jeder Bereich in Ihrem Zuhause hat eine ganz eigene Aufgabe, der er gerecht werden sollte. Ein lebendiger Essbereich für die ganze Familie ist da ganz anders als der Wohnraum-Bereich, der eher leiser ist und wo die Gespräche innerhalb der Sitzenden bleiben, ist wieder ganz anders als die Küche, in der konzentriert gearbeitet oder mit mehreren auch gelacht wird, und ab und an rennt jemand mit den Abfällen raus. Ebenso ist ein Schlafplatz etwas anderes als die Privatboutique, als der Medien-Rückzugsraum, und das Bad zum Schlafraum sollte auch klar zum Schlafraum gehören und nicht erst durch mehrere "laute" Bereiche erreichbar sein. Der Eingang sollte dabei alles zusammenfassen, was das Haus noch zeigen wird. Es ist das "Hallo", die "Visitenkarte" des Zuhauses. Er sollte eine klare Einladung sein, ein Opening für alles, was noch kommt, und natürlich auch eine Schnittstelle zwischen Innen und Außen, die genug Platz bietet, sich auf das Ankommen oder Losgehen vorzubereiten, durch Garderobenplatz, vllt. ein WC, eine Sitzgelegenheit und Schlüsselablage und genug Platz für Schuhe der Gäste. Den Gästen vorbehaltene Platz sollte aber nicht die gesamte Woche über zeigen, daß keiner da ist und das Haus doch viel zu leer und groß ist. Auch hier ist eine feine aber deutliche Trennung zwischen "Mein Zuhause" und "Meine Freundesburg" geschaffen werden. Mir fallen da spontan mindestens 5 verschiedene Möglichkeiten an, so daß ich nicht zu eng um nur eine Lösung herum versuchen würde, das zu planen. All das, was ich bis hierhin angesprochen habe hat gar nichts mit dem ziehen von Wänden zu tun, sondern mit der Frage, wie Sie wohnen. Und in erster Linie leben wir glücklicherweise alle in der Zeit und erleben nicht alles gleichzeitig. Ebenso sollten wir auch unsere Räume gestalten, daß wir nicht sagen, daß ein Raum alles, und erst recht nicht alles glecihzeitig erfüllen können muss, besonders nicht unvereinbare Aufgaben (zB. Ruhe vs. Laut). Ja, es gibt "Geschmack" und leider auch viel mehr Meinung als Wissen, aber wenn es um Wohnen geht, geht es in erster Linie um den Menschen und seine Lebensgewohnheiten darin. Und das ist eine Konstante mit bestimmten gesetztmäßigkeiten. Alles abweichende ist einfach nur experiment und "fehl am Platz". Es hat seinen Grund, daß Ihnen die "klaren und strukturierten" Entwürfe von Frau Redecker gefallen, und es hat seine Gründe, warum sich dieses "oh ja!" Gefühl in Ihrem letzten Entwurf, auch wenn er doch scheinbar alles enthält, was Sie wollen, einfach nicht einstellen will. Es sind viele Gedanken eingeflossen, aber kein Gedanke an den Menschen und wie er darin wohnt. Ein Sprichwort sagt "das erste Haus bauen wir für unsere Feine, das zweite für Freunde, und das dritte für uns selbst". Das hat ganz klar damit zu tun, daß wir zunehmend die "will haben" gegen "so will ich leben" eintauschen, weil wir uns zunehmend durch das Leben in den drei Stadien der Entwürde kennenlernen. Auch etwas, was mit Zeit zu tun hat. Jeder Link zu Grundrissen, die Sie lieben werden, wird dennoch nicht zu Ihnen oder dem Grundstück passen, Daher fragte ich vor einem Jahr noch, welcher Lebens-Stil es vllt. werden darf. "Der eher Nordische" schreiben Sie da, und jetzt präsentieren Sie ein Gebäude, da alles, nur nicht die nordische Architektur widerspiegelt. Innen und Außen bedingen sich ganz klar. Ich kann nicht in den ersten Gedanken nur das Innere betrachten, und das Äußere einfach folgen lassen. Allein die Ramhöhe ist eklatant entscheidend. Und je nach Raumgröße hat ein und dieselbe Raumhöhe eine völlig andere Wirkung, weshalb es eben doch eine Rolle spielt, daß nicht ganz kleine Räume neben ganz großen liegen, ohne die Wirkung dazu zu betrachten. Wir alle haben mal lange Zeiten investiert, um "den richtigen Menschen" zu finden. Freunde, Zahnarzt, Bankberater, Lieblingsrestaurant, Hausarzt, Florist, Bäckerei der Lieblingskuchen,... Niemand sagt, es wird mit der Suche nach Planern leichter. Es braucht jemanden, der Ihnen die richtigen Fragen stellt, und sich aufgrund seines Wissens auch mal über Ihr "das muss so!" schweigend hinwegsetzt, um Ihnen aufzuzeigen, daß Sie das richtige wollten, Ihre Vorstellung der Umsetzung nur nicht passt. Fast jeder großartige Entwurf beginnt mit einer einfachen Skizze auf einem Stück Papier. Da wird das Grundstück hingekritzelt, die Licht und die Windrichtung in großen Linien wie ein Gedanke zu Papier gebracht, und einzelne Kreise in unterschiedlichen Größen definieren die einzelnen Bereiche die wichtig / notwendige sind. Zwischen den Kreisen und um sie herum sind deren Beziehungen durch Linien und Pfeile angedeutet. Und je größer eine Fläche wird, umso wichtiger ist es, daß die einzelnen Bereiche untereinander kleine Einheiten bilden und diese wiederum sich zu größeren verketten. Daraus entstehen Bewegungsmuster und Verbindungszentren. Und erst dann wird konkretisiert. Genau das ist der Grund, warum hier niemand eine Skizze bieten kann und erst recht nicht an einem Bestand etwas verändern kann, ohne gleich alle Zusammenhänge zu zerstören. Die ersten Gespräche, die sich nur um das Leben drehen, sind die wichtigsten, um ein Gefühl für das Leben in dem Haus zu bekommen. Alles andere (Hochbauarchitektur) ist für den Profi "nur" Handwerkszeug, auf das er später zurückgreift, wenn er die Inhalte aus dem Gespräch und dem Eindruck der Landschaft mit den Vorgaben des Geländes verknüpft....mehr- vor 4 Jahren
- vor 4 JahrenAndreas hat Nicola Bushuven Interior Consulting gedankt
- vor 4 Jahren
- vor 4 JahrenZuletzt geändert: vor 4 Jahren
- vor 4 Jahren
- vor 4 Jahren
- vor 4 Jahren
Gesponsert
Laden Sie die Seite neu, um diese Anzeige nicht mehr zu sehen







sopame