Houzz Logo Print
kirappunkt

Kaminlösung - Schornstein

vor 3 Jahren
zuletzt bearbeitet:vor 3 Jahren

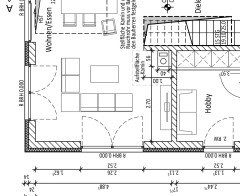
Hallo liebe Community,hinsichtlich des anstehenden Hausbaus und damit einhergehender Grundrissfragen stellt sich folgende Problematik:Im Wohnzimmer ist ein Panoramakamin erwünscht. Dieser soll aus Richtung Essen ebenfalls (zumindest in Teilen) einsehbar sein. Da momentan noch Unklarheiten bestehen, ob dieser raumhoch oder "halbhoch" sein soll, stellt sich die Frage, wo der hierfür notwendige Schornstein positioniert werden soll. Denkbar wäre bündig zur Treppenwand, in die Ecke verschoben oder in den benachbarten Hobbyraum. Gibt es hierzu Meinungen, Ideen oder Alternativen?Lieben Dank vorab.

Kommentare (2)

  • vor 3 Jahren





  • PRO
    vor 3 Jahren

    Hallo Kira,


    Glückwunsch zum Hausbau!


    Wie immer hängt alles mit allem zusammen. In Eurem Fall würde ich erst mal vorschlagen das gesamte Wohnzimmer korrekt einzuzeichnen - da meine ich u.a. das Sofa, bzw. Sessel. Diese mal korrekt vor den Fenstern platzieren, diese dann in Frage stellen ob sie so Sinn machen...? Braucht man beide Fenster bodentief und mit jeweils zwei Flügeln? Soll man evtl. das untere Fenster noch in Richtung TV schieben, so dass das Sofa nicht beeinträchtigt wird? Das ist relevant, um auch Beleuchtung und Elektro korrekt planen zu können.


    Bitte auch den Esstisch in realistischen Größen einzeichnen und auch das Durchgangsmaß zum Kamin eintragen lassen. Kann man auch auf der Baustelle mit Tape auf der Bodenplatte darstellen, um ein Gefühl für die Größen zu bekommen.


    Bzgl. Kamin mag ich lieber die raumhohen Lösungen. Anbei einmal zwei Beispiele, um sich die Situation vorstellen zu können.

    WOHNUNG IM HUNSRÜCK · Mehr Info

    Der halbhohe Kamin wird gerne auch als Ablagefläche für Fotos etc. genutzt. Finde ich perslönlich nicht so toll.


    Holz. Stein. Haus. · Mehr Info

    Raumhoher Kamin. Gibt Ruhe und definiert den Raum klar.


    Also, viel Erfolg & Grüße

    Dominic