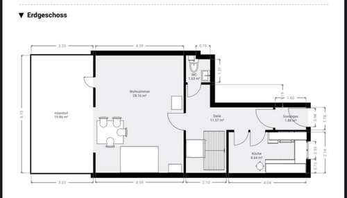
Küche vergrößern - zum Flur öffnen?
Vor 10 Monaten
Hervorgehobene Antwort
Sortieren nach:Älteste
Kommentare (12)
- Vor 10 Monaten
- Vor 10 Monaten
Ähnliche Diskussionen
Sanierung Reihenhaus - Grundriss EG - offene vs. geschlossene Küche
Kommentare (23)Hallo Johanna, du analysierst das ja sehr gut. Die Vor- und Nachteile sind klar. Und gilt es für euch abzuwägen, wo eure Prioritäten sind, was ihr unbedingt wollt, dann setzt man die eine Sache, die fix ist, und dann ergeben sich daraus die anderen. Deine Angst gilt vor allem dem Stauraum. Der Vorteil wäre ein fließender Übergang mehr ein Miteinander. Das aber möchtest du durch Querstellen von Schränken unterbrechen – wegen des Stauraums. Kosten klar sind immer ein Thema. Aber ich würde die Sorge erst mal außen vor lassen. Substantielle Eingriffe macht man am besten jetzt, später scheut man es wegen des Drecks und macht vielleicht Sachen wieder rückgängig, die man jetzt renoviert. Ich rate immer, das im ersten Schritt der Grund auf jeden Fall umgesetzt wird. Sparen kann man dann an Möbeln etc. Ich rate dir daher: 1. eine Stauraumplanung zu machen. Wie viel brauchst du wirklich? Was kann wo anders hin, z.B. Raclette in den Keller. 2. Im Haus mal entweder auf dem Boden abkleben oder besser noch mit Kisten mal die Wohnzimmermöbel stellen, damit ihr seht, ob es euch da zu eng wird. Ich mache mal einen Vorschlag, wie ich es mir vorstelle, dass es passen könnte: Die Wand zur Küche würde ich nicht versetzen, sondern an diese Hochschränke setzen (alle Küchenmöbel grün). Hier kann man überlegen, die Tür zu lassen oder für die Einkäufe eventuell auch nur eine Durchreiche zu planen. Dann eine Zeile rechts in der Länge wie jetzt Küche und Essen, die dann im Wohnbereich in eine Sitzbank (Stauraum drunter für Spiele, Geschenkpapier, Bastelsachen...) übergeht, mit der man dann insgesamt nicht ganz so weit in den Wohnbereich rein rückt. Den Wandschrank würde ich so lassen, könnte ja auch ein Bücherregal werden oder man könnte wenn man den Kücheneingang vorne zu macht, hier einen umsetzen, was den Blick vom Eingang direkt nach hinten zieht. Im Eingang würde ich die Abstellkammer auflösen und einen Garderrobenschrank (hellblau) direkt zum Flur stellen. Der dahinterliegende Raum (gelb) kann entweder der Toilette zugeschlagen werden als Dusche (falls oben nur ein Bad ist, hat man mit Teenagern eine Ausweichmöglichkeit) oder man macht eine Schiebetür und hat von dort eine Abstellkammer. Im Wohnbereich habe ich mal in blau Schränke in Sideboardhöhe eingeplant, und das Sofa zum Teil davor und vors Fenster gestellt. Die Schränke hinter dem Sofa könnte man als Truhe organisieren, also unsichtbare Klappe von oben für z.B. die Sitzpolster für die Terrasse. Oben drüber kann man noch ein durchgängiges Board oder auch zwei für Bücher anbringen, an der Wand zur Treppe dann könnte auch ein hoher Schrank, der den Fernseher integriert, stehen. Man kann auch über einen Beamer nachdenken und die Wand hinter der Sitzbank dafür nutzen. LG, Anke...mehrEine kleine schöne Küche zaubern
Kommentare (42)Hallo, zur Küche noch eine Frage: Wir müssen an allen Enden jetzt “budgetsensitiv“ arbeiten. Die Küchenzeile passt perfekt, wenn wie hier von Anke vorgeschlagen, der eine 45er US auf 15cm gestutzt wird und zB als Handtuch-Fach offen bleibt. Die Küche aufstellen schaffen wir alleine mit unseren Haus-und Hofhanderwerkern, aber es gibt nicht die erforderliche technische Ausstattung, um den US (einer Bulthaup-Küche würdig) zu kürzen. Könnte man den US zerlegen und in einem Baumarkt vom Zuschnittservice die Teile auf die geeignete Größe bringen lassen, oder wird das Murks? Ich würde es ja auch lieber richtig professionell machen lassen, aber wir müssen jetzt leider sparen :-/ Für Ratschläge und Meinungen wie immer sehr dankbar: moorfee...mehrWanddurchbruch und Zugang Küche
Kommentare (23)Danke an alle für die weiteren Anregungen - das sind jede Menge Ideen und vieles ganz neu gedacht. Die Wohnung ist in München und nachdem dort Wohnraum knapp und teuer ist, ist für mich das kleine Bad in Ordnung - lieber habe ich mehr Wohnfläche. Es haben schon Familien in der Wohnung gewohnt. Ich beabsichtige aber alleine einzuziehen. Die Idee mit dem Rundlauf werde ich in meinen Überlegungen mal einbeziehen (also rechts und links der Wand einen Durchbruch zum kleinen Zimmer). Ansonsten bleibt es wohl bei dem Grundriss, wobei ich die Küche zum Flur zumachen und zum Esszimmer weiter öffnen möchte - einfach weil mir auch der Kontakt zu meinen Gästen wichtig ist. Wenn ich einen mittleren Durchbruch zum Wohnzimmer mache, könnte ich ich mir gut Steel Frames vorstellen, wie sie gerade von Holzconnection angeboten werden. Dazu müsste ich mich mal beraten lassen. Meine Mieter ziehen Ende Oktober aus und dann kann ich vor Ort mir das Ganze mal ansehen und "visualisieren"....mehrKüche zum Wohnzimmer öffnen
Kommentare (11)Wie soll denn das eine Zimmer genutzt werden? Ob die jüngste Tochter mitkommt und wie lange sie dann noch bei euch wohnt scheint offen, hört sich aber nicht nach so lange an. Daher werfe ich auch mal die Überlegung in den Raum, das Zimmer planunten links als Küche zu nutzen. Das sollte kein Problem sein, da ja auch hier ein Bad anschließt. Den Vorteil würde ich darin sehen, dass man von der Küche einen Ausgang auf die Terrasse hat und der Esstisch in der Flucht zur Doppeltür steht. Mir wäre es lieber, wenn der Sofabereich in einer ruhigeren Ecke wäre. Die Schließung des Zugangs vom Flur aus würde einen Einbauschrank (mint) mit Waschmaschine und Co. ermöglichen. Die ehemalige Küche wäre dann das zweite Schlafzimmer oder wahrscheinlich so was wie Büro/Gästezimmer? Kann ich jetzt nicht einschätzen, ob das reicht. Bei mir wäre es wohl ein Büro und ich würde eine Schiebetür zum Wohnzimmer einbauen und so die Wohnung weiter öffnen....mehr- Vor 10 Monaten
- Vor 10 MonatenZuletzt geändert: Vor 10 Monaten
- Vor 10 Monaten
- Vor 10 Monaten
- Vor 10 Monaten
- Vor 10 Monaten
- Vor 10 MonatenZuletzt geändert: Vor 10 Monaten
- Vor 10 MonatenZuletzt geändert: Vor 10 Monaten
- Vor 10 Monaten

Gesponsert
Laden Sie die Seite neu, um diese Anzeige nicht mehr zu sehen
Weitere Diskussionen















Raumagentur ArteFakt