Schlafzimmer zu groß?
Vor 11 Monaten
zuletzt bearbeitet:Vor 11 Monaten
Hervorgehobene Antwort
Sortieren nach:Älteste
Kommentare (17)
Ähnliche Diskussionen
Schlafzimmer zu "Aufenthaltszimmer" umgestalten.
Kommentare (12)Hallo Nina, :) ich habemein Bett genauso wie deine Variante 2 in der Raumecke stehen, die Tür und Fenster sind an der selben Stelle. Ich habe witzigerweise auch 2 Nachtschränkchen ähnlich deinen, die habe ich neben das freie Bett übereinander gestellt. Das mindert ein wenig den Blick zur Tür wenn man im Bett liegt. Ich muss aber sagen dass mich die Tür nicht im geringten stört, da ich viel lieber Richting Fenster 'gucke' ! Das ist definitiv viel besser als das Bett gegen von den Kleiderschränken zu haben (das finde ICH gruselig!) Außerdem fühle ich mich wohler, wenn das Kopfteil an einer Wand steht, Abtrennung in Variante 1 hin oder her. Aber das müsst ihr selbst entscheiden bzw. vorab probieren wie bereits vorgeschlagen. Also ich liebe meine Kuschelecke an der Wand!! Ich habe die Bett-Ecke noch mit einer Wandverkleidung aus Holz versehen, um die etwas kalt wirkende Putzoberfläche durch das Holz gemütlicher zu machen. Weiterhin gefällt mir in deiner Überlegung, dass der Schreibtisch in Fensternähe ist! Ich habe auch meinen Schreibtisch und so einige Büroschränke (aber sie sehen nicht so aus) im Schlafzimmer. Die Anordnung ist etwas anders als bei dir, da mein Zimmer auch größer ist. Ich habe eine Abtrennung des Schreibtischbereiches in Höhe von etwa einem Meter und es hat weder mich noch meinen Partner irgendwie gestört, wenn man im Bett liegt, da der Arbeitsbereich dadurch nicht vom Bett aus einsehbar ist....mehrDesign Dilemma: Schlafzimmer und Ankleide
Kommentare (0)Hallo Houzzer, ich hoffe ihr könnt mir bei folgendem Design Dilemma helfen: Geplant ist die Umgestaltung eines Schlafzimmers und der angrenzenden Ankleide. Beide befinden sich im 1 OG, das Dach darüber soll im gesamten Geschoss geöffnet werden, um den Räumen mehr Höhe und Landhaus-Charme zu geben. Die Räume haben aktuell keine Schrägen, alle Wände sind etwa 2,50m hoch. Links neben dem Schlafzimmer befindet sich aktuell die Bibliothek: Im aktuellen Zustand ist das Schlafzimmer zu groß - ich mag es nicht, wenn man um das Bett herum viel Platz hat und das Schlafzimmer mit Schränken vollzustellen möchte ich auch nicht. Da die Fassade komplett neu gemacht wird, bin ich bei der Positionierung von Fenstern, sowie bei ihrer Größe sehr flexibel. Die Wand zwischen dem Schlafzimmer und der Bibliothek ist 34 cm dick und tragend. Das Koordinatensystem der Skizze entspricht in etwa den Himmelsrichtungen, nach Osten und Süden gibt es eine unverbaubare Fernsicht. Mir persönlich gefällt diese Variante: Dafür müsste die Ankleide zwischen die Bibliothek und das Schlafzimmer weichen. Wäre das eine gute Lösung? Habt Ihr andere Ideen?...mehrGrundrissplanung Stadtvilla
Kommentare (18)Sehr geehrter Herr Kollege Doppelhammer, wie schön, dass HOUZZ mitteilt, wenn neue Kommentare veröffentlicht werden. Andernfalls wäre ich nie auf Ihre Homesite „Populare“ gestoßen. Dort bieten Sie ja ein interessantes Konzept an. Ähnliches habe ich bereits 1999 zusammen mit Prof. Schmidt von der ETH Zürich und Prof. Donath von der Bauhaus-Universität in Weimar im Rahmen meiner Dissertation (erfolgreich verteidigt ebenda, 2002) untersucht. Seinerzeit ging es um die Semiotikveränderung digitale Kommunikation räumlich verteilter Design-Teams, allerdings in Erweiterung Ihres Ansatzes mit „verteilter Urheberschaft“. Die Idee war schon seinerzeit, Schwarmintelligenz“ so architektenübergreifend so zu kombinieren, dass „bessere“ und preiswertere Gebäude entstehen sollten. Nun was soll ich sagen, es nutzt ja alles nichts. Bessere oder gar preiswerte Architektur ist leider nie entstanden. Ihr Ansatz ist daher genauso falsch wie meiner es war. Auch wenn es mich etwas tröstet, dass ich eine Prädikatspromotion davon ableiten konnte. Die Wahl eines Architekten beruht auch heute noch auf Faktoren, die ganz anderer Natur sind. Das hat einen bestimmten Grund, der sich nicht mit digitaler Technologie nachbilden lässt – Vertrauen. Das Verhältnis zwischen einem guten Entwerfer und einem Bauherren gleich dem Arzt-Patienten Verhältnis. Der beste Arzt kann einem Patienten nicht helfen, wenn der die Diagnose anzweifelt und die Medikation ablehnt. Ein mittelmäßiger Arzt kann schon durch gutes Zureden und viel wichtiger Zuhören viel erreichen. Das ist leider in Ihrem – und auch in meinen, mittlerweile 20 Jahre altem Ansatz – völlig vergessen worden. Es geht bei guter Architektur immer um den Menschen „als Maß aller Dinge“ wir Prof. Hans-Busso von Busse, bei dem ich die Gnade hatte meine Diplomthese einreichen zu dürfen (1995 – leider bereits verstorben, aber sie werden als Münchner sicher wissen, dass er den ersten Teil des neuen Flughafens entworfen hat), in seinen Vorlesungen immer zu sagen pflegte. Ihr Ansatz kann aber sicherlich noch auf den Einsatz von EU-weiten VOF Verfahren hin überprüft werden. Vielleicht ist er dort nützlich. Für den täglichen Gebrauch ist er untauglich. Zudem ist er teuer. Wir vereinbaren seit Jahren, dass Bauherren Vorentwürfe mit uns erzeugen, die wir auf Stundenbasis abrechnen. Das Modell funktioniert seit 20 Jahren. Es minimiert die Risiken der Bauherren und honoriert die Arbeit des Entwerfers. Kommt es nicht zum Auftrag, werden nur diese Stunden abgerechnet. In der Regel kostet ein solcher Vorentwurf – das hängt vom Projekt ab – ca. 1.500,-€ bis 2.000,-€ bei uns (brutto, inkl. aller Nebenkosten). Dabei liefern wir IMMER auch eine KOSTENSCHÄTZUNG. Wie soll ein Bauherr sonst Entscheidungen treffen? Das ist in Ihrem 1.999,-€ Baustein aber noch gar nicht enthalten. Das bekommt man erst ab 2.999,-€. Das Leistungsbild umfasst aber noch nicht einmal die gesamten Bilder der HOAI für die Vorentwurfsphase. Für 5.000,-€ erhält man in der Regel für ein mittleres Gebäude einen kompletten Bauantrag, den man bei den Bauämtern einreichen kann. Wohl gemerkt als „Werk“, das laut Werkvertrag „mängelfrei“ und den anerkannten Regeln der Technik entsprechen muss. Wo leisen Sie das? By the way, ich kenne die Kammergesetze in Bayern nicht so gut wie die in NRW. Allerdings weiß ich von meinen eigenen GMBH Gründungen, dass der Begriff Architekt durch ein Artikelgesetz – und zwar in allen Ausprägungen – geschützt ist. Er kann und darf nur personenbezogen geführt werden. Mit kollegialem Gruß Dr. Th. Henkel...mehrAuf der Suche nach der optimalen Raumaufteilung im Schlafzimmer
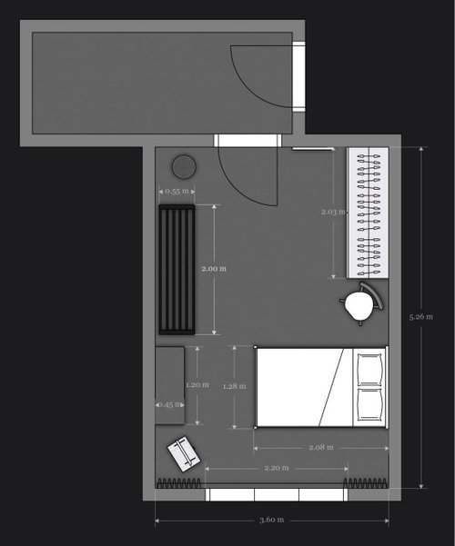
Kommentare (8)Hallo Sabrina, eigentlich ist der Schrank nicht zu groß für diesen großen Raum. So wie es jetzt angeordnet ist, fehlt evtl. die Ruhe und der Schutz, den man zum Schlafen braucht. Ein Bett mit dem Kopf direkt vorm Fenster ist ungünstig. Sie liegen quasi direkt im "energetischen Durchzug" zwischen Tür und Fenster. Man kommt auch nicht ans Fenster ran. Heizung direkt am Kopf ist auch schlecht. Ich würde den Schrank ebenfalls teilen und je 1 Meter in die Ecken auf der linken Seite stellen genau wie von Frau Fritsch vorgeschlagen. Dann haben sie eine schöne Nische für das Bett. Das Innenleben des Schranks kann evtl. neu gemacht werden, so dass jeder seinen Schrank hat. Links deshalb weil sie beim Reinkommen freie Bahn zum laufen haben, das schafft mehr Großzügigkeit (so wie bei Frau Fritsch). Sie könnten den Schrank nach oben bis zur Decke verblenden und die gesamte Wand incl. Schrank in derselben Farbe streichen oder tapezieren. Dann verschwindet der Schrank optisch und sie sehen nur noch das Bett in der Nische und die Kleinmöbel. Das kann ich mir sehr gemütlich vorstellen. Schöne dicke Vorhangschals dazu. Somit verliert der Raum auch seine Länge und hat bessere Proportionen. Die Frisierkommode würde ich vermutlich in die Nähe vom Fenster stellen. Die beste Position für dieses Möbel muss man einfach ausprobieren, wo es Ihnen angenehmer ist. Viele Grüße!...mehr- Vor 11 Monaten
- Vor 11 Monaten
- Vor 11 Monaten
- Vor 11 Monaten
- Vor 11 Monaten
- Vor 11 Monaten
- Vor 11 Monaten
- Vor 10 Monaten

Gesponsert
Laden Sie die Seite neu, um diese Anzeige nicht mehr zu sehen










Raumagentur ArteFakt