Lichtgraben für Kellerwohnung
Vor 9 Monaten

Gesponsert
Laden Sie die Seite neu, um diese Anzeige nicht mehr zu sehen
Hallo zusammen,
ich bin gerade dabei mein Haus in Eigenleistung zu errichten. Es wird ein MFH mit 2 Vollgeschossen und einem Keller. Der Keller bietet neben zwei Technikräumen noch Platz für eine Einliegerwohnung (ca. 50m²), welche natürlich so gut wie möglich lichtdurchflutet werden soll. Ich habe das Glück dass ich zwei aneinander angrenzende Bauplätze besitze und diese auch bebauen möchte (zweiteres mit Gartenanlage & Saunahaus - evtl. finden sich hierfür auch ein paar Profis im Gartenlandschaftsbau, die ich um Rat bitten darf).
Nun bin ich gerade an der Planung für potenzielle Lichtgraben. Thema ist hier, dass wir den Keller vor drückendem Wasser geschützt haben und in diesem Zuge auch das Haus 35 cm im Verhältnis zur Straße angehoben haben. Verlegen von Drainage-Rohr etc. ist selbstverständlich eingeplant.
Hierbei gibt es zwei Ansätze:


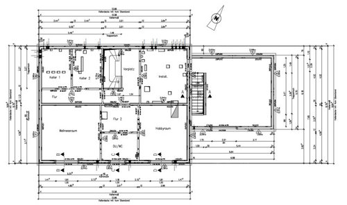
Anbei ein Bild des aktuellen Bauvorhabens:
Ein Problem könnte hier auch der Sickerschacht darstellen, welcher womöglich zu nahe am rechten Außenfenster sitzt um einen Lichtgraben zu ziehen. Hier bin ich auf eure Einschätzung gespannt.

Ich hoffe hier Hilfe zu finden und etwas Verständnis für die erst jetzige Planung zu erhalten, da ich die Außenanlage in Eigenleistung bauen möchte.

Laden Sie die Seite neu, um diese Anzeige nicht mehr zu sehen
Garten Design - Design Garten
Martin MeyerUrsprünglicher Verfasser
Ähnliche Diskussionen
Hallo - brauchen Hilfe beim EG-Grundriss!!!
Q
Ideen für ein HomeOffice im Keller
Q
Tageslicht in einer Kellerwohnung
Q
EG und Keller Wohnung - das unloesbare Desing Dilemma
Q
Garten Design - Design Garten
Martin MeyerUrsprünglicher Verfasser