Liebe Houzz-Community
,
wir haben gerade eine Wohnung gekauft. Entgegen dem allgemeinen Trend haben wir uns dabei verkleinert und radikal aussortiert. Damit sind wir sehr, sehr zufrieden.
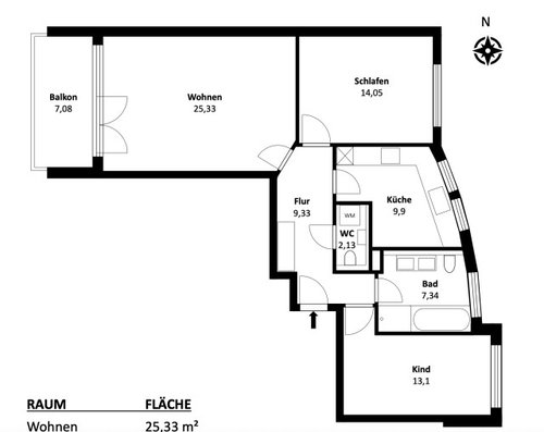
Die Wohnung hat aktuell 3 Zimmer, was mit den beiden Kids in einem Zimmer auch (noch) gut passt. Ich denke aber, dass wir in spätestens 4 Jahren die Kinder trennen möchten.
Ich habe ein paar vage Ideen für die zukünftige Aufteilung, freue mich aber noch auf Feedback aus der Runde. Es ist ja noch kein akuter Handlungsbedarf, ggf. benötigen aber gewisse Anpassungen Vorlauf (z.B. Austausch festes großes Fenster mit einem zum öffnen).
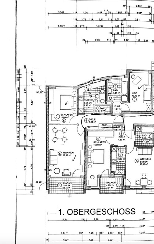
Wir haben auch noch eine weitere - aktuell vermietete - Wohnung in dem Haus (anderes Stockwerk), die wir mittelfristig als Büro, Computerzimmer, Fernsehzimmer, Rückzugsort, Stauraum etc. nutzen können. Deshalb brauchen wir für die 3 Zimmer selbst kein eigenes Büro oder riesige Schränke einplanen.
Schlafen ist aktuell übrigens Kinderzimmer, und Kind ist Schlafzimmer.
In der Küche passt ein kleiner Tisch rein, wir wollen aber im Wohnzimmer auch noch möglichst einen Esstisch.
Die Küche und die Bäder wurden vor 3 Jahern vollständig renoviert und sind genau nach unseren Vorstellungen. Das Zimmer kann daher nicht genutzt werden.
Vielen Dank für Eure Hilfe.
Viele Grüße
Nicole
sopame
NicoleUrsprünglicher Verfasser
Ähnliche Diskussionen
Ideen zur Fassadengestaltung gesucht
Q
Kinderzimmer - aus 2 mach 3 ?!
Q
Ideen für einen Anbau gesucht
Q
Zusammenlegung von 2 kleinen 1-Zimmer-Appartments
Q
hansen innenarchitektur
NicoleUrsprünglicher Verfasser
NicoleUrsprünglicher Verfasser
hansen innenarchitektur
hansen innenarchitektur
NicoleUrsprünglicher Verfasser
Meierei Mecklenburg
NicoleUrsprünglicher Verfasser
Beihl Ambiente GmbH
P-O-I.Design