Raumkonzept Familien-Maisonette: Wo kommt was hin?
letzter Monat
zuletzt bearbeitet:letzter Monat

Gesponsert
Laden Sie die Seite neu, um diese Anzeige nicht mehr zu sehen
Hallo!
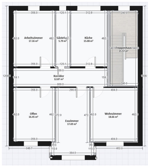
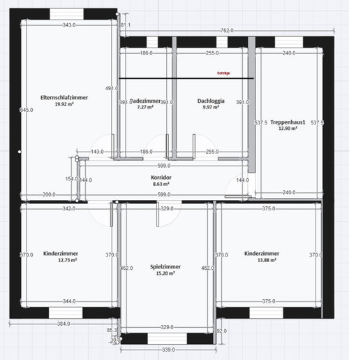
Wir brauchen mal Rat zur Raumnutzung einer Altbau-Maisonette (Decken ca. 3,10m hoch, Holzbalkendecken). Insgesamt gibt es viele Räume und viel Fläche, aber wir sind uns unschlüssig über die Raumaufteilung. Da ohnehin saniert werden soll, sind wir derzeit noch recht frei, welcher Raum wie genutzt werden soll. Das Treppenhaus ist abgetrennt und gehört insofern zur Wohnung.
Die Raumbeschriftungen in den Skizzen sind vorläufig. Derzeit sind unsere Überlegungen:
Insbesondere brauchen wir aber noch Ideen, wie wir folgendes unterbringen:
- 2 Kinderzimmer (möglichst nicht direkt nebeneinander, da Kids sehr geräuschsensibel)
- 2 Homeoffice-Arbeitsplätze (in getrennten Räumen; möglichst (wegen Telefonieren) auf verschiedenen Ebenen).
- Ideen, wie wir körperlichen Aktivitätsraum für die Kids schaffen können (Kletterwand? Schaukel? Turnstange?)
- Ideen für die Dachloggia: Wie soll die aussehen? Soll vorne ein Meter vom Raum bestehen bleiben, ggf. für kleine Kaffee/Kühlschrankecke (zur Versorgung der Dachloggia) oder Arbeitsecke?
- Kleiderschränke für Eltern? Wohin?
Es gibt auch noch einen (derzeit nicht ausgebauten) Spitzboden, der ggf. noch als Spielfläche bzw. Kreativbereich für die Kids nutzbar gemacht werden könnte (sich aber aufgrund der Höhe nicht als Arbeitszimmer eignet).
Vielen Dank euch im Voraus! Kreative Ideen - auch "outside the box" - nehmen wir gerne und sind empfänglich dafür :-)
2. OG:

DG:


Laden Sie die Seite neu, um diese Anzeige nicht mehr zu sehen
Houzz nutzt Cookies und ähnliche Technologien, um Ihre Benutzererfahrung zu personalisieren, Ihnen relevante Inhalte bereitzustellen und die Produkte und Dienstleistungen zu verbessern. Indem Sie auf „Annehmen“ klicken, stimmen Sie dem zu. Erfahren Sie hierzu mehr in der Houzz Cookie-Richtlinie. Sie können nicht notwendige Cookies über „Alle ablehnen“ oder „Einstellungen verwalten“ ablehnen.
Beihl Ambiente GmbH
familienheimUrsprünglicher Verfasser
Ähnliche Diskussionen
Geschmacks-Chaos im Neubau Hilfe
Q
Küche - wie stelle ich Zeile und Kochinsel am besten?
Q
Aufteilung Wohnzimmer/Esszimmer
Q
Planung EFH bitte um Rat zum Gesamtkonzept
Q
pickartzarchitektur
Robert Hauser
familienheimUrsprünglicher Verfasser