eigenwilliges Kinderzimmer
Vor 3 Monaten

Gesponsert
Laden Sie die Seite neu, um diese Anzeige nicht mehr zu sehen
Hallo liebe Community,
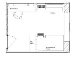
wir brauchen Hilfe bei der Einrichtung des Zimmers unseres Sohne (9Jahre). Es fällt uns schwer das Zimmer gemütlich zu gestalten. Vorallem durch das große Sitzfenster (Richtung Norden), sind die Stellmöglichkeiten eingeschränkt (zumindest für meine Phantasie :))
Eine weitere Besonderheit ist die Decke, diese steigt zum Fenster hin auf und hat auf der Hälfte es Raumes einen Sichtbalken.
Neben einem 120cm breiten Bett, einem Keyboard Platz, Schreibtisch und Stauraum (Kleidung ist außhalb untergebracht) ist ihm Privatsphäre wichtig. Er hätte gern eine Höhle oder, so übersetzte ich diesen Wunsch, die Möglichkeit nicht direkt von der Tür aus gesehen zu werden. Die momentane Lösung, siehe Einrichtungsskizze reicht ihm da nicht aus.
Ich hoffe auf Inspirationen von euch... Wir haben schon ein paar mal umgestellt, aber so richtig wird es nicht. Das Bett soll komplett neu werden, die restlichen Möbel dürfen Verwendeung finden, müssen aber nicht.
Liebe Grüße
Christiane und Familie





Laden Sie die Seite neu, um diese Anzeige nicht mehr zu sehen
raumkonzepte
Beihl Ambiente GmbH
Timber&Bloom Klempke
Normann Winter