Hallo zusammen, hallo liebe Community,
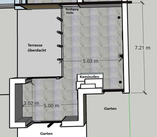
in unserem neuen Eigenheim gibt es ein großes Wohnzimmer (über 50qm) mit spannendem Grundriss und vielen bodentiefen Fensterflächen sowie einem großen Kaminofen.
Wir (5-köpfige Familie) würden gerne nach Ideen fragen, wie wir den Raum einrichten könnten, da wir uns bei der Ideenfindung leider nur noch im Kreis drehen.
Wie könnten Möbel sinnvoll und optisch ansprechend gestellt werden? Wie könnte der Raum gestaltet werden? Stilistisch mögen wir es minimalistisch-skandinavisch.
Vielen herzlichen Dank für die Unterstützung!
Anbei eine Skizze vom Raum, danke.
Meierei Mecklenburg
Erik Dellner
Ähnliche Diskussionen
Anregungen zu Anordnung/Einrichtung von offenem Wohnzimmer (ca. 15m²)?
Q
Hilfe bei Wohn-/Esszimmer-Einrichtung
Q
Was ist euch bei der Einrichtung besonders wichtig?
Q
Einrichtung Wohnzimmer
Q