Houzz Logo Print
dunja15

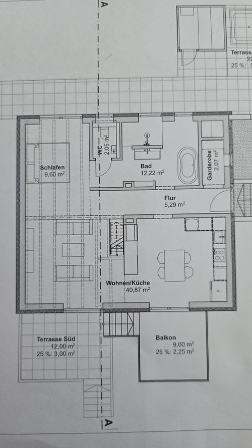
Grundriss Wellness-Chalet für Zwei im modernen Chalet-Stil

letzter Monat
zuletzt bearbeitet:letzter Monat


Ich plane derzeit den Umbau unseres kleinen Hauses zu einem Wellnesshaus für zwei Personen. Der Grundriss ist ein erster Entwurf und ich hoffe hier auf weitere Ideen und Optimierungen.
Die Fensterfronten können bodentief sein, der Platz der Fenster ist aber fest, alle Innenwände können flexibel gestaltet werden.

Ziel: Ein Rückzugsort mit Loft-Charakter, natürlicher Materialität und warmem Licht – inspiriert von modernem Chalet-Design (siehe Bild).

Wünsche & Eckdaten:

  • Offene Raumgestaltung mit (teilweise) geöffneter Decke bis zum Dachfirst
  • Unterm Dach noch eine Ablagefläche, die aber ohne Treppe erreichbar ist (zB mit einer versteckten Leiter in der Decke?)
  • Kamin als zentrales Element zwischen Wohn- und Wellnessbereich, gerne auch woanders
  • Doppel-Whirlpoolwanne mit Blick nach draußen
  • Große Regendusche, idealerweise mit Naturblick
  • Option für eine Kücheninsel im offenen Wohnbereich
  • Warme, natürliche Materialien: Holz, Stein, Schwarzstahl, Texturen in Erdtönen
  • Kombination aus Wellness und Design – Ruhe, Sinnlichkeit, Reduktion

Ich freue mich über kreative Vorschläge, wie man aus dem bestehenden Grundriss ein architektonisch spannendes und atmosphärisches Wellness-Loft für zwei gestalten kann.






Kommentare (8)

  • PRO
    letzter Monat

    Hallo Dunja,


    erlauben Sie mir die Rückfrage: Was ist ein Wellnesshaus?

    Wird das ein besonders schönes Zuhause für Sie oder ist es ein Refugium für die Ferien?


    Viele Grüße

    NIC

  • letzter Monat

    Es ist für uns (und ggf. andere) für freie Wochenenden und Kurzaufenthalte gedacht. Ein Ort für maximale Entschleunigung und um den Alltag zu entfliehen :-)

  • PRO
    letzter Monat

    Danke dafür - das sind natürlich andere Voraussetzungen als wenn man ständig dort wohnt (und ich der Meinung bin, dass jedes Zuhause es verdient, ein wunderbarer Rückzugsort zu sein).

  • PRO
    letzter Monat
    Zuletzt geändert: letzter Monat

    Ein schönes Projekt ! Wenn Sie es professionell angehen wollen, werden für einen Vorentwurf natürlich sehr viel mehr an Informationen zum Bestansdsgebäude benötigt : bemaßte Grundrisse, Ansichten, Schnitte als aktuelle Bestandspläne (3D-Gebäudeaufmaß),

    Danach eine Bauaufnahme, die die Bausubstanz erkundet und konstruktive Zusammenhänge klärt. Wenn Sie das Dach bis zum First öffnen wollen, ist das ggf. ein statisch anspruchsvoller Eingriff, der zudem bauantragspflichtig ist. Um zu entscheiden, welche Innenwände tragend/nichttragend sind, hilft ein Blick in die Bestandsstatik - falls vorhanden. Auch tragende Wände können natürlich mit Statikerhilfe abgebrochen und durch Stahlträger ersetzt werden, um neue und großzügigere Raumzusammenhänge zu schaffen. Auch hier schafft die Bauaufnahme Klarheit, bevor solche Entscheidungen getroffen werden.

    Wenn Sie einen Bezug zum Aussenraum planen (Blickbeziehungen), muss dieser natürlich bekannt sein. Hilfreich ist zudem, von einem Vermesser einen Lageplan mit Geländehöhen anfertigen zu lassen. Dieser wird auch für einen ev. Bauantrag benötigt. Die Geländehöhen sind unverzichtbar für eine Planung des Aussenbereiches.

    Ein Detail des Grundrisses ist nicht eindeutig : zwischen Terrasse Süd und Balkon ist eine Treppe eingezeichnet. Dieser Höhenversprung taucht im EG-Grundriss aber nicht mehr auf, obwohl das WZ an die Terrasse niveaugleich anschließt und die Küche an den Balkon. Wie ist das zu verstehen ?

    Stellen Sie doch einige Innen-/Aussenfotos des Gebäudes ein.

    Dunja hat pickartzarchitektur gedankt
  • PRO
    letzter Monat

    Falls doch mal Besuch kommen sollte, würde ich das WC nicht nur über das Schlafzimmer erreichbar machen.

  • letzter Monat

    @pickartzarchitektur Das Haus liegt an einem Hang. Die Treppe außen verbindet die beiden Terassen mit wenigen Stufen. Die liegen unterschiedlich hoch. Aktuell geht es mir noch nicht hauptsächlich um Machbarkeit, sondern eher um kreative Ideen. Das vieles dann evtl. erst genehmigt werden muss, soll vorerst keine Rolle spielen. Was eine Rolle spielt ist, dass wir später (also im Rentenalter ) evtl dort einziehen möchten, ohne wieder alles umbauen zu müssen ;-)

  • letzter Monat

    Hallo Alexandra @Beihl Ambiente GmbH, das gefällt mir schon richtig gut. Danke für deine Idee und Kreativität! Eine Sauna ist tatsächlich auch geplant, aber draussen. Wir liebäugeln aktuell eher mit einer breiten Wanne im Bad plus einer zweiten freistehenden im Schlafbereich . Du hast dich sehr an der Aufteilung im vorhandenen Grundriss orientiert. Das muss nicht. Auch das ist erstmal nur eine Idee. Aktuell ist die Küche zb dort, wo jetzt das Bad geplant ist. Da sind wir zur Zeit sehr flexibel, weil sich alles verlegen lässt. Also wenn du noch eine weitere Idee mit völlig anderer Raumaufteilung hast, dann gerne her damit ;-) Herzlichen Dank und viele Grüße nach Bremen!