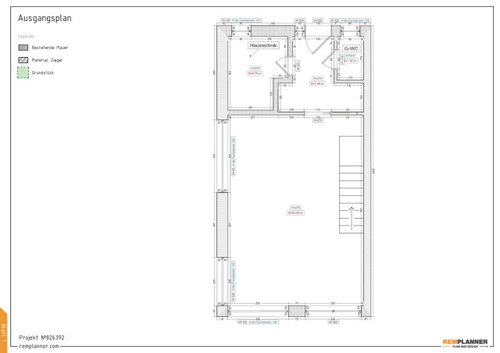
Wir haben die Möglichkeit eine DHH auf 6,35 x 12 m zu bauen. Das ganze muss als FD mit 2 Vollgeschossen + Staffel ohne Keller gebaut werden.
Nun hardern wir mit den üblichen Grundrissen der Hausanbieter. Wir hatten hier mal gute Grundrisse gesehen, wo die Küche zum Garten hin ausgerichtet war. Diese Häuser waren jedoch alle etwas größer oder hatten einen Keller.
Anbei mal unsere ersten Versuche. Habt ihr Idee wie man auf der kleinen Fläche eine relativ große Küche und ein insgesamt hellen Raum hinbekommen kann?
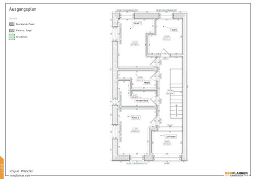
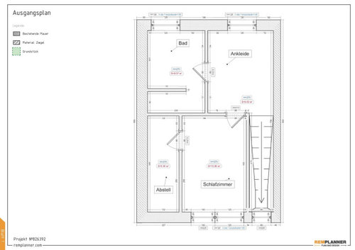
Wichtig wäre erstmal das EG. Die anderen Etagen folgen später :)
Vielen Dank :)
raumgefühlt
Horst PeterUrsprünglicher Verfasser
Ähnliche Diskussionen
Hilfe beim Renovieren einer DHH
Q
Schmales Haus - Grundriss-Problem
Q
Kreative Ideen für schmale Grundrisse einer Doppelhaushälfte im Hang
Q
Eure Meinung: Möbel Platzierung nach Anbau in DHH /Terrassenplanung
Q
raumgefühlt
raumgefühlt
Normann Winter