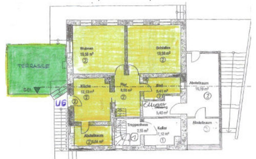
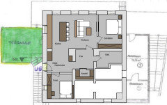
Inspiration für Grundrissumgestaltung gesucht
letzter Monat
Hervorgehobene Antwort
Sortieren nach:Älteste
Kommentare (9)
- letzter Monat
Ähnliche Diskussionen
Hilfe/Ideen für Grundriss-Umgestaltung gesucht
Kommentare (3)Guten Abend, man müsste sich den Plan geneuer anschauen, inkl. aller Masse. Ich denke man kann aber einiges daraus machen. Vielen hängt danach von der Inneneinrichtung ab; spezielle im Badezimmer sollte eine gute Aufteilung gewähl werden. Gerne können wir gemeinsam eine massgeschneiderte Lösung für dich erarbeiten. Wir arbeiten mit fotorealistische Darstellungen, Pläne und vielen Moodboards. Eine Badezimmerplanung inkl. 3D Darstellung mit verschiedenen Varianten, Plänen (Leuchtenplan, etc. und Shoppingliste liegt bei ca. 600 Euro)- Schlafräume bei 500 Euro)- Vorstudie Grundrissauteilung aller Räume in 3D bei ca. 800 Euro- gerne können wir Details persönlich besprechen. Wir laden dich herzlich auf unsere Webseite ein Internet: http://kast-design.com facebook Profil: www.facebook.com/kastdsgn HOUZZ Profil: https://www.houzz.de/pro/kast-design/kast-design Bei Interesse kannst du dich gerne hier oder per mail bei uns melden, um dein individuelles Wohnprojekt gemeinsam anzugehen. LG Kasia Kaliczkakasia@kast-design.com...mehrInspiration für Haus-Aufstockung gesucht!!
Kommentare (4)Ich pushe den Thread noch mal nach oben... Gibt es einen Grundriss und einen Schnitt von dem Haus? Gibt es Angaben über die Trennwand zwischen den Haushälften? Doppelte Trennwand oder einfache Trennwand (Realteilung oder ideelle Teilung) Mit freundlichen Grüßen Martin Habes...mehrIdeen für kleine Küche gesucht mit verschiedenen Schwierigkeiten
Kommentare (35)Wow, hier ist ja sehr viel passiert! Und auch echt tolle Anregungen dabei! Ich war leider bisher weder dazu gekommen hier nochmal reinzuschauen noch endlich mal einen Grundriss zu posten. Da sieht man nämlich, dass ich 1. vergessen hatte, dass es gar kein Rechteck ist, sondern ein kleiner Vorsprung da ist und 2. dass der Wasseranschluss direkt neben dem Boiler an der "rechten" Wand ist. Erst wenn man sich damit mal mehr auseinandersetzt, merkt man was man noch so alles verraten muss, damit es passende Ideen gibt - ich habe nämlich auch eine freistehende 180er Kühl-Gefrierkombi und brauche nicht um jeden Preis Stauraum (aktuell kommt alles Geschirr & Kochzubehör in 3 schmalen Hängeschränken unter und es wird noch einen Buffetschrank aus Holz im Wohnzimmer geben). Professionelle Küchenplanung hatte ich auch eigentlich angedacht, aber da ich sehr kurzfristig umgezogen bin, haben mir die Ohren geschlackert bei "Küche kommt wenn's gut Läuft frühestens im Oktober". Da ich bisher nie darüber nachdenken musste, wie weit man Herd, Spüle, Waschmaschiene etc. eigentlich vom Anschluss entfernt aufstellen kann, kommen mir die Vorschläge mit Kochfeld an der rechten Wand oder Waschmaschine/Spülmaschine an der linken Wand eher ungünstig vor. Oder ist das kein Problem, die Kabel/Schläuche irgendwo lang zu legen? (Wand aufmachen, um die Anschlüsse zu verlegen würde ich ungerne machen...) Aber auf die Idee, dass man den Herd ja an irgendeine Steckdose anschließen und über Wasch- oder Spülmaschine stellen könnte, wäre ich selbst nicht gekommen. Danke Patrick Ostheimer! Auch die Idee eine Sitzbank aus der Arbeitsfläche kommen zu lassen (vielleicht mit halbhohen Schränken darunter?) finde ich eigentlich gar nicht schlecht. Es geht eher drum mal den Kaffee oder nen kleinen Snack in der Küche essen zu können. Bei der Schubladen-Debatte stehe ich auf der "Pro mehrere schmalere Auszüge"-Seite. Was Helvi zu dem Platz vor den Schubladen sagt, ist mir nämlich auch bei Bekannten aufgefallen. Und diese Apotheker-Auszüge finde ich auch echt praktisch! Liebe Sigrid Gutberlet von FINDHUS, herzlichen Dank für die vielen Visualisierungen und Ideen! Im ersten Moment wirkt es auf mich sehr voll - für Leute, die gerne viel Stauraum brauchen wahrscheinlich echt praktisch (und das trifft bei Küchen ja auf die meisten zu und man unterschätzt oft, wie viel Platz man dann doch noch mit Vorräten oder Töpfen füllt), aber ich habe eher vor mich ein bisschen einzuschränken und hätte lieber noch ein offenes Regal und dafür mehr luftige Fläche. Außerdem hatte ich ja leider ausgeblendet, dass in der Ecke, wo Backofen und Kühlschrank geplant sind, noch ein Wandvorsprung ist......mehrIdeen für die Wohnzimmerwand gesucht
Kommentare (3)Hallo! Da die Möbel gesetzt sind und jetzt schon das Gefühl besteht, es ist erdrückend und nicht harmonisch, würde ich nicht noch mehr an Deko oder Verkleidung einbringen. Ich kann mir vorstellen alles zu vereinfachen, indem die kleinteilige Deko verschwindet und die Wand dunkel gestrichen wird. Das Schwarz ist nicht ganz passend, zum Raum passt ein Anthrazit sicher besser, aber es verdeutlicht hoffentlich den Effekt....mehr- letzter Monat
- letzter Monat
- letzter Monat
- letzter Monat
- letzter Monat
- letzter Monat
- letzter Monat

Gesponsert
Laden Sie die Seite neu, um diese Anzeige nicht mehr zu sehen
Weitere Diskussionen




Beihl Ambiente GmbH