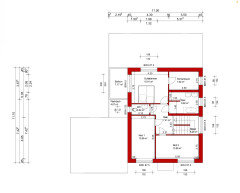
Ich brauche dringend eure Hilfe. Und zwar geht es um die Anordnung der Fenster in unserem Schlafzimmer. Es wird sich nicht vermeiden lassen, dass auf der Westseite eine große Balkontür hinkommt, unten dann die Tür hinkommt, rechts noch eine Tür und oben müsste auch noch ein Fenster hin. Wir hätten sonst im OG Richtung Terrasse/Garten nämlich kein einziges Fenster. Wäre es euch wert mit dem Kopf an der Klowand zu schlafen, um aus einem Fenster (BRH 90), das schräg gegenüber vom Bett liegt, schauen zu können? Der Vorteil des letzten Fensters wäre es, dass es relativ symmetrisch zum EG wäre. Wie fändet ihr es am geschicktesten gelöst? Ideen sind gerne willkommen :)
Houzz-Nutzer 513568842Ursprünglicher Verfasser
NIC interior
Ähnliche Diskussionen
Modern/romantischer Mix im Schlafzimmer?!
Q
Handy im Schlafzimmer – JA oder NEIN?
Q
Fernseher im Schlafzimmer?!
Q
Tipps für Schlafzimmer und Bad im Dachgeschoss
Q
kado76