Liebe Community,
wir sind immer noch dabei, unser Haus zu renovieren. Die meisten Zimmer sind schon so gut wie fertig, aktuell beschäftigt uns der Eingangsbereich.
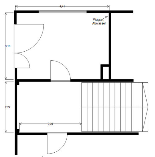
Er ist recht eng, wenn sich mehrere Personen gleichzeitig fertig machen wollen und es sieht auch nicht schön aus, wenn dort die Jacken, Taschen, Schuhe etc. hängen.
Rechts, dort wo auf dem Bild die Garderobe hängt, schließt sich die Küche an, die jedoch Hauswirtschaftsraum werden soll (Waschmaschine, Trockner, Aufbewahrung von Dingen, die man selten braucht usw.).
Ich würde gerne von diesem Raum ein Stück abtrennen, eine Öffnung in die Wand machen und dort die Garderobe hinein packen.
Meine Frau hat die Idee, den Eingang komplett zu verlegen.
Wie ist eure Meinung oder habt ihr vielleicht noch eine ganz andere Idee?
Viele Grüße
Daniel & Jana
kado76
kado76
Ähnliche Diskussionen
Brauche Tipps für die Gestaltung des Platzes zwischen zwei Häusern
Q
Hilfe bei der Gestaltung von Terrasse, Vorgarten und Eingangsbereich
Q
Hilfe bei der kniffligen Gestaltung unseres Eingangsbereichs
Q
Gestaltung des Wohnzimmers
Q
Raumagentur ArteFakt