Badezimmer Layout
Hallo zusammen,
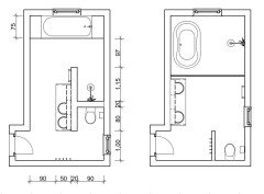
ich plane gerade unser Bad und würde mich sehr über euer Feedback zu dem Layout freuen (siehe Plan/Skizze im Anhang Bild 1/2)
1) Gesamteindruck / Grundidee
Wie findet ihr die Aufteilung ganz grundsätzlich? Wir versuchen, die Wege angenehm zu halten (Stichwort ‚Spa Charakter') und finden die T-Lösung wirklich toll - trotzdem wollen wir effizient und platzsparend alles unterbringen – aber ich bin mir unsicher, ob die Anordnung „stimmig“ wirkt oder ob ihr auf den ersten Blick schon Optimierungspotenzial seht.
2) Maße: Wo kann man kürzen – und wo wird’s kritisch?
Mich interessiert besonders eure Einschätzung zu den Abständen/Durchgängen:
• An welchen Stellen würdet ihr sagen: „Da kann man problemlos noch ein paar Zentimeter wegnehmen“? (Wand WC, Durchgang WC z.B. lieber an Duschdurchgang?)
• Und wo wird es eurer Meinung nach eng bzw. grenzwertig – also noch „okay“, aber nicht mehr komfortabel? (Durchgang, Dusche — Badewanne)
• Gibt es Bereiche, wo ihr klar sagen würdet: „Das würde ich so nicht machen, das wird zu knapp“?
3) T-Wand: 20 cm dick – reicht das für zwei Nischen?
Die T-Wand, an die das Waschbecken kommt, ist aktuell mit 20 cm Wandstärke geplant.
• 10 cm Nische für einen Spiegelschrank/Spiegelbereich über dem Waschbecken (dazu auch gleich die Frage - wenn der Unterputzschrank etwas hervorstehen soll, wie tief am besten die Nische machen?)
• 10 cm Nische an anderer Position/Höhe zur Dusche hin (z. B. für Duschablage/Einbauten)
Haltet ihr das konstruktiv/praktisch für sinnvoll bzw. machbar – oder ist das zu knapp gedacht (Stichwort Stabilität, Leitungen, Befestigung, Abdichtung, etc.)?
Wenn man dort ein paar Zentimeter wegnehmen könnte, wäre das für das Raumgefühl natürlich super… aber ich bezweifle, dass das mit Leitungen, Elektrizität etc. möglich sein wird
4) Waschbeckenbreite / Durchgang
Im Plan ist aktuell ein 50 cm Waschbecken eingezeichnet.
Meint ihr, es wäre sinnvoll, auf 45 cm (oder ähnlich) runterzugehen, um den Durchgang etwas zu verbreitern?
Oder sagt ihr: 50 cm sollte bleiben, weil 45 cm im Alltag schnell zu klein/nervig wird?
5) Waschtisch Richtung WC versetzen + Hängeschrank Richtung Dusche
Zusatzidee: den Waschtisch ein Stück Richtung WC nicht mittig verschieben und dafür neben dem Waschtisch (Richtung Dusche) einen Hängeschrank vorsehen (siehe Anhang Bild 11/12)
Gedanke dahinter:
• zusätzlicher Stauraum
• gleichzeitig hinten evtl. mehr „gefühlte Breite“ im Durchgang, weil ein Hängeschrank nicht so tief baut wie das Waschbecken/Waschtischunterschrank und dieser mehr Richtung Eingangsbereich rutscht
Wie sinnvoll findet ihr das? Würdet ihr es so machen – oder würdet ihr eher beim Waschtisch bleiben und den Stauraum anders lösen?
6) Badewanne: Positionierung
Wie würdet ihr die Badewanne in so einem Setup am besten platzieren? Gibt es eine Position, die sich aus eurer Sicht klar anbietet (z. B. wegen Laufwegen, Optik, Spritzwasser, Komfort, Raumgefühl)? (siehe Anhang Bild 3/4 bzw. 5/6)
7) Alternativen
Und falls euch keiner der oben genannten Änderungsansätze überzeugt: Ich habe noch zwei alternative Layout-Varianten. (Bild 7/8 bzw. 9/10)
Findet ihr eine der Alternativen insgesamt besser als das aktuell gepostete Layout?
Oder habt ihr vielleicht noch ganz andere Ideen?
Btw bevor die Kommentare dazu kommen - ja, es gibt im OG auch noch ein separates WC aber wir hätten gerne 2
Und wie man rauslesen kann, würden wir bei Möglichkeit gerne 5-10 cm für den Durchgang vorne gewinnen!
Danke euch schon mal! Ich freue mich über jede Rückmeldung – gern auch ganz pragmatisch aus der Praxis („haben wir so, würden wir wieder so / würden wir nie wieder so machen“)













Laden Sie die Seite neu, um diese Anzeige nicht mehr zu sehen
Beihl Ambiente GmbH
kado76
Ähnliche Diskussionen
Badezimmer Neugestaltung
Q
Hilfe bei der Küchenplanung
Q
Layout Badezimmer im Neubau
Q
6qm Badezimmer: Layout und Fenster
Q
kado76
kado76
sehnattmann