Architektur: Ein verglastes Holzhaus am Bodensee
Eigentlich sollte das Seegrundstück nicht mehr bebaut werden. Doch dieses Passiv-Holzhaus konnte die Ämter überzeugen
Zuerst wollte er den Auftrag gar nicht annehmen, erinnert sich der Architekt Robert Geckeler. Denn in Langenargen am Bodensee darf im Uferbereich eigentlich nicht mehr gebaut werden. Die Bauherren baten ihn dennoch um einen Entwurf und versuchten, eine Baugenehmigung zu erhalten. Nach zwei Jahren hatte Geckeler es geschafft, die Behörden von seinem Entwurf zu überzeugen. Wohl auch wegen des innovativen Öko-Konzepts. So entstand auf dem Seegrundstück ein nachhaltiges Haus für eine Familie.
„Die Fassade sollte pflegeleicht sein, denn der Garten mit rund achtzig Linden erfordert viel Arbeitseinsatz. Da wollte der Bauherr nicht auch noch alle zwei Jahre die Holzfassade streichen müssen“, verrät Geckeler. Daher kam er auf die Idee, das Holzhaus sozusagen in ein Glashaus zu stellen. Ein Geniestreich!
Die grau gestrichene Holzfassade aus Fichte ist mit einer vorgehängten Fassade aus Industrieglas versehen, die vier Zentimeter Abstand zwischen beiden Flächen lässt. Dadurch entsteht ein Kamineffekt: Im Sommer steigt die warme Luft auf und zieht nach oben weg. Im Winter wandert die Wärme über Nacht langsam aus dem Haus nach draußen. Wenn tagsüber die Sonne scheint, wandert die Wärme von draußen nach drinnen und nicht umgekehrt. Doch auch ohne die Glashülle hat das Gebäude Passivhaus-Standard. Die rund fünfundvierzig Zentimeter dicken Wände sind mit Zellulose gedämmt. Eine Konstruktion, die sich nicht nur wegen des geringen Pflegeaufwands lohnt. Die Heizkosten für das Haus liegen unter 300 Euro im Jahr.
Sie wollen auch eine Bauidee verwirklichen? Kontaktieren Sie unverbindlich Architekten in Ihrer Nähe
Die grau gestrichene Holzfassade aus Fichte ist mit einer vorgehängten Fassade aus Industrieglas versehen, die vier Zentimeter Abstand zwischen beiden Flächen lässt. Dadurch entsteht ein Kamineffekt: Im Sommer steigt die warme Luft auf und zieht nach oben weg. Im Winter wandert die Wärme über Nacht langsam aus dem Haus nach draußen. Wenn tagsüber die Sonne scheint, wandert die Wärme von draußen nach drinnen und nicht umgekehrt. Doch auch ohne die Glashülle hat das Gebäude Passivhaus-Standard. Die rund fünfundvierzig Zentimeter dicken Wände sind mit Zellulose gedämmt. Eine Konstruktion, die sich nicht nur wegen des geringen Pflegeaufwands lohnt. Die Heizkosten für das Haus liegen unter 300 Euro im Jahr.
Sie wollen auch eine Bauidee verwirklichen? Kontaktieren Sie unverbindlich Architekten in Ihrer Nähe
Das Haus liegt wie ein Schiff auf dem Grundstück, und der Zugang – eine mit Holzplanken belegte Stahlkonstruktion – wirkt wie ein Steg am Jachthafen. „Der See tritt alle paar Jahre über die Ufer. Die alten Villen sind daher oft auf einem Sockel gebaut oder zumindest von einer Mauer umgeben. Das haben wir uns abgeschaut und das neue Haus auf die gleiche Höhe wie das Bestandsgebäude auf dem Grundstück gesetzt“, erläutert der Architekt. In Einzelfundamenten sind Stahlstützen verankert, die einen Holzrahmen und die daraufliegenden, gedämmten Bodenelemente tragen. Das Wasser kann unter dem Haus durchfließen.
Der Zugangssteg führt direkt auf den Eingang zu. Die mit Eternitplatten verkleidete Eingangsbox ist dem Haus vorgesetzt. Bodenelemente und Wände des zweigeschossigen Gebäudes wurden in einer Zimmerei vorgefertigt und dann vor Ort montiert. Die Zwischendecke ist mit Verbundelementen aus Holzbeton hergestellt, die ebenfalls komplett in der Zimmerei vorgefertigt wurden. „Der Bauablauf ähnelt dem eines Fertighauses. Allerdings ist dieses Haus individuell geplant und gefertigt. Es ist exakt auf die Bedürfnisse der Bauherrenfamilie und das vorgegebene Grundstück abgestimmt“, betont Geckeler.
Innen ist kaum Holz zu sehen. „Die Bauherren wollten hier keine sichtbaren Holzelemente“, erzählt der Architekt. So prägen glatt gespachtelte, weiß gestrichene Wände den Innenraum. Holz wünschten sich die Bauherren lediglich für den Fußboden. Hier haben sie sich für Parkett aus dem Holz der Doussie entschieden, die auch als Edelkirsche bekannt ist. Das Holz ist besonders hart und widerstandsfähig.
FOTOIDEEN: Weitere Wohnräume mit braunem Parkett
FOTOIDEEN: Weitere Wohnräume mit braunem Parkett
Im Erdgeschoss ist der großzügige, offene Wohnraum untergebracht. Ein Panoramafenster mit Balkontür zieht sich zur Seeseite über die gesamte Hausbreite. „Wir wollten unbedingt die gesamte Hausbreite für das Fenster nutzen. Schließlich hatten wir nur fünf Meter lichte Breite zur Verfügung. Daher haben wir spezielle Krakla-Bänder eingesetzt, um eine biegesteife Eckverbindung zu erhalten“, erklärt der Architekt. Krakla steht für Kraft-Klavierband und bezeichnet eine Verbindung, die aus Holz-Stahl-Verklebungen und einem Stahl-Stahl-Bolzenanschluss besteht. Diese Verbindung hat eine hohe Steifigkeit und ist dennoch einfach zusammenzufügen. Der Architekt hat sie mit der Baufirma Lignotrend entwickelt, die auch den Hausbau übernommen hat. Die Wandelemente wurden mit 125 Metallstangen zusammengesteckt.
Zum Obergeschoss führt eine Treppe. Die Kinder der Bauherren haben den Platz unter der Treppe als idealen Spielbereich entdeckt.
Zum Obergeschoss führt eine Treppe. Die Kinder der Bauherren haben den Platz unter der Treppe als idealen Spielbereich entdeckt.
Das Treppenhaus ist aus dem Baukörper herausgeschoben. Die Wände dieses herausgezogenen Kastens sind wie die Eingangsbox mit Eternit verkleidet. Sie sind auch dünner als die übrigen Wände. „Wir hatten schlicht keinen Platz, um hier eine 45 Zentimeter dicke Wand zu bauen. Daher haben wir in dieser Box eine Vakuumdämmung eingesetzt. Die ist zwar teuer, aber dafür nur vier Zentimeter stark – bei gleicher Dämmwirkung“, so Geckeler. Die kleinen Fenster in der Treppenhausfassade entsprechen ebenfalls dem Passivhausstandard.
Im Obergeschoss sind die Schlafräume und das Bad untergebracht. Das Bad liegt über dem Eingang. Die grünen Fliesen waren eine Entscheidung der Bauherrin, der der Architekt nicht widersprach, wie er schmunzelnd einräumt.
EXPERTENSUCHE: Badprofis bei Ihnen vor Ort
EXPERTENSUCHE: Badprofis bei Ihnen vor Ort
Kinderzimmer und Gästezimmer haben jeweils einen Zugang zum Balkon, der sich fast über die gesamte Längsseite zieht. Dezente Metallstangen dienen als Geländer. Ein Steg aus Lamellen über dem Balkon dient als konstruktiver Sonnenschutz.
Balkon und Sonnenschutz waren auch an der Schmalseite zum See hin vorgesehen. Die Bauherren entschieden sich jedoch dagegen. Noch spenden die alten Linden im Sommer ausreichend Schatten.
Überhaupt hat Geckeler den Baumbestand in seine Planungen integriert. „Wir mussten nur zwei Bäume fällen“, freut er sich. Der Baum vor der Terrasse stand zwar auch nicht optimal. Doch hier hat der Architekt einfach der Terrasse einen schrägen Grundriss verliehen, um den Baum zu erhalten.
EXPERTENSUCHE: Spezialisten für Terrasse und Außenbereich
Überhaupt hat Geckeler den Baumbestand in seine Planungen integriert. „Wir mussten nur zwei Bäume fällen“, freut er sich. Der Baum vor der Terrasse stand zwar auch nicht optimal. Doch hier hat der Architekt einfach der Terrasse einen schrägen Grundriss verliehen, um den Baum zu erhalten.
EXPERTENSUCHE: Spezialisten für Terrasse und Außenbereich
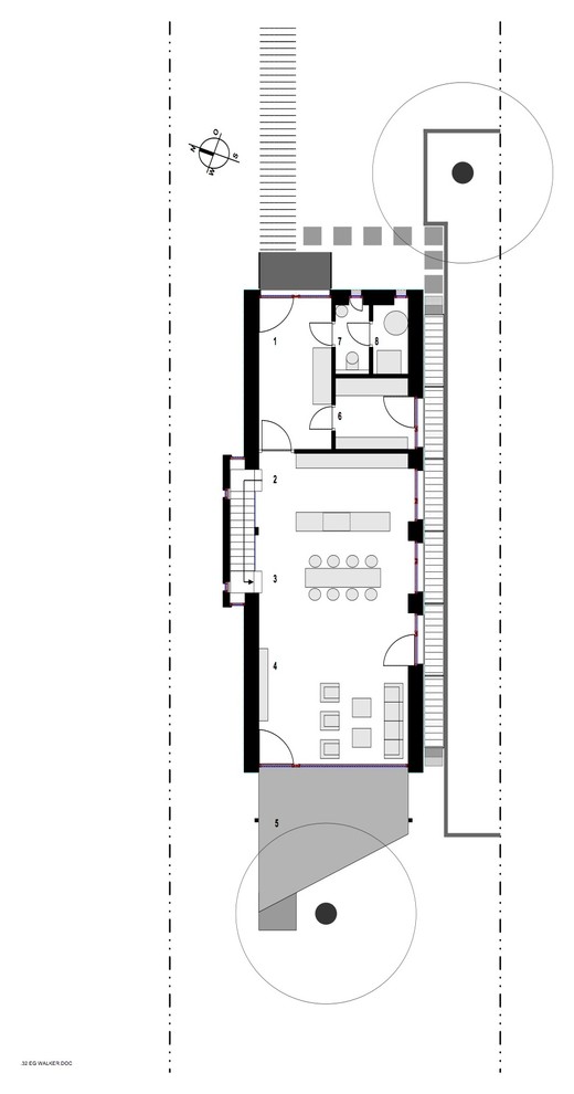
Grundriss EG
Gleich hinter der Eingangstür befinden sich Garderobe und Gästebad. Der offene Wohnraum orientiert sich mit einem Panoramafenster zum See. Die Treppe ist seitlich aus dem Gebäude herausgeschoben.
Gleich hinter der Eingangstür befinden sich Garderobe und Gästebad. Der offene Wohnraum orientiert sich mit einem Panoramafenster zum See. Die Treppe ist seitlich aus dem Gebäude herausgeschoben.
Grundriss OG
Zum See liegt das Elternschlafzimmer. Dahinter reihen sich Kinder- und Gästezimmer. Am anderen Ende liegt das Familienbad.
Zum See liegt das Elternschlafzimmer. Dahinter reihen sich Kinder- und Gästezimmer. Am anderen Ende liegt das Familienbad.



















Hier wohnt: eine Familie mit zwei Kindern
Auf: 162 Quadratmetern Wohnfläche
In: Langenargen am Bodensee
Experte kostenlos kontaktieren: Architekten Geckeler, Konstanz
Fotos: Florian Kunzendorf
Das Haus steht auf einem rund 4.500 Quadratmeter großen Seegrundstück neben einer Jugendstilvilla, die der Tante des Bauherrn gehört. Für das neue Haus stand ein Streifen von rund 5,50 Metern zur Verfügung, um die erforderlichen Abstandsflächen zum Bestandsgebäude und zum Nachbargrundstück einzuhalten. „Die Bauherren waren sehr bescheiden und haben mir Planungsfreiheit gegeben“, erinnert sich Architekt Robert Geckeler. Der einzige Wunsch war, ein Holzhaus zu bauen, dessen Fassade wenig Arbeit machen sollte.