Architektur
Architektur: Ganz in Weiß – ein 4-Parteien-Wohnhaus in Wiesbaden
Monochrom Weiß bis in die Dachziegel und Läden: Ein preisgekröntes Wohnhaus macht vor, wie man mit Farbe Energie spart
In strahlendem Weiß hebt sich dieses Wohnhaus in Wiesbaden aus seiner Umgebung hervor. Vier Maisonettewohnungen sind unter dem Giebeldach vereint. Und alle profitieren von dem guten Raumklima, das im gesamten Gebäude herrscht – nicht zuletzt dank der ungewöhnlich hellen Farbgebung. Der Entwurf für das Haus stammt vom Architekturbüro Christ.Christ. Durch frühere Projekte hatte das Team um den Architekten Roger Christ das Immobilien-Unternehmen Pered auf sich aufmerksam gemacht, das in dem Wohngebiet mit villenartiger Bebauung etwas Besonderes entstehen lassen wollte.
„Es ging uns um energiesparendes Bauen“, so Christ. In einem früheren Projekt hatten Christ.Christ. bereits mit weißen Dachbahnen gearbeitet. Beim Haus „Am Heiligenstock“ wurden es glasierte Ziegel. „Im Ergebnis funktioniert das wunderbar. Es ist keine zusätzliche Technik zur Kühlung der Räume nötig.“
Normalerweise, so Christ, erwärmen sich Dachoberflächen durch Sonneneinstrahlung um bis zu 30 Grad Celsius über der Lufttemperatur. An sonnigen Tagen könne dadurch eine Temperatur von mehr als 60 Grad Celsius erreicht werden, die über das Dach ins Gebäude eindringt.
Die weiße Dachdeckung wirkt dieser Überhitzung entgegen und macht eine technische Klimatisierung überflüssig. „Der Plan ist voll aufgegangen. Wir haben ein Superklima im Gebäude, auch dank der moderaten Größe der Fenster.“
Normalerweise, so Christ, erwärmen sich Dachoberflächen durch Sonneneinstrahlung um bis zu 30 Grad Celsius über der Lufttemperatur. An sonnigen Tagen könne dadurch eine Temperatur von mehr als 60 Grad Celsius erreicht werden, die über das Dach ins Gebäude eindringt.
Die weiße Dachdeckung wirkt dieser Überhitzung entgegen und macht eine technische Klimatisierung überflüssig. „Der Plan ist voll aufgegangen. Wir haben ein Superklima im Gebäude, auch dank der moderaten Größe der Fenster.“
Der Hersteller der weiß glasierten Tonziegel hat die Produktion indessen eingestellt. Die Nachfrage ist einfach zu gering. Doch hier leisten sie gute Arbeit, auch dank des sogenannten Lotusblüteneffekts: Die glatte Oberfläche verhindert, dass Schmutz überhaupt auf den Ziegeln haften bleibt.
Das Gebäude ist ein Massivbau, der größtenteils aus Beton besteht. Im Inneren ist das Haus in vier Einheiten unterteilt, die als Maisonettes je zwei Geschosse einnehmen und sich auf der Wohn- und Küchenetage über die gesamte Gebäudebreite erstrecken. Die unteren Wohnungen werden über das Erdgeschoss betreten, die oberen über das Dachgeschoss. Im Mittelgeschoss, dem ersten OG, sind die Schlafräume aller Wohnungen untergebracht. „Die Maisonettes kann man sich als L-förmige Körper vorstellen, die wie Tetris-Blöcke ineinander gesteckt sind“, sagt Christ.
Das Gebäude ist ein Massivbau, der größtenteils aus Beton besteht. Im Inneren ist das Haus in vier Einheiten unterteilt, die als Maisonettes je zwei Geschosse einnehmen und sich auf der Wohn- und Küchenetage über die gesamte Gebäudebreite erstrecken. Die unteren Wohnungen werden über das Erdgeschoss betreten, die oberen über das Dachgeschoss. Im Mittelgeschoss, dem ersten OG, sind die Schlafräume aller Wohnungen untergebracht. „Die Maisonettes kann man sich als L-förmige Körper vorstellen, die wie Tetris-Blöcke ineinander gesteckt sind“, sagt Christ.
Die Klappläden aus Streckmetall sind das Ergebnis einer umfangreichen Marktrecherche der Architekten. Den Zuschlag bekam ein Produkt von Mevaco, das in Stahlrahmen eingeschraubt wurde. „Das Material bietet ein gutes Verhältnis zwischen indirektem Lichteinfall und Intimität. Wenn die Fensterläden geschlossen sind, ist es trotzdem noch ziemlich hell in den Räumen.“ Das ganze System haben die Architekten selbst entwickelt und vom Schlosser maßfertigen lassen. Die Läden lassen sich bequem per Kurbel aus dem Innenraum öffnen und schließen, ohne dass dafür die Fenster geöffnet werden müssen.
Trotz der kompakten Bauform gewähren die einzelnen Wohnungen einen hohen Grad an Intimität. Die ebenerdig erschlossenen Maisonettes orientieren sich zum rückwärtigen Garten hin, die oberen Wohnungen dagegen zu straßenseitigen Dachterrassen.
Ein Vergleich mit den Nachbarhäusern zeigt, wie das Gebäude auf die vorhandene Bebauung reagiert und deren Bauelemente zeitgenössisch interpretiert.
Im Bild: Die Tiefgarage, deren Zufahrt rechts zu sehen ist, hat vier Stellplätze. Darüber wurde ein Vorgarten angelegt. „Den wollten wir ganz schlicht halten. Wir haben hier sieben Felsenbirnen gepflanzt“, sagt Christ. Die Bäume wachsen fächerförmig und blühen im Frühjahr, passend zum Haus, ganz in Weiß. Im rückwärtigen Garten hat das Architektenteam sich bemüht, die vorhandenen Pflanzen zu erhalten, und sie um einige Neupflanzungen ergänzt.
Ein Vergleich mit den Nachbarhäusern zeigt, wie das Gebäude auf die vorhandene Bebauung reagiert und deren Bauelemente zeitgenössisch interpretiert.
Im Bild: Die Tiefgarage, deren Zufahrt rechts zu sehen ist, hat vier Stellplätze. Darüber wurde ein Vorgarten angelegt. „Den wollten wir ganz schlicht halten. Wir haben hier sieben Felsenbirnen gepflanzt“, sagt Christ. Die Bäume wachsen fächerförmig und blühen im Frühjahr, passend zum Haus, ganz in Weiß. Im rückwärtigen Garten hat das Architektenteam sich bemüht, die vorhandenen Pflanzen zu erhalten, und sie um einige Neupflanzungen ergänzt.
Zurück zu den Fensterläden: Neben den weißen Dachziegeln sind sie es nämlich, die große Teile des Sonnenlichts reflektieren und damit eine Überhitzung des Gebäudes verhindern. Als bewegliches Element sorgen sie außerdem für Abwechslung an der Fassade. Hier sind sie im rechten Winkel zu den Hauswänden geöffnet und können eingesetzt werden wie ein sogenannter Brise Soleil, ein auskragender Sonnenschutz zur Verschattung von Fassaden. „Auch zum Schutz vor Nachbars Blicken eignen sich die Fensterläden gut“, sagt Christ.
Expertenwissen: Fensterläden und Shutters nachrüsten
Expertenwissen: Fensterläden und Shutters nachrüsten
Jede Wohnung hat ihren eigenen Außenbereich. Bei den beiden unteren Maisonettes sind es die Terrassen mit Zugang zum Garten, bei den oberen großzügige Dachterrassen.
Die großformatigen Bodenplatten (1 × 1 Meter) bestehen aus Beton, erinnern aber an Basalt. Bei der Herstellung wird ihnen eine Art Sprudelwasser zugeführt, wodurch sich im Material kleine Bläschen bilden.
Bodenplatten: Schellevis
Die großformatigen Bodenplatten (1 × 1 Meter) bestehen aus Beton, erinnern aber an Basalt. Bei der Herstellung wird ihnen eine Art Sprudelwasser zugeführt, wodurch sich im Material kleine Bläschen bilden.
Bodenplatten: Schellevis
Die Innenräume sind von Eichenparkett und weiß verputzten Wänden geprägt. Hier ist die maßgefertigte Küche einer der beiden unteren Maisonettes zu sehen, die man im Erdgeschoss betritt.
Die Schränke sind aus melaminbeschichtetem MDF geschreinert. Einbauschränke nutzen den Raum unter der Treppe optimal aus und dienen auf der einen Seite als Küchenschränke, auf der anderen als Stauraum. Hinter der Kochinsel und dem Essbereich geht der Raum fließend in den Wohnbereich über.
Expertensuche: Tischler und Schreiner in Ihrer Nähe
Die Schränke sind aus melaminbeschichtetem MDF geschreinert. Einbauschränke nutzen den Raum unter der Treppe optimal aus und dienen auf der einen Seite als Küchenschränke, auf der anderen als Stauraum. Hinter der Kochinsel und dem Essbereich geht der Raum fließend in den Wohnbereich über.
Expertensuche: Tischler und Schreiner in Ihrer Nähe
Die dunkle Küchenarbeitsplatte besteht aus Quarzstein und steht in schönem Kontrast zu den weißen Oberflächen.
Inspirationen zu weißen Küchen
Inspirationen zu weißen Küchen
Die Wohnungen sind unterschiedlich groß. Unten haben die Maisonettes je 126 Quadratmeter, oben sind es 95 Quadratmeter.
Die Tritt- und Setzstufen der Treppen sind, wie die Böden, aus Eiche gefertigt. Das Treppensystem mit eingespannter Glasplatte wurde zusätzlich mit einem stählernen U-Profil-Handlauf versehen.
Treppensystem: Balardo
Treppen- und Geländer-Profis bei Ihnen vor Ort
Treppensystem: Balardo
Treppen- und Geländer-Profis bei Ihnen vor Ort
Im Dachgeschoss sind die Räume bis unter die Dachschräge offen. Der Wohnraum öffnet sich zur loggienartigen Dachterrasse.
Um Platz zu gewinnen, ist die Küchenzeile unter dem Dach in eine Gaupe eingebaut. Beim Kochen schaut man durch ein Fensterband nach draußen. Es liegt auf dieser Höhe, um den Blick nicht auf die Nachbarbauten, sondern auf Natur und Himmel zu lenken.
Gegenüber, nur durch die Treppenöffnung getrennt, liegt der offene Wohnbereich mit Kamin.
Die gläserne Brüstung hält sich optisch dezent zurück und nimmt dem Raum nichts von seiner Weite.
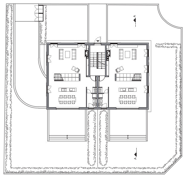
Erdgeschoss-Grundriss:
Die öffentliche Erschließung der vier Wohnungen befindet sich in einem Treppenhauskern zwischen den Wohnungen. Der Wohnraum öffnet sich über große Terrassen zum Garten auf der straßenabgewandten Seite.
Die öffentliche Erschließung der vier Wohnungen befindet sich in einem Treppenhauskern zwischen den Wohnungen. Der Wohnraum öffnet sich über große Terrassen zum Garten auf der straßenabgewandten Seite.
Obergeschoss-Grundriss:
Hier befinden sich alle Schlafzimmer der vier Maisonettes. So dient das Geschoss als Ruheebene.
Hier befinden sich alle Schlafzimmer der vier Maisonettes. So dient das Geschoss als Ruheebene.
Dachgeschoss-Grundriss:
Der Aufbau der Dachetage ähnelt dem des Erdgeschosses. Zugang zum Außenraum bieten Dachterrassen, die auf der Straßenseite angesiedelt sind.
Der Aufbau der Dachetage ähnelt dem des Erdgeschosses. Zugang zum Außenraum bieten Dachterrassen, die auf der Straßenseite angesiedelt sind.
Weiß in Weiß macht das Haus sogar international von sich reden. Inzwischen ist das Haus „Am Heiligenstock“ mit vier Preisen ausgezeichnet worden, darunter dem German Design Award und dem International Architecture Award des Chicago Athenaeum.
Wie gefällt Ihnen dieses monochrome Wohnhaus?
Wie gefällt Ihnen dieses monochrome Wohnhaus?
























Hier wohnen: vier Mietparteien
In: einem Wohngebiet in Wiesbaden
Auf: insgesamt 442 Quadratmetern (je 126 Quadratmeter für die beiden unteren Maisonettes und je 95 Quadratmeter für die beiden oberen)
Bauherr: Pered GmbH
Projektkosten: 1.080.000 Euro netto (Kostengruppe 300, 400 und 500 nach DIN 276)
Architekt: Roger Christ von Christ.Christ. associated architects GmbH
Ein komplett weißes Haus zu bauen, hatte sich Roger Christ anfangs nicht vorgenommen. Doch verschiedene Überlegungen führten schließlich zu diesem Entschluss. Nun macht dieses Merkmal den Reiz des Mehrfamilienhauses „Am Heiligenstock“ von 2014 aus, das inzwischen mehrere Architekturpreise eingeheimst hat. Das Giebeldach war durch den Bebauungsplan vorgegeben. Christ war es wichtig, unter dieser Vorgabe homogen, zeitgenössisch und auch energetisch optimiert zu bauen. „Schon bei anderen Gebäuden hatten wir mit einer Holzfaserdämmung gearbeitet. In diesem Projekt haben wir sie mit weißen Ziegeln und nicht allzu großen Dachfenstern kombiniert“, sagt Christ.