Aus zwei mach eins: Zusammenlegung zweier Wohnungen in München
Perfektes Timing! Das passiert, wenn die Familie wächst und zufällig die Wohnung genau nebenan zum Verkauf steht
Ein junges Paar Anfang dreißig mit einer Eigentumswohnung im zweiten Stock in München wollte sich vergrößern. Frisch verheiratet und mit Kinderwunsch kam es gerade recht, dass die Wohnung nebenan zum Verkauf stand. Auf Houzz fanden die beiden mit Sybille Scheuffele von Innenarchitektur Federleicht die richtige Expertin für ihr Projekt. Auf nun doppelter Fläche konnten sie ihren Traum vom neuen alten Zuhause in endlich passender Größe in die Wirklichkeit umsetzen.
Grundriss
Gespiegelt. Auf dem Grundriss ist unten die erste eigene Wohnung von knapp 70 Quadratmetern zu sehen. Darüber liegt, wie gespiegelt, die neue Wohnung für die Zusammenlegung. Die gelben Markierungen zeigen den Abriss ehemaliger Wände, um die Wohnfläche zu etwa 130 Quadratmetern zu verbinden. Blau markiert sind die Wände, die den Wohnraum nach der neuen Aufteilung strukturieren.
Gespiegelt. Auf dem Grundriss ist unten die erste eigene Wohnung von knapp 70 Quadratmetern zu sehen. Darüber liegt, wie gespiegelt, die neue Wohnung für die Zusammenlegung. Die gelben Markierungen zeigen den Abriss ehemaliger Wände, um die Wohnfläche zu etwa 130 Quadratmetern zu verbinden. Blau markiert sind die Wände, die den Wohnraum nach der neuen Aufteilung strukturieren.
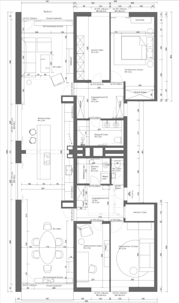
Grundriss mit Möblierung
Der Eingang der ersten Wohnung wurde in der Planung zum Haupteingang der zusammengelegten Wohnung. Der Eingang zur ehemaligen Nachbarswohnung blieb trotzdem erhalten. So ist der Hausflur unverändert und die Trennung der Wohnung kann bei Bedarf wieder rückgängig gemacht werden. Vom Eingang (in der Abbildung unten rechts) geht es zunächst in den Flurbereich. Rechts liegen Gäste-WC und Wannenbad und links, neben einer kleinen Kammer, Gäste- und Arbeitszimmer. Von dort aus geht es weiter in den nun besonders großzügig geschnittenen Wohn-, Koch- und Essbereich. Dieser erstreckt sich über die gesamte Länge der Wohnung, mit extra viel Tageslicht und zwei Balkonen. Daran schließt sich der private Bereich mit einem kleinen Flur, dem Kinderzimmer, Elternschlafzimmer und einem großen Duschbad.
Finden Sie hier Architekturbüros für Umbau und Optimierung Ihres Wohnraums
Der Eingang der ersten Wohnung wurde in der Planung zum Haupteingang der zusammengelegten Wohnung. Der Eingang zur ehemaligen Nachbarswohnung blieb trotzdem erhalten. So ist der Hausflur unverändert und die Trennung der Wohnung kann bei Bedarf wieder rückgängig gemacht werden. Vom Eingang (in der Abbildung unten rechts) geht es zunächst in den Flurbereich. Rechts liegen Gäste-WC und Wannenbad und links, neben einer kleinen Kammer, Gäste- und Arbeitszimmer. Von dort aus geht es weiter in den nun besonders großzügig geschnittenen Wohn-, Koch- und Essbereich. Dieser erstreckt sich über die gesamte Länge der Wohnung, mit extra viel Tageslicht und zwei Balkonen. Daran schließt sich der private Bereich mit einem kleinen Flur, dem Kinderzimmer, Elternschlafzimmer und einem großen Duschbad.
Finden Sie hier Architekturbüros für Umbau und Optimierung Ihres Wohnraums
Eichenparkett von Deisl Parkett Manufaktur aus Österreich
Eingangsbereich. Schlicht und aufgeräumt heißt das neue Zuhause die Familie und Gäste willkommen. Das geölte Eichenparkett zieht sich durch den kompletten Wohnbereich und ist dabei nachhaltig und kinderfreundlich: „Der Vorteil gegenüber lackiertem Boden ist, dass er bei Bedarf an den entsprechenden Stellen abgeschliffen und neu geölt werden kann. Durch den Verzicht auf Lack sind keine Schadstoffe enthalten und die Haptik ist besonders angenehm“, so Scheuffele.
Eingangsbereich. Schlicht und aufgeräumt heißt das neue Zuhause die Familie und Gäste willkommen. Das geölte Eichenparkett zieht sich durch den kompletten Wohnbereich und ist dabei nachhaltig und kinderfreundlich: „Der Vorteil gegenüber lackiertem Boden ist, dass er bei Bedarf an den entsprechenden Stellen abgeschliffen und neu geölt werden kann. Durch den Verzicht auf Lack sind keine Schadstoffe enthalten und die Haptik ist besonders angenehm“, so Scheuffele.
Gästeklo vorher
Tapete von Rebel Walls
Gäste-WC. Viele natürliche Elemente finden sich im Gestaltungskonzept für die neue Wohnung. Das zeigt sich bei der Wahl eines Grüntons für die Wandfarbe in den anderen Räumen, sowie beim Waschtisch mit Eichenholz-Front und der Tapete mit Waldmotiven im Gäste-WC. „Während im privaten Wohnbereich eine ruhige und zeitlose Gestaltung von Vorteil ist, bietet es sich bei einem Gäste-WC oft an, ein etwas aufregenderes Design zu wagen“, weiß die Expertin.
Gäste-WC. Viele natürliche Elemente finden sich im Gestaltungskonzept für die neue Wohnung. Das zeigt sich bei der Wahl eines Grüntons für die Wandfarbe in den anderen Räumen, sowie beim Waschtisch mit Eichenholz-Front und der Tapete mit Waldmotiven im Gäste-WC. „Während im privaten Wohnbereich eine ruhige und zeitlose Gestaltung von Vorteil ist, bietet es sich bei einem Gäste-WC oft an, ein etwas aufregenderes Design zu wagen“, weiß die Expertin.
Großformatige Fliesen „Silver Grain light“ von Italgraniti
Gästebad. Das frühere Badezimmer ist nun hauptsächlich für Gäste gedacht. Mit Hinblick auf Nachwuchs wollte das Paar hier die Badewanne beibehalten. Schwarze Armaturen, großformatige Fliesen und maßgefertigte Holzmöbel finden sich als roter Faden in allen, nun insgesamt drei Bädern. Die Wand hinter dem Spiegel weist das Grün-Grau auf, das sich auch in den anderen Räumen als dezente Anspielung auf die Naturverbundenheit wiederfindet.
Gästebad. Das frühere Badezimmer ist nun hauptsächlich für Gäste gedacht. Mit Hinblick auf Nachwuchs wollte das Paar hier die Badewanne beibehalten. Schwarze Armaturen, großformatige Fliesen und maßgefertigte Holzmöbel finden sich als roter Faden in allen, nun insgesamt drei Bädern. Die Wand hinter dem Spiegel weist das Grün-Grau auf, das sich auch in den anderen Räumen als dezente Anspielung auf die Naturverbundenheit wiederfindet.
Das ehemalige Hauptbad vorher
Vorher
Offener Wohn-, Koch- und Essbereich. „In der Mitte grenzten die zwei Küchen der Wohnungen aneinander. Hier haben wir einen Teil der tragenden Wand rausgerissen und durch einen Stahlträger ersetzt. Die neue offene Küche haben wir dann an der Stelle mit den neuen Anschlüssen geplant“, erklärt Scheuffele. Durch die Öffnung entstand zugleich eine Verbindung zwischen den zuvor separaten Wohnungen.
Offener Wohn-, Koch- und Essbereich. „In der Mitte grenzten die zwei Küchen der Wohnungen aneinander. Hier haben wir einen Teil der tragenden Wand rausgerissen und durch einen Stahlträger ersetzt. Die neue offene Küche haben wir dann an der Stelle mit den neuen Anschlüssen geplant“, erklärt Scheuffele. Durch die Öffnung entstand zugleich eine Verbindung zwischen den zuvor separaten Wohnungen.
Vorher
Der gedeckte Grünton der Wand setzt sich in dem langen und lichtdurchfluteten Wohnbereich fort. Die vorhandenen Heizungen blieben unangerührt. Da sie jedoch nur einen funktionalen und keinen ästhetischen Beitrag leisten, verschwinden sie hinter einer Verkleidung aus Holzlamellen im Farbton der Wand. So zieht sich das beruhigende Grün – optisch nun nicht mehr durch den Heizkörper gestört – durch die gesamte Raumlänge.
Arbeitsfläche aus Naturstein „Tundra Blue“
Für die Küche sah der Entwurf schwarze Fronten vor, was dem Paar auf Anhieb gefiel. Das elegante matte Schwarz der HPL-Fronten bleibt mit den dezenten Griffen trotz der insgesamt großen Fläche zurückhaltend und sorgt für einen modernen Kontrast.
Für die Küche sah der Entwurf schwarze Fronten vor, was dem Paar auf Anhieb gefiel. Das elegante matte Schwarz der HPL-Fronten bleibt mit den dezenten Griffen trotz der insgesamt großen Fläche zurückhaltend und sorgt für einen modernen Kontrast.
In Kombination mit den Eichenholz-Fronten entsteht eine Balance aus natürlichen Akzenten und urbaner Eleganz. Offene Küchenregale beleben die ruhigen Flächen.
„Der cleane Look war bei dem großen Raum besonders wichtig. Überwiegend geschlossene Schränke sorgen dafür, dass die Küche fast von allein aufgeräumt und einladend wirkt“, so Scheuffele.
Essbereich. „Die Elektrik wurde in der gesamten Wohnung erneuert“, erklärt die Expertin. Das Lichtkonzept übernahm das Paar fast eins zu eins aus den ersten Entwürfen. Der Auftraggeber selbst arbeitet in der IT-Branche. Da ist es kein Zufall, dass sich die Beleuchtung in diesem Haushalt auf seinen Wunsch per App steuern lässt. So genießt die Familie hier immer das perfekte Ambiente an einem Esstisch, den sie sich – dieses Mal abweichend von ersten Renderings als Entwurf – zusammen mit den Stühlen selbst aussuchte.
Vorher
Armaturen „Vernis Blend“ von hansgrohe
Badezimmer. Das private Badezimmer der Familie verfügt über eine großzügige Regendusche. Sie ist leicht erhöht durch einen Sockel.
Badezimmer. Das private Badezimmer der Familie verfügt über eine großzügige Regendusche. Sie ist leicht erhöht durch einen Sockel.
Der Waschtisch mit zwei Becken und reichlich Stauraum fällt vergleichsweise groß aus. „Schwebend“ montiert wirkt er dennoch leicht im Raum und lässt darunter auch noch Platz für einen Kinderhocker.
Das Bad vorher
Kopfteil für das Bett von Etsy in der Variante „Cognac Leder“
Schlafzimmer. Eine Wand im Elternschlafzimmer ist in dem vertrauten Grünton gestrichen, der die zusammengelegten Wohnungen zusätzlich zu einer Einheit verschmelzen lässt. Wo früher die Abstellkammer war, ist nun ein geräumiger Einbauschrank. „Das Kopfteil des Bettes sollte ein Hingucker werden“, so die Expertin. Das Leder greift das Material der Stühle und des Sofas im Wohnbereich auf. Mit Abschluss der Bauarbeiten erfüllte sich auch der Kinderwunsch des Paares, sodass die dreiköpfige Familie nun rundum glücklich ihr neues Zuhause genießen kann.
Schlafzimmer. Eine Wand im Elternschlafzimmer ist in dem vertrauten Grünton gestrichen, der die zusammengelegten Wohnungen zusätzlich zu einer Einheit verschmelzen lässt. Wo früher die Abstellkammer war, ist nun ein geräumiger Einbauschrank. „Das Kopfteil des Bettes sollte ein Hingucker werden“, so die Expertin. Das Leder greift das Material der Stühle und des Sofas im Wohnbereich auf. Mit Abschluss der Bauarbeiten erfüllte sich auch der Kinderwunsch des Paares, sodass die dreiköpfige Familie nun rundum glücklich ihr neues Zuhause genießen kann.



























Hier lebt nun auf doppelter Fläche: eine junge dreiköpfige Familie
In: München
Auf: ca. 130 m²
Budget: 150.000 Euro, plus zusätzliche Kosten für Möbel
Projektdauer: etwa 8 Monate
Expertise von: Sybille Scheuffele von Innenarchitektur Federleicht
Weitere Gewerke: BD Bau GmbH (Abriss, Fliesen, Trockenbau), FH Elektro (Elektrik), Anatoliy Lesch Parkett und Boden (Boden), Basagno Bäder Sebastian Hussein (Sanitär), Markus Ströter (Malerbeiten), N Kitchens (Küche), Trend Interior (Schreinerarbeiten)
Fotos: Nathan Zentveld