Dusche im Gästebad: 9 raumsparende Lösungen
Sie wollen Ihr Gäste-WC um eine Dusche ergänzen, wissen aber nicht wo und wie? Diese raumsparenden Ideen zeigen, wie es klappen könnte …
Jeder kennt das: Ist Besuch im Haus, wird die Schlange vor dem Bad immer länger. Wohl dem, der ein kleines Gästebad als Ausweichmöglichkeit hat! Mit diesen 9 Ideen kann eine Dusche auch auf kleinstem Raum integriert werden – denn bei der Planung eines Gäste-WCs mit Dusche zählt jeder Zentimeter!
2. Glasabtrennung der Dusche
Auch mit der richtigen Wahl der Duschabtrennung können Sie eine bessere Raumwirkung erzielen. Trennwände aus Glas eignen sich für Duschen in Gästebädern gut – sie schenken dem Raum mehr Tiefe und lassen Licht in alle Ecken dringen.
Halboffen gestaltete Duschtrennwände sind besser geeignet als geschlossene Kabinen, da bei der Planung kein Raum für den Schwenkradius der Duschtüren einberechnet werden muss. Soll die Fläche zum Duschen jedoch rundum abgegrenzt werden, eignen sich Schiebetüren für Mini-Gästebäder am besten.
Auch mit der richtigen Wahl der Duschabtrennung können Sie eine bessere Raumwirkung erzielen. Trennwände aus Glas eignen sich für Duschen in Gästebädern gut – sie schenken dem Raum mehr Tiefe und lassen Licht in alle Ecken dringen.
Halboffen gestaltete Duschtrennwände sind besser geeignet als geschlossene Kabinen, da bei der Planung kein Raum für den Schwenkradius der Duschtüren einberechnet werden muss. Soll die Fläche zum Duschen jedoch rundum abgegrenzt werden, eignen sich Schiebetüren für Mini-Gästebäder am besten.
Ein gutes Beispiel für den gelungenen Einsatz einer Glasduschwand ist dieses Modernisierungsprojekt in New York City von Pett & Associates. Die Glastrennwand reicht nach dem Umbau über die gesamte Badbreite und -höhe. Die Vorher-Nachher-Bilder zeigen den Unterschied in der Raumwirkung.
Nicht nur die Trennwand aus Glas ist eine praktische Lösung für das Mini-Gästebad mit Dusche, auch die Verwendung heller kleiner Fliesen wirkt sich hier optisch positiv aus. Der Raum scheint größer – und das trotz des neuen massiven Waschtischunterschranks.
Mehr zu: Worauf’s bei der Dusche ankommt | Duschen mit Oberlicht | Offenen Duschbereichen
Nicht nur die Trennwand aus Glas ist eine praktische Lösung für das Mini-Gästebad mit Dusche, auch die Verwendung heller kleiner Fliesen wirkt sich hier optisch positiv aus. Der Raum scheint größer – und das trotz des neuen massiven Waschtischunterschranks.
Mehr zu: Worauf’s bei der Dusche ankommt | Duschen mit Oberlicht | Offenen Duschbereichen
3. Einsetzen einer halbhohen Trennwand
Halbhohe Trennwände (ob als Installationswand oder Sichtschutz) sind in kleinen Bädern praktisch – sie nehmen kein Licht weg und wirken weniger einengend. Da eine halbhohe Trennwand nicht immer alle Wasserspritzer aufhält, sollte man den näheren Bereich um den Duschplatz zum Schutz mit Fliesen oder wasserfestem Putz versehen.
Der von Carde Reimerdes gestaltete Duschbereich punktet zudem mit einem Holzrost, durch den das Wasser in die niedrige Duschtasse abläuft.
Halbhohe Trennwände (ob als Installationswand oder Sichtschutz) sind in kleinen Bädern praktisch – sie nehmen kein Licht weg und wirken weniger einengend. Da eine halbhohe Trennwand nicht immer alle Wasserspritzer aufhält, sollte man den näheren Bereich um den Duschplatz zum Schutz mit Fliesen oder wasserfestem Putz versehen.
Der von Carde Reimerdes gestaltete Duschbereich punktet zudem mit einem Holzrost, durch den das Wasser in die niedrige Duschtasse abläuft.
4. Installationswand im Raum
Sanitäranlagen mitten in den Raum stellen – das kann auch und gerade bei einem kleinen Bad Sinn machen. Houzz-Userin Eleonora fragte in der Community nach Tipps für ihr kleines Gästebad. Expertin Beatrix Köthe schlug mit einer ersten Grundrissskizze diese Lösung vor: Eine kurze Zwischenwand, an der das Waschbecken verankert ist, kreiert gleichzeitig eine Duschnische. Zusätzlich wurde eine Schiebetür angedacht, die den restlichen Raum vor Spritzern schützt.
Sanitäranlagen mitten in den Raum stellen – das kann auch und gerade bei einem kleinen Bad Sinn machen. Houzz-Userin Eleonora fragte in der Community nach Tipps für ihr kleines Gästebad. Expertin Beatrix Köthe schlug mit einer ersten Grundrissskizze diese Lösung vor: Eine kurze Zwischenwand, an der das Waschbecken verankert ist, kreiert gleichzeitig eine Duschnische. Zusätzlich wurde eine Schiebetür angedacht, die den restlichen Raum vor Spritzern schützt.
5. Abtrennung mit Duschvorhang
Auch ein (lichtdurchlässiger) Duschvorhang als Abtrennung der Dusche zum restlichen Raum ist eine mögliche Lösung. Eine an der Wand befestigte Vorhangstange spart Platz. Der dünne Stoff kann nach dem Duschen einfach zur Seite geschoben werden, so dass der Raum wieder weiter wirkt.
Auch ein (lichtdurchlässiger) Duschvorhang als Abtrennung der Dusche zum restlichen Raum ist eine mögliche Lösung. Eine an der Wand befestigte Vorhangstange spart Platz. Der dünne Stoff kann nach dem Duschen einfach zur Seite geschoben werden, so dass der Raum wieder weiter wirkt.
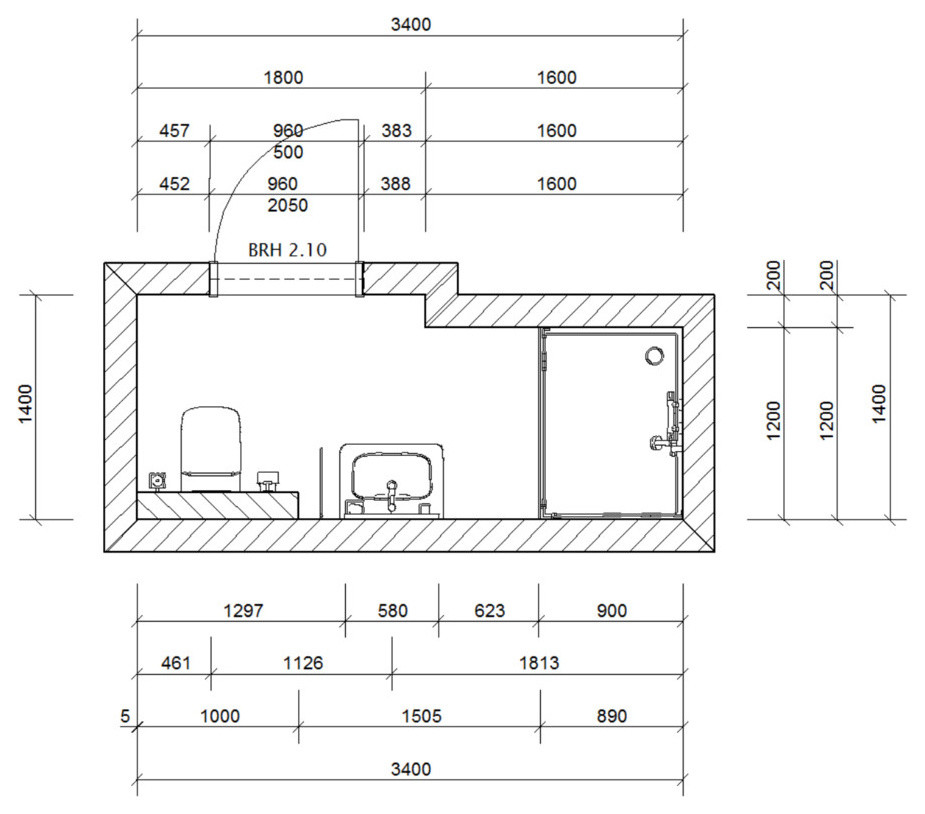
6. Nutzung der gesamten Badbreite
In vielen Fällen gibt die geringe Zimmerbreite des schmalen (Schlauch-)Bades die maximalen Maße der Dusche vor. So kann die Dusche bestenfalls an einem Ende des Raumes integriert werden. Auf dem Grundriss von Houzzer Lars Pressler ist diese Planungsidee gut zu erkennen. Der Einbau einer Duschkabine wird somit überflüssig, da die Wände gleich als seitliche Begrenzung dienen.
In vielen Fällen gibt die geringe Zimmerbreite des schmalen (Schlauch-)Bades die maximalen Maße der Dusche vor. So kann die Dusche bestenfalls an einem Ende des Raumes integriert werden. Auf dem Grundriss von Houzzer Lars Pressler ist diese Planungsidee gut zu erkennen. Der Einbau einer Duschkabine wird somit überflüssig, da die Wände gleich als seitliche Begrenzung dienen.
Ein Fenster am Ende des Raumes muss nicht zwangsläufig bedeuten, dass hier der Einbau einer Dusche unmöglich ist. Mit einer Sichtschutzfolie schützen Sie sich vor fremden Blicken – oder Sie setzen im Neubau gleich auf ein Oberlicht oder hochgelegenes Fenster. Das wenige Tageslicht kann durch große Spiegelflächen gelenkt sowie durch Decken- und Spiegelleuchten ergänzt werden. Die gefliesten Fensterbretter sind zudem praktisch als Ablage für Shampoo und Co..
Der Innenarchitekt dieses Stuttgarter Gästebads, Cyrus Ghanai, hat sich zudem für die Verwendung unterschiedlicher Bodenbeläge entschieden, um die Bereiche Waschtisch/Toilette und Dusche in einem sehr schmalen Schlauchbad optisch und funktionell voneinander zu trennen.
Damit das Waschbecken in der Mitte des Raumes angebracht, beziehungsweise die Tür geöffnet und der Schlauch überhaupt passiert werden kann, wählte er ein schmales Waschbecken mit seitlich befestigter Armatur.
Schmaler Grat: So gelingt das geräumige Schlauchbad >>>
Schmaler Grat: So gelingt das geräumige Schlauchbad >>>
7. Faltbare Dusche
Wenn das Gäste-WC nur zwei, drei Quadratmeter misst, Sie aber dennoch eine Dusche integrieren wollen, ist diese von Makhaja Design in einer Community-Diskussion vorgeschlagene Lösung clever: Um den Abfluss mitten im Raum kann bei Bedarf eine faltbare Duschkabine aufgestellt werden.
Wenn das Gäste-WC nur zwei, drei Quadratmeter misst, Sie aber dennoch eine Dusche integrieren wollen, ist diese von Makhaja Design in einer Community-Diskussion vorgeschlagene Lösung clever: Um den Abfluss mitten im Raum kann bei Bedarf eine faltbare Duschkabine aufgestellt werden.
8. Mini-Nasszelle für Gäste
Kleiner als klein ist dieses „wet bath“ in einem Londoner Gartenhaus von Mc Crum Interiors. Hier ist tatsächlich nicht einmal für eine temporäre Abtrennung Platz. Daher wurde die Dusche einfach mitten im Raum platziert. Das Ergebnis ist eine Nasszelle im wahrsten Sinne des Wortes, in der auch über der Toilette geduscht wird (alte Wohnmobile lassen grüßen!). Wichtig: der ganze Raum muss wasserfest sein …
Kleiner als klein ist dieses „wet bath“ in einem Londoner Gartenhaus von Mc Crum Interiors. Hier ist tatsächlich nicht einmal für eine temporäre Abtrennung Platz. Daher wurde die Dusche einfach mitten im Raum platziert. Das Ergebnis ist eine Nasszelle im wahrsten Sinne des Wortes, in der auch über der Toilette geduscht wird (alte Wohnmobile lassen grüßen!). Wichtig: der ganze Raum muss wasserfest sein …
9. Abgetrennter Duschraum
In dieser kanadischen Gästetoilette mit ungewöhnlichem Grundriss ist die Dusche hinter einer vermeintlichen Schranktür versteckt. Die beleuchtete Box bildet eine separate Nasszelle. Das Material der Tür sollte jedoch wasserabweisend imprägniert und die Tür gut isoliert sein, damit kein Wasser in den Toilettenraum durchdringt.
Planen Sie gerade den Neu- oder Umbau Ihres Gäste-WCs? Hier finden Sie Experten für Badplanung & Badsanierung
In dieser kanadischen Gästetoilette mit ungewöhnlichem Grundriss ist die Dusche hinter einer vermeintlichen Schranktür versteckt. Die beleuchtete Box bildet eine separate Nasszelle. Das Material der Tür sollte jedoch wasserabweisend imprägniert und die Tür gut isoliert sein, damit kein Wasser in den Toilettenraum durchdringt.
Planen Sie gerade den Neu- oder Umbau Ihres Gäste-WCs? Hier finden Sie Experten für Badplanung & Badsanierung



















Besonders für die Planung kleiner Badezimmer sind Maßnahmen wichtig, die den Raum optisch öffnen. Besonders geeignet ist zum Beispiel eine bodengleiche Dusche. Ohne Duschtasse ist der Raum frei von Schwellen, durch den durchgehenden Boden wirkt der ganze Raum großzügiger. Kontaktieren Sie hier einen Badprofi für die Planung