Architektur
Ein großzügiges Wohnhaus mit aufgesetzter Welle
Dieses Haus spielt mit unterschiedlichen Deckenhöhen. So erfüllt es die Bauauflagen und schafft dabei modernen Wohnraum
Ein Bebauungsplan aus den Sechzigerjahren hatte strikte Maße für das Dachgeschoss vorgegeben: Ein Satteldach mit einer Kniestock-Höhe von nur achtzig Zentimetern. Doch der Architekt Jörg Dettling ließ sich davon nicht abschrecken. Er entwarf ein Haus, bei dem das Obergeschoss praktisch aus dem Erdgeschoss herauswächst. Das Dach ahmt die Form einer sich brechenden Welle nach. Sein Entwurf hat nicht nur die Bauherren überzeugt, sondern auch die Behörden.
EXPERTENRAT FÜR IHR BAUPROJEKT: Architekten in Ihrer Nähe kostenlos anfragen
EXPERTENRAT FÜR IHR BAUPROJEKT: Architekten in Ihrer Nähe kostenlos anfragen
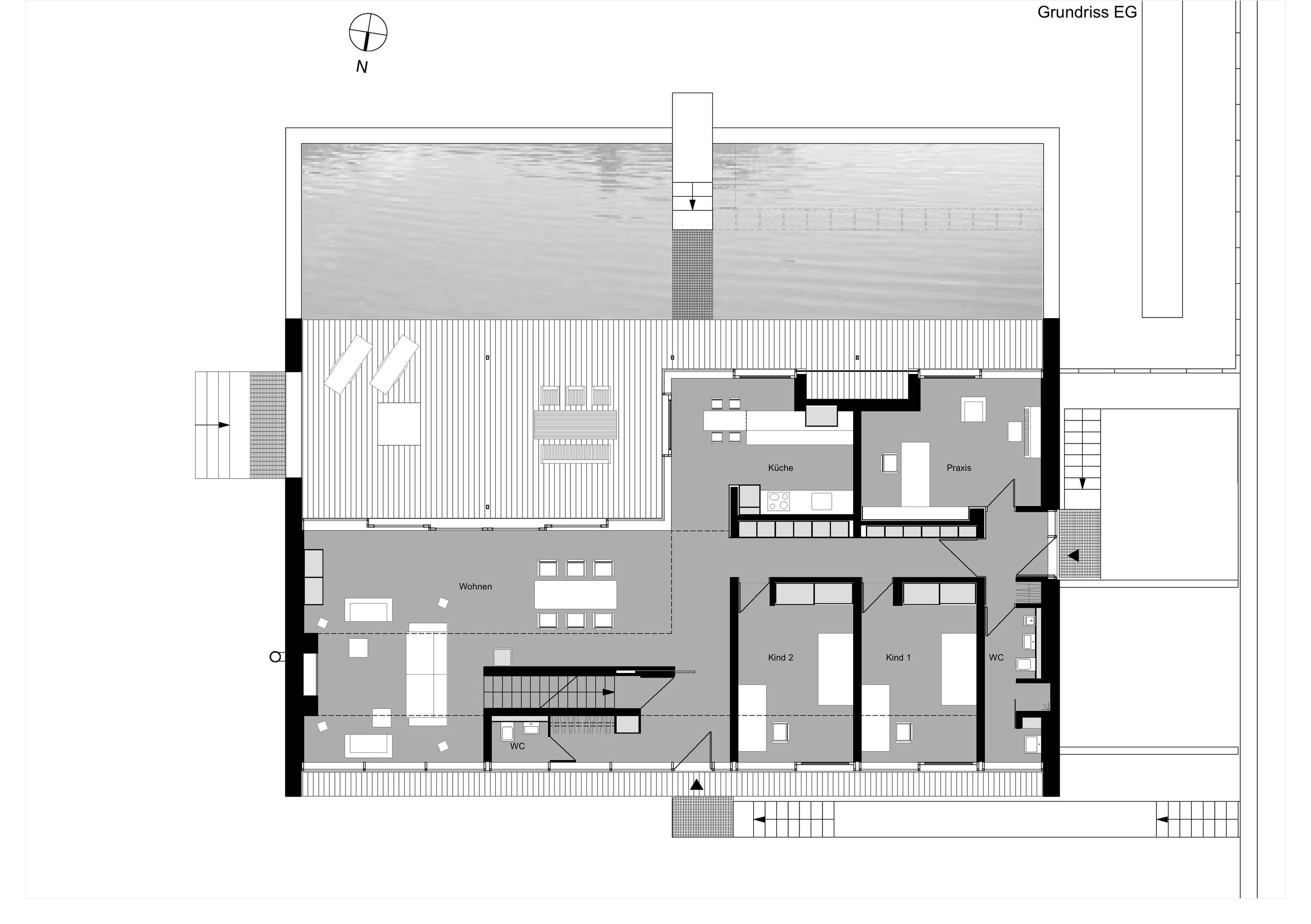
Die Küche liegt parallel zu diesem Flur, herausgeschoben aus dem länglichen Riegel. Eine Schiebetür öffnet den Raum zur angrenzenden, dem Essbereich vorgelagerten Terrasse. Dezente Stahlstützen tragen zwischen Terrasse und Innenraum die Dachkonstruktion. Das Erdgeschoss ist eine Konstruktion aus Gasbetonsteinen und Beton. Weiß verputzte Wände treffen auf schwarze Schieferplatten auf dem Fußboden und Einbaumöbel aus amerikanischem Nussbaum.
Im Wohnbereich, der sich an den Essbereich anschließt, umgeben großzügige Sofas einen Kamin. Sein Abzug läuft außen an der Hauswand entlang. „Der Kamin war für die Hausmitte geplant. Doch eigentlich mache ich das nur sehr ungern, wenn dadurch das Dach durchdrungen werden muss. Daher haben wir den Kamin an die Außenwand gesetzt und konnten so das Kaminrohr auch außen anbringen“, erklärt der Architekt.
EXPERTENRAT FÜR IHR BAUPROJEKT: Architekten in Ihrer Nähe kostenlos anfragen
EXPERTENRAT FÜR IHR BAUPROJEKT: Architekten in Ihrer Nähe kostenlos anfragen
Das Obergeschoss besteht aus einer Galerie mit Bibliothek und Arbeitsplatz, die sich den Luftraum mit dem darunterliegenden Wohnraum teilt. Bücherregale bilden die Absturzsicherung. „Alle Einbauschränke und Regale in diesem Haus sind mit amerikanischem Nussbaum furniert. Wir haben dafür zwei komplette Stämme in den USA gekauft“, verrät Dettling. Für den Fußboden hat er oben ein acht Millimeter starkes Industrieparkett aus Nussbaum gewählt.
Abgetrennt vom übrigen Wohnraum liegt am Ende der Galerie das Elternschlafzimmer mit Ankleide und Bad.
Das Bad ist der äußerste Raum an diesem Ende des Obergeschosses. Ein großes Fenster über Eck lässt viel Licht in den vergleichsweise kleinen Raum. Die Badewanne scheint in den Boden versenkt – zumindest sieht es so aus, wenn man es von der Oberkante des Erdgeschossdaches aus betrachtet. Tatsächlich führt sogar eine Stufe hinauf. Hier wird deutlich, wie der obere Baukörper in das Erdgeschoss abgesenkt ist.
Das Bad ist der äußerste Raum an diesem Ende des Obergeschosses. Ein großes Fenster über Eck lässt viel Licht in den vergleichsweise kleinen Raum. Die Badewanne scheint in den Boden versenkt – zumindest sieht es so aus, wenn man es von der Oberkante des Erdgeschossdaches aus betrachtet. Tatsächlich führt sogar eine Stufe hinauf. Hier wird deutlich, wie der obere Baukörper in das Erdgeschoss abgesenkt ist.
Stauraum im Bad ist unter der Wanne versteckt. Regale in der Trennwand zwischen dem Waschbecken und der Toilette sowie der Dusche geben Handtüchern und anderen Utensilien Platz.
Die Dachkonstruktion gleicht einem Flügelprofil. Um die Wellenform zu erreichen, musste das Blech gekantet und gebogen werden. Keine einfache Aufgabe, wenn das Ergebnis edel aussehen soll. „Der Bauherr war am Anfang skeptisch. Denn das gebogene Blech reflektiert das Licht so, dass alle Knicke sichtbar sind – auch die unerwünschten. Wir arbeiten aber mit einer hervorragenden Blechnerei zusammen, die das Dach sehr gut umgesetzt hat“, lobt der Architekt.
SIE SUCHEN PROFIS FÜR IHR HAUSDACH? Hier finden Sie Experten in Ihrer Nähe
Die Dachkonstruktion gleicht einem Flügelprofil. Um die Wellenform zu erreichen, musste das Blech gekantet und gebogen werden. Keine einfache Aufgabe, wenn das Ergebnis edel aussehen soll. „Der Bauherr war am Anfang skeptisch. Denn das gebogene Blech reflektiert das Licht so, dass alle Knicke sichtbar sind – auch die unerwünschten. Wir arbeiten aber mit einer hervorragenden Blechnerei zusammen, die das Dach sehr gut umgesetzt hat“, lobt der Architekt.
SIE SUCHEN PROFIS FÜR IHR HAUSDACH? Hier finden Sie Experten in Ihrer Nähe
Das Dach besteht aus einer Konstruktion aus Stahlträgern und -stützen, die im Innenraum mit Gipsbetonplatten verkleidet sind. Der Dachüberstand ist eine zehn Zentimeter starke Holzkonstruktion. Eine Aluhülle umgibt die gesamte Konstruktion. „Mit der Holzkonstruktion im Dachüberstand konnten wir die feine Dachkante erreichen und zugleich einer Wärmebrücke entgegenwirken“, erläutert Dettling. Der auskragende Überstand dient zugleich als konstruktiver Sonnenschutz.
Gitterroste schließen die Dachfläche des Erdgeschosses ab. Darunter ist die Entwässerung mit zwei ausgeformten Rinnen versteckt. „Es war relativ kompliziert, den Dachaufbau mit der Entwässerung so zu gestalten, dass es im Ergebnis schlicht aussieht“, beschreibt der Architekt. Gitterroste sind aber nicht nur auf dem Flachdachbereich verlegt. „Das Haus ist ringsum über Gitterroste erreichbar. Ganz gut mit Kindern im Haus. Über die Gitterroste verliert sich der erste Schmutz von den Schuhsohlen“, so der Architekt.
Gitterroste schließen die Dachfläche des Erdgeschosses ab. Darunter ist die Entwässerung mit zwei ausgeformten Rinnen versteckt. „Es war relativ kompliziert, den Dachaufbau mit der Entwässerung so zu gestalten, dass es im Ergebnis schlicht aussieht“, beschreibt der Architekt. Gitterroste sind aber nicht nur auf dem Flachdachbereich verlegt. „Das Haus ist ringsum über Gitterroste erreichbar. Ganz gut mit Kindern im Haus. Über die Gitterroste verliert sich der erste Schmutz von den Schuhsohlen“, so der Architekt.
Trittstufen an der Schmalseite des Hauses führen auf die Terrasse. Ein langer Steg überspannt den Schwimmteich und führt über die Terrasse ebenfalls ins Haus.
Das Haus kragt über den Boden leicht aus. Vor allem über dem Schwimmteich wirkt es daher, als würde es schweben.
Der Naturteich zieht sich über die gesamte Hauslänge. Sein Wasser läuft durch ein Filterbecken in einen Kellerraum des Hauses, wo es nochmals gefiltert und von dort wieder in das Schwimmbecken gepumpt wird. So kommt der Schwimmteich ohne chemische Reinigung aus.
Der Naturteich zieht sich über die gesamte Hauslänge. Sein Wasser läuft durch ein Filterbecken in einen Kellerraum des Hauses, wo es nochmals gefiltert und von dort wieder in das Schwimmbecken gepumpt wird. So kommt der Schwimmteich ohne chemische Reinigung aus.
Grundriss Obergeschoss
Eine Bibliothek mit Arbeitsplatz und der Elternbereich sind im Obergeschoss untergebracht. Die Ankleide der Eltern liegt hinter dem Kopfende des Bettes.
Eine Bibliothek mit Arbeitsplatz und der Elternbereich sind im Obergeschoss untergebracht. Die Ankleide der Eltern liegt hinter dem Kopfende des Bettes.
Grundriss Erdgeschoss
Der Eingang zum Wohnbereich befindet sich an der Nordseite des Hauses, der Eingang zur Praxis an der Westseite. Praxis und Kinderzimmer teilen sich ein Bad. Mit wenig Aufwand lässt sich der vordere Hausteil vom übrigen Wohnraum abtrennen und so zu einer separaten Wohneinheit umbauen.
Der Eingang zum Wohnbereich befindet sich an der Nordseite des Hauses, der Eingang zur Praxis an der Westseite. Praxis und Kinderzimmer teilen sich ein Bad. Mit wenig Aufwand lässt sich der vordere Hausteil vom übrigen Wohnraum abtrennen und so zu einer separaten Wohneinheit umbauen.
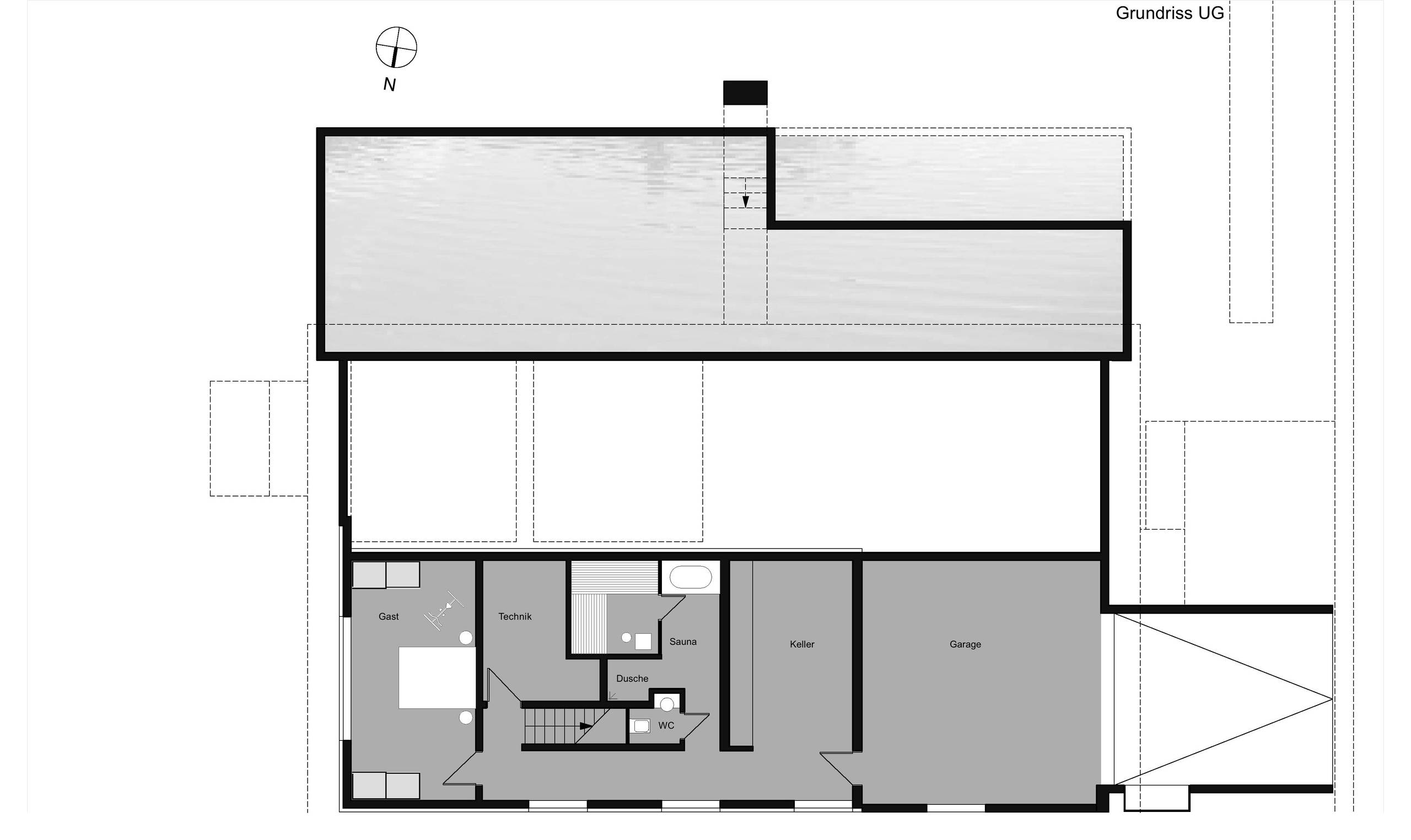
Grundriss Untergeschoss
Neben den Keller- und Technikräumen sind im Untergeschoss auch das Gästezimmer und ein Saunabereich untergebracht.
KOSTENLOSES ANGEBOT EINHOLEN: Architekten in Ihrer Nähe finden
WEITERLESEN:
► 8 Dachformen kurz erklärt
► Fördermittel nutzen: Hier gibt’s Geld vom Staat fürs Eigenheim
► Mehr Artikel zum Thema Hausbau
Neben den Keller- und Technikräumen sind im Untergeschoss auch das Gästezimmer und ein Saunabereich untergebracht.
KOSTENLOSES ANGEBOT EINHOLEN: Architekten in Ihrer Nähe finden
WEITERLESEN:
► 8 Dachformen kurz erklärt
► Fördermittel nutzen: Hier gibt’s Geld vom Staat fürs Eigenheim
► Mehr Artikel zum Thema Hausbau


















Hier wohnt und arbeitet: eine Familie mit zwei Kindern
Auf: 306 Quadratmetern
In: Karlsruhe
Experten: Dettling-Architekten
Fotos: Daniel Vieser
„Laut Bebauungsplan durfte das Dachgeschoss nur eine Drempelhöhe von achtzig Zentimetern haben. Für das Erdgeschoss waren die Vorschriften weniger restriktiv“, beschreibt Architekt Jörg Dettling, Inhaber des gleichnamigen Architekturbüros, seine Vorgaben. Dem länglichen Erdgeschoss gab er eine Raumhöhe von drei Metern. In diesen Riegel versenkte er einen Teil des Obergeschosses. So entstanden im Erdgeschoss unterschiedliche Deckenhöhen, während im Obergeschoss die geforderte Kniestock-Höhe eingehalten wurde.
Im Eingangsbereich liegt die Deckenhöhe bei drei Metern. Erst dahinter beginnt der eingeschobene, niedrigere Deckenbereich. Dieser öffnet sich dann aber wieder und übersteigt sogar die drei Meter, da sich der Wohnbereich teilweise den Luftraum mit dem Obergeschoss teilt.
Der Essbereich liegt gleich hinter dem Eingang. Er erschließt den Wohnraum des Erdgeschosses. Von hier führt ein Flur zu den beiden Kinderzimmern und dem anschließenden Bad. Am Ende des Flurs liegt ein weiterer Eingang. Von hier aus geht es zu einem Raum, der heute als Praxis genutzt wird, künftig aber auch Teil einer abgeschlossenen Wohneinheit im Erdgeschoss werden kann.