Houzzbesuch
Hier weit offen, da ganz geschlossen: Ein Haus in Hanglage
Mit Fenstern, die sich über eine ganze Hausseite erstrecken auf der einen, und totaler Abschottung auf der anderen Seite
„Bei Grundstücken mit Hanglage stellen sich oft dieselben Fragen“, sagt Architekt Patrick Schiller. „Wie schaffe ich zur Straße hin Privatheit, wie kriegen wir das hin, dass sich die Terrasse mit dem Garten verbindet, wohnen wir unten oder wohnen wir oben?“
Vor eben diesen Fragen stand ein Paar mit zwei Kindern. Ihr Grundstück in Hanglage liegt an einer kleinen Straße und bietet einen idyllischen Ausblick über das Filstal in Baden-Württemberg. Auf Empfehlung von Bekannten wandte sich das Paar mit zwei Kindern für den Bau ihres neuen Zuhauses an Schiller Architektur BDA. Gleich der erste Entwurf des Architekten entsprach den Vorstellungen der Familie und wurde genau so umgesetzt.
Vor eben diesen Fragen stand ein Paar mit zwei Kindern. Ihr Grundstück in Hanglage liegt an einer kleinen Straße und bietet einen idyllischen Ausblick über das Filstal in Baden-Württemberg. Auf Empfehlung von Bekannten wandte sich das Paar mit zwei Kindern für den Bau ihres neuen Zuhauses an Schiller Architektur BDA. Gleich der erste Entwurf des Architekten entsprach den Vorstellungen der Familie und wurde genau so umgesetzt.
Planungsskizze Schnitt
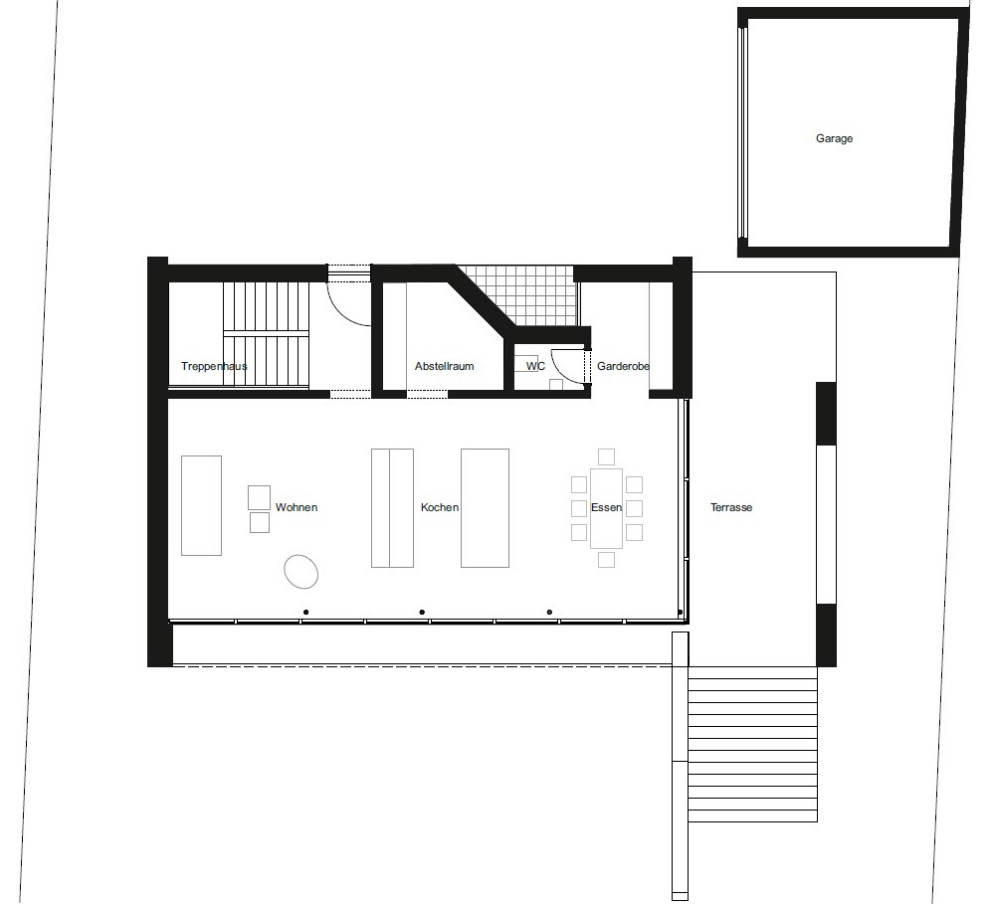
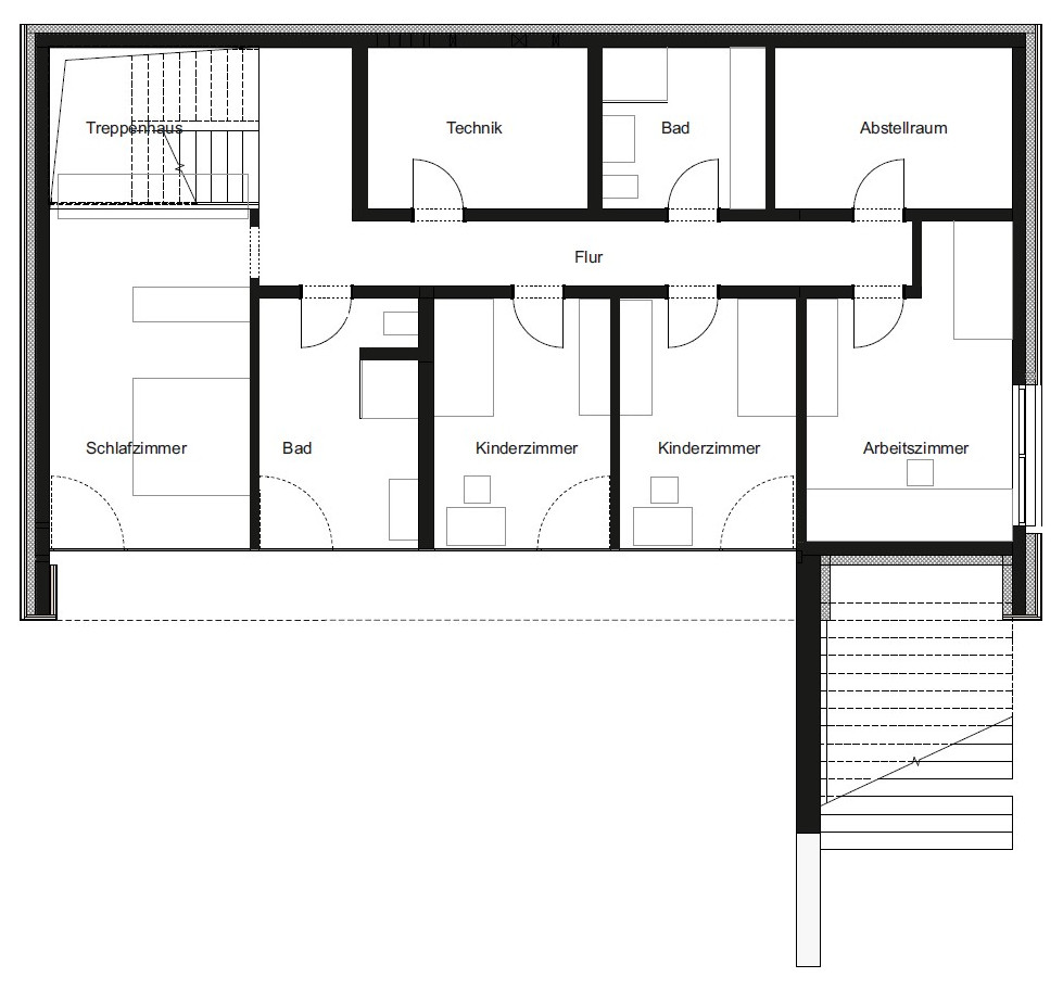
Die Familie entschied sich dafür, den Wohn-, Koch- und Essbereich in das obere Geschoss mit angrenzender Terrasse zu verlagern. In der unteren Etage befinden sich das Elternschlafzimmer, ein Bad, die beiden Jugendzimmer, und ein Arbeitszimmer. Dazu kommen noch zwei Abstellräume.
Die Familie entschied sich dafür, den Wohn-, Koch- und Essbereich in das obere Geschoss mit angrenzender Terrasse zu verlagern. In der unteren Etage befinden sich das Elternschlafzimmer, ein Bad, die beiden Jugendzimmer, und ein Arbeitszimmer. Dazu kommen noch zwei Abstellräume.
Grundriss Erdgeschoss (Eingangsebene)
Grundriss Untergeschoss (Gartenebene)
Ausblick statt Einblick. Während sich das Haus an der Südseite mit einer großzügigen Fensterfront zum Garten hin öffnet, ist es zur Straße hin völlig abgeschirmt. Kein einziges Fenster gefährdet die Privatsphäre von dieser Seite. „Das ist natürlich auch energetisch gesehen von Vorteil“, so Schiller.
Wohngebäude und Garage bilden eine Einheit. Der Eingang liegt etwas zurückgesetzt unter dem Dach. Die Gestaltung mit dunklen Farben und punktueller Bepflanzung ist bewusst minimalistisch gehalten.
Wohngebäude und Garage bilden eine Einheit. Der Eingang liegt etwas zurückgesetzt unter dem Dach. Die Gestaltung mit dunklen Farben und punktueller Bepflanzung ist bewusst minimalistisch gehalten.
Holz über die Firma Beinbrech
An der linken Seite, etwas versteckt durch die Garage, führt ein schmaler Durchgang zur Terrasse des Erdgeschosses. Ganz aus Holz und überdacht bietet sie einen geschützten Raum an der frischen Luft. Zur Seite hin halten Holzlamellen Blicke fern.
Nach hinten öffnet sich die Terrasse zum Garten; eine Treppe führt hinunter ins Grüne.
An der linken Seite, etwas versteckt durch die Garage, führt ein schmaler Durchgang zur Terrasse des Erdgeschosses. Ganz aus Holz und überdacht bietet sie einen geschützten Raum an der frischen Luft. Zur Seite hin halten Holzlamellen Blicke fern.
Nach hinten öffnet sich die Terrasse zum Garten; eine Treppe führt hinunter ins Grüne.
Hier kann die Familie an einem Tisch mit Bänken gemeinsam Essen und Zeit verbringen. Oder vielleicht auch einfach nur die Aussicht genießen.
Daneben beginnt der gemeinschaftliche Wohnraum, abgegrenzt durch eine mächtige Glastür. „Von innen wirkt es dadurch so, als würde der Wohnraum bis zu der Holzwand reichen“, so der Experte.
„Gufram Cactus Another Green Garderobe“ designt von Guido Drocco und Franco Mello, 1972
Offener Empfang. Beim Eintreten in den Wohnraum grüßt ein Pop-Art-Kaktus. Hier gibt es abgesehen von einer Abstellkammer und einem Gäste-WC keine weitere Unterteilung in einzelne Zimmer, sodass sich der Wohn-, Ess- und Kochbereich fast über die gesamte obere Etage erstreckt.
Offener Empfang. Beim Eintreten in den Wohnraum grüßt ein Pop-Art-Kaktus. Hier gibt es abgesehen von einer Abstellkammer und einem Gäste-WC keine weitere Unterteilung in einzelne Zimmer, sodass sich der Wohn-, Ess- und Kochbereich fast über die gesamte obere Etage erstreckt.
Stühle „Eames Plastic Chair“ von Vitra
Die offene Bulthaup-Küche ist so angelegt, dass sie das Geschoss gliedert. Der Essbereich ist dadurch zwar offen, jedoch gleichzeitig durch die Küchentheke begrenzt. Die hellen, matten Küchenfronten unterstützen das ruhige Gesamtbild.
Die offene Bulthaup-Küche ist so angelegt, dass sie das Geschoss gliedert. Der Essbereich ist dadurch zwar offen, jedoch gleichzeitig durch die Küchentheke begrenzt. Die hellen, matten Küchenfronten unterstützen das ruhige Gesamtbild.
Küche von Bulthaup, Fenster von Müller Fensterbau GmbH
Durch die lange Fensterfront fällt großzügig Tageslicht ein. Dank der großen, hellen Flächen erstrahlen die Wohnräume bei Tag fast wie von selbst freundlich und einladend.
Durch die lange Fensterfront fällt großzügig Tageslicht ein. Dank der großen, hellen Flächen erstrahlen die Wohnräume bei Tag fast wie von selbst freundlich und einladend.
Die Rückseite der Küche bildet den Wohnzimmerschrank. Die abwechslungsreiche Unterteilung der Fächer und die Verwendung eines zusätzlichen Farbtons beleben den Raum. In der Mitte befindet sich der große Fernseher, der auf dem Foto zunächst wie ein gerahmtes Bild erscheint.
Sofa „Bandas“ und Teppich „Catania“ von Gan; „Eames Lounge Chair“ von Vitra; an der Wand Textilfliesen „Clouds“ von Kvadrat
Der großzügige offene Wohnbereich endet schließlich mit einer gemütlichen Sofaecke. Designklassiker und die freundlichen Farben der Wohnaccessoires tun ihr Übriges.
Der großzügige offene Wohnbereich endet schließlich mit einer gemütlichen Sofaecke. Designklassiker und die freundlichen Farben der Wohnaccessoires tun ihr Übriges.
Abwärts. Eine schlicht gehaltene Treppe aus Metall mit Trittstufen aus Holz führt ins Untergeschoss. Ein Oberlicht lässt diese Ecke dabei nicht zu dunkel geraten. Was sich unterhalb der Grenze zum Sichtbeton wieder weiß abzeichnet, ist die Rückseite eines Einbauschranks, der zum angrenzenden Elternschlafzimmer gehört.
Lichtschalter von Gira
Der lange Flur führt zu den Privaträumen der Familie. Wände und Decken sind in Sichtbeton gestaltet. Schlichte Deckenspots sorgen für die richtige Beleuchtung, dazu ein hochwertiges Eichenparkett, handgebürstet und weiß geölt. Einen besonderen Farbakzent setzt die knallblaue Wand am Ende des Gangs.
Der lange Flur führt zu den Privaträumen der Familie. Wände und Decken sind in Sichtbeton gestaltet. Schlichte Deckenspots sorgen für die richtige Beleuchtung, dazu ein hochwertiges Eichenparkett, handgebürstet und weiß geölt. Einen besonderen Farbakzent setzt die knallblaue Wand am Ende des Gangs.
Und was gefällt dem Architekten selbst am besten an diesem Projekt? „Mein Highlight ist tatsächlich, wie toll die Kundschaft es eingerichtet hat“, sagt der Experte und fügt hinzu: „Ich baue Häuser, damit sich die Menschen darin wohlfühlen.“
Im Badezimmer setzt sich zunächst das Eichenparkett der unteren Etage fort. Im unmittelbaren Bereich der Sanitäranlagen setzte der Experte in Abstimmung mit dem Paar auf extra großformatige, strapazierfähige Laminam-Keramikplatten. Die Toilette verschwindet dezent in der Nische zwischen der Tür und der Wand zur Dusche.
Der Blick führt hinaus in den Garten. Das weitläufige Grundstück gewährleistet auch hier die Privatsphäre.
Vieles im Garten nahm die Auftraggeberin selbst in die Hand, in Absprache mit Architekt Schiller. So kam es auch, dass der Kalkstein, der als Aushub durch das beauftragte Bauunternehmen zutage trat, in die Planung integriert wurde. Es entstand eine etwa zwei Meter hohe Steinwand, die wie eine Stufe im Gelände das Grundstück zum Tal abgrenzt.






















Hier genießt den Ausblick und die Ruhe: eine vierköpfige Familie mit ihrem Hund
Im: Filstal, Baden-Württemberg
Expertise von: Schiller Architektur BDA
Weitere Gewerke: Fenster von Müller & Sohn, Holz über die Firma Beinbrech, Bauunternehmen Schleicher
Fotos: Philipp Mürdter