Houzzbesuch: Pariser Charme, modern interpretiert
Hell und elegant, Scandic- und Industrial-Chic – dieses Zwei-Zimmer-Apartment hat alles, was den besonderen Pariser Stil ausmacht
Junges Paar, erfolgreich, sucht Apartment. So hätte die Anzeige lauten können, als Mathieu (in leitender Position im Baugewerbe) und Julie (Headhunterin) beschlossen, ihre erste Eigentumswohnung zu kaufen. Ihre 43 Quadratmeter große Zwei-Zimmer-Wohnung im begehrten 8. Arrondissement von Paris fanden sie ohne Anzeige. Sie liegt in der vierten Etage eines imposanten Altbaus der Haussmann-Ära und war zwar wunderbar hell, aber leider auch extrem abgewohnt: brauner Teppichboden, orangefarbene Wände und Blümchentapete sowie verwinkelte Räume – hier war die letzten 30 Jahre so gut wie nichts gemacht worden. Hilfe fanden die frisch gebackenen Eigentümer bei Interior Designer Pierre Petit, der die Wohnung komplett auf den Kopf stellte und sie trotz eines relativ schmalen Budgets binnen zwei Monaten in ein modernes Kleinod im typischen Pariser Chic verwandelte.
Auf einen Blick
Hier wohnen: Julie und Mathieu, beide 27 Jahre alt und erfolgreich in leitenden Positionen tätig
In: der Rue d’Édimbourg, im 8. Arrondissement von Paris, Frankreich
Auf: 43 Quadratmetern
Dauer der Renovierung: April bis Mai 2015
Budget: 35 000 Euro
Experte: Pierre Petit
Fotos : Meero
Auf einen Blick
Hier wohnen: Julie und Mathieu, beide 27 Jahre alt und erfolgreich in leitenden Positionen tätig
In: der Rue d’Édimbourg, im 8. Arrondissement von Paris, Frankreich
Auf: 43 Quadratmetern
Dauer der Renovierung: April bis Mai 2015
Budget: 35 000 Euro
Experte: Pierre Petit
Fotos : Meero
Diese Tür führt ins Badezimmer. Ihr Rahmen in Eiche-Furnier harmoniert mit dem wunderschönen Fischgrätparkett aus Eiche. Der alte Holzfußboden „war eine echte Überraschung! Er lag versteckt unter dem Teppich.“ Petit ließ ihn abschleifen und mit Öl versiegeln. „Meine große Liebe zu Holz in all seinen Formen und Variationen geht zurück auf meine Zeit bei Ken en Sô, einem Hersteller für moderne Holzhäuser, bei dem ich meine ersten beruflichen Erfahrungen sammelte“, erzählt er. Ein weiteres Steckenpferd des Interior Designers sind Nischen in jeglicher Form – hier als Aussparung im Schrankelement. „Das Fach lockert die massive Schrankfront auf und ist ideal, für Dekoartikel und kleine Accessoires.“
Das skandinavisch anmutende Farbkonzept setzt sich im Küchenbereich fort. Der Tresen (zugleich Unterbau der Glas-Trennwand), die Arbeitsfläche und die offenen Regale sind allesamt aus Eiche maßgefertigt. „Die anderen Küchenmöbel stammen von Ikea, aber Einbauelemente wie diese verleihen der Küche etwas Hochwertiges. Auch mit wenig Geld kann man so einen tollen Look kreieren.“
Auch sonst hat diese Küche alles, was man braucht: Spülbecken, Herd mit Ofen, Mikrowelle, einen großen Kühlschrank und einen Geschirrspüler. „Besonders praktisch ist die Herd-Geschirrspüller-Kombination von Rosières – ein echtes Platzsparwunder!“
Auch sonst hat diese Küche alles, was man braucht: Spülbecken, Herd mit Ofen, Mikrowelle, einen großen Kühlschrank und einen Geschirrspüler. „Besonders praktisch ist die Herd-Geschirrspüller-Kombination von Rosières – ein echtes Platzsparwunder!“
Für den subtilen Industrial-Touch sorgen der Metallrahmen der Glas-Trennwand, die Haushaltsgeräte, der Edelstahl-Wasserhahn und die Türgriffe. Der Fußboden aus 30 x 60 Zentimeter großen Feinsteinzeugfliesen tut sein Übrigens. „Eine Küche ist nun einmal ein Nutzraum. Daher war es uns wichtig, dass alle Oberflächen – ob aus Metall oder Fliesen – nicht nur ein harmonisches Ganzes bilden, sondern auch pflegeleicht sind. Die warmen Holzelemente wiederum stellen eine optische Verbindung zum Rest der Wohnung her.“
In dieser Ecke zeigt sich schön, wie viel Liebe zum Detail der Interior-Designer bei der Gestaltung der Wohnung an den Tag legte. Der Eckschrank etwa ist mit einem herausdrehbaren Topfregal versehen; die schräg auslaufenden offenen Regale sind äußerst praktisch: „Da wir nur eine Umluft-Dunstabzugshaube installieren konnten, war es wichtig, dass sich das Fenster noch weit öffnen lässt – die schräg zulaufenden Regale sind die perfekte Lösung. Und toll sehen sie auch noch aus!“
Als Spritzschutz verwendete Petit Metro-Fliesen, allerdings in leicht abgewandelter Form. „An klassischen Metro-Fliesen habe ich mich inzwischen einfach sattgesehen“, erklärt der Interior-Designer, der lieber Trends setzt als ihnen folgt.
Als Spritzschutz verwendete Petit Metro-Fliesen, allerdings in leicht abgewandelter Form. „An klassischen Metro-Fliesen habe ich mich inzwischen einfach sattgesehen“, erklärt der Interior-Designer, der lieber Trends setzt als ihnen folgt.
Das Wohnzimmer ist im Verhältnis zur Größe der Wohnung recht geräumig und bietet genügend Platz für einen Essbereich, einen Wohnbereich mit Sofaecke und Couchtisch sowie eine Fernsehecke (auf der Rückseite des Einbauschranks, auf dem Foto nicht zu sehen).
Eigentlich hatten Julie und Mathieu vor, die Möbel aus ihren vorherigen Wohnungen mitzubringen, „aber ihnen wurde schnell klar, dass die alten Sachen einfach nicht hierher passen würden“, so Petit. Die neue Einrichtung haben die Eigentümer und der Interior-Designer gemeinsam ausgesucht, wobei Petit dem jungen Paar vor allem bei der Farbwahl zur Seite stand.
Eigentlich hatten Julie und Mathieu vor, die Möbel aus ihren vorherigen Wohnungen mitzubringen, „aber ihnen wurde schnell klar, dass die alten Sachen einfach nicht hierher passen würden“, so Petit. Die neue Einrichtung haben die Eigentümer und der Interior-Designer gemeinsam ausgesucht, wobei Petit dem jungen Paar vor allem bei der Farbwahl zur Seite stand.
Zu den neuen Möbelstücken gehören: die bequemen Stühle im Essbereich, die Hängeleuchte „Hive“, die die Eigentümer auf der Onlineplattform AliExpress gekauft haben (eine ähnliche gibt es bei Made), sowie das gemütliche Sofa, das auch ein prima Gästebett abgibt. Der Teppich war für Julie und Mathieu ein absolutes Muss (obwohl Petit eigentlich dagegen war). Die Nachbarn von unten werden es ihnen sicher danken!
Stühle: Flex Back, Drawer; Sofa: Maison du Convertible; Couchtisch: Fleux
Stühle: Flex Back, Drawer; Sofa: Maison du Convertible; Couchtisch: Fleux
Der Kamin ist eines der vielen Elemente, die den besonderen Charme von Gebäuden der Haussmann-Ära ausmachen. Trotz der geringen Wohnfläche wollten die Eigentümer und der Interior-Designer ihn unbedingt behalten. Ursprünglich war er aus rotem Marmor mit weißer Äderung, doch Petit holte ihn mit einem frischen Anstrich in mattem Anthrazit ins 21. Jahrhundert. Den Stuckrahmen darüber, vormals goldfarben, ließ er weiß streichen.
Bei der Dekoration haben Julie und Mathieu sich als echte Sparfüchse erwiesen: Die Fotowand haben sie aus Fotos von Instagram selbst gemacht. Die 40 mal 40 Zentimeter großen Rahmen sind von Ikea. Die Vasen auf dem Couchtisch haben alle zusammen nur fünf Euro gekostet; und auch der Kerzenständer auf dem Kaminsims war ein echtes Schnäppchen – gekauft in einem Monoprix-Supermarkt.
Bei der Dekoration haben Julie und Mathieu sich als echte Sparfüchse erwiesen: Die Fotowand haben sie aus Fotos von Instagram selbst gemacht. Die 40 mal 40 Zentimeter großen Rahmen sind von Ikea. Die Vasen auf dem Couchtisch haben alle zusammen nur fünf Euro gekostet; und auch der Kerzenständer auf dem Kaminsims war ein echtes Schnäppchen – gekauft in einem Monoprix-Supermarkt.
Die Einrichtung des elf Quadratmeter großen Schlafzimmers ist auf das Wesentliche reduziert: ein Bett und zwei kleine Nachttischchen. Hinter der Tür neben dem Fenster befand sich früher das Bad. Nachdem der Durchgang geschlossen wurde, nutzt Julie, die sich selbst als eingefleischten Mode-Fan beschreibt, den Platz innerhalb des Türrahmens als Schuhschrank. Für die Wand hinter dem Bett wählte Petit ein Graugrün von Guittet.
Das Nachtschränkchen aus Lochmetall bringt einen subtilen Industrial Touch in den Raum und passt perfekt zu der geradlinigen Wandleuchte und dem geometrischen Print der Bettwäsche.
Bettwäsche: Tradilinge, Camif
Bettwäsche: Tradilinge, Camif
Petit ist ganz und gar kein Freund von übertriebener Symmetrie: die einzelne Wandleuchte (ein Entwurf on Serge Mouille), asymmetrisch über dem Bett platziert, ist daher ganz in seinem Sinne. Dass er auf klassische Leseleuchten verzichtete, erklärt er so: „Man muss eben mit der Zeit gehen! Heutzutage liest ohnehin niemand mehr im Bett ein Buch. Die jungen Leute lesen eher auf dem iPhone, iPad oder Kindle, da braucht es kein Leselicht mehr. Ich bin zum Beispiel auch ein Fan großer Bücherwände, aber meine Kunden haben keine Bücher mehr. Heutzutage ist alles digital.“ Was in den kleinen Pariser Wohnungen aber auch durchaus ein Vorteil sein kann…
Die Deckenleuchte haben Julie und Mathieu später selbst hinzugefügt.
Die Deckenleuchte haben Julie und Mathieu später selbst hinzugefügt.
Da die Wand gegenüber dem Bett etwas schräg war, ließ Petit einen über die gesamte Wandbreite verlaufenden Schrank einbauen, der dies geschickt ausgleicht. Er ist an einem Ende 60 Zentimeter tief (ideal für eine Kleiderstange) und am anderen Ende 40 Zentimeter (dort befinden sich die Einlegeböden). „Der riesige Schrank ist genau richtig für Julie und ihre ganzen Klamotten,“ so Petit.
Während die Fronten aus schlichter, weiß beschichteter Spanplatte sind, stellte Petit mit den Türgriffen aus Eiche erneut seine große Liebe fürs Detail unter Beweis. „Sie nehmen das Holzthema wieder auf und lassen den Schrank hochwertig wirken. Die extrahohen Griffe sind ein wahrer Segen: Sie verlaufen über drei Viertel der Türhöhe, so dass man sich keine Gedanken darüber machen muss, wo man hingreift. Das Türöffnen wird zur ganz natürlichen Bewegung. Man muss es einfach einmal selbst ausprobiert haben!“
Während die Fronten aus schlichter, weiß beschichteter Spanplatte sind, stellte Petit mit den Türgriffen aus Eiche erneut seine große Liebe fürs Detail unter Beweis. „Sie nehmen das Holzthema wieder auf und lassen den Schrank hochwertig wirken. Die extrahohen Griffe sind ein wahrer Segen: Sie verlaufen über drei Viertel der Türhöhe, so dass man sich keine Gedanken darüber machen muss, wo man hingreift. Das Türöffnen wird zur ganz natürlichen Bewegung. Man muss es einfach einmal selbst ausprobiert haben!“
Das neue Badezimmer ist klein und funktional. Vor dem Umbau befand es sich, getrennt vom WC, in einem vom Wohnzimmer abgezwackten Raum, den man über das Schlafzimmer betrat. Im Zuge der Renovierung wurde es mit dem WC im Eingangsbereich zusammengelegt. Außerdem gibt es hier noch einen Waschtisch sowie eine Dusche mit bodengleicher Wanne aus Solid Surface, einem Mineralwerkstoff, der vielseitig einsetzbar ist.
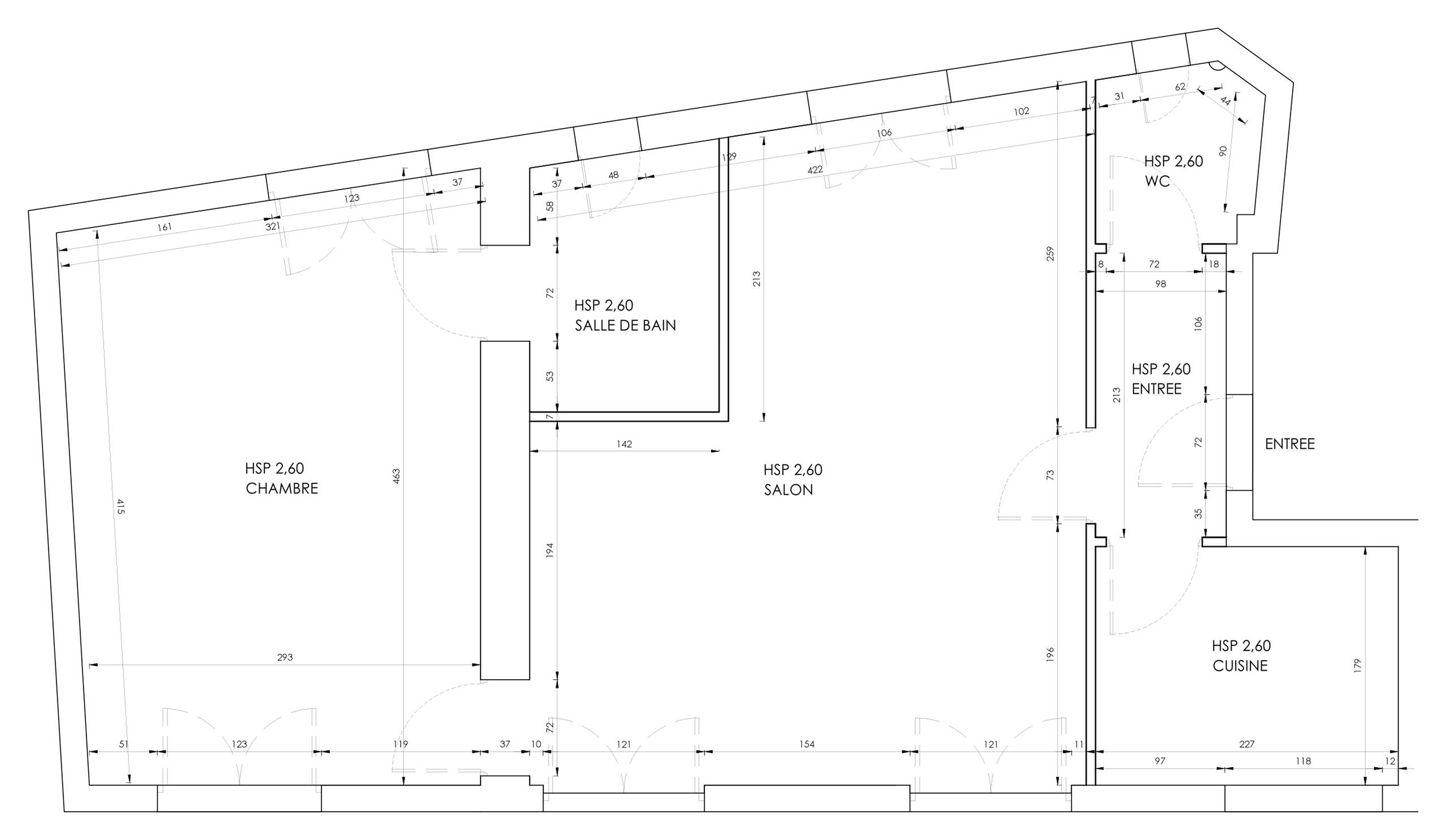
Das ist der Grundriss der Wohnung vor dem Umbau:
Die wichtigste Veränderung ist die Verlegung des Badezimmers, das sich früher in einem vom Wohnzimmer abgetrennten Raum befand und vom Schlafzimmer aus zugänglich war. Im Zuge der Renovierung wurde es mit dem WC im Eingangsbereich zusammengelegt.
Die wichtigste Veränderung ist die Verlegung des Badezimmers, das sich früher in einem vom Wohnzimmer abgetrennten Raum befand und vom Schlafzimmer aus zugänglich war. Im Zuge der Renovierung wurde es mit dem WC im Eingangsbereich zusammengelegt.
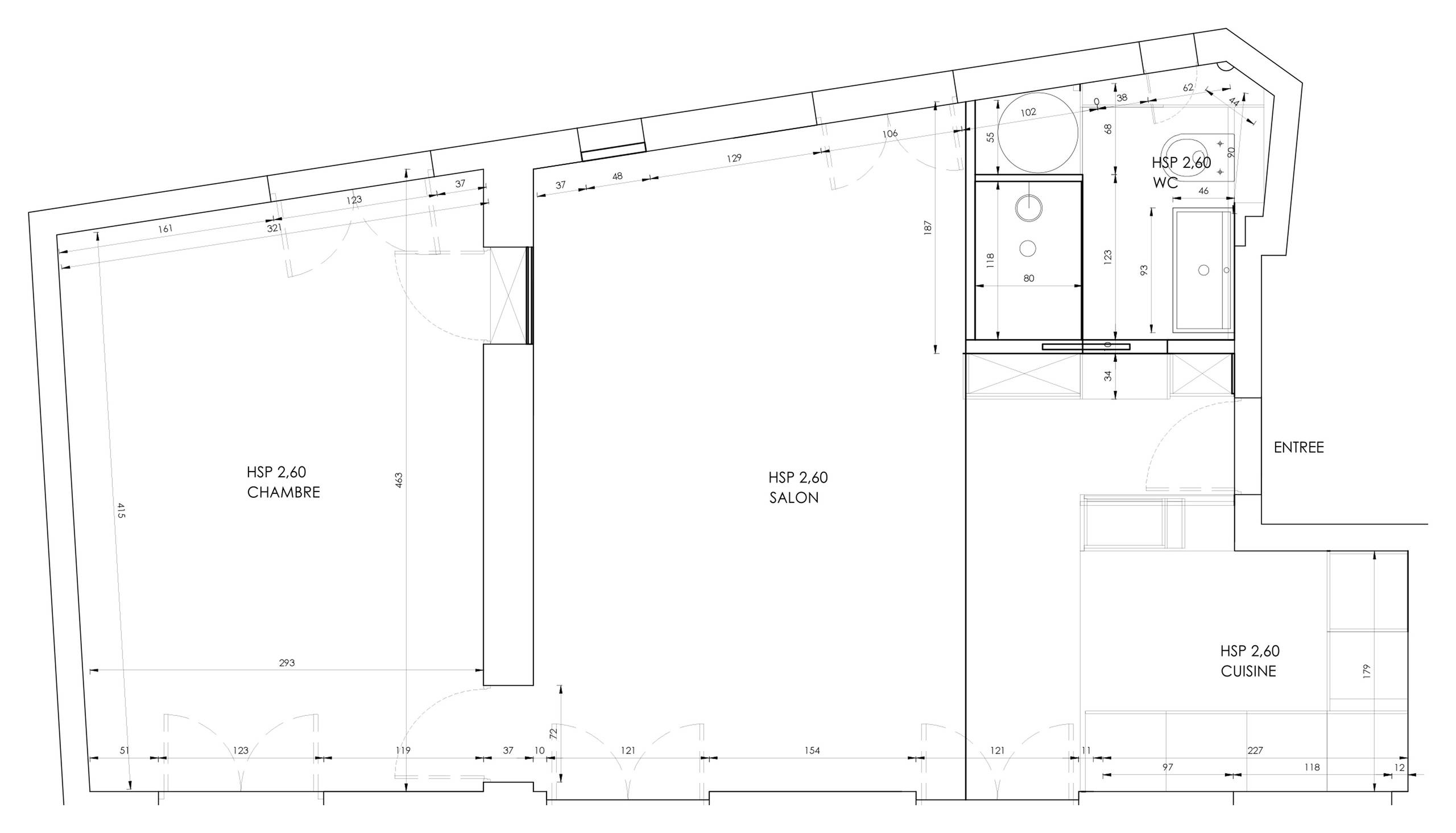
Heute sieht der Grundriss so aus: Die Trennwand zur Küche wurde herausgerissen und das ehemalige Bad im Wohnzimmer komplett zurückgebaut. Der Türdurchgang in der tragenden Wand zwischen Schlaf- und ehemaligem Badezimmer ist jetzt ein Schuhschrank.
Entdecken Sie die „Vorher“-Bilder zu dieser Wohnung im Projektordner >>>
In unserer Rubrik „Houzzbesuch“ stellen wir spannende Projekte der Houzz-Experten vor, aber auch originelle Wohnungen von Privatleuten. Ihr Projekt oder Ihr Zuhause passt perfekt? Dann schreiben Sie uns – und schicken Sie am besten ein paar Fotos mit!
Entdecken Sie die „Vorher“-Bilder zu dieser Wohnung im Projektordner >>>
In unserer Rubrik „Houzzbesuch“ stellen wir spannende Projekte der Houzz-Experten vor, aber auch originelle Wohnungen von Privatleuten. Ihr Projekt oder Ihr Zuhause passt perfekt? Dann schreiben Sie uns – und schicken Sie am besten ein paar Fotos mit!





















„Bei der Gestaltung ließen mir Julie und Mathieu völlig freie Hand. Ihr einziger konkreter Wunsch war eine große, offene Wohnküche als Lebensmittelpunkt.“ Petits erster Vorschlag: ein richtiger Eingangsbereich. Optisch markiert wird dieser zur Küche hin durch ein Atelierfenster mit Stahlrahmen, das Tageslicht durchlässt. Auf der anderen Seite hat Petit einen großen Einbauschrank platziert: „Kleine Wohnungen können schnell chaotisch wirken. Auf so geringer Wohnfläche einen cleanen Look zu kreieren, ist eine Herausforderung. Ein Einbauschrank ist eine tolle Möglichkeit, Ordnung zu schaffen.“
Zusätzlich hat Petit in Eingangsbereich und Küche die Decke abhängen lassen, um Leitungen und Kabel zu verstecken.