Houzzbesuch: Wohnen in Nachtblau, Grau und Orange in Berlin
Wandgleiche Schrankoberflächen und viel versteckter Stauraum prägen ein großzügiges Wochenendheim für zwei
Der Innenarchitekt Franz Thies kannte die Kunden schon von anderen Projekten. Weil ihm ihr Stil vertraut war, wusste er, worauf sie Wert legten: optimale Voraussetzung, um das neue Wochenenddomizil des Paares zu gestalten. Der Grundriss des Apartments in Berlin sah ursprünglich vier Räume auf siebzig Quadratmetern vor. Franz Thies hingegen entwarf eine Wohnsituation, die nichts mehr mit dem kleinteiligen Entwurf des Bauträgers gemein hat.
Nun wirkt es wie ein eingestellter Kubus, der den offenen Wohn-Ess-Kochbereich vom Schlafraum mit Ankleide trennt. Ummantelt wurden die Wände mit nachtblau lackierten MDF-Platten. Zum Wohnbereich hin wurde ein Sofa an die Wand gerückt, das sich problemlos zur bequemen Schlafstätte für zwei Gäste aufklappen lässt.
Fast alle Möbel sowie sämtliche Accessoires und Leuchten hat der Innenarchitekt ausgewählt. Hinter dem Sofa ist an der oberen Kante der Platten eine Galerieschiene eingearbeitet. „Galerieschienen sehen nicht besonders schön aus. Wir haben sie in dem Spalt zur Decke versteckt, was durchaus Geschick erfordert“, erklärt Thies. Er hat auch die Kunstwerke in der Wohnung ausgesucht und war bei der Hängung darauf bedacht, dass die Bilder ausgetauscht oder weitere hinzugefügt werden können. Mit der Galerieschiene ist das problemlos möglich.
Die ursprünglich weißen Wände hat er mit edlen Grastapeten versehen. Die leicht grobe Oberfläche wirkt ebenso schalldämmend wie die Vorhänge und Teppiche und sorgt so für eine angenehme Akustik.
Fast alle Möbel sowie sämtliche Accessoires und Leuchten hat der Innenarchitekt ausgewählt. Hinter dem Sofa ist an der oberen Kante der Platten eine Galerieschiene eingearbeitet. „Galerieschienen sehen nicht besonders schön aus. Wir haben sie in dem Spalt zur Decke versteckt, was durchaus Geschick erfordert“, erklärt Thies. Er hat auch die Kunstwerke in der Wohnung ausgesucht und war bei der Hängung darauf bedacht, dass die Bilder ausgetauscht oder weitere hinzugefügt werden können. Mit der Galerieschiene ist das problemlos möglich.
Die ursprünglich weißen Wände hat er mit edlen Grastapeten versehen. Die leicht grobe Oberfläche wirkt ebenso schalldämmend wie die Vorhänge und Teppiche und sorgt so für eine angenehme Akustik.
Bei der Farbgebung hat sich der Innenarchitekt an den Teppichen orientiert. „Ich wusste, dass die Kunden Orientteppiche schätzen. Das kam mir ganz gelegen, da ich in Wohnungen gerne alte Stücke verwende. Es darf nicht alles neu sein, es muss auch Brüche geben“, so Thies. Nachtblau, Grau und Orange bestimmen den Ton. Dazu kommt dunkles Braun, das sich in den Couchtischen, vor allem aber im dunklen Eichenparkett findet.
Auch der Esstisch ist aus dunklem Holz. Mit einer einsetzbaren Platte lässt er sich vergrößern und bietet dann Platz für sechs Personen. Genauso viele lederbezogene Stühle sind in der Wohnung vorhanden, verstaut und verteilt in verschiedenen Ecken. Stauraum gibt es genug. Auch in der Küche.
Ein Herd mit Abluftsystem nach unten sorgt für Kopffreiheit beim Kochen. Die Fronten der bis unter die Decke reichenden Hängeschränke sind etwas länger als ihre Korpusse. Dieser geringe Überstand ersetzt den Griff. „Grifflose Hängeschränke verstärken den Effekt, dass die Fronten wie eine Wandfläche aussehen“, erklärt der Innenarchitekt. Als Arbeitsfläche und Spritzschutz hat er pflegeleichten Silestone in der Farbe der Küchenfronten gewählt.
„Ich entwerfe fast jede Küche selbst, da ich die Möbel der Raumsituation optimal anpassen und so Kundenwünsche besser realisieren kann“, erklärt Thies. Diese Küche ließ er aus grau lackierten MDF-Platten fertigen.
„Ich entwerfe fast jede Küche selbst, da ich die Möbel der Raumsituation optimal anpassen und so Kundenwünsche besser realisieren kann“, erklärt Thies. Diese Küche ließ er aus grau lackierten MDF-Platten fertigen.
Die weiß gestrichene Wohnungstür durfte nicht verändert werden. „Links und rechts der Eingangstür sind Schaltkästen und Zähler montiert. Das ließ die Raumsituation durch die Vor- und Rücksprünge sehr unruhig erscheinen. Wir haben sie daher verkleidet“, sagt der Profi. Hinter der Verkleidung ist zudem Stauraum entstanden, etwa für Staubsauger und Stühle.
Das offene Fach setzt einen orangefarbenen Akzent vor dem grauen Hintergrund. Die Bewohner nutzen die Ablagefläche für Briefe, Schlüssel oder Smartphone.
Die Ankleide grenzt an das Schlafzimmer. Weil die Bewohner sie gelegentlich auch als Arbeitsplatz nutzen, wurde sie mit einem kleinen Biedermeiertisch ausgestattet. „Mit dem kleinen Arbeitstisch und dem alten, handgefertigten Teppich davor sind wieder zwei alte Elemente in das Apartment eingezogen“, so Thies.
Leichte Vorhänge vor den Fenstern bieten bei Tag Sonnen- und Sichtschutz. Dichtere Vorhänge aus Wildseide, gefüttert mit einem Verdunklungsstoff, sorgen nachts dafür, dass die Lichter der Großstadt nicht den Schlaf stören. „Der Farbton heißt Greige. Im Grunde ein Grau, dem durch einen Hauch von Braun die Kälte genommen wird“, erklärt Thies.
Das Bett wurde mit dem Kopfende an den Badezimmer-Kubus gestellt. „Mit einem Nachttisch links und rechts des Bettes wirkt das Schlafzimmer recht antiquiert. Durch zwei unterschiedliche Ablageflächen ist es aufgelockerter“, so der Innenarchitekt.
„Wir haben einen Teil der grauen Wandverkleidung als blinde Tür gefertigt. Sie führt nirgendwo hin. Ist sie aber um neunzig Grad geöffnet, trennt sie den Schlafraum vom übrigen Wohnraum“, erklärt Thies. Die Wandfläche dahinter hat er mit einer Bildtapete verkleidet.
Neben dem Bad befindet sich in dem Kubus weiterer Stauraum.
Die Badezimmertür liegt genau gegenüber der Eingangstür. Dass beim Betreten der Wohnung der erste Blick auf die Tür fällt, fand Thies nicht optimal. Da er sie nicht versetzen konnte, hat er sie vollflächig mit einem Spiegel verkleidet. So wurde sie unsichtbar.
Die Badezimmertür liegt genau gegenüber der Eingangstür. Dass beim Betreten der Wohnung der erste Blick auf die Tür fällt, fand Thies nicht optimal. Da er sie nicht versetzen konnte, hat er sie vollflächig mit einem Spiegel verkleidet. So wurde sie unsichtbar.
Die Wände im Bad ließ der Innenarchitekt im hellen Grauton der Fliesen streichen. Dazu hat er einen orange umrandeten Spiegelschrank aufgehängt. Hinter dem leichten Rollo, das einen indischen Hochzeitszug zeigt, sind Waschmaschine und Trockner sowie Reinigungsutensilien versteckt. „Im Grunde ist es ein Standardbad, aufgewertet mit kleinen Details“, sagt der Experte.
Neben einer Bank aus Teakholz mit orange-beige gemusterten Auflagen hat Thies auf dem Balkon einen orangefarbenen Tisch und zwei gleichfarbige Klappstühle arrangiert.
IM ÜBERBLICK
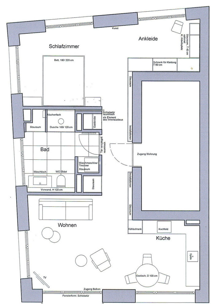
Der Grundriss zeigt die Aufteilung der Wohnung – inklusive der Einbauten und Möbel.
Der Grundriss zeigt die Aufteilung der Wohnung – inklusive der Einbauten und Möbel.






















Hier verbringt das Wochenende: ein Ehepaar
Auf: 70 Quadratmetern
In: Berlin
Besonderheit: offener Grundriss mit viel verstecktem Stauraum
Experte: Franz Thies Innenarchitektur
Fotos: Jens Schumann, Franz Thies
„Ich erfasse recht schnell die Bedürfnisse, Anforderungen und Erwartungen meiner Kunden an deren neue Wohnsituation“, beschreibt der Innenarchitekt Franz Thies seine Arbeit. Bei diesem Apartment musste er nicht lange nachforschen, schließlich kannte er seine Kunden schon von früheren Projekten. Er hatte bereits ihren Hauptwohnsitz und ihre Arbeitsstätten gestaltet.
Der vom Bauträger geplante Grundriss des neuen Wochenenddomizils in Berlin sah vier Räume vor, was die 70 Quadratmeter große Wohnung hätte klein wirken lassen. Thies beschloss, einen offenen Raum zu gestalten. Einzig das Bad grenzte er durch Wände ab.