Mehr Raum für die Küche? 6 Beispiele zeigen, wie es gelingen kann
Geräumiger kochen oder ausgedehnter am Küchentisch sitzen? Man nehme… Raum von nebenan!
„Man nehme…“, mit diesen Worten beginnen die Rezepte in manchem Kochbuch. Diese Worte treffen aber auch auf so manche Küchenvergrößerung zu. Dann geht es nicht um Zucker und Mehl, Kartoffeln und Karotten, sondern um Räume, Quadratmeter und oft auch Vorschlaghämmer. Wie sich aus kleinen Küchenzeilen geräumige Wohnküchen machen lassen, zeigen viele Beispiele der Houzz-Profis. Wir haben sechs herausgepickt.
Im linken Grundriss sind Bad und Speisekammer noch dort, wo sich jetzt die Küchenzeile der Wohnküche entlangzieht, wie im rechten Grundriss zu sehen ist.
Für die Optimierung Ihrer Räume finden Sie hier passende Expert*innen.
Für die Optimierung Ihrer Räume finden Sie hier passende Expert*innen.
2. Ins Bad geschoben
Großzügig hat das Bad Quadratmeter an die Küche abgegeben. Der Hochschrank schiebt sich auf den Platz, der zuvor von Waschbecken und Co. besetzt war. Zudem dehnen sich Kücheninsel und -schränke in den Essbereich aus. Das Team von IFUB* hat dafür beim Umbau der Wohnung in Berlin die ehemals trennende Wand zwischen Küche und Esszimmer einreißen lassen.
Großzügig hat das Bad Quadratmeter an die Küche abgegeben. Der Hochschrank schiebt sich auf den Platz, der zuvor von Waschbecken und Co. besetzt war. Zudem dehnen sich Kücheninsel und -schränke in den Essbereich aus. Das Team von IFUB* hat dafür beim Umbau der Wohnung in Berlin die ehemals trennende Wand zwischen Küche und Esszimmer einreißen lassen.
Im Grundriss ist gut zu sehen, wie Küche und Bad aneinanderliegen. Das Bad wurde durch den Umbau zwar kleiner, aber nicht weniger komfortabel.
3. Raum geben, statt nehmen
In einer Maisonette in Hamburg-Winterhude gehen Küche und Treppe Hand in Hand – oder besser Stufe in Stufe. Denn Innenarchitektin Carola Augustin hat die neue Faltwerktreppe bei der Renovierung auf den Kücheneinbauten aufgelegt. Dadurch nutzt sie den Raum unter der Treppe optimal. Im Grunde wurde hier also kein Raum für die Vergrößerung der Küche abgezwackt. Der vorhandene Raum wurde einfach besser genutzt.
In einer Maisonette in Hamburg-Winterhude gehen Küche und Treppe Hand in Hand – oder besser Stufe in Stufe. Denn Innenarchitektin Carola Augustin hat die neue Faltwerktreppe bei der Renovierung auf den Kücheneinbauten aufgelegt. Dadurch nutzt sie den Raum unter der Treppe optimal. Im Grunde wurde hier also kein Raum für die Vergrößerung der Küche abgezwackt. Der vorhandene Raum wurde einfach besser genutzt.
Viel Stauraum ist unter der Treppe entstanden, auch für Backofen und Kühlschrank.
4. Die Küche, das Arbeitszimmer
Der Arbeitsraum Küche war entschieden zu klein, entschied das Bauehepaar. Die Wohnkomplizen expandierten daher ins angrenzende Arbeitszimmer und verbanden die beiden kleinen Kämmerchen zu einer hellen Wohnküche. Ein separates Arbeitszimmer gibt es im Erdgeschoss des Altbaus nun nicht mehr, aber das wird auch nicht benötigt.
Der Arbeitsraum Küche war entschieden zu klein, entschied das Bauehepaar. Die Wohnkomplizen expandierten daher ins angrenzende Arbeitszimmer und verbanden die beiden kleinen Kämmerchen zu einer hellen Wohnküche. Ein separates Arbeitszimmer gibt es im Erdgeschoss des Altbaus nun nicht mehr, aber das wird auch nicht benötigt.
Von der vormals trennenden Wand ist nur ein Reststück übrig geblieben.
5. Geöffnet nach nebenan
In dieser Altbauwohnung in München wurde der gesamte Grundriss neu geordnet. Dabei hat die Küche an Raum hinzugewonnen, auch weil ein offener Wohn-, Koch- und Essbereich entstanden ist. Auf zwei Räumen sind nun drei Funktionsbereiche untergebracht. Und Platz für eine kleine Speisekammer haben die Macher*innen von Bespoke dabei auch noch gefunden.
In dieser Altbauwohnung in München wurde der gesamte Grundriss neu geordnet. Dabei hat die Küche an Raum hinzugewonnen, auch weil ein offener Wohn-, Koch- und Essbereich entstanden ist. Auf zwei Räumen sind nun drei Funktionsbereiche untergebracht. Und Platz für eine kleine Speisekammer haben die Macher*innen von Bespoke dabei auch noch gefunden.
Für das einheitliche Fischgrätparkett wurden vorhandene Parkettstäbe mit hinzugekauften, aber ebenfalls alten ergänzt.
Benötigen Sie Profis für Ihr Hausrenovierung-Projekt?
Lassen Sie Houzz die besten Expert*innen für Sie finden
Lassen Sie Houzz die besten Expert*innen für Sie finden
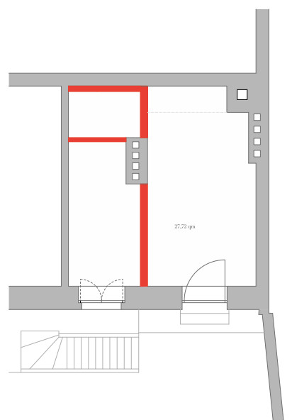
6. Die ganze Wohnung eine Küche
Bei dieser Erdgeschosswohnung in München lässt sich nicht eindeutig sagen, welcher Raum von welchem ein Stück dazubekommen hat. Denn nachdem Felicia Specht von FV2 Architektur die Wände der insgesamt gerade einmal fünfundzwanzig Quadratmeter großen Wohnung hatte entfernen lassen, blieb ein großer Raum. In dem sind alle Funktionsbereiche untergebracht.
Mit einer Schwingtür ein wenig abgetrennt ist das Bad, mit einer Falttür ein wenig der Schlafbereich. So teilt die Küche ihren Platz ständig allein mit dem Essbereich, und manchmal eben auch mit dem Rest – oder ist es doch andersrum?
Bei dieser Erdgeschosswohnung in München lässt sich nicht eindeutig sagen, welcher Raum von welchem ein Stück dazubekommen hat. Denn nachdem Felicia Specht von FV2 Architektur die Wände der insgesamt gerade einmal fünfundzwanzig Quadratmeter großen Wohnung hatte entfernen lassen, blieb ein großer Raum. In dem sind alle Funktionsbereiche untergebracht.
Mit einer Schwingtür ein wenig abgetrennt ist das Bad, mit einer Falttür ein wenig der Schlafbereich. So teilt die Küche ihren Platz ständig allein mit dem Essbereich, und manchmal eben auch mit dem Rest – oder ist es doch andersrum?
Im Plan rot eingezeichnet sind die Wände der ehemaligen Raumaufteilung.
Haben Sie auch Fläche abgezwackt von einem Raum für einen anderen? Beschreiben Sie Ihr Projekt in den Kommentaren!
Haben Sie auch Fläche abgezwackt von einem Raum für einen anderen? Beschreiben Sie Ihr Projekt in den Kommentaren!
















In einem Altbau in Friedrichshain hat sich eine kleine, abgeschlossene Küche zur Wohnküche ausgedehnt. Das Bad musste sich dafür in die – wie es die Expert*innen von RARE Office ausdrückten – dunkelste Ecke zurückziehen, und die Speisekammer verschwand gänzlich.
Wer genau hinschaut, erkennt an Boden und Decke die Spuren der Veränderung: unten die neuen Dielen, oben die abgehängte Decke. Viel auffälliger ist jetzt aber, dass das Tageslicht durch den neu komponierten Raum bis in den Flur dringt.