Architektur
Mehr Wohnraum und ein Garten – alles auf dem Dach eines Bungalows
Drei Boxen auf dem Flachdach eines Sechzigerjahre-Baus schaffen mehr Platz und zusätzliche Außenflächen für eine Familie
Eine vierköpfige Familie hatte in Wiesbaden einen Bungalow aus den 1960er-Jahren erworben. Das Haus, das der Innenarchitekt Wilfried Hilger damals für sich und seine Familie gebaut hatte, war den neuen Besitzern jedoch etwas zu klein. Sie schrieben einen Wettbewerb aus, um so die beste Lösung für eine Wohnraumerweiterung zu finden. Überzeugt haben Christ.Christ Associated Architects mit ihrem Vorschlag, auf dem Flachdach drei einzelne Boxen zu errichten, die über einen Glasgang miteinander verbunden sind. Neben mehr Wohnraum entstanden drei interessante zusätzliche Außenflächen.
SIE BRAUCHEN EXPERTENRAT? Architekten in Ihrer Nähe kostenlos anfragen
In rund sechzig Zentimeter tiefen Trögen wurden Bäume angepflanzt. Eine Wildblumenwiese umgibt einen Apfelbaum auf der nach Südwesten gelegenen Dachfläche. Sie dient als Schaugarten für die angrenzenden Räume. Eine Magnolie ziert die nach Osten liegende Dachterrasse, die eine leichte, mit Stahlseilen bespannte Stahlkonstruktion als Absturzsicherung hat. Eine Seekiefer versteckt sich in einem nach Norden gelegenen Hof, der mit einer Glasbalustrade umgeben ist.
In rund sechzig Zentimeter tiefen Trögen wurden Bäume angepflanzt. Eine Wildblumenwiese umgibt einen Apfelbaum auf der nach Südwesten gelegenen Dachfläche. Sie dient als Schaugarten für die angrenzenden Räume. Eine Magnolie ziert die nach Osten liegende Dachterrasse, die eine leichte, mit Stahlseilen bespannte Stahlkonstruktion als Absturzsicherung hat. Eine Seekiefer versteckt sich in einem nach Norden gelegenen Hof, der mit einer Glasbalustrade umgeben ist.
Der hohe Dachaufbau mit Dachbegrünung hat einen angenehmen Nebeneffekt: Durch die Verdunstungskühlung sind die Räume im Erdgeschoss optimal vor Überhitzung geschützt. Ein Problem, das im Altbau an heißen Sommertagen häufig aufgetreten war. Die Innenräume der Dachaufbauten werden durch eine Holzfaserdämmung vor Kälte und Hitze geschützt. Zusätzlich sind auch sie mit Elastomerbitumen-Dachbahnen abgedichtet, in die hier noch Schiefersplitter eingewalzt sind. Eine Klimaanlage ist durch diesen Dachaufbau überflüssig.
Die drei Boxen sind über Gänge aus Profilbauglas miteinander verbunden. „Dieses Material bietet eine transluzente Wärmedämmung. Ein zusätzlicher Sonnenschutz ist nicht nötig. Zudem herrscht in den Gängen dadurch extrem helles Licht“, berichtet der Architekt. Profilbauglas bietet darüber hinaus ein gutes Verhältnis zwischen Kosten und Qualität. Die Verbindungsgänge sind mit Titanzink-Blech belegt.
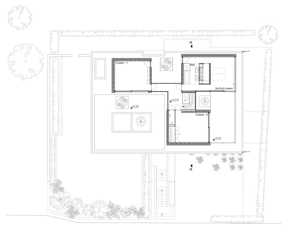
Den hohen Dachaufbau haben die Architekten auch spielerisch eingesetzt. Die Badewanne des Elternbads etwa ist bodengleich darin eingelassen. Um auch von hier einen Blick nach draußen zu haben, ohne jedoch von außen gesehen zu werden, haben die Architekten die Wand hinter dem Waschtisch komplett verspiegelt. Die Spiegel vergrößern den Raum auch optisch. Zudem sind hinter den Spiegelwänden Apothekerauszüge angebracht, die alle im Bad notwendigen Utensilien verbergen. Das Bad ist in derselben Box wie das Elternschlafzimmer und die Ankleide untergebracht. Die beiden anderen Boxen dienen als Wohn- und Arbeitsräume für die Eltern.
PROFIS FÜR IHR NÄCHSTES PROJEKT: Experten für Terrasse und Außenbereich bei Ihnen vor Ort
Eine luftige, viertelgewendelte Treppe mündet im Erdgeschoss neben der Stelle, an der die schon vorhandene Treppe ins Gästezimmer im Untergeschoss führt. Die Konstruktion aus dünnen Stahlblechen als Setzstufen und einem Stahlblech als Absturzsicherung wurde in einer Werkstatt gefertigt und dann als Ganzes an die im Haus dafür vorgesehene Stelle gesetzt. „Wir haben vor dem Einbau mit dem Deutschen Wetterdienst gesprochen, da an diesem Tag Regen vorhergesagt war. Wir hatten drei Stunden Zeit, die Treppe über das Dach zu heben“, erinnert sich Christ.
Nachdem die Treppe eingehängt und die Boxen auf dem Dach ausgebaut waren, zogen die Eigentümer auf das Dach. Zuvor hatten sie im Erdgeschoss gewohnt. „Die Bauherren mussten während der Bauzeit nur zweimal für rund drei Wochen in ein Hotel ziehen“, erzählt der Architekt. Besonders gefreut hat er sich, dass auch der Vorbesitzer die Umbaumaßnahmen gesehen und für gut befunden hat. Wilfried Hilger hatte nach dem Verkauf seines Hauses selbst noch in der Einliegerwohnung gewohnt.
Eine luftige, viertelgewendelte Treppe mündet im Erdgeschoss neben der Stelle, an der die schon vorhandene Treppe ins Gästezimmer im Untergeschoss führt. Die Konstruktion aus dünnen Stahlblechen als Setzstufen und einem Stahlblech als Absturzsicherung wurde in einer Werkstatt gefertigt und dann als Ganzes an die im Haus dafür vorgesehene Stelle gesetzt. „Wir haben vor dem Einbau mit dem Deutschen Wetterdienst gesprochen, da an diesem Tag Regen vorhergesagt war. Wir hatten drei Stunden Zeit, die Treppe über das Dach zu heben“, erinnert sich Christ.
Nachdem die Treppe eingehängt und die Boxen auf dem Dach ausgebaut waren, zogen die Eigentümer auf das Dach. Zuvor hatten sie im Erdgeschoss gewohnt. „Die Bauherren mussten während der Bauzeit nur zweimal für rund drei Wochen in ein Hotel ziehen“, erzählt der Architekt. Besonders gefreut hat er sich, dass auch der Vorbesitzer die Umbaumaßnahmen gesehen und für gut befunden hat. Wilfried Hilger hatte nach dem Verkauf seines Hauses selbst noch in der Einliegerwohnung gewohnt.
Im Erdgeschoss wurden einige Wände entfernt, um so einen großzügigeren Wohnraum zu schaffen. Ein paar Stahlstützen, die zuvor in den Wänden versteckt waren, kamen dadurch zum Vorschein. Sie konnten aus statischen Gründen nicht verändert werden. Auch fast alle Installationen mussten erneuert und ergänzt werden.
Die Küche blieb in etwa an der gleichen Stelle, allerdings ohne die sie vormals umgebenden Mauern. Sie steht im Zentrum des offenen Wohnraums, gleich beim Eingang. Die Küchenmöbel waren noch relativ neu und gut erhalten. Daher entschied sich der Architekt, die Küche mit dem gleichen System zu erweitern.
Die Küche blieb in etwa an der gleichen Stelle, allerdings ohne die sie vormals umgebenden Mauern. Sie steht im Zentrum des offenen Wohnraums, gleich beim Eingang. Die Küchenmöbel waren noch relativ neu und gut erhalten. Daher entschied sich der Architekt, die Küche mit dem gleichen System zu erweitern.
Neben der Küche liegt der Essbereich vor einer eichenvertäfelten Wand. „Die Wände waren teilweise nicht gedämmt und an einigen Stellen war der Bestand maroder, als wir vermutet hatten“, erinnert sich der Architekt. Sichtmauerwerk, das teilweise im Erdgeschoss vorhanden war, wurde komplett neu gedämmt.
Den in eine Sichtbetonwand eingebauten offenen Kamin hat Christ reaktiviert, was aufwendig, aber lohnenswert war. Geheizt wird allerdings oben wie unten mit einer Fußbodenheizung, die über einen Brennwertkessel betrieben wird. Warmwasser bereitet eine Solarthermieanlage.
Die Terrasse vor dem Wohnbereich ist im Wesentlichen geblieben, wie sie war. Den Dachausschnitt in dem weit auskragenden Dach hat Christ vergrößert und mit einem in einer Fuge versteckten Sonnenschutz versehen.
Den in eine Sichtbetonwand eingebauten offenen Kamin hat Christ reaktiviert, was aufwendig, aber lohnenswert war. Geheizt wird allerdings oben wie unten mit einer Fußbodenheizung, die über einen Brennwertkessel betrieben wird. Warmwasser bereitet eine Solarthermieanlage.
Die Terrasse vor dem Wohnbereich ist im Wesentlichen geblieben, wie sie war. Den Dachausschnitt in dem weit auskragenden Dach hat Christ vergrößert und mit einem in einer Fuge versteckten Sonnenschutz versehen.
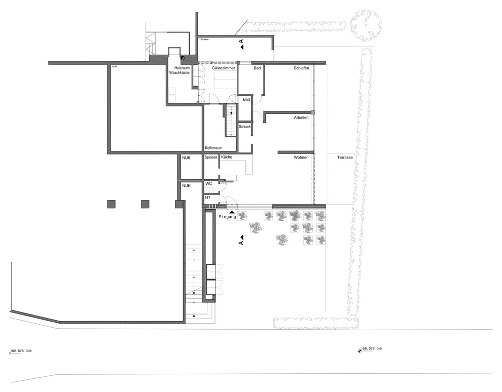
Die Terrasse liegt direkt neben dem Eingang. Während sich auf der einen Seite der offene Wohnbereich erstreckt, liegen auf der anderen Seite des Eingangs die beiden Kinderzimmer. „Wir haben das ehemalige Elternschlafzimmer zu einem Kinderzimmer umgebaut und aus den beiden ehemaligen Kinderzimmern ein weiteres, großzügiges Kinderzimmer gemacht“, erläutert Christ. Eine Bibliothek bildet die Rückwand dieses neu geschaffenen Kinderzimmers.
Grundriss Obergeschoss
Im Obergeschoss sind in einer Box das Elternschlafzimmer mit Bad und Ankleide untergebracht. Die Toilette befindet sich in einer der beiden anderen Boxen, die die Eltern als Wohn- und Arbeitsräume nutzen.
Im Obergeschoss sind in einer Box das Elternschlafzimmer mit Bad und Ankleide untergebracht. Die Toilette befindet sich in einer der beiden anderen Boxen, die die Eltern als Wohn- und Arbeitsräume nutzen.
Grundriss Erdgeschoss
Der offene Wohnraum mit Küche, Wohn- und Essbereich prägt das Erdgeschoss. Die beiden großen Kinderzimmer haben jeweils einen eigenen Zugang zum gemeinsamen Bad.
Der offene Wohnraum mit Küche, Wohn- und Essbereich prägt das Erdgeschoss. Die beiden großen Kinderzimmer haben jeweils einen eigenen Zugang zum gemeinsamen Bad.
Grundriss Untergeschoss
Das Gästezimmer mit eigenem Bad liegt im Untergeschoss. Neben den Kellerräumen ist hier zudem eine geräumige Einliegerwohnung untergebracht, die den Bauherren auch als Altersabsicherung dient.
Das Gästezimmer mit eigenem Bad liegt im Untergeschoss. Neben den Kellerräumen ist hier zudem eine geräumige Einliegerwohnung untergebracht, die den Bauherren auch als Altersabsicherung dient.
WEITERLESEN: Noch mehr Artikel zu gelungenen Anbauten
Was halten Sie von der Idee der Architekten, Flachdächer als Bauland zu betrachten?
Was halten Sie von der Idee der Architekten, Flachdächer als Bauland zu betrachten?




















Hier wohnt: eine vierköpfige Familie
Auf: 452 Quadratmetern, inklusive einer Einliegerwohnung
In: Wiesbaden
Experten: Christ.Christ. associated architects GmbH
Fotos: Thomas Herrmann, Stuttgart
Die neuen Besitzer wünschten sich großzügigeren Wohnraum und wollten den Bungalow daher erweitern. „Wir hätten ihn auch abreißen und ganz neu bauen können“, erinnert sich Architekt Roger Christ. Das aber schien ihm die letzte Option. Er machte den architekturbegeisterten Bauherren daher den Vorschlag, die Dachfläche als Bauland zu betrachten. Die Idee und der Entwurf von Christ und seinem Team überzeugten. Die neu entstandenen Baukörper nehmen die Vor- und Rücksprünge des Bestandsgebäudes auf. Zwischen den in Holztafelbau errichteten Boxen auf dem Dach sind zudem drei verschiedene Außenflächen entstanden.
Bevor es jedoch zum Aufbau kam, musste das Bestandsgebäude verstärkt werden. Die Mischbauweise aus Mauerwerk und Beton hätte die Aufbauten und vor allem den neu auf das Flachdach gelegten Stahlrost nicht getragen. „Wir haben Stahlverbände in das Mauerwerk eingezogen und die Statik mit I-Trägern verbessert. Darauf konnten wir dann einen Rost legen, der den Gründachaufbau trägt“, erläutert Christ. Der Rost ist mit OSB-Platten belegt, die mit einer Dampfsperre aus besonders strapazierfähigen Elastomerbitumen-Dachbahnen abgedichtet sind. Darauf ist eine Gefälledämmung aufgebracht, die wiederum mit einer zweilagigen, wurzelresistenten Schicht aus den genannten Dachbahnen versehen ist.