Mit Erker, Kanten & Rundumblick: Ein Öko-Holzhaus am See
Mit einer 3-D-Vorplanung konnten die Bauherren die Raumdimensionen gut einschätzen
Das ältere Ehepaar wünschte sich ein ökologisches Holzhaus am See, das eher modern als rustikal sein sollte. Außerdem sollten die erwachsenen Töchter beim Besuch ein eigenes Zimmer und Bad haben. Es entstand ein sommerlich anmutendes Haus, mit ökologischen Brettsperrholz-Platten am Schwielowsee.
3-D-Zeichnungen
„Das Haus wurde dreidimensional geplant“, erklärt die Architektin, die neben regulären 2-D-Längs- und Querschnitten sowie Grundrissen, eine 3-D-Ansicht des Neubaus entwarf. Der Bauherr konnte auf diese Weise Änderungswünsche einbringen, zum Beispiel wurde am Ende die Terrasse offen geplant und mit Sandsteinplatten ausgelegt.
► Finden Sie hier einen Architekten für Ihren Hausbau
„Das Haus wurde dreidimensional geplant“, erklärt die Architektin, die neben regulären 2-D-Längs- und Querschnitten sowie Grundrissen, eine 3-D-Ansicht des Neubaus entwarf. Der Bauherr konnte auf diese Weise Änderungswünsche einbringen, zum Beispiel wurde am Ende die Terrasse offen geplant und mit Sandsteinplatten ausgelegt.
► Finden Sie hier einen Architekten für Ihren Hausbau
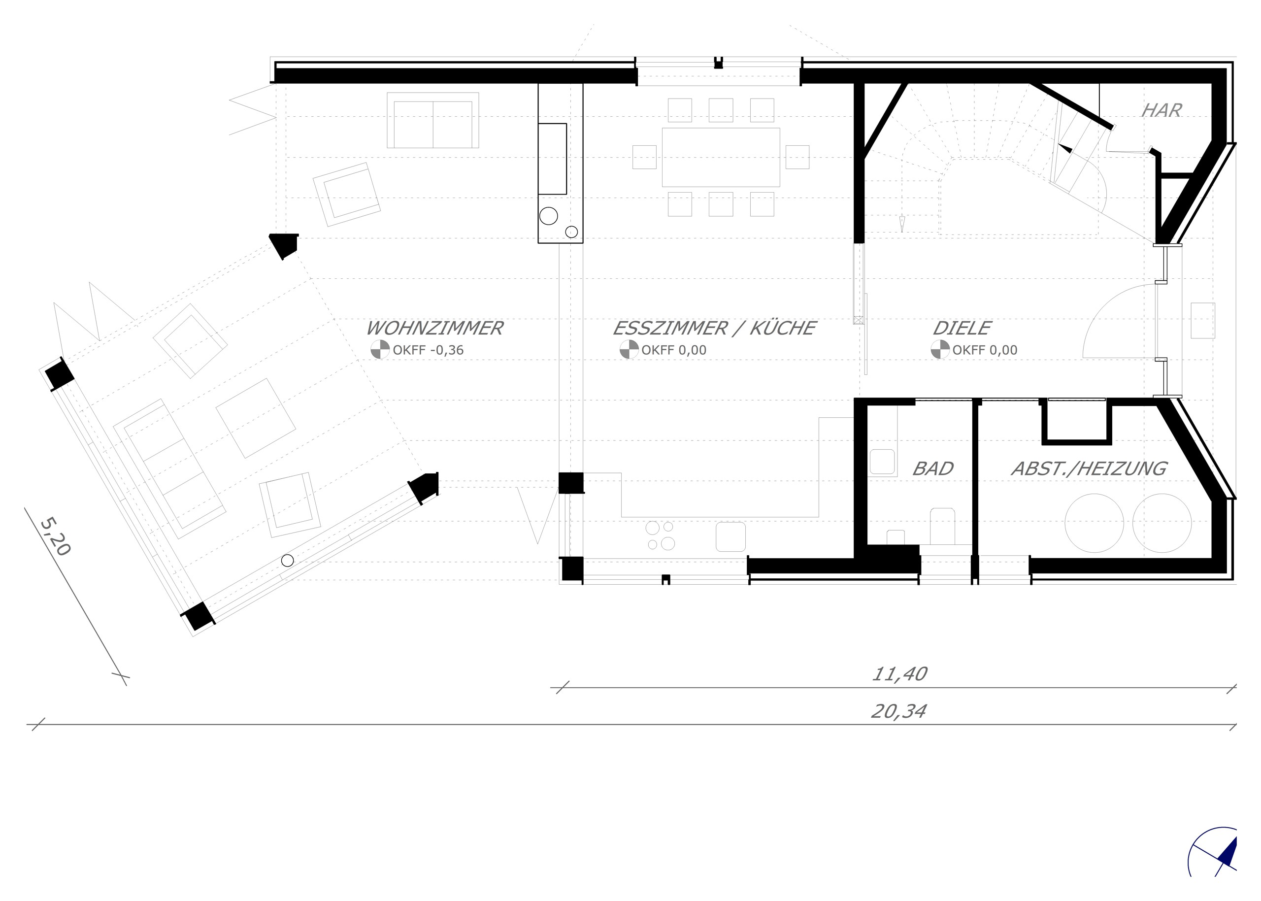
Erdgeschoss zum Wohnen
Das Ehepaar wollte einen modernen Neubau, allerdings aus Holz, da der ökologische Aspekt dem Bauherrn wichtig war. Im Gegensatz zu Ziegeln, die bei über 1000 Grad Celsius gebrannt werden und somit Kohlendioxid (CO2) ausstoßen, bindet Holz CO2.
Das vorgegebene Grundstück war lang und schmal, eine sogenannte Handtuchgröße. Der Bauherr stellte sich ein weiträumiges Wohnzimmer mit Kamin vor und eine angeschlossene Küche. Den Wunsch konnte die Architektin erfüllen. Neben der großzügigen Diele mit Schiebetür befindet sich die Gästetoilette.
Das Ehepaar wollte einen modernen Neubau, allerdings aus Holz, da der ökologische Aspekt dem Bauherrn wichtig war. Im Gegensatz zu Ziegeln, die bei über 1000 Grad Celsius gebrannt werden und somit Kohlendioxid (CO2) ausstoßen, bindet Holz CO2.
Das vorgegebene Grundstück war lang und schmal, eine sogenannte Handtuchgröße. Der Bauherr stellte sich ein weiträumiges Wohnzimmer mit Kamin vor und eine angeschlossene Küche. Den Wunsch konnte die Architektin erfüllen. Neben der großzügigen Diele mit Schiebetür befindet sich die Gästetoilette.
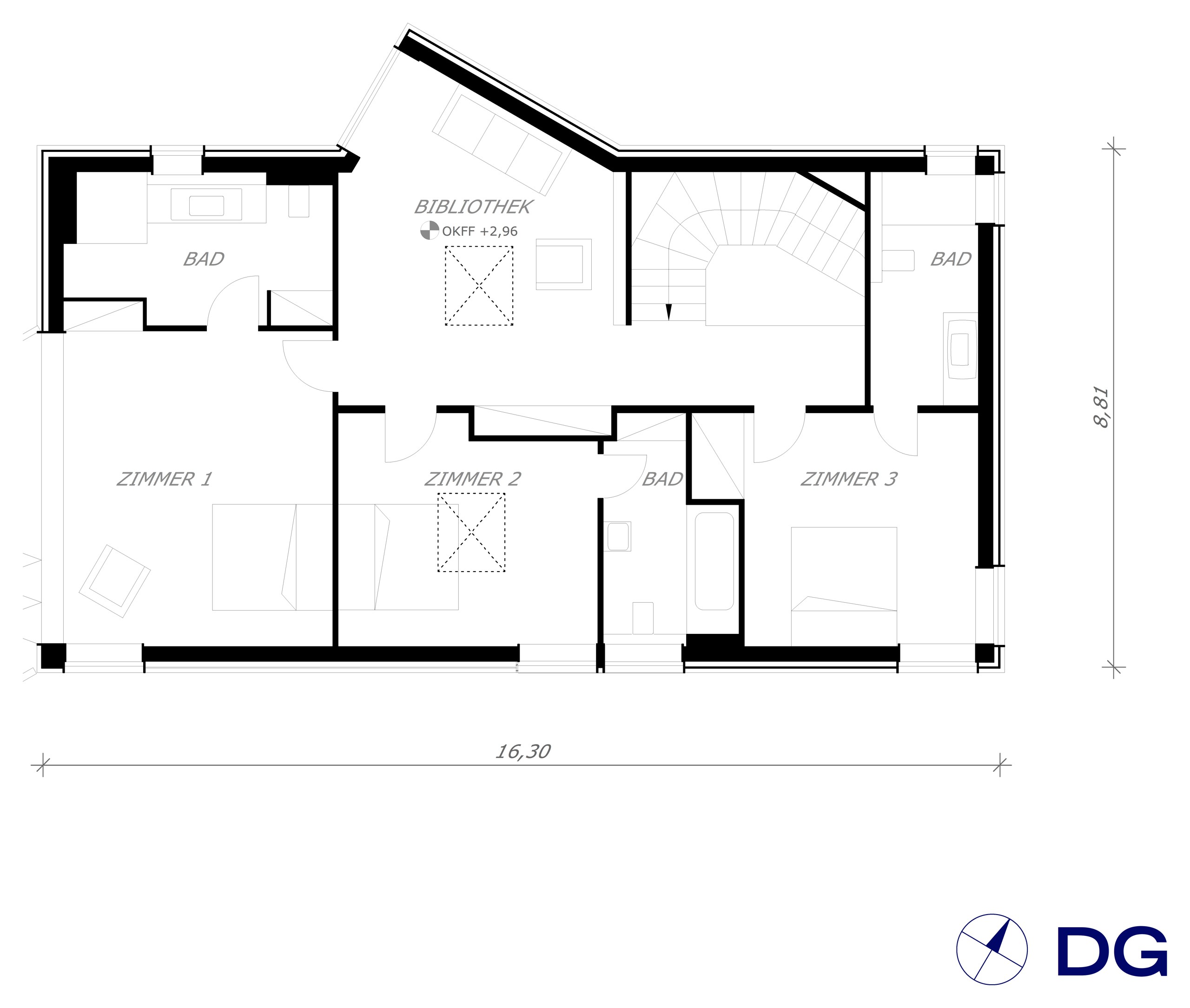
Dachgeschoss zum Rückzug
Die Vorgabe des Bauherren, drei Schlafzimmer mit jeweils einem Bad im Dachgeschoss zu platzieren sowie ein gemeinsamer Leseraum mit Erker bedeutete für die Architektin, die Wohnräume im Erdgeschoss entsprechend großzügig zu gestalten.
Die Vorgabe des Bauherren, drei Schlafzimmer mit jeweils einem Bad im Dachgeschoss zu platzieren sowie ein gemeinsamer Leseraum mit Erker bedeutete für die Architektin, die Wohnräume im Erdgeschoss entsprechend großzügig zu gestalten.
Eckige Holzstrukturen und viele Fenster
Der Bauherr entschied sich bei der Fassade für weiße Brettsperrholz-Platten, die als Fertigplatten angebracht wurden. Auf das Dach wurde zusätzlich zu den Platten noch Blech montiert und die Wetterschenkel an den Fenstern lassen das Wasser ablaufen. „Man hört, entgegen der Vermutung, den Regen nicht prasseln“, sagt die Architektin. Denn innen wurde mit Holzwolle gedämmt. „Es ist ein schweres Haus, auch wenn es aus Holz besteht.“ Ein weiterer Vorteil: Im Sommer heizt sich das Haus kaum auf und im Winter bleibt es schön warm. Die große Terrasse, der Balkon, viele Fenster und der Glaserker im Dachgeschoss sind die Highlights des Holzhauses. Sie blicken alle in den sonnigen Süden auf den See.
Lesen Sie auch…
Der Bauherr entschied sich bei der Fassade für weiße Brettsperrholz-Platten, die als Fertigplatten angebracht wurden. Auf das Dach wurde zusätzlich zu den Platten noch Blech montiert und die Wetterschenkel an den Fenstern lassen das Wasser ablaufen. „Man hört, entgegen der Vermutung, den Regen nicht prasseln“, sagt die Architektin. Denn innen wurde mit Holzwolle gedämmt. „Es ist ein schweres Haus, auch wenn es aus Holz besteht.“ Ein weiterer Vorteil: Im Sommer heizt sich das Haus kaum auf und im Winter bleibt es schön warm. Die große Terrasse, der Balkon, viele Fenster und der Glaserker im Dachgeschoss sind die Highlights des Holzhauses. Sie blicken alle in den sonnigen Süden auf den See.
Lesen Sie auch…
Verspielt & modern
Auf der Nordseite zur Straße befindet sich der Hauseingang. Die Eingangstür ist aus Eiche, die hellgrünen Seitenverkleidungen aus Glas. Die Architektin mag es verspielt und auch die oberen Fenster erinnern fast schon an Augen, die zur Straße blicken.
Auf der Nordseite zur Straße befindet sich der Hauseingang. Die Eingangstür ist aus Eiche, die hellgrünen Seitenverkleidungen aus Glas. Die Architektin mag es verspielt und auch die oberen Fenster erinnern fast schon an Augen, die zur Straße blicken.
Verschmelzung von innen und außen
Im Innenraum herrscht ein luftiger Charakter. Wichtig war der Architektin die Verschmelzung von Innen- und Außenbereich. Dabei war die Statik eine Herausforderung. „Wir wollten den großen Wohnraum im Erdgeschoss über eine Breite von etwa acht Meter stützenfrei lassen und haben deswegen die Holzbalkendecke mit einem Holz-Beton-Verbundsystem gebaut. Übrig bleiben zwei schlanke Stahlstützen, die im Kamin und in der Fassade versteckt sind“, führt die Architektin aus. Die Balken wurden schlicht weiß gehalten, um eine moderne und „cleane“ Optik zu erreichen.
Im Innenraum herrscht ein luftiger Charakter. Wichtig war der Architektin die Verschmelzung von Innen- und Außenbereich. Dabei war die Statik eine Herausforderung. „Wir wollten den großen Wohnraum im Erdgeschoss über eine Breite von etwa acht Meter stützenfrei lassen und haben deswegen die Holzbalkendecke mit einem Holz-Beton-Verbundsystem gebaut. Übrig bleiben zwei schlanke Stahlstützen, die im Kamin und in der Fassade versteckt sind“, führt die Architektin aus. Die Balken wurden schlicht weiß gehalten, um eine moderne und „cleane“ Optik zu erreichen.
Hell und praktisch
Die Küche wurde vom Ehepaar ausgesucht. Hier sind vor allem die Fenster speziell: Die Architektin begeistert sich für die Fenster der dänischen Firma Velfac, die sich nach außen öffnen. „Das lästige Abräumen der Fensterbänke entfällt und der Wind pfeift nicht rein“, sagt die Architektin.
Das könnte Sie auch interessieren…
Die Küche wurde vom Ehepaar ausgesucht. Hier sind vor allem die Fenster speziell: Die Architektin begeistert sich für die Fenster der dänischen Firma Velfac, die sich nach außen öffnen. „Das lästige Abräumen der Fensterbänke entfällt und der Wind pfeift nicht rein“, sagt die Architektin.
Das könnte Sie auch interessieren…
Einfach falten
Das Besondere an diesen Terrassentüren und Fenstern ist ihre Faltbeschaffenheit. Damit lassen sich große Glasflächen platzsparend öffnen, da keine Türflügel in den Raum ragen und die Elemente auf eine effiziente Weise komprimiert werden. Vor allem die vielen hochwertigen Faltfenster und -türen der Firma Solarlux wie auch der schöne Bodenbelag aus Kalksandstein und der Terrassenboden aus Sandstein zeigen, dass es sich nicht um ein Billighaus handelt. Die Wände wurden hell lasiert, die obere Decke mit ökologischen Erzeugnissen geölt.
Das Besondere an diesen Terrassentüren und Fenstern ist ihre Faltbeschaffenheit. Damit lassen sich große Glasflächen platzsparend öffnen, da keine Türflügel in den Raum ragen und die Elemente auf eine effiziente Weise komprimiert werden. Vor allem die vielen hochwertigen Faltfenster und -türen der Firma Solarlux wie auch der schöne Bodenbelag aus Kalksandstein und der Terrassenboden aus Sandstein zeigen, dass es sich nicht um ein Billighaus handelt. Die Wände wurden hell lasiert, die obere Decke mit ökologischen Erzeugnissen geölt.
Inspirationen aus dem Schiffsbau
Der Wintergarten mit sechsfachen Glasfalttüren gewährt einen entspannten Zugang auf die große Terrasse hin zum See. Der Balkon hat eine dreieckige Form und erinnert an eine Reling. Die Architektin spielt gerne mit Schiffsdetails, denn ihre Passion ist der Bau von Schiffen.
Der Wintergarten mit sechsfachen Glasfalttüren gewährt einen entspannten Zugang auf die große Terrasse hin zum See. Der Balkon hat eine dreieckige Form und erinnert an eine Reling. Die Architektin spielt gerne mit Schiffsdetails, denn ihre Passion ist der Bau von Schiffen.
Kontraste mit weißen Flächen
Die Aluminium-Glasfalttüren öffnen sich zum Balkon mit einem herrlichen Ausblick auf die umliegenden Bäume und den Schwielowsee. Die weiß-glatten Einbauschränke sind vom Tischler angefertigt und sollen dem rustikalen Flair der Holzwände einen Kontrast bieten.
Die Aluminium-Glasfalttüren öffnen sich zum Balkon mit einem herrlichen Ausblick auf die umliegenden Bäume und den Schwielowsee. Die weiß-glatten Einbauschränke sind vom Tischler angefertigt und sollen dem rustikalen Flair der Holzwände einen Kontrast bieten.
Sommer-Ästhetik
Die Brettsperrholz-Platten sind nicht nur ökologisch sinnvoll, sondern wurden auch bewusst von der Architektin aus ästhetischen Gesichtspunkten gewählt, es sollte an ein Sommerhaus erinnern. „Mit den durchgängigen Bretterabständen wird ein Raster eingehalten. Ich wollte dem Haus damit ein eigenes Gesicht geben.“ Neben Holz kommt viel Glas zum Einsatz. Aus dem Glaserker hat man nahezu einen 180 Grad Blick.
Die Brettsperrholz-Platten sind nicht nur ökologisch sinnvoll, sondern wurden auch bewusst von der Architektin aus ästhetischen Gesichtspunkten gewählt, es sollte an ein Sommerhaus erinnern. „Mit den durchgängigen Bretterabständen wird ein Raster eingehalten. Ich wollte dem Haus damit ein eigenes Gesicht geben.“ Neben Holz kommt viel Glas zum Einsatz. Aus dem Glaserker hat man nahezu einen 180 Grad Blick.
Helle Räume mit vielen Fenstern
Im Dachgeschoss ist neben den drei Schlafräumen und drei Bädern der Leseraum der Familie mit dem Glaserker. Damit noch mehr Licht hereinkommt, wurde ein Dachfenster eingebaut.
Im Dachgeschoss ist neben den drei Schlafräumen und drei Bädern der Leseraum der Familie mit dem Glaserker. Damit noch mehr Licht hereinkommt, wurde ein Dachfenster eingebaut.
Hochwertige Materialien
Der Bauherr wünschte sich Feinsteinzeug und Raucheiche für die Badezimmer. Damit das Holz ausreichend vor Wasser geschützt wird, wurde am Handwaschbecken und an der Duschseite der Holzabtrennung eine Glasfront angebracht. Und ein weiteres verspieltes Detail: Links kann man aus dem Fenster herausschauen und rechts befindet sich ein Spiegel.
Mehr zu…
Der Bauherr wünschte sich Feinsteinzeug und Raucheiche für die Badezimmer. Damit das Holz ausreichend vor Wasser geschützt wird, wurde am Handwaschbecken und an der Duschseite der Holzabtrennung eine Glasfront angebracht. Und ein weiteres verspieltes Detail: Links kann man aus dem Fenster herausschauen und rechts befindet sich ein Spiegel.
Mehr zu…
Nachts wunderschöne Ein- und Ausblicke
Das Nachtfoto ist das Lieblingsfoto der Architektin: „Man sieht wie sich der Weg hoch vom See in das Haus hochschlängelt und man sieht die vielen Nischen und eckigen Strukturen.“
Das Nachtfoto ist das Lieblingsfoto der Architektin: „Man sieht wie sich der Weg hoch vom See in das Haus hochschlängelt und man sieht die vielen Nischen und eckigen Strukturen.“





















Hier wohnt: ein älteres Ehepaar
Auf: rund 265 Quadratmetern Wohnfläche
In: Werder
Besonderheit: ökologisches Holzhaus mit Rundum-Seeblick sowie viel Morgen- und Abendsonne.
Experten: Archibald Büro
Fotograf: Constantin Meyer