Küche einrichten
Neu angebaut: Eine moderne Wohnküche mit Frühstücksterrasse
Dank einem Anbau im Erdgeschoss entstand ein gemütlicher offener Wohnbereich mit Küche, Ess- und Sitzecke – und eine geschützte Terrasse
Als die heutigen Eigentümer dieses Haus im viktorianischen Stil in London kauften, war es ziemlich heruntergekommen. Für die dringend notwendige Komplettsanierung beauftragten sie die Architektinnen Fiona Kirkwood und Sophie McCarthy von Kirkwood McCarthy. Besonders ein Anbau hinter dem Haus sorgte für ein ganz neues Wohngefühl – mit einer großen, offenen Wohnküche und einer geschützten Terrasse. „Wir haben von Anfang an eng mit den Kunden zusammengearbeitet, um die für sie passende Raumaufteilung und Einrichtung zu finden“, erklärt Geschäftsführerin Fiona Kirkwood. „Den Grundriss hatten sie bereits grob entworfen, aber die Idee für die kleine Terrasse entstand erst während des Projekts.“
Um den alten und neuen Teil des Hauses klar von einander abzugrenzen, arbeiteten die Architektinnen mit unterschiedlichen Materialien. So verwendeten sie für den neuen Anbau schwarzen Zink, schwarzen Stahl und schlichte Formen, die einen schönen Gegensatz zu dem alten Gebäudeteil mit seinen leicht strukturierten Backsteinen bilden.
„Hier, unter dem Blätterdach, kommen die verschiedenen Teile des Hauses mit ihren unterschiedlichen Materialien zusammen“, so Kirkwood. „Die Terrasse ist rund 10 Quadratmeter groß und sowohl vom Hauswirtschaftsraum (zehn Quadratmeter groß, hinter der hellen Tür) als auch vom Arbeitszimmer, der Küche und dem Esszimmer aus begehbar“, erklärt Kirkwood. „Wir arbeiten gern mit Außenräumen wie diesem, weil sie wunderbar gesellige Orte sind.“
„Hier, unter dem Blätterdach, kommen die verschiedenen Teile des Hauses mit ihren unterschiedlichen Materialien zusammen“, so Kirkwood. „Die Terrasse ist rund 10 Quadratmeter groß und sowohl vom Hauswirtschaftsraum (zehn Quadratmeter groß, hinter der hellen Tür) als auch vom Arbeitszimmer, der Küche und dem Esszimmer aus begehbar“, erklärt Kirkwood. „Wir arbeiten gern mit Außenräumen wie diesem, weil sie wunderbar gesellige Orte sind.“
Blick von der gegenüberliegenden Seite des Anbaus hin zum Bestandshaus
„Größer konnten wir die Terrasse nicht bauen, da direkt davor eine ausgewachsene Eberesche steht, die die Kunden unbedingt behalten wollten“, so Kirkwood. „Schließlich haben wir den Baum in unsere Planung mit einbezogen, indem wir das Dach des Anbaus so konzipierten, dass es genügend Abstand zur Baumkrone hat und eher in Richtung Haus ausgerichtet ist. Außerdem mussten wir den Fußboden des Anbaus wegen der darunter verlaufenden Wurzeln und unterschiedlicher Bodenverhältnisse schwebend verlegen.“
Finden Sie mehr Inspiration für Ihre Terrasse
„Größer konnten wir die Terrasse nicht bauen, da direkt davor eine ausgewachsene Eberesche steht, die die Kunden unbedingt behalten wollten“, so Kirkwood. „Schließlich haben wir den Baum in unsere Planung mit einbezogen, indem wir das Dach des Anbaus so konzipierten, dass es genügend Abstand zur Baumkrone hat und eher in Richtung Haus ausgerichtet ist. Außerdem mussten wir den Fußboden des Anbaus wegen der darunter verlaufenden Wurzeln und unterschiedlicher Bodenverhältnisse schwebend verlegen.“
Finden Sie mehr Inspiration für Ihre Terrasse
Vor dem Umbau war die Küche in einem früher errichteten Anbau ebenfalls im hinteren Teil des Hauses untergebracht. Quasi komplett abgetrennt vom Rest des Hauses, konnte sie lediglich über den Hauswirtschaftsraum betreten werden. Da sie zudem auch noch viel zu klein für die vierköpfige Familie war, wurde sie kurzerhand komplett abgerissen.
„Die Küche soll ein Ort sein, an dem alle zusammenkommen. Deshalb sollte sie auch im Zentrum des Erdgeschosses liegen“, sagt Kirkwood. „Die neue Küche grenzt an die Terrasse und verbindet die privateren Zimmer im vorderen Teil des Hauses mit dem neuen Wohn- und Essbereich.“
Die schwarzen, pulverbeschichteten Küchenschränke wirken dank der Füße gar nicht küchenmäßig, sondern eher wie Möbelstücke. Die antik anmutenden Fußbodenfliesen im Arbeitsbereich der Küche sind eine schöne Hommage an die Geschichte des Hauses und bilden einen robusten Untergrund, der bis in den Garten fortgeführt wird. Rechts geht es zum Essbereich, geradeaus in den Wohnbereich und nach draußen in den Garten.
„Die Küche soll ein Ort sein, an dem alle zusammenkommen. Deshalb sollte sie auch im Zentrum des Erdgeschosses liegen“, sagt Kirkwood. „Die neue Küche grenzt an die Terrasse und verbindet die privateren Zimmer im vorderen Teil des Hauses mit dem neuen Wohn- und Essbereich.“
Die schwarzen, pulverbeschichteten Küchenschränke wirken dank der Füße gar nicht küchenmäßig, sondern eher wie Möbelstücke. Die antik anmutenden Fußbodenfliesen im Arbeitsbereich der Küche sind eine schöne Hommage an die Geschichte des Hauses und bilden einen robusten Untergrund, der bis in den Garten fortgeführt wird. Rechts geht es zum Essbereich, geradeaus in den Wohnbereich und nach draußen in den Garten.
Blick vom Essbereich Richtung Wohnbereich und Küche
Die vorhandenen Wohnräume im vorderen Teil des Hauses blieben erhalten und werden heute als Musik- und Filmzimmer genutzt. „Doch der neue, nach Süden ausgerichtete Wohnbereich ist der Lebensmittelpunkt der ganzen Familie – kein Vergleich zu den Räumen im vorderen Bereich!“, so die Architektin.
Holzofen: Chilli Penguin; Leuchten: Dowsing & Reynolds
Die vorhandenen Wohnräume im vorderen Teil des Hauses blieben erhalten und werden heute als Musik- und Filmzimmer genutzt. „Doch der neue, nach Süden ausgerichtete Wohnbereich ist der Lebensmittelpunkt der ganzen Familie – kein Vergleich zu den Räumen im vorderen Bereich!“, so die Architektin.
Holzofen: Chilli Penguin; Leuchten: Dowsing & Reynolds
Blick von der Küche Richtung Essbereich und Innenhof-Terrasse
Vor dem Umbau war 70 Jahre lang nicht mehr an dem Haus gemacht worden. „Eigentlich hatten wir gehofft, die ursprüngliche Konstruktion sowie möglichst viele historische Details erhalten zu können, aber die Außenwände sind im Grunde das Einzige, was vom ursprünglichen Haus übrig geblieben ist“, so Kirkwood. „Zwischen Küche und dem neuen Wohn- und Essbereich waren einst Fenster und Türen. Nach der Öffnung haben wir die Türschwellen entfernt und die Backsteinwände weiß gestrichen.“
Dank dieser weiß getünchten Wände und der hohen Decke wirkt der Raum sehr großzügig. Die Glasschiebetüren lassen ein Maximum an Tageslicht in den Raum und und schaffen eine schöne Verbindung zwischen Innen und Außen. Im Hintergrund ist der geschützte Innenhof zu sehen.
Finden Sie den passenden Architekten für Ihren Umbau
Vor dem Umbau war 70 Jahre lang nicht mehr an dem Haus gemacht worden. „Eigentlich hatten wir gehofft, die ursprüngliche Konstruktion sowie möglichst viele historische Details erhalten zu können, aber die Außenwände sind im Grunde das Einzige, was vom ursprünglichen Haus übrig geblieben ist“, so Kirkwood. „Zwischen Küche und dem neuen Wohn- und Essbereich waren einst Fenster und Türen. Nach der Öffnung haben wir die Türschwellen entfernt und die Backsteinwände weiß gestrichen.“
Dank dieser weiß getünchten Wände und der hohen Decke wirkt der Raum sehr großzügig. Die Glasschiebetüren lassen ein Maximum an Tageslicht in den Raum und und schaffen eine schöne Verbindung zwischen Innen und Außen. Im Hintergrund ist der geschützte Innenhof zu sehen.
Finden Sie den passenden Architekten für Ihren Umbau
IM ÜBERBLICK
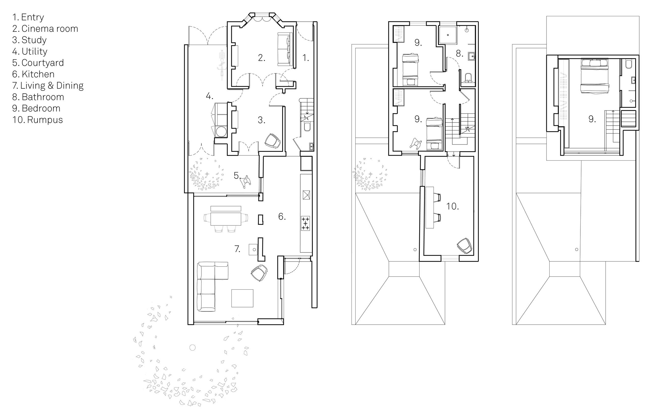
Auf diesen Grundrissen sieht man die neue Raumaufteilung des Hauses – ganz links das Erdgeschoss mit Wohnküche und Innenhof.
Entdecken Sie mehr Bilder von traumhaften Küchen
Auf diesen Grundrissen sieht man die neue Raumaufteilung des Hauses – ganz links das Erdgeschoss mit Wohnküche und Innenhof.
Entdecken Sie mehr Bilder von traumhaften Küchen













Hier kocht & isst: ein Paar und seine zwei Söhne
In: Muswell Hill, im Norden von London, Großbritannien
Größe des Anbaus: 40 Quadratmeter. Die viktorianische Doppelhaushälfte verfügt über drei Schlafzimmer und zwei Badezimmer.
Expertinnen: Fiona Kirkwood und Sophie McCarthy von Kirkwood McCarthy
Fotos: David Butler
Im Zentrum der Neugestaltung stand der neue Anbau im hinteren Teil des Erdgeschosses. Er ist mit einem Zeltdach versehen und beherbergt den offenen, 40 Quadratmeter großen Wohn- und Essbereich. Auf der westlichen Seite entstand dadurch, zwischen dem Bestandshaus, einem frühen Anbau und dem neu geschaffenen Wohnbereich, eine geschützte, sonnige Terrasse.