Ideen zur Integration von Toilette und Bad
vor 2 Jahren
Hervorgehobene Antwort
Sortieren nach:Älteste
Kommentare (18)
- vor 2 Jahren
- vor 2 Jahren
Ähnliche Diskussionen
Fliesen - Ideen zur Anordnung im Bad?
Kommentare (12)Hallo a_v_oppeln, im Anwendermarkt gibt es verschiedene Arten von fugenlosen Materialien. Einige benutzen als Bindemittel Harze, z.B. Epoxidharz, aber auch Acrylate. Diese Bindemittel sind im ausgehärteten Zustand nicht sehr hart und widerstandsfähig. Schnell kann dort durch einen Stein in der Schuhsohle ein kräftiger Kratzer auf der Oberfläche entstehen, der sich nur schlecht ausbessern lässt. LEOSTEEN Oberflächen dagegen sind sehr wiederstandsfähig, (sie werden unter anderem im Industriebereich eingesetzt, z.b. in Lagerhallen wo Gabelstabler auf der Stelle drehen können, ohne daß sich die Oberfläche abreibt). Dort allerdings wird nur Wert auf den technischen Zweck gelegt, Farben und Oberflächenverarbeitung sind da weniger wichtig. Ich wende die LEOSTEEN Beschichtung auch bei Küchenarbeitsplatten und dem angeschlossenen Wandspiegel an. Meine Erfahrung nach einigen Jahren Nutzung. Die Oberflächen nutzen nicht ab, nur wenn ich mit einem Messer darauf schneide muss ich das Messer danach wieder anschärfen. Wie bei allen Oberflächen sollten diese regelmäßig gepflegt werden wie ich bereits beschrieben hatte. Also zusammengefasst: LEOSTEEN hält auch Kinderhände und -füße aus. Zur Gesaltungsfrage: ankestueber hatte geschrieben, daß nicht überall die Wände mit einer harten abwaschbaren Beschichtung (Fliesen) versiegelt sein müssen. Hat sie recht. Es gibt nichts unangenehmeres als in einem Raum eingesperrt zu sein, der hyperhygienisch bis fast unter die Raumdecke versiegelt ist. Wie im Schwimmbad oder in einer klinischen Einrichtung. Ich habe in der letzten Woche eine Kundin beraten, bei der wir ebendiese fast raumhohen Fliesen rückbauen und an dieser Stelle "nur" Farbe zeigen. Ich sehe aber an deinem Projekt, daß die beiden Bäder nicht gerade großzügig geschnitten sind. Dabei besteht schon die Möglichkeit, daß beim Duschen Wasser an die gegenüberliegende Wand spritzt, schlimmer noch Waschschaum wieder entfernt werden muss. Mehr, wenn Kinder dabei sind. Im großen Bad würde ich empfehlen die Wände in der Dusche bis zur Oberkante der Glasflächen, das danebenliegende Waschbecken auf gleicher Höhe bis zum Boden mit abwaschbarem Material zu versiegeln. Um die Badewanne herum nur in einem einem Bereich wo Spritzwasser möglich ist, aber deutlich gerigere Höhe als in der Dusche. Den Toilettenvorbau würde ich aus praktikablen Gründen die Rückwand und die Ablage beschichten. Die Wand dahinter nur farblich gestalten. Den Fussboden würde ich in einem dunkleren Ton ausführen (vielleicht mittel oder dunkel grau), die Wände dann in einen hellen sandfarben Ton, ähnlich deinen Mustern auf den Bildern. lg Carsten...mehrHilfe...!! Bei Planung von Badezimmer und Waschküche!!
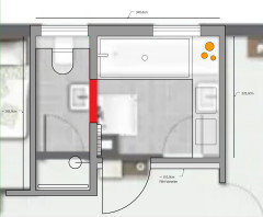
Kommentare (4)Hallo Freudespeedy, scheinbar wurde Dein Dilemma irgendwie übergangen. Ich hoffe, ich kann Dir jetzt ein wenig helfen. Das Bad ist vor allem sehr schmal. Deswegen solltet Ihr versuchen, die Trennwand von Bad/HWR zu Ungunsten des HWR zu verschieben. Eigentlich habe ich dann nur die Wanne unter das Fenster gesetzt (somit kann die Brüstungshöhe wieder auf den Wannenrand runter geholt werden) und das WC mittig auf die 2-m-Linie gesetzt. Für 1,80 m große Menschen müsste das langen. Ich hoffe, der Installationsschacht im HWR lässt sich verlegen oder verkleinern. Die Durchgangsbreite zwischen Wanne und Waschtisch beträgt jetzt auch nur ca. 80 cm, man hängt aber nicht mit dem Kopf am Waschbecken, wenn man auf der Toilette sitzt. Viel Spaß Ach, das mit der Herzchen-Schiebetür muss natürlich nicht sein ;-) Die Materialität basiert im Wesentlichen auf diesem Bild aus Deinem Ideenbuch:...mehrIdeen zur Badgestaltung im Modulhaus
Kommentare (5)Zwei Waschbecken deshalb, weil wir fast immer zu zweit im Bad sind, da ist es echt sinnvoll... Und ich würde die Waschmaschine gerne in einen deckenhohen Schrank stellen, damit wir noch zusätzlichen Platz für Wasch- und Putzmittel etc. haben. Das soll aber schon vernünftig ausschauen, also alles aus einem Guss sein, die Schubladen unter den Waschbecken also auch nicht bis zum Boden, evtl. ein offenes Fach für dekorative Gegenstände etc. Hat jemand eine Idee, wie das ausschauen könnte?...mehrUmbau von Bad und WC im Altbau
Kommentare (5)Hallo Kado, danke für deine Ideen. Das drehen des Heizkörpers sprechen wir beim nächsten Besuch des Installateurs mit an. Deine Hinweise zur Gestaltung von Waschbecken und Badschrank nehme ich auf jeden Fall mit in die Detailplanung. Wenn es um die optische Gestaltung geht wäre ich ohne solche Hinweise komplett aufgeschmissen. Die Idee mit der Glaswand und Türe auf der langen Duschseite hatten wir auch schon. Hatten aber bedenken dass die 80cm Wand direkt nach der Badtür beim Betreten vom Bad dann eher einengend wirkt. Die Dusche in den schmalen Gang ist leider nicht möglich da wir dort keinen Abfluss in den Boden rein bekommen. Grüße...mehr- vor 2 Jahren
- vor 2 Jahren
- vor 2 JahrenZuletzt geändert: vor 2 Jahren
- vor 2 Jahren
- vor 2 Jahren
- vor 2 Jahren
- vor 2 Jahren
- vor 2 Jahren
- vor 2 Jahren
- vor 2 Jahren
- vor 2 Jahren
- vor 2 JahrenZuletzt geändert: vor 2 Jahren
- vor 2 Jahren
- vor 2 Jahren
- vor 2 Jahren

Gesponsert
Laden Sie die Seite neu, um diese Anzeige nicht mehr zu sehen






FINDHUS