Hilfe beim Grundriss
vor 9 Jahren
Hervorgehobene Antwort
Sortieren nach:Älteste
Kommentare (35)
Ähnliche Diskussionen
Ich brauche Hilfe beim Schlafzimmer-Dilemma
Kommentare (42)Ihr Lieben, Geduld zahlt sich bekanntlich aus. Nachdem wir jetzt noch einige andere kleine Projekte abgeschlossen haben, kam der Herr des Hauses heute mit einem Plan für unser Schlafzimmer. Und oh Wunder, seine Worte waren: Ich habe mir was überlegt. Der Bereich wird NUR für uns. Unsere Ruhe-Oase und Rückzugsort. Das Bad bleibt kinderfrei und es soll eine Relax-Ecke geben... Nun, ich war erstmal sehr erstaunt, aber er scheint es tatsächlich ernst zu meinen. Jetzt ergeben sich vielleicht doch noch andere Möglichkeiten. Liebe Anke, ich habe vor lauter Wand-Gefasel deine tollen Vorschläge schon wieder vergessen und vielleicht hat ja auch Markus noch die ein oder andere Idee. Ich zeige euch mal die Zeichnung von meinem Schatz, aber da ist bestimmt noch was zu optimieren. ;-) Liebe Grüße Verena...mehrDer Eingangsflur wurde nicht genehmigt! Brauchen Hilfe beim Umplanen
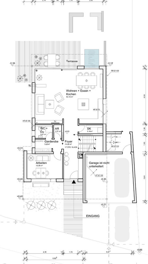
Kommentare (17)Hallo Frau Gutberlet, vielen Dank für die rasche Antwort!!! Ich war eigentlich nicht so der große Freund von ganz offenen Bereichen die in einander übergehen... meine Eltern haben das Esszimmer offen zum Wohnzimmer und als Kind fand ich es störend, dass es so nah dran war (die Erwachsenen saßen am Esstisch und haben laut geredet und die Kinder wollten zwar auch dabei sein aber doch mit etwas mehr Ruhe bzw. eigenem Lärm) daher war der Wohnzimmeranbau im ursprünglichem Entwurf auch etwas weiter hinausgeschoben, das ist nun aus Kostengründen eben wieder in Richtung Haus gewandert. Das Sofa wird genau gespiegelt stehen,also an der Nordseite mit Blick zum Garten/ Terrasse. Das große Fenster wird ein Sitzfenster so dass man es auch wirklich nutzt --> der eine sitzt auf dem Sofa der andere auf dem Boden und der dritte auf dem Fenster oder so ähnlich. Das Trepp auf und ab ist uns durchaus bewusst und auch gewollt, wir haben nicht umsonst drei Kinder ;-) daher auch die Positionierung und Richtung der Treppe. Vielleicht sind es tatsächlich die zwei offenen Treppenstufen ...sieht aber etwas komisch aus wenn da im Wohnzimmer ein Wandvorsatz ist wo er nicht benötigt wird. Wahrscheinlich wird die Kleine Trennwand einfach etwas länger werden... da muss ich schauen wie das wirkt.... Vor allem in 3D Ich spiele auch mit dem Gedanken das Fenster im Esszimmer mit Blick auf die Terrasse auch als Sitzfenster zu gestalten da ich eigentlich schon immer eine Eckbank am Tisch oder Ähnliches mir vorgestellt habe. Mit der Speisekammerabtrennung haben Sie recht bis jetzt sind Schiebetüren geplant wobei auch das Küchenstudio schon auf solche Klapptüren aufmerksam gemacht hat... ist im Hinterkopf abgespeichert :-). Die Speisekammer ist für uns auch hauptsächlich ein Stauraum für Bügelbrett, Staubsauger und Putzeimer (... Dinge die ich nicht wirklich freiwillig mal kurz aus dem Keller hole ;-)) Herzlichst...mehrHilfe beim Renovieren einer DHH
Kommentare (31)Ich habe im Erdgeschoss nun das Gäste-WC mal weggelassen, da ich ja unten eines rein gebastelt hatte. Ob das platzmäßig mit angedachten Mobiliar geht, weiss ich nicht, aber eventuell ist ja die eine oder andere Idee dabei, die sie verwerten können. Nach meinem Dafürhalten hätten Sie bei dieser Variante auf jeder Etage mindestens eine Toilette, also für die Eltern im EG, für die Kinder im DG und für Besucher ein Gäste-WC im Eingangsbereich. Vorteil bei der Variante ist, dass Sie vom Wohnraum in die Ankleide gehen und sich das Schlafzimmer und das Bad daran anschließen, also 1 Tür vom Wohnraum aus in Ihr eigenes Reich. Diese 3 Räume haben alle mindestens ein Fenster. Vom Treppenhaus könnten Sie auf die Terrasse und von der Küche eventuell auch. Die Garagendachterrasse würde ich kleiner gestalten als die Dachfläche tatsächlich ist, denn solche Terrassen wirken meist kahl und nüchtern. Stattdessen würde ich einen Teil des Garagendaches extensiv begrünen und von innen (aus Küche) sieht man bei Schlechtwetter nicht nur irgendwelche Platten mit Mobiliar und Pflanzgefäßen darauf, sondern auch etwas Natur, die sich etwas ausbreiten darf. Dazu Dielen und das wird richtig chic. Ich bin bei sämtlichen Überlegungen davon ausgegangen, dass Sie noch selbst am Überlegen sind und noch keinen Architekt mit im Boot hatten, daher habe ich mich eher von den ursprünglichen Grundrissen leiten lassen. Die anderen Bilder waren selbst bei Anklicken noch sehr klein und daher wenig aussagekräftig. LG Axel Rockensüß...mehrGrundrisshilfe - wir verzweifeln
Kommentare (5)Hallöchen Hamburger Hütten! Vielen, vielen Dank, dass du dir die Mühe gemacht hast und mir so einen tollen Vorschlag gemacht hast. Ich werde diesen auf jedenfall meinem Architekten vorlegen! Deine Zeichnung hilft mir da sehr! Ganz lieben Dank an dich!!!!...mehr- vor 9 JahrenZuletzt geändert: vor 9 Jahren
- vor 9 Jahren
- vor 9 Jahren
- vor 9 Jahren
- vor 9 Jahren
- vor 9 Jahren
- vor 9 Jahren
- vor 9 Jahren
- vor 9 Jahren
- vor 9 Jahren
- vor 9 Jahren
- vor 9 Jahren
- vor 9 Jahren
- vor 9 Jahren
- vor 9 Jahren
- vor 9 Jahren
- vor 9 Jahren
- vor 9 Jahren
- vor 9 Jahren
- vor 9 Jahren
- vor 9 Jahren
- vor 9 Jahren
- vor 9 Jahren
- vor 9 Jahren
- vor 9 Jahren
- vor 9 Jahren
- vor 9 Jahren
- vor 9 Jahren
- vor 9 Jahren

Gesponsert
Laden Sie die Seite neu, um diese Anzeige nicht mehr zu sehen








ankestueber