Grundriss für EFH in Hanglage - Feedback u.a. zu Badplanung erwünscht
Hallo,
wir haben unseren Grundrissentwurf für unser Einfamilienhaus mehr oder weniger fertig und würden uns über Kommentare/Rückmeldungen freuen. Besonders zur Badplanung wären wir für Tipps dankbar, da uns die Aufteilung weder im EG noch im Wohn-UG restlos überzeugt.
Gäbe es eine bessere Anordnung für die Nutzung als Familienbad im EG bzw. Gäste/Zweitbad im UG? (Wir möchten kein zweites "Kinderbad" im EG, weil insgesamt bereits 3 Bäder vorgesehen sind)
Fällt euch sonst am Grundriss etwas auf, was noch geändert werden sollte?
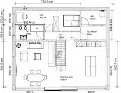
Grundriss EG:

Grundriss UG:

Grundriss DG:

Darum sind wir zum jetzigen Entwurf gekommen:
- Grundstück in Hanglage (Süd-Südost-Hang) mit Terassen-/Gartenzugang vom UG. B-Plan sieht ein Vollgeschoss (EG) + Hanggeschoss + DG im Satteldach mit niedrigem Drempel vor.
- daher offener Wohn-Koch-Ess-Bereich im UG mit nach Süden fast vollständiger Verglasung
- Schlafräume im EG sollten privat sein - kein Durchgang/Einblick, wenn Gäste ins Wohnzimmer im UG gehen wollen
- Vorerst werden Eltern + 2 Kinder im EG schlafen. Es ist geplant, dass der Eltern- Bereich ins DG verlegt wird, wenn die Kinder größer sind.
- An der nord-östlichen Seite ist eine unterkellerte Garage geplant (nicht im Plan sichtbar) daher sind an dieser Wand über ca. 6m Länge keine Fenster möglich.
Vielen Dank im Voraus für Eure Kommentare!
Kommentare (30)
- vor 7 Jahren
Guten Abend,
können Sie mir bitte noch mitteilen, wo genau der Versorgungsschacht in den Badezimmern vorgesehen ist.
Im EG sind dort Trockner und Bidet optional mit eingeplant?
Was befindet sich im DG in Raum4 ?
Freundliche Grüße!
hausamhang
Ursprünglicher Verfasservor 7 JahrenHallo!
Hier gerne die Infos zu Ihren Fragen:
- Der Versorgungsschacht ist noch nicht final geplant. Es ist allerdings so, dass DG und EG direkt in den Kanal entwässern können und das UG über eine Hebeanlage entwässern muss, die als Unterflur (Aqualift Compact Duo) im HAR zu liegen kommen wird. Wo würden Sie den Schacht anordnen?
- Im EG wäre uns ein Bidet wichtig. Mit Waschmaschine und Trockner sind wir uns noch unschlüssig, ob wir sie eher im DG positionieren. Evtl. würden wir dafür einen separaten Waschraum einplanen.
Es erscheint uns aber auch praktisch, die Wäsche dort zu waschen, wo sie anfällt: im EG - und dann auf der gleichen Etage wieder in die Schränke räumen zu können.
Daher ist unsere aktuelle Tendenz, Bidet, Waschmaschine und Trockner alle im EG-Bad mit unterzubringen.
- Im DG in Raum 4 war eine Abstellkammer für Putzutensilien unter der Raumspartreppe zum Spitzboden geplant. Da wird letztendlich nur ein kleines Regal reinpassen - wenn überhaupt.
Vielen Dank und schöne Grüße!- vor 7 JahrenZuletzt geändert: vor 7 Jahren
Ehrlich gesagt weiß ich gar nicht so genau, wo ich anfangen soll.
Daher konzentriere ich mich mal auf das UG. Voran geht die Überlegung, dass Sie im EG zwei Kinderzimmer und ein Elternschlafzimmer planen und im DG die Reserve haben und das Elternschlafzimmer dort hin umziehen soll, wenn die Kinder alleine auf einer Ebene schlafen können und wollen. Das bedeutet, dass zuerst das DG frei ist und später das Elternschlafzimmer. Sehe ich das so richtig? Im EG planen Sie ein Gästezimmer. Warum? Dieses würde ich zuerst ins DG verlegen und später dann ins EG, je nachdem wo das Elternschlafzimmer ist.
Der Platz des Gästezimmers im UG würde ich der Küche geben, damit diese direkt ein Fenster hat. Der HWR kann dann vergrößert werden, was nie schaden kann, zumal es ja keinen Abstellraum-Keller gibt.
hausamhang
Ursprünglicher Verfasservor 7 JahrenGuten Morgen,
vielen Dank für die Überlegungen - diese treiben uns ebenfalls um. Sie haben auch Recht, dass das DG zu Anfang wahrscheinlich nur wenig genutzt werden wird.
Zur aktuellen Lösung muss man noch wissen, dass die Großeltern für mehrere Monate im Jahr bei uns wohnen und uns u.a. im Haushalt unterstützen (wohnen eigentlich 1800km entfernt). Sie würden dann entweder im Gästezimmer im UG oder im späteren Eltern-Zimmer im DG ihren Bereich bekommen, in dem sie sich auch ein wenig einrichten können. Gleichzeitig wäre dann trotzdem noch ein Gästezimmer frei, was für andere Familienmitglieder zur Verfügung steht, die alle mindestens 350km entfernt wohnen.
Ein Vorteil des Gästezimmers für Kurzzeit-Übernachtungsgäste im UG wäre auch, dass diese auf der Wohnetage wären und nicht zum Schlafengehen und nach dem Aufstehen den Schlafbereich im EG durchqueren müssten.
In der aktuellen Küchenplanung wäre übrigens Kochen und Spülen beides auf der Insel und in der Hochschrankzeile nur eine Nische für Küchengeräte. So hat man beim Schnippeln und Kochen immer den Panorama Ausblick in den Garten, so dass vielleicht auf ein näher gelegenes Fenster verzichtet werden kann.Waschmaschine und Trockner würden wir eher nicht ins UG verlagern sondern gerne im Familienbad haben, alternativ im DG.
Wir würden nicht zwangsläufig an dieser Aufteilung festhalten, finden aber, dass sie einige Vorteile bietet. Außerdem wären wir so schon jetzt vorbereitet, wenn z.B. die Großeltern in Rente sind und noch länger / dauerhaft blieben, eines der Kinder später zu Ausbildung/Studium ein Appartement im DG haben möchte oder es weiteren Familienzuwachs gäbe.Was wären aus Ihrer Sicht die konkreten Vorteile, auf das Gästezimmer im UG zu verzichten? Ist der Platz im Wohn-Koch-Ess-Bereich zu knapp bemessen / nicht großzügig genug?
Uns würden auch sehr Ihre Überlegungen zu den anderen Etagen interessieren.
Vielen Dank und schöne Grüße!
- vor 7 JahrenZuletzt geändert: vor 7 Jahren
Das Problem ist wir kennen Sie, Ihre Vorgaben, Ansprüche etc. nicht, so dass wir ja immer ins Blaue schießen. ;-)
Für mich war ohne Vorkenntnisse das Gästezimmer unten Platzverschwendung, da ja oben immer mindestens ein Zimmer frei ist - dachte ich. Mir wäre dann das natürliche Licht in der Küche und ein größerer HWR (nicht für Wama etc.), sondern einfach um noch Abstellfläche zu haben, wichtiger gewesen. Und wenn es geht, finde ich, Schlafräume getrennt von den Wohnräumen immer gut, damit man sich nicht gegenseitig stört.
Mit den Informationen jetzt erschließt sich mir das Konzept aber noch weniger, denn ich sehe gar nicht, wann Sie in DG ziehen könnten. Ein Umziehen ins DG sehe ich nur, wenn die Großeltern Schwierigkeiten mit dem Laufen bekommen. Ich denke nämlich, dass wenn man doch so lange Zeit am Stück zusammen wohnt, es gut ist, wenn die Großeltern hier etwas mehr Rückzugsraum haben. Wie Sie schon sagen, sich einrichten können.
Wenn man daran denkt, dass die Großeltern vielleicht auch ganz einziehen könnten oder man auch mal eine Wohnung abtrennen möchte. Dann hätte ich hier mit einer abgeschlossenen Einliegerwohnung mit Verbindungstür oder gemeinsamem Flur geplant. Weil es mir halt wichtig wäre, dass hier wirklich jeder seinen abgeschlossenen Bereich hat. Bei allem Zusammensein und sich gut Verstehen, hat man aber auch das Bedürfnis nach Ruhe, Privatsphäre und möchte einfach auch mal alleine sein.
- vor 7 Jahren
Ja, finde ich auch! Und genau das gelöst, was mir persönlich am wenigsten gefallen hat, die Eingangs- und Flursituation. Toll!
- vor 7 Jahren
@Hamburger Hütten: Super Entwurf - so viel besser als das Original! Wirklich beeindruckend. Liebe Anke, das würde ich so umsetzen! V
hausamhang
Ursprünglicher Verfasservor 7 Jahren@Hamburger Hütten: Danke Danke Danke! Wir sind total begeistert. Wir werden Ihren Entwurf definitiv so umsetzen und haben es gleich mal in unsere private Plansoftware überführt :-)))
Die Fenster in den Kinderzimmern haben wir wie von Ihnen empfohlen eingeplant - wir würden hier an der Südfront zum Garten hin größere (180 oder 200cm) bodentiefe franz. Balkons einplanen und an den Seiten die von Ihnen vorgeschlagenen "Schreibtischfenster" in 150 cm Breite. Seitlich stehen in je etwa 7 m Entfernung die Nachbarhäuser, während nach vorne der Blick über den Garten und eine gegenüberliegende Erhebung geht.
So in etwa würde es im EG dann aussehen (siehe unten):
Haben Sie für den Wohnbereich vielleicht auch noch so eine tolle Empfehlung?
@Ankestueber: Vielen Dank für Ihre Anregungen; insbesondere Ihre Hinweise zur Lichtsituation im Küchenbereich. Wir haben daraufhin noch einmal versucht, die Räume etwas anders anzuordnen, um die Küche weiter nach "vorn" zu holen.
Wir sind auf diesen Entwurf im UG gekommen:
Wir würden uns sehr über weitere Anregungen und Kommentare von Ihnen allen freuen!
Vielen Dank!!!

- vor 7 Jahren
Hallo Zusammen!
Ich möchte um Himmels Willen nicht die Spielverderberin sein und kenne im Grunde ja auch keine Details der Zuwegung und des Grundstücks, aber. . . Habt Ihr schon einmal darüber nachgedacht, die Bereiche umzukehren? D.h. den öffentlich zugänglichen oben, in Haustürnähe und den privaten (Schlaf-)Bereich unten?
Bitte nicht falsch verstehen! Mir gefällt der Entwurf von Hamburger Hütten sehr, sehr gut und evtl. könnte man ihn in angepaßter, umgekehrter Anordnung umsetzen. . . Ich "reibe" mich an dem "Knackpunkt" Eingangsbereich in einem Teil des Hauses, den ich eher als den "privateren" ansehe und stelle daher mal die Frage in den Raum, ob es nicht Sinn macht die "traditionelle Aufteilung" (unten Wohnen, oben Schlafen) zu überdenken.
Da wir selbst im Hang wohnen, finde ich es z.B. sehr angenehm, dass sich das "öffentliche" Leben bei uns auf der oberen Ebene abspielt (wo auch die kleine ELW für Sohn und später Gäste ist) und der private Rückzug mit Zugang zum Garten und der Terrasse über die untere Ebene stattfindet. Je nach dem, was einmal im Garten geplant ist (Außensauna, Pool, Schwimmteich, Jacuzzi, . . . ?!) , ist es auch einfacher vom Garten aus direkt ins Bad zu können, statt erst durch den kompletten Wohnbereich zu laufen. Der Wohnbereich oben schließt ein Leben mit einer Verbindung nach Außen und einem Gartenzugang ja nicht aus!
Ganz nebenbei ist es einfach praktisch z.B. den Einkauf, Wasserkästen etc. nicht erst durch das ganze Haus nach unten tragen zu müssen, sondern gleich ebenerdig verstauen zu können. Einen weiteren Vorteil sehe ich darin, dass Gäste - wenn sie denn z.B. einmal unabhängig von den Gastgebern ausgehen- kurze Wege haben, statt durch die komplette Wohnung laufen zu müssen. - Gerade, wenn man später vielleicht auch mal eine andere Nutzung als "kleines "Reich" für ein Elternteil, eine Pflegekraft oder eines der Kinder in Erwägung zieht.
Ein weiterer Pluspunkt der Schlafzimmer um UG: Es ist auch im Sommer sehr angenehm kühl und ruhig.
Wie gesagt: Es ist nur nochmal ein Einwurf, um wirklich alle gangbaren Möglichkeiten überdacht und ggf. auch ausgeschlossen zu haben. Nichts ist ärgerlicher, als sich hinterher zu sagen: Ach, hätte ich doch . . .
Insofern wäre es m.E. doch noch einmal sinnvoll hier einen Lageplan des Grundstückes mit Ausrichtung und evtl. Bilder von Aussichten einzustellen. Vielleicht ergeben sich so noch weitere schöne Ausblicke/ Bezüge, wie die aus den - nun größer werdenden - Fenstern der Kinderzimmer. Viele Grüße & schönen Abend!
hausamhang
Ursprünglicher Verfasservor 7 JahrenGuten Abend und vielen Dank, Lasse G!
Schlafetage im UG ist in der Tat auch eine interessante Idee am Hang. Bei uns würde es aufgrund des Gefälles und der geringen seitlichen Abstandsflächen dann jedoch sehr schwierig mit einer ansprechenden Verbindung von Wohnzimmer und Garten - daher bevorzugen wir aktuell die Variante mit Wohnzimmer im UG.
Ich lade gerne einmal den Lageplan und ein Foto mit der Aussicht hoch. Der Standpunkt, von dem das Foto gemacht wurde, war ungefähr auf späterem EG-Niveau.
Die Außenanlagen werden allerdings ganz anders werden als hier eingeplant.
- vor 7 Jahren
- vor 7 Jahren
Als wir uns damals (in meinen "vor-Houzz-Zeiten" :))) mit dem Thema Bauen im Hang beschäftigten, habe ich mir u.a. sehr viele Projekte und Profile von Architekten aus Österreich, der Schweiz und Südtirol angeschaut. Nicht, weil ich dachte oder denke, dass deutsche Architekten keine Häuser im Hang können, sondern einfach aus dem Gedanken heraus, dass man da, wo man um den Hang noch seltener herum kommt, vielleicht nochmal andere Herangehensweisen finden könnte.
Anbei mal (ich hoffe man darf das !?) ein Link zu einem Haus des Büros Dietrich Untertrifaller Architekten, dass ich mal als eine damalige "Inspirationsquelle" bezeichnen möchte. Sehr gut gelöst finde ich dort die Situation der ELW und den im Gebäudeumfang enthaltenen, überdachten Balkon, der einerseits (im Sommer) für Beschattung und (ganzjähig) Wetterschutz bietet und eine großartige Erweiterung des Wohnraums nach außen darstellt. An diesen Balkon angegliedert und ebenfalls im Umfang des Baukörpers enthalten:
der geschützte Abgang zur Terrasse unten, die wiederum durch den Balkon
z.T. auch witterungsunabhängig genutzt werden kann. (Einfach mal die Bilder duchklicken.)Wie die Optik dann letztlich aussieht, ist sicher nochmal eine ganz andere
Frage. Mir persönlich gefällt eine monolithische Bauweise sehr sehr gut, aber
es ginge sicher auch "traditioneller".Was ich damit sagen will: Wenn ich mir die Maße Eurer o.a. Zeichung und des Grundstückes ansehe (ohne nun den tatsächlichen Geländeverlauf zu kennen), glaube ich, dass eben noch ein "Ticken" mehr in Sachen Aufteilung (u. evtl. auch Integration der Garage) drin ist, der letztlich zu mehr Privatheit für alle (Bewohner, wie auch Gäste) führt und dennoch nichts an modernem offenem Wohnen vermissen läßt. Seht es einfach mal als weitere Idee an, die man ggf. zur Diskussion
stellen kann und wenn nicht, dann ab damit in die "Ablage P".Wie weit ist denn reell der Stand der Dinge? Das Grundstück wurde gerodet, Ideen werden gesammelt, aber die Zeichungen kommen (noch) aus Eurer Feder. . . Habt Ihr denn schon einen Architekten/ Architektin beauftragt?
hausamhang
Ursprünglicher Verfasservor 7 Jahren@Lasse
G:Vielen Dank für diese Überlegungen-
das Haus von dem Architekten sieht wirklich sehr stark aus und bildet eine
Einheit mit der tollen Natur. Es erinnert mich etwas an eines der Häuser, die
glaube ich letztes Jahr beim Häuser-Award ausgezeichnet wurden.
Hier einmal ganz kurz unser aktueller Stand:- - Wir plan(t)en und bauen mit einem Ingenieurbüro ohne Architekt, allerdings mit Planer.
- Basierend auf der Planung des Planers haben wir nach langem hin und her auch die Baugenehmigung mit recht großzügigen Überschreitungen des Bebauungsplans bekommen - für die hier beschriebenen Außenabmessungen und Ansichten des Hauses (Dach und Form).
- Nach Baugenehmigung (!) haben wir einen Architekten für die radikale Umgestaltung der Innenaufteilung engagiert. Der sehr konservative Entwurf des Planungsbüros gefällt uns nicht mehr und wir konnten von diesem keine weiteren Impulse mehr erwarten.
-Die Bäume sind gerodet und die Baugrube ist ausgehoben.
-Aktuell warten wir darauf, die neue Aufteilung fertig zu haben, um mit dem Bau starten zu können.
- Vielen Dank für die weitere Überlegungen.
- vor 7 Jahren
Schade, wenn der Hausbau gleich mit sowas anfängt, aber ich glaube, ich würde - sofern keine vertraglichen Bestandteile dagegen sprechen- einen Strich unter die bisherigen Planungen machen und unter "Lehrgeld" verbuchen. Ärgerlich, aber noch ärgerlicher wäre es m.E. nun einen "Kompromiss in alten Mauern" finden zu müssen, mit dem man dann nicht wirklich glücklich und mit jedem Tag an den unguten Start erinnert wird. Zumal ich mich frage, in wie fern die Baugenehmigung weiterhin Gültigkeit hat, wenn das Haus selbst noch einmal radikal umgeplant würde. Die Konsequenz wäre für mein Verständnis, dass nur die Kubatur genehmigt worden wäre und das kann ich mir nicht vorstellen. Hamburger Hütten und Herr Habes mögen da als Profis vielleicht professionelles Licht ins laienhafte Dunkel bringen.
Das Haus aus Dornbirn wurde tatsächlich mal vor ein paar Jahren mit einem Häuser-Award bedacht und entsprechend publiziert. Aber auch andere Häuser des Büros, wie auch anderer Architekten aus dem Voralberg wurden in den vergangenen Jahren für ihre Bauten ausgezeichnet. (Dazu gab´s z.B. auch mal ein Sonderheft.) Mein Ansinnen war auch eher aufzuzeigen, dass es sicher möglich ist, mit einer anderen Aufteilung die geäußerten Bedürfnisse vielleicht für alle Beteiligten etwas praktikabler und dennoch sehr ansprechend auf die Reihe zu bekommen. Ob dann die Fenster in den Kinderzimmern bodentief sind, oder mit Sitzbank, ob es zwei od. drei Kinderzimmer sind, ob es im Gästebereich Platz für eine große Tafel gibt, . . . - Egal, alles "Spielmasse", an die man sich anlehnen kann, der man aber nicht sklavisch folgen muss. Genauso die Überlegung, ob ein Treppenhaus prominent Zentrum des Hauses sein soll oder eher - nicht minder attraktiv - an den Rand verlegt wird, um große Flächen offen zu halten. Außerdem sicher gut am Beispiel ersichtlich: Eine gelungene Verbindung von Innen und Außen ist auch bei einer umgekehrten Geschossaufteilung ohne Qualitätsverlust möglich.
Wenn man nun im Vergleich noch die Eigenentwürfe und die Ideen von Hamburger Hütten betrachtet, wird ersichtlich: Die Herangehensweise und Ideen, die ein Profi hat, bereichern und strukturieren den Entwurf und bringen eigene Wünsche in geordnete Bahnen. Insofern würde ich dazu raten, einen Architekten/ Architektin vor Ort oder hier auf Houzz zu suchen und das Pferd neu aufzäumen. Das wiederum kann für mein Empfinden nur sinnvoll im direkten Austausch miteinander stattfinden. Alles weitere überfordert m.E. die Möglichkeiten eines solchen Portals. Zumal ich es für nachvollziehbar halte, dass ein Architekt in diesem Rahmen hier nicht für "umme" öffentlich die Blaupause für einen Mitbewerber vor Ort liefern kann und möchte. Insofern bin ich gespannt wie es weitergeht und wünsche viel Erfolg, bei der, für Euch hoffentlich zeitnahen Umsetzung und mit ganz viel Lebensqualität für alle zukünftigen Bewohner Eures Haus am Hang. Liebe Grüße!
hausamhang
Ursprünglicher Verfasservor 7 JahrenDanke für Ihre Überlegungen! Auf welchem Geschoss das Wohnzimmer positioniert werden soll, hat uns auch wirklich lange beschäftigt --> In der ursprünglich genehmigten Planung war z.B. das Wohnzimmer im EG und Familienschlafzimmer im DG. Uns gefällt der Vorschlag von Hamburger Hütten jetzt wirklich ausgesprochen gut. Ich zitiere ihn hier noch einmal:

Es ist ehrlich gesagt das erste Mal, das uns ein Vorschlag sofort vollends überzeugt und richtig gut gefällt und unsere Wünsche berücksichtigt :-) - in ca. 2 Jahren, die wir uns nun mit dem Thema Hausbau beschäftigen.Viele Grüße!
- vor 7 Jahren
Dann ist doch alles bestens! Wenn die Überzeugung gereift ist, dass es so werden soll, hat das allen anderen (inkl. mir;-)) lange recht zu sein.
hausamhang
Ursprünglicher Verfasservor 7 JahrenLieber Hansen-Innenarchitektur: Vielen Dank für das Posten Ihres verwirklichten Bades.
Besonders unschlüssig sind wir uns derzeit noch im Bad für das UG:
Dies ist bedingt durch die Fensterlage schlauchförmig mit 175cm Breite.
Wir hatten hier auch mal über eine 2-Bad-Lösung nachgedacht, die sich je nach Bedarf verbinden oder trennen lassen:
Viele Grüße!
hausamhang
Ursprünglicher Verfasservor 7 Jahren@Hamburger Architekten: Einige Ihrer Ideen versuchen wir gerade visuell nachzuvollziehen:
Z.B. "Auch ein Fenster zwischen Spielflur und Treppe oder Spielflur und Küche wäre schön."
Meinen Sie damit eine Verglasung der Wand zwischen den beiden Treppen? Ich habe mit unserem 3D-Programm mal zwei Screenshots gemacht (s.u.; die Betrachterposition ist hier jeweils im linken bzw. rechten Flur im Erdgeschoss).
Das würde den Flur vielleicht wirklich noch spannender machen. Evtl. mit halb-verspiegeltem Glas?


- vor 7 JahrenZuletzt geändert: vor 7 Jahren
Hallo hausamhang,
ich habe in den letzten Tagen hier immer mal wieder mitgelesen und finde die von Lasse G angeregte Diskussion sehr interessant. Grundsätzlich finde ich es ebenfalls, gerade bei einem Neubau, sehr schade und wenig zielführend, wenn sich ein anfängliches Entwurfsprinzip oder auch nur eine ursprüngliche Idee oder ein bestimmtes Bild nicht direkt umsetzen lässt (weil sie zum Beispiel für den Raumbedarf, das Grundstück oder die Bewohner nicht funktioniert, zu teuer ist oder vom Planer nicht verstanden/geteilt wird) mit der Zeit dahingehend verselbständigt, dass ein darauf basierender Plan trotzdem immer weiter und weiter entwickelt wird, obwohl manchmal ein paar Schritte zurück ganz gut täten.
Will heißen: Man merkt Ihrem Hausentwurf den etwas verqueren Entstehungsprozess aus mehreren Händen deutlich an und ich glaube nach wie vor, dass es sich trotz Ihrer schlechten Erfahrungen lohnen würde, noch einmal einen Architekten hinzuzuziehen, um die wesentlichen Merkmale und Schwerpunkte des zu bauenden Hauses gemeinsam mit Ihnen herauszuarbeiten.
Dennoch habe auch ich mich - von Ihrer schmeichelhaften Zufriedenheit mit meiner Erdgeschossskizze motiviert - mit Ihrem Untergeschoss befasst und es - ohne die grundsätzliche Aufteilung oder die Hüllfläche in Frage zu stellen - geordnet und strukturiert, um seine in meinen Augen durchaus vorhandenen Stärken hervorzuheben.
Wenn ich mir Ihr Haus anschaue, ist für mich der Treppenraum mit den ihn umgebenden Bewegungs- und Begegnungsflächen mit dem Blick ins Tal das bestimmende Element. Diese Räumen werden durch die Dreigeschossigkeit, die Position der Erschließung und die Aufteilung der Nutzungen täglich vielfach genutzt werden.
Ich sehe die Treppe daher nicht als eine Ansammlung von verschiedenen Elementen wie den Stufen, dem Geländer und verschiedenen Arten von Wandkonstruktionen, sondern als ein Element, das wie eine Art Rückgrat das ganze Haus zusammenhält. Beispiele kann ich bei Gelegenheit einmal raussuchen.
Dieses Element würde ich in allen Geschossen freistellen. Das sorgt zwar für eine gewisse Unruhe, da sich Menschen, Luft, Gerüche, Stimmungen frei um den festen Kern bewegen, entspricht aber meines Erachtens dem hinter der Entscheidung für diese Art der Erschließung und Gestaltung stehenden Prinzip.
Besonders im Untergeschoss könnte ich mir gut eine (Holz-)verkleidung mit mannigfaltigen Stauräumen für die flankierenden Räume vorstellen (Küchenschränke, Fernseh- und Musiknische, Abstellkammer). Eine ganz offene Treppe hingegen würde das Licht weit in die hangseitigen Bereiche des Hauses führen und sie aufwerten.
Diese Bereiche sollte man meines Erachtens auch nicht gar so stiefmütterlich behandeln, sonst wird nicht nur dieser Teil des Hauses selbst, sondern auch der Blick dorthin (zum Beispiel von Küche und Essplatz aus) sehr unangenehm. Es handelt sich hier ja immerhin um das Wohngeschoss mit repräsentativen Räumen und direktem Gartenzugang!
Das Bad im Untergeschoss würde ich zugunsten eines gut geschnittenen, außenliegenden Zimmers als innenliegendes Bad ausführen. Seitlich der Zuwegung im Erdgeschoss können zudem Lichtschächte angeordnet werden, vielleicht sogar mit Glasscheiben abgedeckt, so dass eine Art Brücke zwischen den zwei Öffnungen im Boden zur Haustür führt.
Viele Grüße und ein schönes Wochenende!
A.R.
PS. Den Esstisch habe ich gedreht, denn die Plätze mit Blick in den dunklen Hang und der hellen Terrasse im Rücken werden sicher nicht sehr beliebt sein.
- vor 7 Jahren@Hamburger Hütten: Chapeau für Ihre Ideen, die hier die notwendige Ordnung in die Gemengelage bringen und ganz offensichtlich den Nerv der Fragesteller treffen!
Ich wage dennoch -für mich in der Sache abschließend, weil eine solche Aufteilung für mich nicht in Frage käme (und auch nicht kommen muss ;-)))- unter manch anderen noch eine Situation evtl. zu überdenken: Stichwort „Durchgangsverkehr“. Jeder (!) Besuch läuft zu jeder Besuchszeit, bei jeder Witterung und in jedem Zustand durch den Schlafbereich der Kinder. . . Will sagen/ Kopfkino: nach einem stimmungsvollen, evtl. auch etwas weinseeligen Winterabend verabschieden sich die Gäste der Kindseltern nachhause, steigen mehr oder weniger belustigt und erzählend die Treppe hinauf, ziehen oben noch lachend die Straßenschuhe an und verschwinden (nach vielen netten Hinweisen doch bitte wegen der Kinder etwas leiser zu sein) in die Nacht. Wohingegen sich die Eltern unten schon gerne früher zurückgezogen hätten, aber nicht recht zur Ruhe fanden, weil doch immer noch “Traffic“ rund um‘s Bad unten herrschte. Solche Szenarien sind ja nicht völlig aus der Luft gegriffen oder so abstrus, als dass sie nicht stattfinden könnten. Insofern finde ich es wichtig sich eben auch diese Lebenssituationen zu vergegenwärtigen. Das soll‘s dann aber auch von mir dazu gewesen sein. Ich wünsche viel Erfolg bei den weiteren Planungen! LG! hausamhang
Ursprünglicher Verfasservor 7 JahrenGuten Abend,
Sie können sich gar nicht vorstellen, wie dankbar wir sind, dass Sie den Faden aufnehmen und unter Aufgreifen mancher unserer lose zusammengewürfelten Ideen erstmals einen schlüssigen und für uns sehr passenden Hausentwurf erschaffen.
Es gefällt uns wirklich sehr sehr gut! Das wird ebenfalls Eingang in unsere Planung finden.
Bezüglich der Situation im Bad im UG könnte man ggf. sogar als Alternative zum Lichtschacht planlinks in Ihrem Entwurf ein richtiges Fenster einbauen:
Wir müssen nämlich gegenüber dem aktuellen Geländeverlauf etwa 1 m aufschütten, um etwa auf Straßenniveau ins Haus gehen zu können (in Ansicht unten braun schraffiert). Könnte man nicht, mittels L-Stein o.ä. etwa 1,50 m Höhe kurz hinter der Haustür abfangen? Dazu müsste man den vorhandenen Geländeverlauf jenseits des L-Steins wahrscheinlich gar nicht groß verändern.
Hier die Skizze zur Veranschaulichung [weiß-grauer Verlauf: aktuelles Gelände; die Hauseingangstür befindet sich auf Straßenniveau, die Straße ist hier nicht eingezeichnet, Aufschüttung braun schraffiert]:

Vielen Dank und schönen Abend Ihnen allen!
- vor 7 Jahren
Hallo Lasse G,
das wäre tatsächlich sehr ungünstig. Ich gehe deshalb davon aus, dass der "öffentliche" Treppenraum, der vom Eingang ins Untergeschoss führt, seitlich geschlossen ist. Der Treppenraum zwischen Windfang und Untergeschoss wird also seitlich von zwei Wandscheiben (aus welchem Material auch immer, vielleicht sogar transluzentem) flankiert, die zumindest von der Unterseite der Treppe ins Dachgeschoss bis zum Erdgeschossfußboden reichen. Je nach Gestaltung könnten beide Treppen auch zwischen raumhohen Wandscheiben laufen.
Eingangsbereich/Windfang und Untergeschoss sind verbunden, der Bereich der Kinder- und Schlafzimmer ist bei Bedarf durch Schiebetüren vom öffentlichen Bereich trennbar, so dass sich niemand auf der Suche nach dem Ausgang verläuft, die Skatfreundinnen von Mutti und die Proseccorunde von Vatti die schlafenden Kinder und Großeltern nicht wecken und der Besuchs-Hund von Tante Elfriede nicht schon wieder die Kuscheltiere am Sitzfenster zerkaut.
Dauergäste würde ich wohl auch nicht im Untergeschoss, sondern im Dachgeschoss unterbringen - die Rückzugsmöglichkeiten unten empfinde ich ebenfalls als zu gering. Helfen würden auch hier Schiebetüren, die den Gästebereich samt Bad im Untergeschoss bei Bedarf abtrennen würden, aber die sind ja leider so teuer, wenn sie auch noch in die Wand laufen sollen.
Martineau · Mehr Info
Haus H · Mehr Info
13th Beach House Stair and Reading Nook · Mehr Info
La casa con le radici | 180 MQ · Mehr Info
Wohnhaus S. Allgäu · Mehr Info
Stahl-Holz-Treppe · Mehr Info
Küche_02 · Mehr Info
Küche_02 · Mehr Info
Räume in der Scheune · Mehr Info
HAUS SCHÖNTAL BERLIN · Mehr Info - vor 7 Jahren
- vor 7 Jahren@Hamburger Hütten: Wieder einmal sehr schön beschrieben! :)))) Die baulichen Mittel rund um die Treppenanlage sind mir klar, aber einfach in dieser Situation (Abfolge der Funktionsbereiche) nicht „meins“. Und meine eigenen Schiebetüren-Erfahrungen sagen mir (bisher), dass ohne entsprechenden Einsatz von Geld für Ausführungsqualität, der Schallschutz oft genug auf der Strecke bleibt. Aber das muss die Bauherrschaft für sich entscheiden, so wie wir uns beim zweiten Haus und mit unseren familiären Erfahrungen, Bedürfnissen und Wünschen (auch an die zukünftig angedachten Nutzungsszenarien) sehr bewusst gegen eine solche Aufteilung entschieden haben. Ich hab meine Bedenken geäußert. Wenn sich die Fragesteller anders entscheiden, ist das für mich völlig in Ordnung. :) LG!
- vor 7 Jahren
Was für eine tolle Diskussion, ein Lob an alle Beteiligten.
@Hamburger Hütte, Chapeau, was für eine Verwandlung, die Grundrisse sind der Hammer. Man merkt, da sind Profis am Werk.
@LasseG Ihre Einwände sind ebenfalls klasse. In Vorarlberg zB. ist ein richtiger Tourismuszeig entstanden. Vorarlberger Holzbaukunst.
@hausamhang Ich möchte Sie nicht weiter verunsichern, da Sie geschrieben haben, dass die Zeit bei Ihnen drängt und die äußere Hülle fix ist. Sie sind auf einem guten Weg. Nur wollte ich (ebenfalls am Hang) noch die "Aussicht" in den Raum werfen. Wäre eventuell die Sicht aus dem EG (oder sogar aus dem DG) besser als aus dem UG? hausamhang
Ursprünglicher Verfasservor 7 JahrenLieber see_longisland,
die Aussicht ist tatsächlich der Grund, warum ich mich etwa ein Jahr dagegen gesträubt habe, das Wohnzimmer im UG anzusiedeln (dieses war wie oben beschrieben im Bauantrag noch im EG). In der Summe überwiegen für uns aber eindeutig die positiven Aspekte wie der direkte Gartenzugang, die für ein Wohnzimmer im UG sprechen.
Wegen der schönen Aussicht war es uns auch wichtig, dass das Sitzfenster an der Südseite nicht in einem individuellen Zimmer "verschwindet" sondern von allen Familienmitgliedern genutzt und genossen werden kann.
Wir sind wirklich glücklich mit Ihrem Entwurf, @Hamburger Hütten, und sinnieren aktuell über Einrichtungs-/Ausstattungsdetails wie z.B.
Positionierung eines Schwedenofens / Außenkamin
Wand zwischen Vorrat und HAR
oben besagte Überlegungen, ein "echtes" Fenster im UG Bad zu schaffen.
@Lasse G: Ihre Kommentare sind sehr hilfreich - und Sie sprechen Punkte an, die für uns auch eine große Wichtigkeit haben. Bezüglich Privatsphäre war etwa der erste Entwurf des von uns engagierten Architekten so, dass Windfang und "privater" Wohnflur im EG ein gemeinsamer Raum waren, somit die Privatsphäre für uns nicht genug gewahrt war.
Im Vorschlag von Hamburger Hütten ist für uns die perfekte Balance von Offenheit und Privatheit/Rückzugsmöglichkeit gefunden. Viel wird natürlich noch von der Ausführung und Materialwahl abhängen.
Vielen Dank Ihnen allen!

Laden Sie die Seite neu, um diese Anzeige nicht mehr zu sehen








Hamburger Hütten