Grundrissplanung DHH
vor 2 Jahren

Gesponsert
Laden Sie die Seite neu, um diese Anzeige nicht mehr zu sehen
Hallo Zusammen,
bislang waren wir nur stille Beobachter dennoch haben wir versucht den ein oder anderen Tipp mit in die Planung unserer Doppelhaushälfte aufzunehmen.
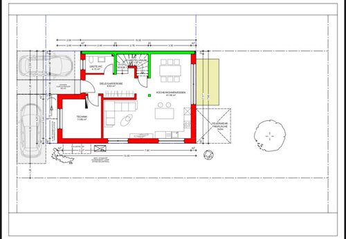
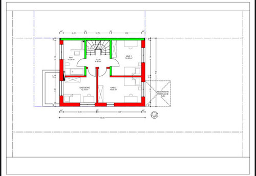
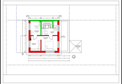
Wir - meine Frau, unsere 2 Kinder und ich - werden eine Doppelhaushälfte EG, OG, DG bauen.
Meine Zweifel liegen derzeit darin ob die bislang geplanten Stauflächen/Stauräume ausreichend sein werden?
Es wäre auch wünschenswert wenn die Profis unter euch über das Große und Ganze, sprich über die Anordnung der Grundrisse schauen und uns ggfs. Hilfestellung geben könnten.
(Essen / Küche wird getauscht)
Hat irgendwer Erfahrung mit Feuerwehr Freiflächen? Muss diese auf Höhenniveau vom Garten sein oder kann man diese auch auf die Terrasse legen? Heißt eine Fläche von 3x3m der Terrasse werden nicht überdacht sodass Leitern etc. im Brandfall gestellt werden können
Ich freue mich wahnsinnig auf die eure Rückmeldung
LG




Laden Sie die Seite neu, um diese Anzeige nicht mehr zu sehen
Houzz nutzt Cookies und ähnliche Technologien, um Ihre Benutzererfahrung zu personalisieren, Ihnen relevante Inhalte bereitzustellen und die Produkte und Dienstleistungen zu verbessern. Indem Sie auf „Annehmen“ klicken, stimmen Sie dem zu. Erfahren Sie hierzu mehr in der Houzz Cookie-Richtlinie. Sie können nicht notwendige Cookies über „Alle ablehnen“ oder „Einstellungen verwalten“ ablehnen.
lili777888
lili777888
Ähnliche Diskussionen
Grundrissplanung Doppelhaushälfte
Q
Grundrissplanung ??? --> 160qm, DHH, lang und schmal
Q
Küche / Küchenboden
Q
Einbauschränke in Kinderzimmer
Q
lili777888
lili777888
Nicola Bushuven Interior Consulting
Leroy LiUrsprünglicher Verfasser
Leroy LiUrsprünglicher Verfasser
Leroy LiUrsprünglicher Verfasser
lili777888
lili777888
lili777888
Nicola Bushuven Interior Consulting
lili777888