Houzz Tour: Industrial Materials Marry Residential Design
Corrugated sheet metal siding? Polycarbonate sheeting? These aren't the materials you'd expect to find in a family home
These clients asked the architects at Büro für Bauform to build a house on a budget of only about $350,000. And that was not the only constraint: They also handed the architects the building regulations for the town of Pirna, just outside Dresden, Germany, where the home was to be built. The law dictates that a house in this area must have a minimum eave height of about 16 feet 4 inches (5 metres), and a minimum garage eave height of about 15 feet 10 inches (3 metres).
They could have built a home with a flat roof, but then the house would have looked out of place in its environment. So, the architects explored other ways to save and eventually found the answer in industrial construction, which has the lowest costs per square foot. With a lot of brain work and some unexpected materials like polycarbonate and corrugated sheet metal, they created a three-section house entirely within budget for pure construction costs.
They could have built a home with a flat roof, but then the house would have looked out of place in its environment. So, the architects explored other ways to save and eventually found the answer in industrial construction, which has the lowest costs per square foot. With a lot of brain work and some unexpected materials like polycarbonate and corrugated sheet metal, they created a three-section house entirely within budget for pure construction costs.
The vaulted ceiling of the central section opens up all the way to the roof ridge. “The sunroom allows for sufficient air circulation, so we didn’t have to install a ventilation system,” Lehmeier says.
If there is enough sun, the air warms up to a comfortable temperature even in winter, while in summer roof windows installed on the north side ensure it doesn’t get too hot. The windows are equipped with a temperature sensor and open automatically when ventilation is needed. Thanks to a rain and wind monitor, they close on their own when it starts to rain or the wind is too strong. “Even in the technical aspects, we went for high comfort at low costs,” Lehmeier says.
If there is enough sun, the air warms up to a comfortable temperature even in winter, while in summer roof windows installed on the north side ensure it doesn’t get too hot. The windows are equipped with a temperature sensor and open automatically when ventilation is needed. Thanks to a rain and wind monitor, they close on their own when it starts to rain or the wind is too strong. “Even in the technical aspects, we went for high comfort at low costs,” Lehmeier says.
The two sections of the house that flank the sunroom are built out of stone and have a rain-screen made of corrugated sheet metal. The rain gutters and downspouts are invisibly integrated into the facade. The architects deliberately made the sections look monolithic. For example, they mounted the corrugated sheet metal with powder-coated screws the same colour as the sheet to get as uniform a look as possible.
The garage is nestled to one side of the sunroom and is the lowest and longest part of the building. The garage door is covered in polycarbonate sheets. “At first, we wanted to install skylights into the corrugated sheet metal, but we found we didn’t like it that much. To let daylight into the garage, we chose a customisable standard garage door and mounted polycarbonate sheets onto it, so we immediately had insulation,” the architect says. In addition, this allowed them to save even more on cost.
At the end of the entryway, in the garage section, is the guest bathroom.
Learn about the revival of corrugated panels
The garage is nestled to one side of the sunroom and is the lowest and longest part of the building. The garage door is covered in polycarbonate sheets. “At first, we wanted to install skylights into the corrugated sheet metal, but we found we didn’t like it that much. To let daylight into the garage, we chose a customisable standard garage door and mounted polycarbonate sheets onto it, so we immediately had insulation,” the architect says. In addition, this allowed them to save even more on cost.
At the end of the entryway, in the garage section, is the guest bathroom.
Learn about the revival of corrugated panels
The sunroom is next to it. A staircase divides the public and private areas of the home. “Architecture should direct movement,” Lehmeier says. “Guests should immediately realise where they’re allowed to enter and where they should only go with permission. Here, the staircase has this function. It both links to the lounge and acts as part of it. Actually, someone is always sitting here or there is always something on it.”
The stairs leads to the landing and, from there, to the children’s room, the guest room and the adjoining bathroom, all of which are in the next section – in the highest but narrowest part of the house.
The stairs leads to the landing and, from there, to the children’s room, the guest room and the adjoining bathroom, all of which are in the next section – in the highest but narrowest part of the house.
Lehmeier is a skilled metalworker and designed the staircase himself. The steps are made of 4-millimetre-thick steel sheets welded to a beam. The handrail is simple steel, and the balustrade is made up of a clothesline reinforced with steel wire. “Designing stairs is a hobby of mine,” Lehmeier says. “This handrail here is probably the cheapest I’ve ever come up with.”
See these incredible staircase designs
See these incredible staircase designs
Behind the staircase is the kitchen-dining room. A corner window – like all others in the house, made up of a wood-aluminium frame and triple panes – brings in daylight from two sides.
On the north side of the sunroom is a box built out of a wood frame, which can be accessed by a door under the staircase. It contains the master suite’s bathroom and walk-in closet. This leads to the bedroom, which is in the next section, located just behind the kitchen.
At first glance, the master bath appears to be an ordinary bathroom with a level entry shower and free-standing bathtub. Here too, nothing is as simple as it first seems. “The shower was one of the most complicated parts of the whole house,” says Lehmeier. Before pouring the floor slab, they had to determine exactly where and at which height the shower tray would be located. “So, we cast a placeholder into the concrete floor,” he says.
As with many industrial buildings, the floor slab in this house is in fact the finished floor. So, they placed insulation inside the outer formwork to protect the slab. “Using cables, string and paint, we made markings for the placement of the walls and all the plumbing. It took a lot of persuasion to bring in the workmen in charge of these features because they normally only come to a construction site when the walls of the house are already up,” Lehmeier says.
This master bathroom’s design speaks of 5-star luxury
As with many industrial buildings, the floor slab in this house is in fact the finished floor. So, they placed insulation inside the outer formwork to protect the slab. “Using cables, string and paint, we made markings for the placement of the walls and all the plumbing. It took a lot of persuasion to bring in the workmen in charge of these features because they normally only come to a construction site when the walls of the house are already up,” Lehmeier says.
This master bathroom’s design speaks of 5-star luxury
At last, the plumbers and electricians came to put the pipes, wiring and underfloor heating in before the concrete was poured. Finally, the concrete surface was smoothed and floated, and then covered for protection until all the work on the house was done.
The builders glued artificial turf onto the back wall of the platform to create an opaque privacy screen.
“We tried our hand at a lot of things that are actually only done in industrial construction, a form of construction in which people have little aspiration to aesthetics,” Lehmeier says. “Architects have to learn to transfer these methods over in an aesthetic way, to make housing construction cheaper.”
The builders glued artificial turf onto the back wall of the platform to create an opaque privacy screen.
“We tried our hand at a lot of things that are actually only done in industrial construction, a form of construction in which people have little aspiration to aesthetics,” Lehmeier says. “Architects have to learn to transfer these methods over in an aesthetic way, to make housing construction cheaper.”
Ground-floor layout
The north side of the ground floor has windows. So, the laundry room, utility room and guest bathroom, all of which are in the garage section, get daylight.
The north side of the ground floor has windows. So, the laundry room, utility room and guest bathroom, all of which are in the garage section, get daylight.
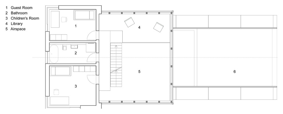
Second-floor layout
The box we saw in the sunroom serves as a library on the second floor. The ceilings of the two bedrooms open all the way up to the roof level. The bathroom (between the two rooms) has a dropped ceiling that provides additional storage space.
Read more:
Goa Houzz: A Heritage Structure is Restored to a Riverside Bungalow
Tell us:
What did you like the most about this house? Tell us in the Comments below.
The box we saw in the sunroom serves as a library on the second floor. The ceilings of the two bedrooms open all the way up to the roof level. The bathroom (between the two rooms) has a dropped ceiling that provides additional storage space.
Read more:
Goa Houzz: A Heritage Structure is Restored to a Riverside Bungalow
Tell us:
What did you like the most about this house? Tell us in the Comments below.














House at a Glance
Who lives here: A family with one child
Location: Pirna, near Dresden, Germany
Size: About 180 square meters (about1,940 square feet)
Architects: Büro für Bauform
This home comprises three gabled sections standing side-by-side, each rising to a different height and featuring an eye-catching facade. The section on the left and the garage on the right are covered in a rainscreen made of corrugated sheet metal. The walls and roof of the central section of the house, which hosts the living room, are polycarbonate, making it look like a sunroom. A wooden structure supports the about 2⅓-inch-thick (60-millimetre-thick) sheets, which are fixed in place with thermally broken frames – that is, frames in which thermally non-conductive material separates the indoor and outdoor parts to stop heat from escaping.
Polycarbonate is a relatively cheap material often used for building industrial warehouses. “The sheets are very light. We fastened them with wind anchors to prevent them from being blown away, even in strong winds,” says Jürgen Lehmeier, one of the architects on the project.