Maßgeschneidertes Update für zwei Bäder und ein Gäste-WC
Ungewöhnliche Grundrisse machten die Gestaltung der Badezimmer knifflig. Mit Weiß und Anthrazit kehrt jetzt Ruhe ein
Das Ungewöhnliche bei den Bädern in diesem Bochumer Einfamilienhaus ist nicht die Farbe oder das Material, es sind die Grundrisse. Auf kleinstem Raum sind Rundungen, spitze Winkel und schräge Decken untergebracht. Bei der Renovierung haben die Auftraggeber schnell erkannt, dass sie ohne professionelle Hilfe nicht zu ihren Wunschbädern kommen würden. Mit viel Planungsarbeit sowie reduzierter Farb- und Materialwahl ist es der Innenarchitektin Ilka Hilgemann gelungen, in den Mini-Räumen das Maximum zu erreichen.
Ausgangslage: Ein ungewöhnlicher Grundriss
„Das ganze Haus hat kaum einen rechten Winkel. Zudem sind die Räume auf Split-Level verteilt“, beschreibt Hilgemann den ausgefallenen Grundriss des Hauses. Gewöhnliche Möbel passten nicht in die ungewöhnlichen Zimmer. Eine Vergrößerung der Räume war aufgrund der Split-Level-Bauweise nicht möglich.
„Das ganze Haus hat kaum einen rechten Winkel. Zudem sind die Räume auf Split-Level verteilt“, beschreibt Hilgemann den ausgefallenen Grundriss des Hauses. Gewöhnliche Möbel passten nicht in die ungewöhnlichen Zimmer. Eine Vergrößerung der Räume war aufgrund der Split-Level-Bauweise nicht möglich.
Planung: Kleine Räume, großer Aufwand
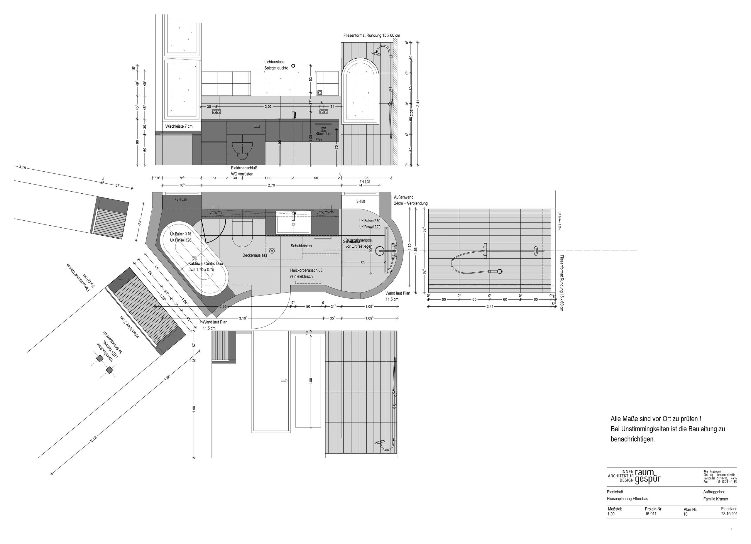
Bevor irgendetwas geplant werden konnte, mussten alle Räume genau ausgemessen werden. „Ein Aufmaß wie hier hatte ich vorher noch nie. Tatsächlich musste ich mehrmals nachmessen“, erzählt die Innenarchitektin. Damit die Einbauten auch an kniffligen Stellen genau passen, haben sich Innenarchitektin und Handwerker zum Teil recht ungewöhnliche Lösungen einfallen lassen. Im Elternbad etwa wurde die Badewanne in den Raum gestellt, damit der Schreiner vor Ort eine Schablone für das Wannenpodest fertigen konnte.
Auch interessant:
► Was macht schwarze Bäder so anziehend?
► Dunkles, innenliegendes Bad gestalten: 9 Tipps
► 12 Einrichtungsideen für kleine Bäder
Bevor irgendetwas geplant werden konnte, mussten alle Räume genau ausgemessen werden. „Ein Aufmaß wie hier hatte ich vorher noch nie. Tatsächlich musste ich mehrmals nachmessen“, erzählt die Innenarchitektin. Damit die Einbauten auch an kniffligen Stellen genau passen, haben sich Innenarchitektin und Handwerker zum Teil recht ungewöhnliche Lösungen einfallen lassen. Im Elternbad etwa wurde die Badewanne in den Raum gestellt, damit der Schreiner vor Ort eine Schablone für das Wannenpodest fertigen konnte.
Auch interessant:
► Was macht schwarze Bäder so anziehend?
► Dunkles, innenliegendes Bad gestalten: 9 Tipps
► 12 Einrichtungsideen für kleine Bäder
Gäste-WC mit passgenauem Waschtisch
Fast alle Möbel und Einbauten wurden aus Corian vom Schreiner maßgefertigt. Für den Waschtisch in der Gästetoilette hat Hilgemann das Waschbecken und die Armaturen an den Schreiner liefern lassen, damit er den Waschtisch genau anpassen konnte. „Die Umbauzeit war ungewöhnlich lang für Bäder. Damit alles auch wirklich passt, konnten viele Maße von den Handwerkern erst während der Bauzeit genommen werden“, erklärt Hilgemann. In der halbrunden Dusche des Elternbades bereitete vor allem die Positionierung der Ablaufrinne einiges Kopfzerbrechen. Die Duscharmatur musste aus Platzgründen als Aufputzvariante ausgeführt werden.
Fast alle Möbel und Einbauten wurden aus Corian vom Schreiner maßgefertigt. Für den Waschtisch in der Gästetoilette hat Hilgemann das Waschbecken und die Armaturen an den Schreiner liefern lassen, damit er den Waschtisch genau anpassen konnte. „Die Umbauzeit war ungewöhnlich lang für Bäder. Damit alles auch wirklich passt, konnten viele Maße von den Handwerkern erst während der Bauzeit genommen werden“, erklärt Hilgemann. In der halbrunden Dusche des Elternbades bereitete vor allem die Positionierung der Ablaufrinne einiges Kopfzerbrechen. Die Duscharmatur musste aus Platzgründen als Aufputzvariante ausgeführt werden.
Waschtisch und Dusche im Elternbad
Farbkonzept: Elegant in Anthrazit und Weiß
Die dunkle Farbgebung der Bäder war ein Wunsch der Bauherrin. Zu den großformatigen Fliesen hat Hilgemann schmale Fliesen derselben Serie kombiniert. Decken und einige Wände wurden verputzt, um das Raumklima zu verbessern. Zu den anthrazit ausgeführten Wänden und Böden setzt weiße Sanitärkeramik einen starken Kontrapunkt. Platzsparende Kompakttoiletten garantieren auch in den kleinsten Räumen ausreichend Bewegungsfreiheit.
Farbkonzept: Elegant in Anthrazit und Weiß
Die dunkle Farbgebung der Bäder war ein Wunsch der Bauherrin. Zu den großformatigen Fliesen hat Hilgemann schmale Fliesen derselben Serie kombiniert. Decken und einige Wände wurden verputzt, um das Raumklima zu verbessern. Zu den anthrazit ausgeführten Wänden und Böden setzt weiße Sanitärkeramik einen starken Kontrapunkt. Platzsparende Kompakttoiletten garantieren auch in den kleinsten Räumen ausreichend Bewegungsfreiheit.
Licht und Strom
„Die Bauherren wünschten sich mehr Licht in den Bädern“, berichtet Hilgemann. Im innen liegenden Kinderbad bringt jetzt ein Tageslichtspot Helligkeit in den Raum. Im Kellerbad sorgen in den Boden eingelassene Spots für atmosphärisches Licht. „Ein Raum sollte mindestens drei Lichtmöglichkeiten haben“, erklärt die Innenarchitektin.
„Die Bauherren wünschten sich mehr Licht in den Bädern“, berichtet Hilgemann. Im innen liegenden Kinderbad bringt jetzt ein Tageslichtspot Helligkeit in den Raum. Im Kellerbad sorgen in den Boden eingelassene Spots für atmosphärisches Licht. „Ein Raum sollte mindestens drei Lichtmöglichkeiten haben“, erklärt die Innenarchitektin.
Die Decken- und Wandleuchten waren in diesen Bädern nicht einfach anzubringen. Baldachine mussten an schräge Decken angepasst, Stablängen genau ausgemessen werden. Die Wandleuchte über der Badewanne hat spezielle Trafos, die außerhalb des Wannenbereichs angebracht sind. Ansonsten wäre die Leuchte aus Sicherheitsgründen an dieser Stelle nicht möglich gewesen. Sämtliche Leuchten sind, wie auch die Steckdosen, über ein Bussystem miteinander verbunden und lassen sich separat steuern.
„Bauen im Bestand ist immer schwierig. Aber bei diesem Projekt war es besonders wichtig, dass alle Beteiligten Spaß an den Details hatten und wirklich gut miteinander gearbeitet haben“, freut sich die Innenarchitektin.
Haben Sie auch schon mal eine Generalüberholung Ihrer Bäder durchführen lassen? Teilen Sie Ihre Erfahrungen!
Haben Sie auch schon mal eine Generalüberholung Ihrer Bäder durchführen lassen? Teilen Sie Ihre Erfahrungen!












Auf einen Blick
Hier badet, duscht und wäscht sich: eine vierköpfige Familie
In: Bochum
Auf: mindestens 2 Quadratmetern und maximal 7,5 Quadratmetern
Expertin: Ilka Hilgemann von raumgespür
Fotos: Christian Lünig
Im Zuge einer Renovierung sollten in dem Wohnhaus auch die beiden Bäder und ein Gäste-WC saniert werden. Zusätzlich entstand im Keller ein weiteres Bad, um diese Etage später als separates Apartment nutzen zu können. „Vorher gab es nur im Kinderbad eine Dusche. Die Bauherren wollten auch im Elternbad und im neuen Bad eine Dusche unterbringen“, erinnert sich die Innenarchitektin Ilka Hilgemann.