Kochen auf 6 Quadratmetern in Paris
Mit der richtigen Planung ist auch in der kleinsten Küche Platz. Durch Maßanfertigungen wird jeder Winkel genutzt und Hässliches versteckt
Die kleine Küche ist der erste Raum, in den man blickt, wenn man diese Wohnung in Paris betritt. Sie sollte also schön sein, einladend und ordentlich wirken. Gar keine so leichte Aufgabe, denn die Wände der Altbauwohnung waren schief, eine Heiztherme und auf Putz verlegte Rohrleitungen störten das Bild. VOrhanden war nur noch eine Spüle und ein Küchenschrank. Der sechs Quadratmeter große Raum brauchte also einen komplett neuen Look. Dafür wandten sich die neuen Besitzer an die Küchenplaner von Cuisishop, die mit Maßanfertigungen, starken Materialien und einem cleveren Raumkonzept die architektonischen Hürden umschifften.
Auf einen Blick
Hier kocht: ein Paar
In: einem Wohnhaus aus der Haussmann-Ära in Paris, Frankreich
Auf: 6 Quadratmetern
Experte: Cuisishop
Auf einen Blick
Hier kocht: ein Paar
In: einem Wohnhaus aus der Haussmann-Ära in Paris, Frankreich
Auf: 6 Quadratmetern
Experte: Cuisishop
Schiefe Wände, über Putz verlegte Leitungen, viel zu wenig Platz – Probleme wie diese sind typisch für Pariser Wohnungen. Die Küchenplaner mussten sich also Allerhand einfallen lassen, um jeden Quadratzentimeter optimal zu nutzen und aus dem Mini-Raum eine praktische und moderne Küche zu machen.
Eine Arbeitsplatte aus Eiche, Metro-Fliesen und MDF-Fronten mit matter Melaminharzbeschichtung in Anthrazit: Starke Materialien und ein stimmiges ästhetisches Konzept waren Bauherren und Designern wichtig.
Die riesige Heiztherme an der Wand wurde daher hinter einer Verkleidung versteckt, die passend zum Rest der Kücheneinrichtung grau lackiert wurde. In die entstandene Nische daneben wurde ein Regal eingepasst.
Die riesige Heiztherme an der Wand wurde daher hinter einer Verkleidung versteckt, die passend zum Rest der Kücheneinrichtung grau lackiert wurde. In die entstandene Nische daneben wurde ein Regal eingepasst.
Maßgefertigte Küchenschränke bieten jede Menge Stauraum. Die Verkleidung der Heiztherme wird über dem Regal links daneben fortgeführt, um auch die Rohrleitungen zu verstecken.
Die Bauherren wünschten sich auch einen Geschirrspüler – aber es war gar nicht so leicht, ein Modell zu finden, das in die sechs Quadratmeter kleine Küche passte. Eine 45 Zentimeter breite Single-Spülmaschine erfüllte den Zweck.
Der Spritzschutz aus weißen Metro-Fliesen verleiht dem Raum einen modernen Look und passt gut zu den mattgrauen Küchenfronten und der Arbeitsfläche aus Eiche.
Hier ein 3D-Modell der neuen Küche, das noch einmal die Kompaktheit des Raumes zeigt.
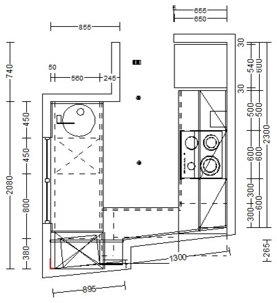
Und hier der Grundriss. Das Küchenlayout wurde optimal an die schwierigen Gegebenheiten angepasst und jeder noch so kleine Winkel sinnvoll genutzt. Trotz schiefer Wände und extrem wenig Platz wirkt der Raum heute alles andere als beengt.
Mehr Tipps für kleine Küchen und Küchenprojekte im Mini-Format >>>
Mehr Tipps für kleine Küchen und Küchenprojekte im Mini-Format >>>














