Houzzbesuch
Wie ein kahler Neubau Charakter bekam
Dank eines professionellen Farb- und Materialkonzeptes fanden die Eigentümer ihren eigenen Wohnstil
Ein frisch gebautes Einfamilienhaus ist noch kein gemütliches Zuhause. Um ihrer neuen Bleibe in einem Dorf bei Kassel Charakter einzuhauchen, beauftragte ein junges Paar die Raumgestalterin Elly Schaffer. Auf Grundlage eines riesigen Moodboards entwickelte die Expertin ein stimmiges Farb-, Licht- und Materialkonzept für jeden Raum. So wurde aus einem fertigen Neubau ein Zuhause zum Wohlfühlen.
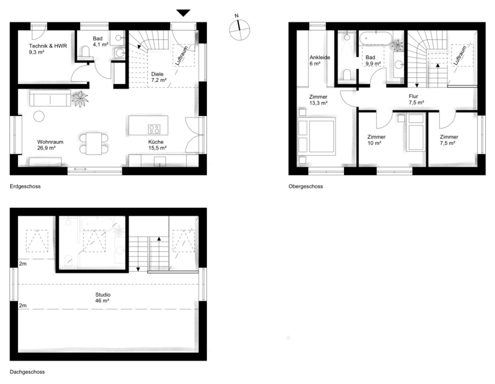
Grundriss
Das neue Haus erstreckt sich über drei Etagen einschließlich Dachgeschoss. Auf einen Keller wurde aus Kostengründen verzichtet. Auch die Betondecken wurden zu diesem Zweck teilweise roh belassen, was jedoch gleichzeitig dem ästhetischen Anspruch entsprach. Noch vor der Fertigstellung wurde Elly Schaffer mit in den Prozess eingebunden.
Das neue Haus erstreckt sich über drei Etagen einschließlich Dachgeschoss. Auf einen Keller wurde aus Kostengründen verzichtet. Auch die Betondecken wurden zu diesem Zweck teilweise roh belassen, was jedoch gleichzeitig dem ästhetischen Anspruch entsprach. Noch vor der Fertigstellung wurde Elly Schaffer mit in den Prozess eingebunden.
Am Anfang stand das Moodboard. Es ging nicht nur darum, am Ende die richtige Farbe an die Wand zu bringen, sondern auch um die richtige Wahl bei Beleuchtung, Fliesen und Armaturen.
„Dabei war es dem Paar wichtig, dass alles zueinander passt und eine Handschrift trägt“, so Schaffer. Auch bei der größeren Abbildung des Moodboards handelt es sich nur um einen kleinen Ausschnitt der gesamten Inspiration. „Die beiden hatten sich bereits im Vorfeld viele Gedanken gemacht und wussten sehr genau, was ihnen gefällt – doch konnten sie in ihren Inspirationsbildern keinen richtigen roten Faden erkennen“, erinnert sie sich. Wenn es sich um das eigene Zuhause handelt, fehlt manchmal der Abstand.
„Dabei war es dem Paar wichtig, dass alles zueinander passt und eine Handschrift trägt“, so Schaffer. Auch bei der größeren Abbildung des Moodboards handelt es sich nur um einen kleinen Ausschnitt der gesamten Inspiration. „Die beiden hatten sich bereits im Vorfeld viele Gedanken gemacht und wussten sehr genau, was ihnen gefällt – doch konnten sie in ihren Inspirationsbildern keinen richtigen roten Faden erkennen“, erinnert sie sich. Wenn es sich um das eigene Zuhause handelt, fehlt manchmal der Abstand.
Die Expertin selbst erkannte in der Zusammenstellung sofort wiederkehrende Elemente und hatte schnell eine Vision davon, wie diese sich zusammen bringen lassen. Allem voran hatte das Paar eine Vorliebe für Metalle und Grüntöne, aber auch zarte Farben, wie Creme und ein leichtes Rosa tauchten immer wieder auf, ebenso Holz und andere Naturmaterialien.
Blick von der Küche zum Essbereich. Wandfarbe Farrow&Ball Green Smoke No 47
Erdgeschoss. In der unteren Etage befindet sich der weit und großzügig geschnittene Wohnbereich mit offener Küche. Die Küchenfronten sind in einen matten Salbei-Ton getaucht, der besonders frisch neben den schwarzen Griffen und Armaturen hervortritt. Dazu eine massive Arbeitsplatte aus Holz, sodass sich hier sämtliche Elemente des Moodboards wiederfinden.
Erdgeschoss. In der unteren Etage befindet sich der weit und großzügig geschnittene Wohnbereich mit offener Küche. Die Küchenfronten sind in einen matten Salbei-Ton getaucht, der besonders frisch neben den schwarzen Griffen und Armaturen hervortritt. Dazu eine massive Arbeitsplatte aus Holz, sodass sich hier sämtliche Elemente des Moodboards wiederfinden.
Blick vom Wohnzimmer zu Essbereich und Küche
Fliesen „artisan“ von Equipe
Das Gästebad weist eine harmonische, aber besondere Materialkombination aus Naturstein, Messing und Zellige-Fliesen auf. Dabei werden immer wieder einzelne Elemente aus anderen Räumen aufgegriffen. So finden sich die gleichen Fliesen in anderer Farbe im oberen Badezimmer wieder.
Das Gästebad weist eine harmonische, aber besondere Materialkombination aus Naturstein, Messing und Zellige-Fliesen auf. Dabei werden immer wieder einzelne Elemente aus anderen Räumen aufgegriffen. So finden sich die gleichen Fliesen in anderer Farbe im oberen Badezimmer wieder.
Das Schwarz aus der Küche ist auch bei der Dusche zu entdecken, während die Armaturen und Möbel wiederum mit dem anderen Badezimmer abgestimmt sind.
Wandfarbe Farrow&Ball Skimming Stone No 241 (an allen hellen Wänden)
Die Treppe wurde ebenfalls in Rohbeton belassen – ein kleiner Spar-Trick, der zusätzlich etwas urbanes Flair einbringt.
Die Treppe wurde ebenfalls in Rohbeton belassen – ein kleiner Spar-Trick, der zusätzlich etwas urbanes Flair einbringt.
Visualisierung Bad
Obergeschoss. In der ersten Etage finden sich die privateren Wohnräume und das Badezimmer. Leichte Bambusmöbel erzeugen die gewünschte Natürlichkeit. Dazu quadratische Zellige-Fliesen in einem satten Tannengrün von leicht wechselnden Farbabstufungen, wie wir sie schon in Rosa aus dem Gästebad kennen. Die Messingarmaturen verweisen auf die wiederkehrenden Gold-Elemente aus dem Moodboard.
Wandfarbe Farrow&Ball Studio Green No 93
„Für ihr Badezimmer wünschten sie sich eine kleine Wellness-Oase“, so Schaffer. Wo an anderer Stelle etwas beim Budget eingespart werden konnte, sollte es hier keine Kompromisse geben.
„Für ihr Badezimmer wünschten sie sich eine kleine Wellness-Oase“, so Schaffer. Wo an anderer Stelle etwas beim Budget eingespart werden konnte, sollte es hier keine Kompromisse geben.
Der Raum erstreckt sich bis in das darüberliegende Dachgeschoss, sodass hier ein Oberlicht den Tag hereinlässt. Auf Empfehlung der Expertin sind die Wände in einem tiefen Dunkelgrün gehalten. „Es ist erstaunlich, wie das Licht von oben die hellen Fliesen unten im dunklen Raum erstrahlen lässt“, sagt Schaffer.
















Hier fühlt sich richtig wohl: ein junges Paar mit Kind
Wo: in einem kleinen Dorf bei Kassel
Auf: 130 m²
Expertise von: Elly Schaffer von Farbe & Raum Schaffer
Fotos von Jochen Kleinfeld