Houzzbesuch
Adrette Maisonette – hier wohnt die Interior Designerin selbst
Berufliches und Privates trennen? Besser nicht! Und wie in diesem Fall die Expertise auch für das eigene Zuhause nutzen
Gut Ding will Weile haben. Nach zehn Jahren Immobiliensuche in München war es für Stephanie Loy endlich so weit: Altbau, renovierungsbedürftig, zentrale Lage und im Budget! „Als wir diese Wohnung endlich gefunden hatten, war klar, dass wir zuschlagen“, erinnert sich Stephanie Loy von Stephanie Loy Interior Design GmbH. Für die Umsetzung des Projekts war keine weitere Suche nötig. Denn als Interior Designerin war sie selbst die richtige Expertin für die Realisierung ihrer Ideen und Wünsche.
Glück auf zwei Etagen. Die Maisonette erstreckt sich mit 93 Quadratmetern Wohnfläche über das dritte und vierte Geschoss des Münchener Altbaus und verfügt zusätzlich über eine kleine Dachterrasse von etwa sechs Quadratmetern. Ein toller Fund, in dem die Expertin inzwischen zusammen mit ihrem Mann lebt.
„Mit der Entscheidung für diese Wohnung war mir sehr bewusst, dass hier eine Kernsanierung ansteht. Letztendlich haben wir alles rausgerissen“, so Loy. Nach dem Kauf der Wohnung wägte sie genauestens ab, was sie bei dem Umbau mit Hinblick auf das Budget noch planen konnte. Dabei kalkulierte sie auch mögliche Überraschungen ein, wie sie beim Altbau nur allzu oft dazugehören.
Expertensuche: Finden Sie hier Interior Profis für Umbau und Renovierung
Expertensuche: Finden Sie hier Interior Profis für Umbau und Renovierung
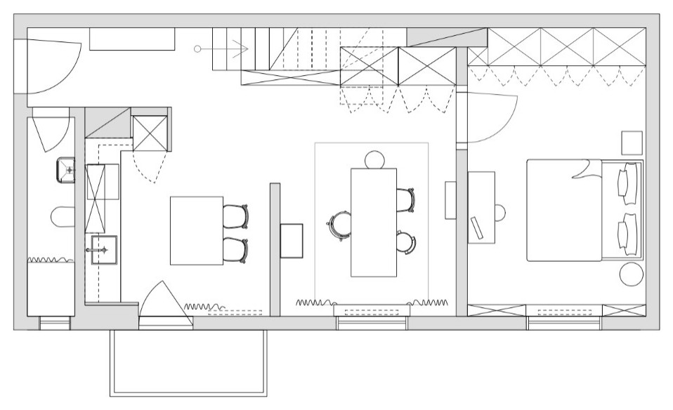
Grundriss 3. OG (untere Etage der Maisonette)
Untere Etage. Beim Eintreten in die Wohnung geht es links an der Wand die Treppe hinauf. Auf der rechten Seite neben dem Eingang liegt ein kleines Badezimmer, welches nachträglich saniert wurde und daher nicht mit abgebildet ist.
Untere Etage. Beim Eintreten in die Wohnung geht es links an der Wand die Treppe hinauf. Auf der rechten Seite neben dem Eingang liegt ein kleines Badezimmer, welches nachträglich saniert wurde und daher nicht mit abgebildet ist.
Spiegel von Menu
Weiter geradeaus führt der Flur rechts in die offene Küche und den darauffolgenden Essbereich. Da links hinter der Wand die Treppe verläuft, nutzte die Expertin den Platz, um einen großen Wandschrank mit reichlich Stauraum einzubauen. Im schlichten Weiß der Wände sind die Schranktüren besonders dezent und lassen den Raum großzügig und hell wirken.
Weiter geradeaus führt der Flur rechts in die offene Küche und den darauffolgenden Essbereich. Da links hinter der Wand die Treppe verläuft, nutzte die Expertin den Platz, um einen großen Wandschrank mit reichlich Stauraum einzubauen. Im schlichten Weiß der Wände sind die Schranktüren besonders dezent und lassen den Raum großzügig und hell wirken.
Für mich. Auch wenn die Expertin inzwischen zusammen mit ihrem Ehemann hier lebt, war es allein ihr Projekt. Eine Herzensangelegenheit, in der viel Selbstverwirklichung steckt: „Getrieben hat mich vor allem auch die Vorfreude darauf, endlich etwas für mich zu tun“, sagt sie mit Verweis auf die neue Küche.
Die Küche vor Umbau und Einzug
Küchenarmaturen aus Messing von Vola
Mithilfe eines gut befreundeten Schreiners entspricht die neue Küche in allen Details den Wünschen ihrer Besitzerin. Um das überwiegend moderne Design mit den matten Oberflächen und Armaturen aus Messing mit ein bisschen Flair der Achtziger zu spicken, wählte die Expertin für die Arbeitsplatte einen hochglanzpolierten Naturstein. Einen weiteren Akzent setzen die Vintage-Griffe und Füße des Küchenblocks, die im Messing-Look zu dem neuen Wasserhahn passen.
Mithilfe eines gut befreundeten Schreiners entspricht die neue Küche in allen Details den Wünschen ihrer Besitzerin. Um das überwiegend moderne Design mit den matten Oberflächen und Armaturen aus Messing mit ein bisschen Flair der Achtziger zu spicken, wählte die Expertin für die Arbeitsplatte einen hochglanzpolierten Naturstein. Einen weiteren Akzent setzen die Vintage-Griffe und Füße des Küchenblocks, die im Messing-Look zu dem neuen Wasserhahn passen.
Vintage-Griffe aus den Fünfzigerjahren
Kleiner Plot Twist: Eigentlich kocht die Interior Designerin gar nicht gern, sodass hier hauptsächlich ihr Mann schaltet und waltet. Aber auch das Zusehen von der anderen Seite der Theke macht bei einer so schönen Küche natürlich gleich doppelt so viel Spaß.
Kleiner Plot Twist: Eigentlich kocht die Interior Designerin gar nicht gern, sodass hier hauptsächlich ihr Mann schaltet und waltet. Aber auch das Zusehen von der anderen Seite der Theke macht bei einer so schönen Küche natürlich gleich doppelt so viel Spaß.
Messing-Füße für den Mittelblock von Superfront
Früher war der untere Bereich der Wohnung einfach ein großer Raum. Die Unterteilung fand nachträglich statt und auch das zusätzliche vierte Obergeschoss kam erst in den Achtzigern dazu. Rechts hinter den schweren Vorhängen geht es auf einen kleinen Balkon. Eine Trennwand zum Rücken der Barhocker schafft eine wohnliche Unterteilung zu dem Essbereich mit großem Tisch.
Früher war der untere Bereich der Wohnung einfach ein großer Raum. Die Unterteilung fand nachträglich statt und auch das zusätzliche vierte Obergeschoss kam erst in den Achtzigern dazu. Rechts hinter den schweren Vorhängen geht es auf einen kleinen Balkon. Eine Trennwand zum Rücken der Barhocker schafft eine wohnliche Unterteilung zu dem Essbereich mit großem Tisch.
Hier kann dann in größere Runde getafelt werden. Dabei tragen viele Details zu einer gemütlichen Atmosphäre bei. Die maßangefertigte Verkleidung lässt die weniger ansehnlichen Heizkörper dezent verschwinden. Hier einfach als Holzlamellen in Rosé und im Schlafzimmer mit eingebauten Fächern gleichzeitig als Bücherregal. Bei dem Material fiel die Wahl auf Multiplexplatten, die sich ebenfalls für die Treppe und die weiteren Einbaumöbel aus Holz eigneten. Einheitlichkeit schenkt der Wohnung Ruhe und lädt zum gemütlichen Beisammensein ein.
Alte Schätze. In der Gestaltung ging die Interior Designerin auf einzelne Besonderheiten des Projekts ein und ließ sich von ihnen leiten: „Ständig kam etwas zum Vorschein, womit wir nicht rechnen konnten“, so die Expertin.
Dazu zählen die alten Ölmalereien, die beim Entfernen mehrerer Tapetenschichten zutage traten. Es stellte sich heraus, dass alle Wände der Wohnung solche handgemalten Motive von 1900 aufwiesen. Im Schlafzimmer konnten diese aufwendig restauriert und so erhalten werden. Sie verleihen dem Raum nun das gewisse Etwas: „Für mich stand fest, dass ich zumindest ein Zeugnis der Jahrhundertwende retten und in die sonst sehr moderne Wohnung integrieren wollte“, so Loy.
Dazu zählen die alten Ölmalereien, die beim Entfernen mehrerer Tapetenschichten zutage traten. Es stellte sich heraus, dass alle Wände der Wohnung solche handgemalten Motive von 1900 aufwiesen. Im Schlafzimmer konnten diese aufwendig restauriert und so erhalten werden. Sie verleihen dem Raum nun das gewisse Etwas: „Für mich stand fest, dass ich zumindest ein Zeugnis der Jahrhundertwende retten und in die sonst sehr moderne Wohnung integrieren wollte“, so Loy.
Schrankdetail in dem Farbton „Red Earth No. 64“ von Farrow and Ball
Auch bei dem Schlafzimmerschrank hatte die Expertin das Glück, sich auf ihren engen Freund und Schreiner verlassen zu dürfen: „Das Tolle war, dass er sich auch auf Bastelarbeiten einlässt. So konnten wir den alten Kleiderschrank aus hochwertigen, massiven und handfurnierten Birke-Multiplexplatten fast vollständig recycleln“, so Loy. Fehlten nur noch zwei neue Platten für die Fronten und ein individueller Kniff: Die Kanten der Schranktüren sind in dem Lieblingsfarbton der Auftraggeberin und Freundin – sie waren eine freudige Überraschung.
Auch bei dem Schlafzimmerschrank hatte die Expertin das Glück, sich auf ihren engen Freund und Schreiner verlassen zu dürfen: „Das Tolle war, dass er sich auch auf Bastelarbeiten einlässt. So konnten wir den alten Kleiderschrank aus hochwertigen, massiven und handfurnierten Birke-Multiplexplatten fast vollständig recycleln“, so Loy. Fehlten nur noch zwei neue Platten für die Fronten und ein individueller Kniff: Die Kanten der Schranktüren sind in dem Lieblingsfarbton der Auftraggeberin und Freundin – sie waren eine freudige Überraschung.
Böse Überraschung. „Es war im Endeffekt sehr aufwendig, das Treppenloch zu generieren, weil man letztendlich das alte Gebälk, also die gesamte Statik, stützen musste“, so Loy.
„Während des Umbaus fiel uns buchstäblich die Decke auf den Kopf und das Füllmaterial einschließlich alter Zeitungen aus der Jahrhundertwende kam uns entgegen“, so die Expertin. Mal wieder eine Altbau-Überraschung der anderen Art.
Rund 10.000 Euro kosteten die zusätzlich nötigen Arbeiten mitsamt Material. So bekam die Wohnung eine neue und dieses Mal auf den Millimeter gerade Trockenbaudecke, für die die Besitzerin im Nachhinein sehr dankbar ist: „Manchmal wird man auch zu seinem Glück gezwungen.“ Ein Zimmerer verstärkte die tragenden Balken und baute zusätzliche Stützen ein. Das Treppen-Ensemble besteht aus der Treppe selbst, einem Bücherregal und einem Schrank unten auf der Rückseite.
„Während des Umbaus fiel uns buchstäblich die Decke auf den Kopf und das Füllmaterial einschließlich alter Zeitungen aus der Jahrhundertwende kam uns entgegen“, so die Expertin. Mal wieder eine Altbau-Überraschung der anderen Art.
Rund 10.000 Euro kosteten die zusätzlich nötigen Arbeiten mitsamt Material. So bekam die Wohnung eine neue und dieses Mal auf den Millimeter gerade Trockenbaudecke, für die die Besitzerin im Nachhinein sehr dankbar ist: „Manchmal wird man auch zu seinem Glück gezwungen.“ Ein Zimmerer verstärkte die tragenden Balken und baute zusätzliche Stützen ein. Das Treppen-Ensemble besteht aus der Treppe selbst, einem Bücherregal und einem Schrank unten auf der Rückseite.
VORHER
VORHER: Das alte Treppenloch wurde für den neuen Treppenaufgang erweitert.
Obere Etage. Im oberen Bereich waren keine größeren Umbauarbeiten nötig. Hier gab es hauptsächlich viel an den Wänden zu tun. Die alte Strukturtapete verschwand, um so die freigelegten Flächen neu verspachteln zu können.
Grundriss 4. OG (obere Etage der Maisonette)
„Gerne hätte ich auch hier einen neuen Boden gehabt, aber irgendwo musste es dann auch noch mit dem Budget passen, weshalb wir darauf erstmal verzichtet haben“, so die Expertin. Das große Sofa in Rosé besaß sie schon vorher. Mit eingezogen harmoniert es nun mit den Holztönen und greift die Farbe der Kommode in der unteren Etage auf. Unter dem Fenster entstand in Maßanfertigung ein großzügiger Schreibtisch und heller Arbeitsplatz.
Die schönen alten Balken erstrahlen nach ihrer Aufarbeitung im neuen Glanz und verleihen dem Wohnraum Charakter. Hier oben geht es dann auch zu der angrenzenden Dachterrasse. Sie kam mit dem früheren Ausbau des Dachstuhls hinzu und wurde von ihrer neuen Besitzerin gern übernommen.
vorher
Das einladende Daybed mit Stauraum und offenem Regal zur Seite – ebenfalls eine Maßanfertigung – schmiegt sich an das Geländer der Treppe. Obwohl diese während des Umbaus mit die größte Herausforderung darstellte, machte sie gleichzeitig für die Expertin einen besonderen Reiz aus: „Ich habe mich sehr gefreut, hier eine Treppe selbst einbauen zu können, die man sonst nirgendwo findet.“
Auf dieser Ebene befindet sich das zweite, größere Badezimmer, welches wegen des Budgets ebenfalls zunächst nicht mit saniert werden konnte und daher auch nicht mit abgebildet ist.
Auf dieser Ebene befindet sich das zweite, größere Badezimmer, welches wegen des Budgets ebenfalls zunächst nicht mit saniert werden konnte und daher auch nicht mit abgebildet ist.
Dass ein befreundeter Schreiner mit der Küche und dem Kleiderschrank beteiligt war, beeinflusste die Gesamtausgaben zusammen mit dem damals noch niedrigeren Holzpreis natürlich positiv. Zusätzlich konnte Stephanie Loy bei diesem Projekt in ihrer doppelten Funktion als Interior Designerin und Eigentümerin viele Kosten einsparen – insbesondere bei der Planung. Und so wurde sie – nachdem sie einen langen Atem bei der Objektsuche bewiesen hatte – mit einem gemütlichen Zuhause belohnt, das genau zu ihr passt.
Kleiner Überblick der Kosten
Kleiner Überblick der Kosten
- Umbau und Malarbeiten ca. 40.000 Euro
- Küche und Schreinerarbeiten 45.000 Euro
- Möblierung ca. 5.000 Euro (einschließlich Esstisch, Bett, Spiegel)



























Hier wohnt: eine Interior Designerin mit ihrem Mann
In: München
Auf: ca. 93 m²
Budget: 90.000 Euro (einschließlich Küche)
Fertiggestellt in: 2019
Expertise von: Stephanie Loy von Stephanie Loy Interior Design GmbH
Weitere Gewerke: Holzwerkstatt Javier Buono (Küche, Kleiderschrank Schlafzimmer), Lorenz + Schmid Raumrealisierungen (Treppe, Daybed, Schreibtisch und Heizkörperverkleidungen)
Fotos von Alejandro Fernandez