Aus naja wird mega! – neuer Look für eine Zweiraumwohnung
Ein großzügiger Grundriss, ein stimmiges Interior-Konzept und praktische Einbauten machen diese Wohnung zum Schmuckstück
Auf einen Blick
Hier wohnen: Kurzzeitmieter für sechs bis 12 Monate
Auf: 55 Quadratmetern
In: Düsseldorf-Carlstadt
Budget: 60.000 Euro (inklusive der kompletten Wohnungsausstattung)
Expertin: rooom.biz Ihre Agentin für Schönheit
Hier wohnen: Kurzzeitmieter für sechs bis 12 Monate
Auf: 55 Quadratmetern
In: Düsseldorf-Carlstadt
Budget: 60.000 Euro (inklusive der kompletten Wohnungsausstattung)
Expertin: rooom.biz Ihre Agentin für Schönheit
Das Haus wurde in den Achtzigerjahren gebaut. Dementsprechend niedrig sind die Decken mit 2,50 Metern. Die Wände und Einbauten in der Wohnung verliefen quer zum Licht, sodass die Räume wesentlich dunkler erschienen, als sie es eigentlich waren.
„Die Wohnung war sehr abgewohnt“, erinnert sich Maslankowski, „und energetisch nicht mehr auf dem neuesten Stand.“
Finden Sie hier Expert*innen für Umbau und Renovierung
Finden Sie hier Expert*innen für Umbau und Renovierung
Idee
Der Bauherr wünschte sich eine elegante und zugleich gemütliche Wohnung, die nach der Umgestaltung vermietet werden sollte. „Er wollte etwas Besonderes schaffen, um sich auf dem Markt abzusetzen“, so Maslankowski. Für knapp 60.000 Euro sollten der Raumeindruck optimiert, ein Gefühl von Großzügigkeit geschaffen und die Wohnung stilvoll eingerichtet werden.
Der Mietpreis in einer solch zentralen Lage wie der Düsseldorfer Carlstadt liegt recht hoch. Mit der Auswahl von hochwertigem Mobiliar und Materialien für die Ausstattung der Wohnung sollte die richtige Klientel angesprochen werden.
Der Bauherr wünschte sich eine elegante und zugleich gemütliche Wohnung, die nach der Umgestaltung vermietet werden sollte. „Er wollte etwas Besonderes schaffen, um sich auf dem Markt abzusetzen“, so Maslankowski. Für knapp 60.000 Euro sollten der Raumeindruck optimiert, ein Gefühl von Großzügigkeit geschaffen und die Wohnung stilvoll eingerichtet werden.
Der Mietpreis in einer solch zentralen Lage wie der Düsseldorfer Carlstadt liegt recht hoch. Mit der Auswahl von hochwertigem Mobiliar und Materialien für die Ausstattung der Wohnung sollte die richtige Klientel angesprochen werden.
Umsetzung
Ende Mai 2020 begannen die Umbauarbeiten. Das Bad und die Böden wurden erneuert und Wände eingerissen. Die Raumaufteilung in der Wohnung war zuvor eher ungünstig: Der abgetrennte Flur und die Speisekammer machten die Wohnung kleinteilig und zu dunkel, so Maslankowski. Nach dem Abriss der Wände fließt das Licht ungehindert bis in den hinteren Teil der Wohnung.
Ende Mai 2020 begannen die Umbauarbeiten. Das Bad und die Böden wurden erneuert und Wände eingerissen. Die Raumaufteilung in der Wohnung war zuvor eher ungünstig: Der abgetrennte Flur und die Speisekammer machten die Wohnung kleinteilig und zu dunkel, so Maslankowski. Nach dem Abriss der Wände fließt das Licht ungehindert bis in den hinteren Teil der Wohnung.
Die alten Heizkörper unter dem Fenster wurden verlegt und eine bodentiefe Schiebetüranlage eingebaut.
Das Schwierige bei der Umsetzung war laut der Expertin, dass sämtliche Arbeiten – von der Neuverlegung der Elektrik bis zum Einreißen der Wände – vorher angemeldet werden mussten. „Das ist bei einem einzeln stehenden Haus ganz anders“, erklärt Maslankowski.
„Das war wirklich die größte Herausforderung und eine Erfahrung, die ich für das nächste Projekt mitnehme. Innerstädtische Baumaßnahmen sind logistisch sehr schwierig.“ Das ging in diesem Fall bei Absperrungen für Lieferwagen los, die die Autofahrer geflissentlich ignoriert haben, und endete bei einem Kran, der eigens aufgestellt werden musste, um die Fenster zu montieren und für den die Haupteinkaufsstraße Düsseldorfs zeitweise gesperrt wurde. „Das Hupkonzert muss man sich mal vorstellen!“
Das Schwierige bei der Umsetzung war laut der Expertin, dass sämtliche Arbeiten – von der Neuverlegung der Elektrik bis zum Einreißen der Wände – vorher angemeldet werden mussten. „Das ist bei einem einzeln stehenden Haus ganz anders“, erklärt Maslankowski.
„Das war wirklich die größte Herausforderung und eine Erfahrung, die ich für das nächste Projekt mitnehme. Innerstädtische Baumaßnahmen sind logistisch sehr schwierig.“ Das ging in diesem Fall bei Absperrungen für Lieferwagen los, die die Autofahrer geflissentlich ignoriert haben, und endete bei einem Kran, der eigens aufgestellt werden musste, um die Fenster zu montieren und für den die Haupteinkaufsstraße Düsseldorfs zeitweise gesperrt wurde. „Das Hupkonzert muss man sich mal vorstellen!“
Innenraum
Bei der Gestaltung des Innenraums waren drei Dinge besonders wichtig: Licht und Offenheit in dem 55 Quadratmeter großen Apartment, ausreichend Platz für das Eigentum der Bewohner und ein stilvolles und wohnliches Interieur schaffen.
Auf Houzz stellen wir regelmäßig spannende Projekte der Houzz-Expert*innen sowie originelle Wohnungen von Privatleuten vor. Ihr Projekt oder Ihr Zuhause passen perfekt? Dann legen Sie gleich ein Ideenbuch mit aussagekräftigen Fotos und den wichtigsten Informationen an und teilen es mit redaktion@houzz.com
Bei der Gestaltung des Innenraums waren drei Dinge besonders wichtig: Licht und Offenheit in dem 55 Quadratmeter großen Apartment, ausreichend Platz für das Eigentum der Bewohner und ein stilvolles und wohnliches Interieur schaffen.
Auf Houzz stellen wir regelmäßig spannende Projekte der Houzz-Expert*innen sowie originelle Wohnungen von Privatleuten vor. Ihr Projekt oder Ihr Zuhause passen perfekt? Dann legen Sie gleich ein Ideenbuch mit aussagekräftigen Fotos und den wichtigsten Informationen an und teilen es mit redaktion@houzz.com
Das Bild für den Essbereich hat Maslankowski im Düsseldorfer Laden Schee gefunden.
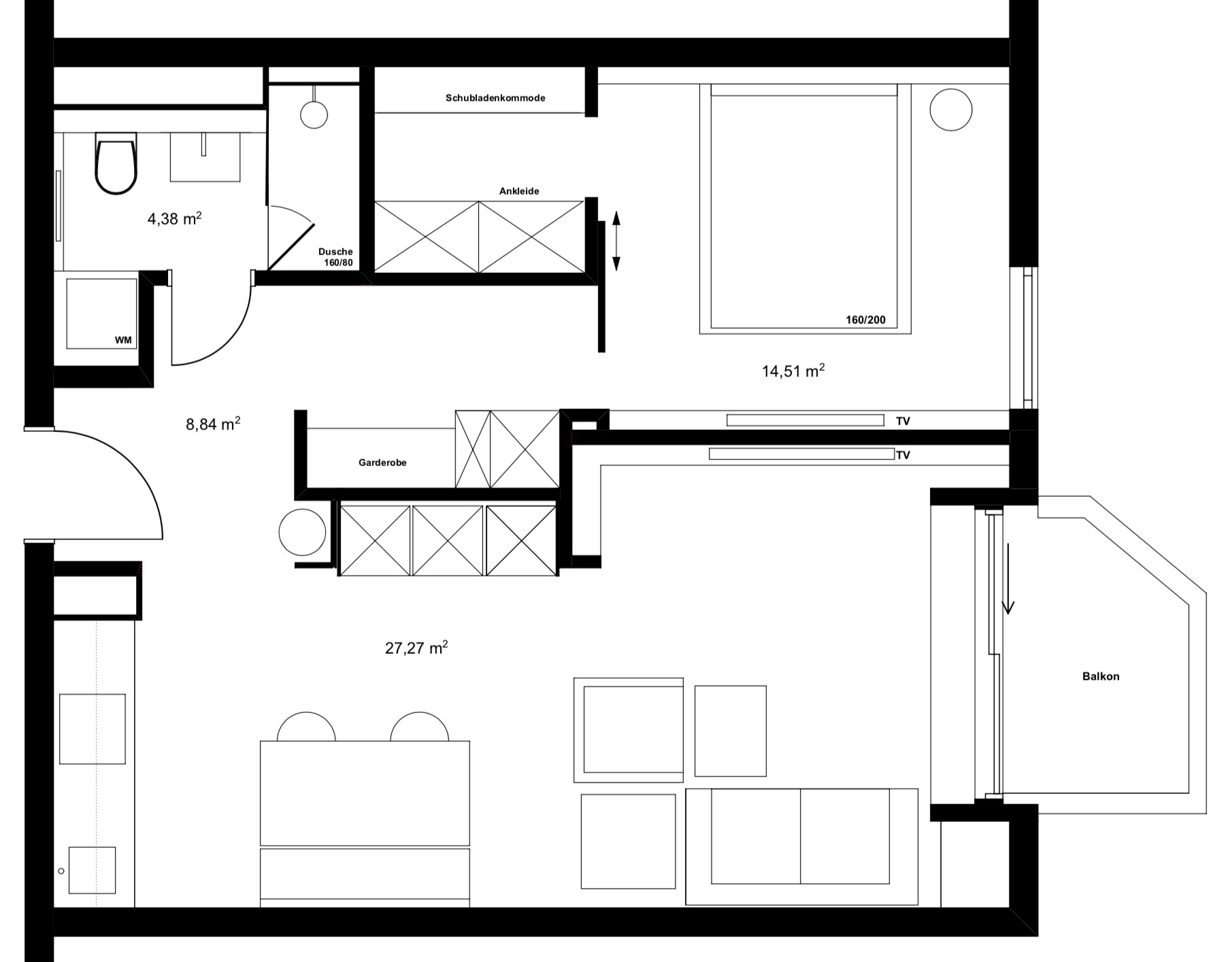
Ziel 1: Großzügiger Grundriss
Nicht nur Wände wurden eingerissen, um mehr Platz zu schaffen, auch auf Türen wurde verzichtet: „Wir haben alle Innentüren bis auf die des Badezimmers herausgenommen“, erklärt die Innenarchitektin. „Da die Decken so niedrig sind, mussten wir über die Blickachsen gehen, um die Großzügigkeit in der Fläche zu optimieren.“
Ziel 1: Großzügiger Grundriss
Nicht nur Wände wurden eingerissen, um mehr Platz zu schaffen, auch auf Türen wurde verzichtet: „Wir haben alle Innentüren bis auf die des Badezimmers herausgenommen“, erklärt die Innenarchitektin. „Da die Decken so niedrig sind, mussten wir über die Blickachsen gehen, um die Großzügigkeit in der Fläche zu optimieren.“
Das schlauchartige Schlafzimmer von früher wurde aufgelöst und eine kleine, begehbare Ankleide abgetrennt. „Dadurch ist der Raum gleich viel gemütlicher geworden“, findet die Innenarchitektin. Der Schlafbereich wird nun durch eine Schiebetür abgetrennt, die wahlweise auch vor den begehbaren Kleiderschrank geschoben werden kann.
Ziel 2: Stauräume schaffen
Bei der Planung des Grundrisses hat die Innenarchitektin Stauräume gleich mitgedacht, denn: „Ich bin ein großer Fan von Einbauschränken und Nischen, die als Stauraum dienen“, sagt sie und erklärt, „Dieser raumbildende Ausbau gibt eine ruhige Struktur vor. Möbel stehen manchmal nicht ganz passend im Raum. Aber je kleiner eine Wohnung ist, desto schwieriger wird es, Stauräume zu schaffen. Einbauten sind da eine gute Lösung.“
Bei der Planung des Grundrisses hat die Innenarchitektin Stauräume gleich mitgedacht, denn: „Ich bin ein großer Fan von Einbauschränken und Nischen, die als Stauraum dienen“, sagt sie und erklärt, „Dieser raumbildende Ausbau gibt eine ruhige Struktur vor. Möbel stehen manchmal nicht ganz passend im Raum. Aber je kleiner eine Wohnung ist, desto schwieriger wird es, Stauräume zu schaffen. Einbauten sind da eine gute Lösung.“
Sie bieten sich laut der Expertin außerdem wunderbar dafür an, um einen ruhigen Wohneindruck zu erzeugen. „Man kann zum Beispiel störende Nischen verstecken. Indem man die schließt, entsteht Ruhe“, erklärt sie.
Die alte Badewanne ist einer großen Walk-in-Dusche gewichen.
Im Bad wurde eine Nische aus Gipskarton geschaffen, in der der Waschtrockner unterkommt und in der außerdem Regale eingebaut wurden, die zusätzliche Abstellflächen bieten. Maslankowskis Tipp bei der Planung von Einbauten: „Man sollte sich seine Wohnung genau ansehen, es gibt Orte, die sind prädestiniert für Einbauten.“
Im Bad wurde eine Nische aus Gipskarton geschaffen, in der der Waschtrockner unterkommt und in der außerdem Regale eingebaut wurden, die zusätzliche Abstellflächen bieten. Maslankowskis Tipp bei der Planung von Einbauten: „Man sollte sich seine Wohnung genau ansehen, es gibt Orte, die sind prädestiniert für Einbauten.“
Ziel 3: Hochwertiges Interieur
Der Innenraum wurde in drei Farben von Farrow & Ball gestaltet, um einen harmonischen Gesamteindruck zu vermitteln: „Pigeon“ im Schlafzimmer, „Hardwick White“ in der Fernsehecke und als Grundton in allen anderen Bereichen „Shaded White“. „Wenn man durch die Wohnung läuft, entsteht so ein Spannungsbogen“, sagt Maslankowski, „und man entdeckt immer wieder etwas Neues.“
Im Wohnzimmer schützt eine 2,60 Meter breite Jalousie aus Holz vor neugierigen Blicken der Nachbarn. „Eine schöne Variante zur Gardine“, so die Expertin. Das Gute daran: Man muss sie nicht immer ganz schließen, um Sichtschutz zu haben.
Der Innenraum wurde in drei Farben von Farrow & Ball gestaltet, um einen harmonischen Gesamteindruck zu vermitteln: „Pigeon“ im Schlafzimmer, „Hardwick White“ in der Fernsehecke und als Grundton in allen anderen Bereichen „Shaded White“. „Wenn man durch die Wohnung läuft, entsteht so ein Spannungsbogen“, sagt Maslankowski, „und man entdeckt immer wieder etwas Neues.“
Im Wohnzimmer schützt eine 2,60 Meter breite Jalousie aus Holz vor neugierigen Blicken der Nachbarn. „Eine schöne Variante zur Gardine“, so die Expertin. Das Gute daran: Man muss sie nicht immer ganz schließen, um Sichtschutz zu haben.
Besondere Hingucker in der ganzen Wohnung sind die schwarzen Lichtschalter aus Aluminium. Für die haben sich die Expertin und der Bauherr entschieden, weil sich diese Ausführung ein wenig abhebt und wertig aussieht.
Ebenso hochwertig sehen auch die großformatigen Tafeln aus Feinsteinzeug im Bad aus. Maslankowski dazu: „Da die Wohnung vermietet wird, haben wir uns gegen echten Marmor entschieden. Der ist einfach zu empfindlich.“
Verraten Sie uns: Welche Ideen aus der Umgestaltung haben Sie sich in einem Ideenbuch abgespeichert?
Ebenso hochwertig sehen auch die großformatigen Tafeln aus Feinsteinzeug im Bad aus. Maslankowski dazu: „Da die Wohnung vermietet wird, haben wir uns gegen echten Marmor entschieden. Der ist einfach zu empfindlich.“
Verraten Sie uns: Welche Ideen aus der Umgestaltung haben Sie sich in einem Ideenbuch abgespeichert?




















Eine Wohnung im vierten Stock eines Mehrfamilienhauses mit in die Jahre gekommenem Mobiliar und einem altmodischen Bad – dieser Anblick bot sich einem jungen Bauherrn bevor er die Wohnung umgestalten ließ. Über Houzz war er zwei Jahre zuvor auf die Innenarchitektin Susanna Maslankowski aufmerksam geworden und hatte ihr den Auftrag gegeben, sein Wohnhaus zu planen. Nun sollte sie auch die Renovierung des kleinen Apartments übernehmen, das nach der Fertigstellung vermietet werden sollte.