Dachausbau: Moderne, vertikale Farbspiele im Denkmalschutz
Sichtbeton und ein ausgeklügeltes Farbspiel schaffen zeitgemäßes Wohnen mitten in Köln
Der Kontrast zwischen Alt und Neu könnte nicht größer sein: In einem denkmalgeschützten Haus der Jahrhundertwende wünschte sich der Bauherr für den Ausbau des Dachgeschosses eine moderne Formsprache mit offenen Räumen und vertikalen Elementen. Dafür mussten die Architekten die Umbaumaßnahmen eng mit der Denkmalpflege absprechen.
Besonders herausfordernd bei dem Projekt war, trotz der niedrigen Geschosshöhen einen großzügigen offenen Raumeindruck zu schaffen. Dies gelang vor allem durch die Vermeidung von klassischen Innenwänden. Stattdessen gliedern eine Sichtbetonwand und eine bepflanzte Stele, die sich über beide Geschosse erstrecken, den Raum. „Bei der Denkmalpflege ging es vor allem darum, ob die Umbaumaßnahmen zum Fassadenbild passen. Außerdem musste die Unversehrtheit des Stucks in der unteren Wohnung gewährleistet sein“, so die Architektin Andrea Bachmann.
Starten Sie Ihr Bauvorhaben und kontaktieren Sie hier einen Architekten
Starten Sie Ihr Bauvorhaben und kontaktieren Sie hier einen Architekten
Vertikales Farbspiel
Der Bauherr wünschte sich eine klare Formsprache mit vertikalen Elementen. Die Wohnung sollte eine offene Anmutung haben, während „Wandscheiben“ einzelne Bereiche unterteilen. „Wir wollten mit einem Farbspiel in Schwarz, Orange und Naturholz die Bereiche akzentuieren“, so die Architektin. Und auch die praktische Komponente war dem Bauherrn wichtig. Die orangefarbene Küche, die vom Schreiner gebaut wurde, schließt mit schwarzen Falttüren, die, wenn sie geöffnet werden, im Korpus verschwinden.
Der Bauherr wünschte sich eine klare Formsprache mit vertikalen Elementen. Die Wohnung sollte eine offene Anmutung haben, während „Wandscheiben“ einzelne Bereiche unterteilen. „Wir wollten mit einem Farbspiel in Schwarz, Orange und Naturholz die Bereiche akzentuieren“, so die Architektin. Und auch die praktische Komponente war dem Bauherrn wichtig. Die orangefarbene Küche, die vom Schreiner gebaut wurde, schließt mit schwarzen Falttüren, die, wenn sie geöffnet werden, im Korpus verschwinden.
Geländer als offener Rahmen
Mitten im Raum wurde eine zweite Treppe zum Obergeschoss gebaut. „Die Sichtbetonwände, die die Räume unterteilen, haben auch eine tragende Funktion“, erläutert die Architektin. Das schwarze Stahlgeländer ist entgegen der DIN-Norm offen und ohne Glas verbaut. „Das hat sich der Bauherr so gewünscht“, sagt die Expertin.
Mitten im Raum wurde eine zweite Treppe zum Obergeschoss gebaut. „Die Sichtbetonwände, die die Räume unterteilen, haben auch eine tragende Funktion“, erläutert die Architektin. Das schwarze Stahlgeländer ist entgegen der DIN-Norm offen und ohne Glas verbaut. „Das hat sich der Bauherr so gewünscht“, sagt die Expertin.
Offener Wohnbereich
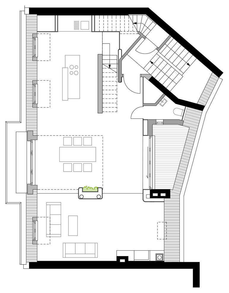
Das ca. 65 Quadratmeter große untere Geschoss ist ein offener Wohnbereich mit unterteilten Flächen, die unterschiedliche Funktionen erfüllen: Eine Küche, ein Essbereich sowie ein Kaminzimmer. Eine zweite Innentreppe musste wegen der Brandschutzbestimmungen eingebaut werden. Die seitliche Wandtreppe befindet sich rechts von der Küche und ist auf den Fotos nicht sichtbar.
Das ca. 65 Quadratmeter große untere Geschoss ist ein offener Wohnbereich mit unterteilten Flächen, die unterschiedliche Funktionen erfüllen: Eine Küche, ein Essbereich sowie ein Kaminzimmer. Eine zweite Innentreppe musste wegen der Brandschutzbestimmungen eingebaut werden. Die seitliche Wandtreppe befindet sich rechts von der Küche und ist auf den Fotos nicht sichtbar.
Pflanzenwand mit automatischer Bewässerung
Die vertikale Pflanzenwand ist das verbindende Element zwischen den beiden Geschossen. Die Wand wurde vom Schreiner gearbeitet und sollte abgerundete Ecken haben. „Der Bauherr war bei dem Projekt sehr engagiert und hat sich schwarzen Filz ausgesucht, der die Ecken ummantelt.“ Eine automatische Tröpfchenbewässerung wurde hinter den Grünpflanzen angelegt und sorgt für ein ideales Raumklima. Eine integrierte Beleuchtung schafft abends besondere Wohlfühleffekte durch die Grünpflanzen im ganzen Wohnraum.
Die vertikale Pflanzenwand ist das verbindende Element zwischen den beiden Geschossen. Die Wand wurde vom Schreiner gearbeitet und sollte abgerundete Ecken haben. „Der Bauherr war bei dem Projekt sehr engagiert und hat sich schwarzen Filz ausgesucht, der die Ecken ummantelt.“ Eine automatische Tröpfchenbewässerung wurde hinter den Grünpflanzen angelegt und sorgt für ein ideales Raumklima. Eine integrierte Beleuchtung schafft abends besondere Wohlfühleffekte durch die Grünpflanzen im ganzen Wohnraum.
Natursteinkamin
Einige Wände wurden mit Lamellen aus Fichtenholz verkleidet. Sie verleihen der Wohnung, neben den Betonwänden einen warmen, wohnlichen Charakter. „Da der Kamin aus schweren Natursteinplatten besteht, musste auch hier ein Statiker hinzugezogen werden und die untere Decke verstärkt werden“, erklärt die Architektin. Auch wegen des Brandschutzes gab es enge Absprachen, die berücksichtigt werden mussten.
Einige Wände wurden mit Lamellen aus Fichtenholz verkleidet. Sie verleihen der Wohnung, neben den Betonwänden einen warmen, wohnlichen Charakter. „Da der Kamin aus schweren Natursteinplatten besteht, musste auch hier ein Statiker hinzugezogen werden und die untere Decke verstärkt werden“, erklärt die Architektin. Auch wegen des Brandschutzes gab es enge Absprachen, die berücksichtigt werden mussten.
Licht: Vertikal, horizontal, punktgenau
„Die Beleuchtung wurde von einem Lichtplaner ausgearbeitet“, erzählt Andrea Bachman. Dieser hat linienförmige Elemente, Punktleuchten und Pendelleuchten eingebaut. „Der Lichtplaner stellte genaue Lichtberechnungen an, er weiß am besten welche Funktion welche Leuchten haben und wie der Raum am besten ausgeleuchtet wird, das ist sehr hilfreich und das empfehlen wir unseren Bauherrn“, sagt die Architektin.
Für ein individuelles Lichtkonzept in Ihrem Zuhause engagieren Sie hier einen Lichtplaner
„Die Beleuchtung wurde von einem Lichtplaner ausgearbeitet“, erzählt Andrea Bachman. Dieser hat linienförmige Elemente, Punktleuchten und Pendelleuchten eingebaut. „Der Lichtplaner stellte genaue Lichtberechnungen an, er weiß am besten welche Funktion welche Leuchten haben und wie der Raum am besten ausgeleuchtet wird, das ist sehr hilfreich und das empfehlen wir unseren Bauherrn“, sagt die Architektin.
Für ein individuelles Lichtkonzept in Ihrem Zuhause engagieren Sie hier einen Lichtplaner
Schwebende Treppe
„Zuerst musste der Statiker festlegen, wo die einzelnen Stufen hinkommen“, erklärt die Expertin, „ein Schlosser baute daraufhin eine Unterkonstruktion, sogenannte Blechschuberl, wo die einzelnen Stahlblech-Treppen reingeschoben wurden.“ Da die Architektin oft mit denselben Handwerkern und Fachmännern zusammenarbeitet, ist das Team eingespielt und die Wünsche des Bauherrn können meist verwirklicht werden. Denn die große Herausforderung bei der schwebenden Treppe war, diese aus ästhetischen Gesichtspunkten so schlank wie möglich zu gestalten. Normalerweise sind frei stehende Treppen deutlich dicker.
„Zuerst musste der Statiker festlegen, wo die einzelnen Stufen hinkommen“, erklärt die Expertin, „ein Schlosser baute daraufhin eine Unterkonstruktion, sogenannte Blechschuberl, wo die einzelnen Stahlblech-Treppen reingeschoben wurden.“ Da die Architektin oft mit denselben Handwerkern und Fachmännern zusammenarbeitet, ist das Team eingespielt und die Wünsche des Bauherrn können meist verwirklicht werden. Denn die große Herausforderung bei der schwebenden Treppe war, diese aus ästhetischen Gesichtspunkten so schlank wie möglich zu gestalten. Normalerweise sind frei stehende Treppen deutlich dicker.
Privates Obergeschoss
Im oberen Geschoss befindet sich der Schlafbereich und das Arbeitszimmer des Bauherrn. Die Treppe entlang der äußeren Wand befindet sich verborgen hinter der Lamellenwand aus Fichtenholz neben dem Schlafzimmer und dem Bad.
Im oberen Geschoss befindet sich der Schlafbereich und das Arbeitszimmer des Bauherrn. Die Treppe entlang der äußeren Wand befindet sich verborgen hinter der Lamellenwand aus Fichtenholz neben dem Schlafzimmer und dem Bad.
Vertikale Farbspiele
Auch im Obergeschoss kommen die vertikalen Farbkonzepte mit dem Naturholz gut zur Geltung. Das Farbspiel war Teil des Konzeptes der Architektin. Die zweite vertikale schwarze Filzwand wurde an der mittigen Treppe angebracht. Hier sieht man die abgerundeten Ecken und die millimetergenaue Schreiner- und Polstererarbeit. Gleich links von der Sichtbetonwand befindet sich das Bad.
Auch im Obergeschoss kommen die vertikalen Farbkonzepte mit dem Naturholz gut zur Geltung. Das Farbspiel war Teil des Konzeptes der Architektin. Die zweite vertikale schwarze Filzwand wurde an der mittigen Treppe angebracht. Hier sieht man die abgerundeten Ecken und die millimetergenaue Schreiner- und Polstererarbeit. Gleich links von der Sichtbetonwand befindet sich das Bad.
Eingelassene Leitungen
Eine Besonderheit des Bades: Das Waschbecken „sitzt“ an der Betonwand. Die Zuleitungen für das (Ab-)Wasser und die Elektrik wurden vorab geplant und in die Betonwand gelegt, keine Leitungen befinden sich an der Wand. „Das war eine millimetergenaue Arbeit, denn im Nachgang musste das mit den Maßen der Armaturen natürlich passen“, sagt die Architektin. Hinter den Fichtenlamellen geht es zum Duschbereich.
Eine Besonderheit des Bades: Das Waschbecken „sitzt“ an der Betonwand. Die Zuleitungen für das (Ab-)Wasser und die Elektrik wurden vorab geplant und in die Betonwand gelegt, keine Leitungen befinden sich an der Wand. „Das war eine millimetergenaue Arbeit, denn im Nachgang musste das mit den Maßen der Armaturen natürlich passen“, sagt die Architektin. Hinter den Fichtenlamellen geht es zum Duschbereich.
Klare vertikale Linien
Im Obergeschoss sorgt die vertikale Pflanzenwand für die optische Abtrennung zum Arbeitszimmer. Das orangefarbene, raumhohe Schiebeelemente sorgt für Privatsphäre, wenn diese gewünscht wird. Das kleine Stahlgeländer-Dreieck rechts wurde ausschließlich an dieser Stelle mit Sicherheitsglas bestückt. Sonst sind die Geländer wie ein offener Rahmen.
Das könnte Sie auch interessieren:
Dachgeschoss ausbauen: Tipps für die Planung
Einrichtungstipps fürs Büro unter der Dachschräge
Stauraum nach Maß für ein Münchner Dachgeschoss
Im Obergeschoss sorgt die vertikale Pflanzenwand für die optische Abtrennung zum Arbeitszimmer. Das orangefarbene, raumhohe Schiebeelemente sorgt für Privatsphäre, wenn diese gewünscht wird. Das kleine Stahlgeländer-Dreieck rechts wurde ausschließlich an dieser Stelle mit Sicherheitsglas bestückt. Sonst sind die Geländer wie ein offener Rahmen.
Das könnte Sie auch interessieren:
Dachgeschoss ausbauen: Tipps für die Planung
Einrichtungstipps fürs Büro unter der Dachschräge
Stauraum nach Maß für ein Münchner Dachgeschoss


















Hier wohnt: ein Single
Auf: 130 Quadratmetern
In: Köln
Budget: 350.000 Euro, reine Baukosten
Projektdauer: Planung & Realisierung je 1,5 Jahre
Experten: Bachmann Badie Architekten
Fotografin: Caroline Sieg
Die Maisonettewohnung befindet sich im Dachgeschoss eines 5-stöckigen denkmalgeschützten Mehrfamilienhaus der Gründerzeit in Köln. Dabei wurde die vorhandene Dachkonstruktion des ehemaligen Speichers vollständig entfernt und zweigeschossig wieder aufgebaut, mit einem Flachdach und zwei Glaskuppeln.