Grundriss, Ansicht, Schnitt: Was ist was bei der Architekturzeichnung?
Die wichtigsten Darstellungsformen von Architekt:innen und wie man sie als Laie versteht
Damit ein Gebäude Gestalt annimmt, bedienen sich Architekt:innen eines zentralen Hilfsmittels: der Zeichnung. Neben Skizzen, die dazu dienen, Ideen zu verbildlichen, gibt es auch technische Zeichnungen, die, je nach Detaillierungsgrad, den verschiedenen Gewerken als Grundlage zum Bauen eines Gebäudes dienen. Um einen Entwurf in Gänze abbilden zu können, bedarf es mehrerer Arten von Zeichnungen, die im Zusammenspiel alle Aspekte erklären. Grundrisse, Ansichten und Schnitte – worum es sich dabei im Einzelnen handelt, und wo die Unterschiede liegen, erfahren Sie hier.
Benötigen Sie Profis für Ihr Hausbau-Projekt?
Lassen Sie Houzz die besten Expert*innen für Sie finden
Lassen Sie Houzz die besten Expert*innen für Sie finden
Nur wenige Eingriffe machen den offenen Grundriss der ehemaligen Holzfabrik zur Wohnung. Auf der Grundrisszeichnung ist die hier zu sehende, bewusst erhaltene Weite bereits klar ablesbar.
Finden Sie hier Architekt:innen
Finden Sie hier Architekt:innen
2. Die Ansicht (der Aufriss). Auf der Ansicht sieht man die vertikale Organisation des Gebäudes, also die Fassaden – als würde von man vor dem Haus stehen und frontal darauf blicken. Es werden Pläne von allen vier Gebäudeseiten angefertigt. Beim Aufriss von Innenräumen spricht man von einem Schnitt, da hierfür, wie beim Grundriss auch, das Gebäude imaginär zerschnitten wird, um in sein Inneres sehen zu können.
Hier sind die Nord- und Südansichten des berühmten „Edith Farnsworth House“ von Mies van der Rohe zu sehen.
Hier sind die Nord- und Südansichten des berühmten „Edith Farnsworth House“ von Mies van der Rohe zu sehen.
3. Der Schnitt. Schnitte durch ein Gebäude werden durch eine Strich-Punkt-Linie im Grundriss markiert. Ebenso die Blickrichtung, die man anhand eines kleinen Pfeils erkennen kann.
Die Bereiche der Wand, die geschnitten werden, sind, wie im Grundriss auch, durch fette Linien erkennbar. Auf der Zeichnung ist dann alles zu sehen, was hinter dem Schnitt liegt – bis der Blick beispielsweise auf eine Wand trifft. Damit erklärt ein Schnitt den vertikalen Aufbau der Innenräume.
Wird durch die lange Seite des Gebäudes geschnitten, spricht man von einem Längsschnitt, ein Schnitt durch die schmalere Seite wird als Querschnitt bezeichnet. Schnittzeichnungen sind dann wichtig, wenn im Inneren besonders komplexe Elemente wie die hier abgebildete Treppe zu Einsatz kommen.
Die Bereiche der Wand, die geschnitten werden, sind, wie im Grundriss auch, durch fette Linien erkennbar. Auf der Zeichnung ist dann alles zu sehen, was hinter dem Schnitt liegt – bis der Blick beispielsweise auf eine Wand trifft. Damit erklärt ein Schnitt den vertikalen Aufbau der Innenräume.
Wird durch die lange Seite des Gebäudes geschnitten, spricht man von einem Längsschnitt, ein Schnitt durch die schmalere Seite wird als Querschnitt bezeichnet. Schnittzeichnungen sind dann wichtig, wenn im Inneren besonders komplexe Elemente wie die hier abgebildete Treppe zu Einsatz kommen.
Die Treppe aus gefaltetem Stahl bildet das Rückgrat dieses Dachaufbaus in München – mit seinen Schnittzeichnungen versinnbildlichte Architekt Erich Gassmann seine Idee.
4. Geländeschnitt. Schnitte bilden in der Regel auch den Baugrund ab. So lässt sich zeigen, wie die Fundamente ausgebildet werden sollen. Ist der zukünftige Standort besonders abschüssig und daher für die Bauarbeiten relevanter als sonst, kann er mit einem Geländeschnitt gesondert bedacht werden. Auf dieser Zeichnung wird dargestellt, wie das Gebäude im Untergrund sitzen soll.
Bei ihrem Entwurf des Ph House hoben die Architekten von Natural Dwellings im Geländeschnitt die Fundamente deutlich hervor, um deren Aufbau zu erläutern.
Bei ihrem Entwurf des Ph House hoben die Architekten von Natural Dwellings im Geländeschnitt die Fundamente deutlich hervor, um deren Aufbau zu erläutern.
5. Orthogonale Axonometrie. Die orthogonale Axonometrie, auch Militärperspektive genannt, kann man als Grundrisszeichnung mit 3D-Effekt bezeichnen. Der Grundriss wird dabei um 45 Grad gedreht, und seine Linien werden, der Höhe der einzelnen Elemente entsprechend, senkrecht nach oben verlängert.
Gerrit Rietveld konnte so bei seinem Entwurf des Rietveld-Schröder-Hauses genau simulieren, welche Teile des Entwurfes welche räumliche Ausdehnung in Breite und Höhe annehmen sollten. Und er konnte den so entstandenen räumlichen Objekten die typischen De-Stijl-Primärfarben zuweisen.
Gerrit Rietveld konnte so bei seinem Entwurf des Rietveld-Schröder-Hauses genau simulieren, welche Teile des Entwurfes welche räumliche Ausdehnung in Breite und Höhe annehmen sollten. Und er konnte den so entstandenen räumlichen Objekten die typischen De-Stijl-Primärfarben zuweisen.
Das Rietveld-Schröder-Haus, ein Meilenstein moderner Architektur, setzt sich aus vielen komplex zueinander positionierten Einzelelementen zusammen, die mittels axonometrischer Darstellung schon in der Zeichnung Gestalt annahmen.
6. Die Explosionszeichnung. Explosionszeichnungen sind in der Regel Axonometrien, bei denen die Elemente eines Hauses einzeln und räumlich versetzt dargestellt werden, sodass man die konstruktiven Zusammenhänge besser erfassen kann. Auch Motoren und andere technisch anspruchsvolle Objekte werden gerne anhand einer Explosionszeichnung erklärt.
Alle Elemente des Dune Beach House, von der Pfahlgründung bis hin zum prominenten, kreisrunden Oberlicht sind auf der Explosionszeichnung von Resolution: 4 Architecture ablesbar.
Alle Elemente des Dune Beach House, von der Pfahlgründung bis hin zum prominenten, kreisrunden Oberlicht sind auf der Explosionszeichnung von Resolution: 4 Architecture ablesbar.
7. Die Perspektive. Die perspektivische Zeichnung wird heute meistens von 3D-Renderings ersetzt, mit denen man durch Texturen und die Simulation von Sonnenlicht fotorealistische Bilder eines Raumes oder eines ganzen Gebäudes erzeugen kann.
Man unterschätze jedoch nie die Schönheit einer abstrakten (Hand-)Zeichnung – hier eine Vogelperspektive für den Entwurf eines Ladenlokals von M Layouts. Eine perspektivische Zeichnung erzeugt die Illusion räumlicher Tiefe auf einer zweidimensionalen Fläche. Das funktioniert über Fluchtpunkte, auf die alle Linien des Raumes zulaufen – ein Fluchtpunkt bei der Zentralperspektive, zwei oder gar drei bei den anderen Darstellungsformen (Zweipunkt- und Dreipunkt-Perspektive).
Buchtipp: Zeichenlehre für Architekten – die Schönheit der Architekturzeichnung
Man unterschätze jedoch nie die Schönheit einer abstrakten (Hand-)Zeichnung – hier eine Vogelperspektive für den Entwurf eines Ladenlokals von M Layouts. Eine perspektivische Zeichnung erzeugt die Illusion räumlicher Tiefe auf einer zweidimensionalen Fläche. Das funktioniert über Fluchtpunkte, auf die alle Linien des Raumes zulaufen – ein Fluchtpunkt bei der Zentralperspektive, zwei oder gar drei bei den anderen Darstellungsformen (Zweipunkt- und Dreipunkt-Perspektive).
Buchtipp: Zeichenlehre für Architekten – die Schönheit der Architekturzeichnung


















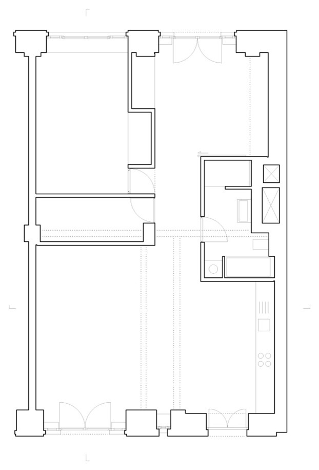
Grundrisse werden von jedem Geschoss eines Gebäudes gezeichnet, die Schnittstelle wird durch eine fette Linie markiert. Die Blickrichtung geht immer zur Erde hin, sodass unterhalb des Schnittes liegende Bereiche wie der Fußboden, Treppen, Fenster und Türöffnungen zu sehen sind, darüber liegende dagegen nicht. Grundrisse werden für das Bauamt im Maßstab 1:100, für die Handwerker dann im Maßstab 1:50 angefertigt.
Das Altbauloft Box 117 von Architekt Marc Benjamin Drewes ausgebaut, ist hier im Grundriss dargestellt. Deutlich sind die starken Gründerzeitwände zu erkennen, deren Massivität im Kontrast zu den dünnen, nachträglich eingezogenen Wänden für Bad und Schlafzimmer stehen.