Houzzbesuch
Durchbruch: Zwei Gründerzeit-Wohnungen werden eins
In nur fünf Monaten entstand aus zwei Wohnungen ein modernes Familienheim. Dank Feingefühl der Architektin
Auf einen Blick
Hier wohnt: eine Familie mit zwei Kindern und Au-pair
In: Stuttgart-West
Auf: 196 Quadratmetern
Expertin: Sarah Maier Handgewerke
Fotos: Deniz Saylan
Hier wohnt: eine Familie mit zwei Kindern und Au-pair
In: Stuttgart-West
Auf: 196 Quadratmetern
Expertin: Sarah Maier Handgewerke
Fotos: Deniz Saylan
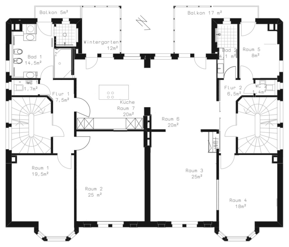
Der Zustand beider Wohnungen war gut. Seit dem Baujahr 1904 hatte sich an dem Gebäude nicht viel verändert. Es hatte nach dem Krieg nur eine Renovierung gegeben, bei der vor allem die hohen Decken abgehängt worden waren. „Mit einem so gut erhaltenen Originalbestand lässt sich viel machen. Für mich war das eine wahre Freude“, erinnert sich Maier. Allerdings steht das Gebäude innen wie außen unter Denkmalschutz. Für die Baumaßnahmen waren daher viel Fingerspitzengefühl und eine enge Zusammenarbeit mit der Denkmalschutzbehörde notwendig.
Der Durchbruch: Aus zwei mach eins
„Die Wände durften wir so gut wie gar nicht verändern“, so Maier. Erlaubt war aber, behutsam die Tapeten und Beschichtungen abzutragen, bis nur noch das mit vergipstem Stroh ausgefachte Fachwerk vorhanden war. Das wurde neu verputzt – und zwar mit einem Kalkpressputz, von dem die Innenarchitektin nur Gutes zu berichten weiß: „Der Putz wird nicht schmutzig, es gibt keine Macken, er muss auch nach zehn Jahren noch nicht erneuert werden.“
Und die Leitungen? Die hat sie kurzerhand unter dem neuen Holzboden aus geräucherten, geölten Eichendielen verlegt. Durch die Raumhöhe des Altbaus war genügend Platz, den Boden um rund sechs Zentimeter zu erhöhen. So konnten zugleich alle vorhandenen Schwellen zwischen den Räumen ausgeglichen werden. Die Kabel verlaufen in den Sockelleisten. An einer Stelle durfte Maier die Wände doch verändern: Von einem Durchbruch zwischen den beiden Wohnungen konnte sie die Denkmalschützer überzeugen. So gehen Küche und Essplatz jetzt ineinander über und bilden das neue Zentrum der Wohnung.
Auch interessant:
► Im Denkmal wohnen – Besonderheiten und Beachtenswertes
► Grundriss-Check: Wie viel Platz braucht man für eine Kücheninsel
► Wohnen mit Geschichte: 9 umgebaute Fachwerkhäuser
„Die Wände durften wir so gut wie gar nicht verändern“, so Maier. Erlaubt war aber, behutsam die Tapeten und Beschichtungen abzutragen, bis nur noch das mit vergipstem Stroh ausgefachte Fachwerk vorhanden war. Das wurde neu verputzt – und zwar mit einem Kalkpressputz, von dem die Innenarchitektin nur Gutes zu berichten weiß: „Der Putz wird nicht schmutzig, es gibt keine Macken, er muss auch nach zehn Jahren noch nicht erneuert werden.“
Und die Leitungen? Die hat sie kurzerhand unter dem neuen Holzboden aus geräucherten, geölten Eichendielen verlegt. Durch die Raumhöhe des Altbaus war genügend Platz, den Boden um rund sechs Zentimeter zu erhöhen. So konnten zugleich alle vorhandenen Schwellen zwischen den Räumen ausgeglichen werden. Die Kabel verlaufen in den Sockelleisten. An einer Stelle durfte Maier die Wände doch verändern: Von einem Durchbruch zwischen den beiden Wohnungen konnte sie die Denkmalschützer überzeugen. So gehen Küche und Essplatz jetzt ineinander über und bilden das neue Zentrum der Wohnung.
Auch interessant:
► Im Denkmal wohnen – Besonderheiten und Beachtenswertes
► Grundriss-Check: Wie viel Platz braucht man für eine Kücheninsel
► Wohnen mit Geschichte: 9 umgebaute Fachwerkhäuser
Das Bad: großzügig und modern
Großzügig zeigt sich das Badezimmer mit einer Wanne für vier Personen. Sie steht in einer Nische, deren Decke mit einer Pigmentfarbe von Kt Color satt blau gestrichen ist. Der gleiche Farbton findet sich auch in den Zementfliesen von Via wieder.
Großzügig zeigt sich das Badezimmer mit einer Wanne für vier Personen. Sie steht in einer Nische, deren Decke mit einer Pigmentfarbe von Kt Color satt blau gestrichen ist. Der gleiche Farbton findet sich auch in den Zementfliesen von Via wieder.
„Für die Waschtische wollte ich unbedingt eine zum Boden komplementäre Holzfarbe. Im Lager unserer Schreinerei habe ich dann Eibe gefunden“, erzählt die Innenarchitektin, zu deren Betrieb eine Schreinerei, ein Laden und eine Ausstellungsfläche gehören. Die Waschtische aus dem geölten Holz wurden wie alle Einbauten in der eigenen Schreinerei gefertigt. Am Waschtisch neben der Tür zieht sich der Werkstoff Corian, aus dem die Waschbecken gefertigt sind, bis in den Schrank. Ein raffiniertes Detail ist der ausklappbare Spiegel neben dem Waschtisch. Die Gastherme versteckt sich im Bad hinter einem der Waschtische. Neben zwei Gästetoiletten gibt es noch ein zweites, kleineres Bad.
Kräftige Farben
„Zwischen Bad und Küche musste einfach ein starker Farbakzent her“, beschreibt Maier den Flurschrank, der sich aus drei versetzt angeordneten Elementen zusammensetzt. Er sorgt schon beim Betreten der Wohnung mit viel Farbe für Fröhlichkeit. Die Wände sind fein auf die Lichtverhältnisse der Räume abgestimmt und in verschiedenen Weiß-Nuancen gestrichen.
„Zwischen Bad und Küche musste einfach ein starker Farbakzent her“, beschreibt Maier den Flurschrank, der sich aus drei versetzt angeordneten Elementen zusammensetzt. Er sorgt schon beim Betreten der Wohnung mit viel Farbe für Fröhlichkeit. Die Wände sind fein auf die Lichtverhältnisse der Räume abgestimmt und in verschiedenen Weiß-Nuancen gestrichen.
Die Küche: farbenfrohes Fünfeck
Farbenfroh kommt auch die Küche mit ihrer Arbeitsfläche aus magentafarbenem Silestone daher. „Ich hatte für den Prototyp meiner Stuttgarter Küche eine zweihundert Jahre alte französische Eiche bei uns im Lager entdeckt. Die Arbeitsplatte musste einfach etwas Besonderes sein“, betont Maier. Zur ungewöhnlichen Fünfeck-Form erklärt sie: „Gemeinsames Kochen sollte wirklich möglich sein, mit Blickkontakt und nicht Rücken an Rücken.“ Küchengeräte wie Kühlschrank, Backofen und Dampfgarer sind in einem Möbelstück an der Wand des perfekt quadratischen Raums untergebracht.
Farbenfroh kommt auch die Küche mit ihrer Arbeitsfläche aus magentafarbenem Silestone daher. „Ich hatte für den Prototyp meiner Stuttgarter Küche eine zweihundert Jahre alte französische Eiche bei uns im Lager entdeckt. Die Arbeitsplatte musste einfach etwas Besonderes sein“, betont Maier. Zur ungewöhnlichen Fünfeck-Form erklärt sie: „Gemeinsames Kochen sollte wirklich möglich sein, mit Blickkontakt und nicht Rücken an Rücken.“ Küchengeräte wie Kühlschrank, Backofen und Dampfgarer sind in einem Möbelstück an der Wand des perfekt quadratischen Raums untergebracht.
Im Esszimmer erinnert ein grüner Kronleuchter aus Muranoglas an das mondäne Wohnen der Gründerzeit. Auch der tannengrüne Teppich unter dem Esstisch begnügt sich nicht mit einer einfachen geometrischen Form.
Neue Technik, alte Energieversorgung
„Wir haben die gesamte Elektrik erneuert, aber ohne Spielerei. Auch was die Heizung betrifft, sind wir bei Gas geblieben“, beschreibt die Innenarchitektin knapp das Energiekonzept. Gaseinzelöfen hat sie durch eine Gasetagenheizung ersetzt. Flache Wandheizkörper und ein Röhrenheizkörper im Koch-Essbereich sorgen für wohlige Wärme.
„Wir haben die gesamte Elektrik erneuert, aber ohne Spielerei. Auch was die Heizung betrifft, sind wir bei Gas geblieben“, beschreibt die Innenarchitektin knapp das Energiekonzept. Gaseinzelöfen hat sie durch eine Gasetagenheizung ersetzt. Flache Wandheizkörper und ein Röhrenheizkörper im Koch-Essbereich sorgen für wohlige Wärme.
Wintergarten und Balkon
Die Loggien des gesamten Hauses mussten saniert werden. Das Denkmalamt hat in der einen Haushälfte die Umwandlung in Wintergärten erlaubt, auf der anderen wurden die Loggien zu Balkonen rückgebaut. „Die Wohnung profitiert absolut davon, dass sie in zwei Haushälften liegt. So hat sie nicht nur zwei Zugänge, sondern auch Wintergarten und Balkon“, freut sich Maier.
Haben Sie auch Ihr Zuhause erweitert? Berichten Sie anderen Houzzern davon in den Kommentaren!
Die Loggien des gesamten Hauses mussten saniert werden. Das Denkmalamt hat in der einen Haushälfte die Umwandlung in Wintergärten erlaubt, auf der anderen wurden die Loggien zu Balkonen rückgebaut. „Die Wohnung profitiert absolut davon, dass sie in zwei Haushälften liegt. So hat sie nicht nur zwei Zugänge, sondern auch Wintergarten und Balkon“, freut sich Maier.
Haben Sie auch Ihr Zuhause erweitert? Berichten Sie anderen Houzzern davon in den Kommentaren!













Der Stuttgarter Westen ist eines der am dichtesten besiedelten Wohngebiete Deutschlands. Hier hat die Innenarchitektin Sarah Maier zwei Wohnungen zu einer zusammengeführt. Sie liegen auf derselben Etage, aber in unterschiedlichen Haushälften eines als Doppelhaus angelegten Gründerzeitbaus. „Wir hatten dadurch zwei Zugänge über zwei Treppenhäuser – und auch zwei Balkone“, berichtet Maier.