Ein reduzierter Neubau aus Holz im Namen der Nachhaltigkeit
Hinter der ökologischen Weißtannen-Fassade stecken offene Räume, eine weit flächige Galerie und kluge Energietechnik
Zur Straße präsentiert sich das Holzhaus fast zurückhaltend. Dafür wirken die großflächigen Fensterfronten zur Gartenseite umso offener. Das Nürnberger Büro um die Architekten Ole Mezger, Thomas Jenohr und Holzbauingenieur Jon Mezger setzt auf Holz als nachhaltiges Baumaterial. Das war bei diesem Neubau für eine junge Familie nicht anders.
Auf einen Blick:
Hier wohnt: ein Ehepaar Mitte 30 mit mittlerweile einem Kind (1 Jahr alt)
Auf: 193 Quadratmeter Wohnfläche (850 Quadratmeter Grundstück)
In: Heideck (Franken)
Baujahr: 2018
Dauer: 7 Monate Planungszeit und weitere 7 Monate Hausbau bis zum Einzug
Experte: JENOHR|MEZGER PartGmbB
Auf einen Blick:
Hier wohnt: ein Ehepaar Mitte 30 mit mittlerweile einem Kind (1 Jahr alt)
Auf: 193 Quadratmeter Wohnfläche (850 Quadratmeter Grundstück)
In: Heideck (Franken)
Baujahr: 2018
Dauer: 7 Monate Planungszeit und weitere 7 Monate Hausbau bis zum Einzug
Experte: JENOHR|MEZGER PartGmbB
Wunsch nach Weißtanne
„Die statische Konstruktion des Gebäudes besteht aus Konstruktionsvollholz. Wir haben weitgehend einheimische Kiefer und Fichte verwendet“, erklärt Architekt Ole Mezger und führt an, dass das Augenmerk auf leimreduzierte Holzbaustoffe gelegt wurde. Das Vordach über dem Eingang ist eine flächige Stahlblechkonstruktion aus Cortenstahl.
„Die der Straße zugewandte Fassadenschalung aus Weißtanne ist vor den Fenstern durchgezogen“, erläutert Ole Mezger. „Jede der senkrechten Latten ist auf der Hälfte reduziert. Das sorgt für eine geschlossen wirkende Fassade, die von außen schwer einsehbar ist und die Privatsphäre gewährleistet. Von innen haben die Bewohner trotzdem eine gute Sicht nach außen.“ Die Weißtanne war eine Wahl der Bauherren, da der spezielle silbergraue Farbton durch die natürliche Verwitterung gewünscht war, so der Profi.
Lassen Sie sich bei ihrem Bauvorhaben von einem Architekten auf Houzz beraten
„Die statische Konstruktion des Gebäudes besteht aus Konstruktionsvollholz. Wir haben weitgehend einheimische Kiefer und Fichte verwendet“, erklärt Architekt Ole Mezger und führt an, dass das Augenmerk auf leimreduzierte Holzbaustoffe gelegt wurde. Das Vordach über dem Eingang ist eine flächige Stahlblechkonstruktion aus Cortenstahl.
„Die der Straße zugewandte Fassadenschalung aus Weißtanne ist vor den Fenstern durchgezogen“, erläutert Ole Mezger. „Jede der senkrechten Latten ist auf der Hälfte reduziert. Das sorgt für eine geschlossen wirkende Fassade, die von außen schwer einsehbar ist und die Privatsphäre gewährleistet. Von innen haben die Bewohner trotzdem eine gute Sicht nach außen.“ Die Weißtanne war eine Wahl der Bauherren, da der spezielle silbergraue Farbton durch die natürliche Verwitterung gewünscht war, so der Profi.
Lassen Sie sich bei ihrem Bauvorhaben von einem Architekten auf Houzz beraten
Höhenunterschied
Die Fensterfronten auf der Gartenseite sind hingegen deutlich größer als auf der Straßenseite. „Das Hervorstehende ist ein Sitzfenster mit 80 Zentimetern Tiefe“, erklärt Ole Mezger. Das Sitzfenster schließt sich an die Küche an, sodass Gäste dort gesellig verweilen können. Das Haus ohne Keller steht in leichter Hanglage, von Nordfassade zu Südfassade herrscht ein Höhenunterschied von ungefähr einem Meter.
Die Fensterfronten auf der Gartenseite sind hingegen deutlich größer als auf der Straßenseite. „Das Hervorstehende ist ein Sitzfenster mit 80 Zentimetern Tiefe“, erklärt Ole Mezger. Das Sitzfenster schließt sich an die Küche an, sodass Gäste dort gesellig verweilen können. Das Haus ohne Keller steht in leichter Hanglage, von Nordfassade zu Südfassade herrscht ein Höhenunterschied von ungefähr einem Meter.
Der Brennholzofen beheizt ein ganzes Haus
Einen offenen Wohnbereich wünschten sich die Bauherren ausdrücklich, wie sich Architekt Mezger erinnert, ebenso wie eine Fußbodenheizung und einen Brennholzofen. Der Scheitholzofen mit einer durch die Verglasung sichtbaren Feuerstelle ist die ökologische Lösung zur Beheizung des ganzen Hauses. „Er ist wärmespeichernd und erhitzt das Warmwasser sowie das Heizwasser für die Fußbodenheizung“, erklärt der Experte. „Die Erfahrung seit Einzug zeigt, dass ein einmaliges Einschüren des Ofens am Abend für die Energieversorgung eines ganzen Tages ausreicht.“ Die gut dämmende Gebäudehülle aus Holzwerkstoffen und Zellulose ist dafür mitverantwortlich. Wird der Ofen nicht betrieben, sorgt ein Solarthermieanlage für Warmwasser.
Einen offenen Wohnbereich wünschten sich die Bauherren ausdrücklich, wie sich Architekt Mezger erinnert, ebenso wie eine Fußbodenheizung und einen Brennholzofen. Der Scheitholzofen mit einer durch die Verglasung sichtbaren Feuerstelle ist die ökologische Lösung zur Beheizung des ganzen Hauses. „Er ist wärmespeichernd und erhitzt das Warmwasser sowie das Heizwasser für die Fußbodenheizung“, erklärt der Experte. „Die Erfahrung seit Einzug zeigt, dass ein einmaliges Einschüren des Ofens am Abend für die Energieversorgung eines ganzen Tages ausreicht.“ Die gut dämmende Gebäudehülle aus Holzwerkstoffen und Zellulose ist dafür mitverantwortlich. Wird der Ofen nicht betrieben, sorgt ein Solarthermieanlage für Warmwasser.
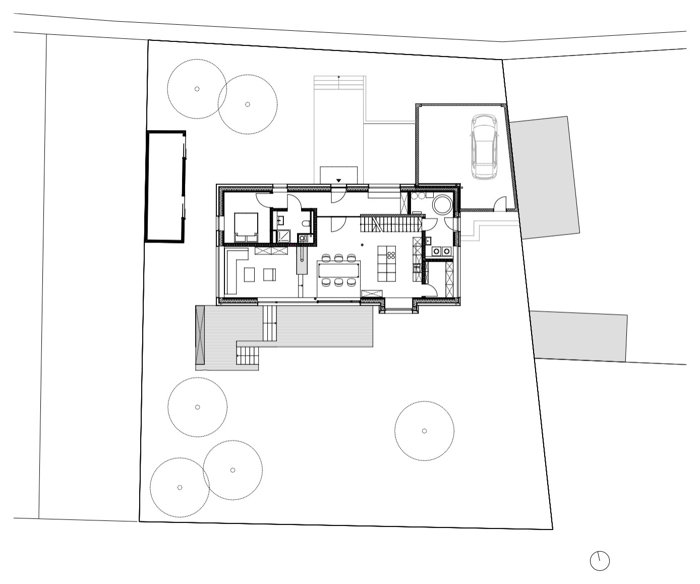
Grundriss von Erdgeschoss und Außenanlage
Innen wie außen Holz
Die Innendecken im Erdgeschoss sind ebenfalls aus Holz. „Das sind Massivholzdecken aus Fichte, deren Unterseite in Sichtqualität ausgeführt ist. Wir wählten eine Kreuzlagendecke für eine homogene Ansicht“, erklärt Ole Mezger.
Durch die Schiebetür gelangen die Bewohner ebenerdig auf die Terrasse. „Jeweils ein schmales Oberlicht über Küche und Wohnzimmer lässt morgens und abends atmosphärisches Sonnenlicht hinein“, ergänzt der Architekt.
Die Innendecken im Erdgeschoss sind ebenfalls aus Holz. „Das sind Massivholzdecken aus Fichte, deren Unterseite in Sichtqualität ausgeführt ist. Wir wählten eine Kreuzlagendecke für eine homogene Ansicht“, erklärt Ole Mezger.
Durch die Schiebetür gelangen die Bewohner ebenerdig auf die Terrasse. „Jeweils ein schmales Oberlicht über Küche und Wohnzimmer lässt morgens und abends atmosphärisches Sonnenlicht hinein“, ergänzt der Architekt.
Die Bauherren legten großen Wert auf einen geräumigen Essbereich. So ist genug Platz für alle, wenn sie Gäste empfangen, merkt der Architekt an. „Der offene Koch-Ess-Wohnbereich über die gesamte Gebäudelänge bietet viel Platz und macht das Haus als Ganzes erlebbar“, so Ole Mezger.
Offene Räume und hohe Decken
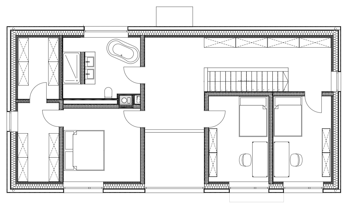
Die Galerie im Obergeschoss liegt direkt über dem Essbereich. Man sieht von hier die Aufhängung der Pendelleuchten für den Esstisch. „Wir entschieden, die Räume bis oben hin offen zu lassen. So gibt es keinen Dachboden, dafür aber eine Deckenhöhe von bis zu 4,50 Metern im maximalen Bereich“, führt Ole Mezger aus. Die Galerie wurde großflächig gehalten. „Der Platz ist für die Kinder zum Spielen gedacht. Neben den beiden Kinderzimmern befindet sich auch das Elternschlafzimmer im Obergeschoss.“
Die Galerie im Obergeschoss liegt direkt über dem Essbereich. Man sieht von hier die Aufhängung der Pendelleuchten für den Esstisch. „Wir entschieden, die Räume bis oben hin offen zu lassen. So gibt es keinen Dachboden, dafür aber eine Deckenhöhe von bis zu 4,50 Metern im maximalen Bereich“, führt Ole Mezger aus. Die Galerie wurde großflächig gehalten. „Der Platz ist für die Kinder zum Spielen gedacht. Neben den beiden Kinderzimmern befindet sich auch das Elternschlafzimmer im Obergeschoss.“
Grundriss Obergeschoss
Beton und Holz harmonisch verbunden
Diese Wand aus Sichtbeton begleitet die Stahlfaltwerktreppe vom Erdgeschoss ins Obergeschoss. „Die Planung dieser Wand war herausfordernd“, erinnert sich Ole Mezger, „da sie im ersten Obergeschoss die Brüstung der Treppe bildet.“ Die Oberfläche ist aus glatt geschaltem Sichtbeton.
Diese Wand aus Sichtbeton begleitet die Stahlfaltwerktreppe vom Erdgeschoss ins Obergeschoss. „Die Planung dieser Wand war herausfordernd“, erinnert sich Ole Mezger, „da sie im ersten Obergeschoss die Brüstung der Treppe bildet.“ Die Oberfläche ist aus glatt geschaltem Sichtbeton.
Die Terrasse war ursprünglich als reine Holzkonstruktion geplant. „Ein Bekannter der Bauherren ist Garten- und Landschaftsbauer. Er realisierte die Terrasse nach Fertigstellung des Hauses als eine Kombination aus Granit-Elementen und acetylierter Kiefer. Das ist ein schadstofffreies Produkt, was durch physisch-chemische Behandlung wetterfest und biologisch abbaubar ist“, so der Architekt.
Reduzierte Form
Eine Solarthermieanlage auf dem Dach ergänzt die Heizung des Hauses: „Der Baukörper sollte kompakt wirken in reduzierter, geometrischen Form. Die anthrazitfarbenen Solarpaneele sind in der gleichen Farbe wie das Dach und damit ganz unauffällig“, erklärt Ole Mezger. „Die sonst sichtbaren Regenrinnen und Fallrohre verstecken sich zudem hinter der Fassade.“
Die Garage aus Sichtbeton besitzt ebenfalls eine Massivholzdecke. Bei der Garage kam es auf Zentimeterarbeit an: Die Bauherren besitzen einen älteren VW-Bus T3, der in seiner Höhe in die Garage passen sollte. „Das Problem war die abschüssige Neigung des Grundstücks und eine sich daraus ergebende schräge Abfahrt in die Garage, kombiniert mit der baurechtlich maximal erlaubten Garagenhöhe. Die erste Fahrt in die Garage glückte dann erfolgreich mit 5 Zentimetern Luft über dem Dach“, freut sich der Architekt.
Mehr zu den im Artikel beschriebenen Themen:
14 kleine Holzhäuser der Extraklasse
Gefährliche Glasfronten: So verhindern Profis Vogelschlag
Das spricht für eine Galerie im Haus
Haltbare Terrassen – durch technisch modifizierte heimische Hölzer
Eine Solarthermieanlage auf dem Dach ergänzt die Heizung des Hauses: „Der Baukörper sollte kompakt wirken in reduzierter, geometrischen Form. Die anthrazitfarbenen Solarpaneele sind in der gleichen Farbe wie das Dach und damit ganz unauffällig“, erklärt Ole Mezger. „Die sonst sichtbaren Regenrinnen und Fallrohre verstecken sich zudem hinter der Fassade.“
Die Garage aus Sichtbeton besitzt ebenfalls eine Massivholzdecke. Bei der Garage kam es auf Zentimeterarbeit an: Die Bauherren besitzen einen älteren VW-Bus T3, der in seiner Höhe in die Garage passen sollte. „Das Problem war die abschüssige Neigung des Grundstücks und eine sich daraus ergebende schräge Abfahrt in die Garage, kombiniert mit der baurechtlich maximal erlaubten Garagenhöhe. Die erste Fahrt in die Garage glückte dann erfolgreich mit 5 Zentimetern Luft über dem Dach“, freut sich der Architekt.
Mehr zu den im Artikel beschriebenen Themen:
14 kleine Holzhäuser der Extraklasse
Gefährliche Glasfronten: So verhindern Profis Vogelschlag
Das spricht für eine Galerie im Haus
Haltbare Terrassen – durch technisch modifizierte heimische Hölzer

















„Warum wir uns auf Holzbau spezialisiert haben? Ganz einfach wegen der ökologischen Aspekte“, erklärt Ole Mezger. Er war gleichermaßen an dem Bauprojekt beteiligt wie sein Partner Thomas Jenohr. Das Holzhaus im fränkischen Seenland entstand in Gemeinschaftsarbeit von beiden Architekten, die gleichwertig Entwurf, Planung und Überwachung des Bauvorhabens übernahmen. „Mein Bruder Jon Mezger als Holzbauingenieur war zudem für die Statik und die technische Holzbauplanung verantwortlich“, berichtet Ole Mezger. Das Architekturbüro JENOHR|MEZGER legt besonders Wert auf Holzbau und effiziente Energieberatung. Der Auftrag der Bauherren, ein großzügiges, ökologisches Wohnhaus zu entwerfen, wurde in Holzrahmenbauweise realisiert.