Ein nachhaltiges Zuhause für eine italienische Familie
Nachhaltiges Design und clevere Kniffe sparen in diesem Haus viel Energie
Elisa Burnazzi und Davide Feltrin erhielten den Auftrag, ein Energiesparhaus im italienischen Borgo Valsugana in der Provinz Trient zu bauen. Die junge Familie, der das Grundstück gehört, wollte in der Nähe der Familie wohnen und wünschte sich viel Platz zum Spielen im Freien. Im Zentrum des Projekts standen mehrere große Räume und Flächen, die von allen genutzt werden sollten: eine geräumige, umlaufende Veranda, ein einladender Wohnbereich und ein großer, gepflegter Garten.
Das Haus liegt an der Südseite von Borgo Valsugana direkt an einer Straße, die zu einem Freilichtmuseum für zeitgenössische Kunst führt. Vom Grundstück aus hat man einen schönen Blick auf die Berge Cima XII und Ortigara sowie auf das Schloss Telvana.
Die hervorragende Lage und die Ausrichtung des Gebäudes ermöglichen eine gute Energieeffizienz: „Dank der optimalen Lage der Berggipfel und der umliegenden Gebäude profitiert das Haus von einer idealen Sonneneinstrahlung, besonders im Frühling und Winter“, erklären Burnazzi und Feltrin.
Die hervorragende Lage und die Ausrichtung des Gebäudes ermöglichen eine gute Energieeffizienz: „Dank der optimalen Lage der Berggipfel und der umliegenden Gebäude profitiert das Haus von einer idealen Sonneneinstrahlung, besonders im Frühling und Winter“, erklären Burnazzi und Feltrin.
Benötigen Sie Profis für Ihr Hausbau-Projekt?
Lassen Sie Houzz die besten Expert*innen für Sie finden
Lassen Sie Houzz die besten Expert*innen für Sie finden
Das Haus besteht aus einer vorgefertigten Holzkonstruktion, die anschließend mit Lärchenholzlatten verkleidet wurde, damit es sich besser in die natürliche Umgebung einfügt. Die Türen und die Rahmen der Low-E-Fenster, die den Energieverlust des Hauses minimieren, sind aus Tanne gefertigt.
Die großen Öffnungen an der Ost-, Süd- und Südwestseite dienen dazu, das Sonnenlicht in den Wintermonaten optimal zu nutzen. Loggien verhindern ein Überhitzen des Gebäudes im Sommer.
Alle Solar- und Fotovoltaikpaneele auf dem Dach wurden so angebracht, dass man sie nicht sieht.
Die großen Öffnungen an der Ost-, Süd- und Südwestseite dienen dazu, das Sonnenlicht in den Wintermonaten optimal zu nutzen. Loggien verhindern ein Überhitzen des Gebäudes im Sommer.
Alle Solar- und Fotovoltaikpaneele auf dem Dach wurden so angebracht, dass man sie nicht sieht.
Die Wohnung verfügt über ein mechanisches Belüftungssystem, Fußbodenheizung und einen Ofen. Um alle Ressourcen zur Energieeinsparung optimal zu nutzen, wird das Feuer des Ofens zur Erwärmung des Warmwassers genutzt. So ergänzt er die Wärmepumpe und den Erdgaskessel des Hauses. Dank der getroffenen bau- und heizungstechnischen Maßnahmen erhielt das Haus die Energieeffizienzklasse A+ in Italien.
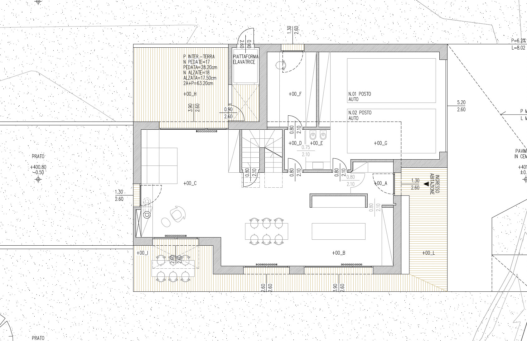
Grundriss Erdgeschoss
Elisa Burnazzi erzählt, dass die Familie aktiv an der Entwurfsphase beteiligt war: „Wir versuchen, die Bedürfnisse unserer Kunden sehr genau zu berücksichtigen. In der ersten Phase, in der wir zunächst nur zuhören, füllen unsere Kunden unser sogenanntes ‚Traumbuch‘ mit Worten und Bildern. So finden wir heraus, was ihnen vorschwebt und welche funktionalen, ästhetischen und emotionalen Bedürfnisse sie haben. Wir versuchen auch, den Kunden bei der Entscheidungsfindung die Zügel zu überlassen. Wir möchten ihnen nichts aufzwingen. Im Gegenteil. Wir erwarten von ihnen, dass sie ihren Beitrag leisten, um sicherzustellen, dass das Haus, das wir am Ende bauen, auch wirklich ihren Vorstellungen entspricht.“
Elisa Burnazzi erzählt, dass die Familie aktiv an der Entwurfsphase beteiligt war: „Wir versuchen, die Bedürfnisse unserer Kunden sehr genau zu berücksichtigen. In der ersten Phase, in der wir zunächst nur zuhören, füllen unsere Kunden unser sogenanntes ‚Traumbuch‘ mit Worten und Bildern. So finden wir heraus, was ihnen vorschwebt und welche funktionalen, ästhetischen und emotionalen Bedürfnisse sie haben. Wir versuchen auch, den Kunden bei der Entscheidungsfindung die Zügel zu überlassen. Wir möchten ihnen nichts aufzwingen. Im Gegenteil. Wir erwarten von ihnen, dass sie ihren Beitrag leisten, um sicherzustellen, dass das Haus, das wir am Ende bauen, auch wirklich ihren Vorstellungen entspricht.“
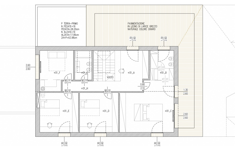
Grundriss des ersten Stocks
So entstand der Entwurf für dieses zweistöckige Haus. Im Erdgeschoss ist das Wohnzimmer, die Küche, das Bad und die Garage. Das Obergeschoss ist in drei Schlafzimmer und ein Arbeitszimmer unterteilt. Im Untergeschoss ist der Keller und der Heizungsraum.
So entstand der Entwurf für dieses zweistöckige Haus. Im Erdgeschoss ist das Wohnzimmer, die Küche, das Bad und die Garage. Das Obergeschoss ist in drei Schlafzimmer und ein Arbeitszimmer unterteilt. Im Untergeschoss ist der Keller und der Heizungsraum.
„Das gesamte Projekt bestand im Kern darin, eine Oase der Geselligkeit zu schaffen. Das Haus wurde auf einem Grundstück gebaut, das einst von drei Familien zum Entspannen und Spielen im Freien genutzt wurde. Und in diesem Geiste sollte auch das neue Haus entstehen“, so Burnazzi. „Vor allem das Wohnzimmer wurde auf gesellige Stunden mit Familie und Freunden ausgerichtet. Es eignet sich perfekt für eine Familie, kann aber auch erweitert werden, um noch mehr Personen unterzubringen. Das Gleiche gilt für den Eingangsbereich, in dem sich die Gäste willkommen fühlen sollen.“
Im Wohnzimmer und im zweiten Stockwerk haben Burnazzi und Feltrin mehrere Möbelstücke selbst entworfen.
Eins davon ist die Küche, die vom Team Casa nach dem Entwurf des Architekten-Duos gebaut wurde.
Der Wohnbereich öffnet sich zu einer Veranda hin, um einen fließenden Übergang von drinnen nach draußen zu schaffen und ganz im Sinne der Energieeffizienz für eine natürliche Belüftung zu sorgen.
Auch die zweite Etage wurde unter funktionalen Gesichtspunkten konzipiert. Das Bild zeigt einen Schreibtisch am oberen Treppenabsatz, der zum Arbeiten oder Lernen genutzt werden kann.
Im Hauptschlafzimmer ist das Bett das Zentrum. Das Kopfteil bietet Stauraum und reicht bis zur Decke, um so im Raum eine Trennung zum Kleiderschrank zu schaffen.
Die beiden Kinderzimmer sind einfach und funktional: Ein Regal neben dem Fenster dient als Arbeitsfläche, während eine Nische an der Rückwand als Nachttisch und Bücherregal genutzt werden kann. Vor dem Bett befindet sich ein Kleiderschrank.
Was bedeutet umweltfreundliches Bauen für Elisa Burnazzi von Brunazzi Feltrin? „Vor einigen Jahren wurde in Italien beschlossen, dass neue Gebäude energieeffizient gebaut werden sollen. Seit 2004 gehören wir zu den Ersten in Italien, die sich zu CasaClima-Experten ausbilden ließen. Und im Laufe der Jahre waren wir immer mehr davon überzeugt, dass umweltfreundliche Häuser nicht nur weniger verbrauchen, sondern auch nachhaltig sein müssen. Das heißt, sie müssen aus erneuerbaren Materialien und in Trockenbauweise (mit vorgefertigten Materialien) hergestellt werden, damit ihre Teile wiederverwendet werden können“, so Burnazzi.
„Wir glauben, dass ein echter Fortschritt im Bereich des umweltfreundlichen Bauens darin besteht, die Menschen zu respektieren, die dort leben, wo wir die Baumaterialien abbauen oder verarbeiten. Echte Ökologie gibt es nur, wenn die Erde als Heimat aller ihrer Bewohner betrachtet wird.“
„Wir glauben, dass ein echter Fortschritt im Bereich des umweltfreundlichen Bauens darin besteht, die Menschen zu respektieren, die dort leben, wo wir die Baumaterialien abbauen oder verarbeiten. Echte Ökologie gibt es nur, wenn die Erde als Heimat aller ihrer Bewohner betrachtet wird.“




















Das Haus auf einen Blick
Hier wohnt: eine junge Familie
In: Borgo Valsugana, Italien
Auf: 267 m² Innenfläche, 149 m² Außenterrassen, 790 m² Garten
Expertise von: Burnazzi Feltrin Architetti
Projektdauer: 2015-2018